Omschrijving

Hoekwoning met garage, eigen oprit en groene leefomgeving

Deze charmante hoekwoning uit 1961 biedt met 86 m² woonoppervlakte en drie volwaardige slaapkamers een fijne basis voor comfortabel wonen. Het royale perceel van maar liefst 300 m² maakt deze woning extra bijzonder. Hier geniet je volop van het buitenleven: in de verzorgde tuin is het regelmatig een komen en gaan van eekhoorns en vogels. Daarnaast beschik je over een eigen garage, een praktische berging én een oprit met ruimte voor je eigen auto. Ideaal voor wie gemak en privacy waardeert. Binnen wacht je een woning die uitnodigt om helemaal naar eigen smaak te moderniseren en om te toveren tot jullie toekomstige droomhuis.

De ligging van de woning is absoluut een pluspunt. Je woont in een groene, rustige woonomgeving op korte afstand van de prachtige Ginkelse Heide, perfect voor wandelingen, hardlooprondjes of gewoon even genieten van de natuur. Ondanks deze rustige ligging ben je binnen enkele minuten in het centrum van Ede, waar je een breed aanbod vindt aan winkels, supermarkten, gezellige horeca en diverse sport- en recreatievoorzieningen, waaronder zwembaden. Ook scholen en openbaar vervoer bevinden zich in de nabije omgeving. De buurt komt bovendien tot leven met lokale evenementen zoals de jaarlijkse Heideweek, die voor een gezellige sfeer en extra levendigheid zorgt.

Alle feiten op een rij:
- Hoekwoning met garage én eigen oprit met parkeerplaats
- Volledig naar eigen wens te moderniseren, ideaal voor wie een woning helemaal naar eigen smaak wil afwerken
- Het woonhuis is grotendeels voorzien van kunststofkozijnen met dubbel glas
- Het dak en de vloer van de woning is geïsoleerd met steenwol
- Verzorgde, diepe tuin met veel privacy
- Rustige en groene woonomgeving
- Dicht bij alle voorzieningen, het centrum van Ede, het NS-station en de prachtige Ginkelse Heide liggen allemaal op korte afstand

Indeling
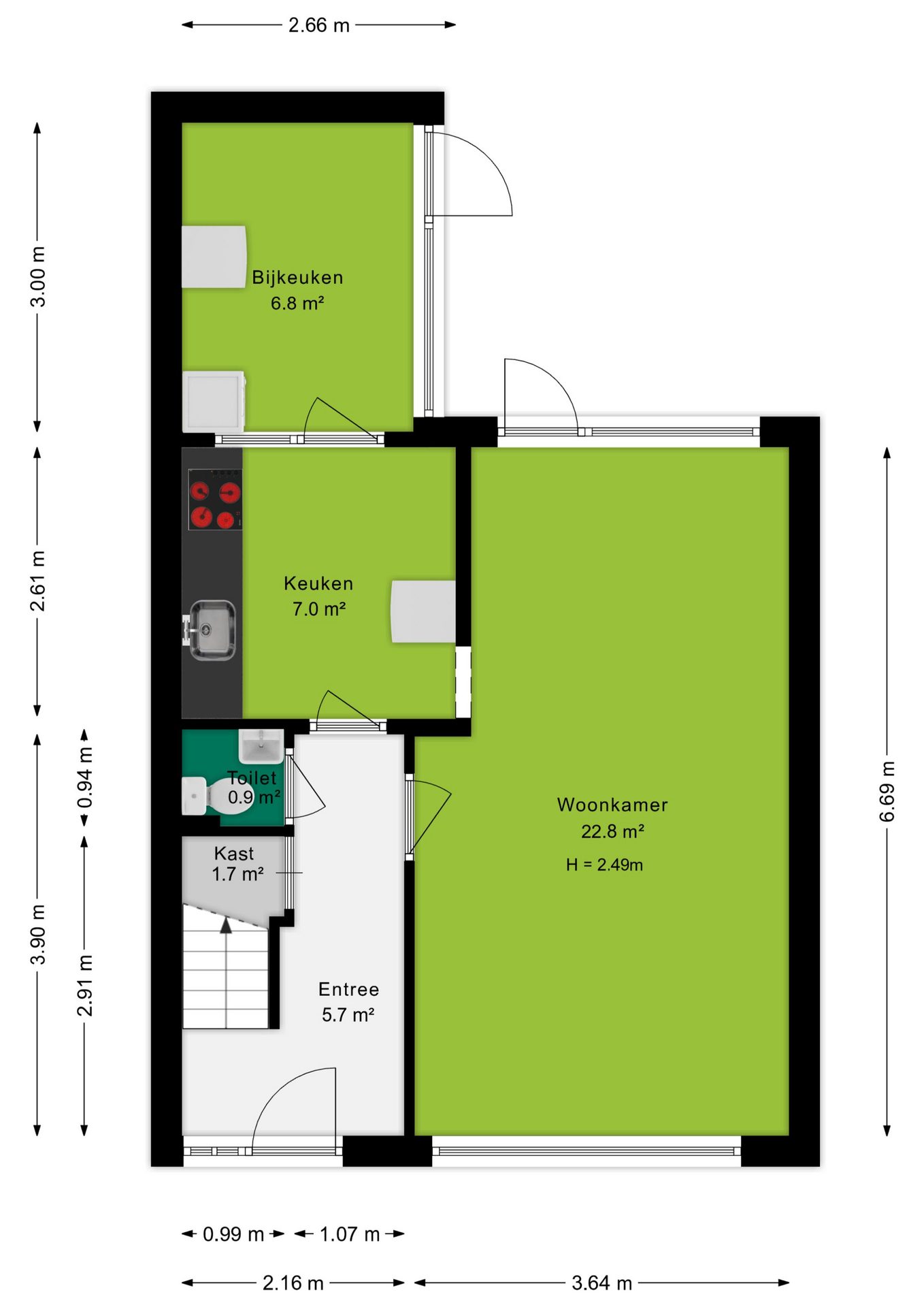
Begane grond
Bij binnenkomst in de hal heb je toegang tot de toiletruimte, de trapkast, de trapopgang naar de eerste verdieping én zowel de woonkamer als de keuken. Zodra je de woonkamer binnenstapt, valt het prachtige groene en vrije uitzicht aan zowel de voor- als achterzijde direct op. De woonkamer heeft een oppervlakte van circa 23 m²; de huidige bewoners hebben de zithoek aan de voorzijde ingericht en de eethoek aan de achterzijde geplaatst. Uiteraard biedt de ruimte volop mogelijkheden om deze geheel naar eigen wens in te delen. Zie je het al voor je? Een royale aanbouw met een moderne open woonkeuken? Dit zijn plannen die je nu óf in de toekomst kunt realiseren. Met openslaande deuren naar de tuin creëer je een prachtige verbinding tussen binnen en buiten, waardoor de tuin op mooie zomerse dagen als een natuurlijk verlengstuk van de woonkamer aanvoelt. De huidige keuken is gescheiden van de woonkamer en biedt toegang tot een praktische bijkeuken. In deze bijkeuken vind je bovendien de aansluiting voor het witgoed.

Eerste verdieping
Op de eerste verdieping bevinden zich drie slaapkamers en de badkamer. De slaapkamers meten circa 11 m², 10 m² en 6 m² en zijn allemaal voorzien van praktische vaste bergkasten. Op de overloop bevindt zich bovendien een extra vaste kast met daarin de C.V.-opstelling.
De badkamer is volledig betegeld in een lichte kleurstelling en uitgerust met een douche en een wastafelmeubel. De ruimte is eenvoudig van opzet en toe aan modernisering, waardoor je deze geheel naar eigen smaak kunt vernieuwen.

Buitenruimte
De verzorgde achtertuin ligt op het noorden, maar dankzij de royale diepte en breedte is er gedurende de dag altijd wel een fijne plek in de zon te vinden. De tuin biedt volop ruimte voor meerdere zitplekken en nodigt uit om heerlijk van het buitenleven te genieten. Via de achterom is de tuin bovendien gemakkelijk bereikbaar. Naast de aanwezige garage beschik je over een aangebouwde berging, ideaal voor extra opslag. Vanuit de garage heb je direct toegang tot de achtertuin, wat dit geheel extra praktisch maakt.

Koopovereenkomst:
Bij de verkoop zal er een standaard NVM koopovereenkomst worden gehanteerd. Bij woningen welke ouder zijn dan 20 jaar, worden de volgende clausules opgenomen in de koopovereenkomst:
- Asbestclausule
- Ouderdomsclausule

Koop je de woning zonder voorbehoud van financiering? Dan zullen wij een termijn hanteren van 6 weken na het opstellen van de koopovereenkomst voor het storten van de bankgarantie/waarborgsom.

Deze informatie is door ons met de nodige zorgvuldigheid samengesteld. Onzerzijds wordt echter geen enkele aansprakelijkheid aanvaard voor enige onvolledigheid, onjuistheid of anderszins, dan wel de gevolgen daarvan. Alle opgegeven maten en oppervlakten zijn indicatief.
+ toon meer

Video

6711 HR, Ede

Buurtscheuterlaan 7

Zaterdag 2 augustus 10:00 - 12:00 uur

€ 475.000 k.k.
ditters makelaars ede
Kopen

Wat is jouw woning écht waard bij Ditters?

Waardecheck

Wij combineren lokale marktkennis met actuele data en ons grote zoekersbestand in de regio.

Je krijgt niet alleen een waarde, maar inzicht in hoe je de maximale verkoopopbrengst kunt realiseren.

Onze aanpak is strategisch, transparant en volledig afgestemd op jouw situatie.

Goed om te weten: deze waardecheck is vrijblijvend en geheel kosteloos
Onafhankelijk

Hypotheekadvies

We helpen je met het vergelijken van aanbiedingen van verschillende banken, zodat je de beste deal krijgt. 
Wij staan klaar om je te begeleiden, zodat je met vertrouwen de juiste hypotheek kunt kiezen.
Goed om te weten: dit adviesgesprek is vrijblijvend en geheel kosteloos

Wij helpen jou bij de keuze van de juiste polis.

Bij een onbezorgde toekomst horen ook goede verzekeringen die uitkeren bij bijvoorbeeld ziekte, schade of diefstal. Onze assurantieadviseurs helpen je bij de keuze van de juiste polis. In heldere taal.

Diverse verzekeringen

  • Opstalverzekering
  • Aansprakelijkheidsverzekering
  • Zorgverzekering
  • Reisverzekering

Buurtinformatie

Ede, Burgemeestersbuurt
Inwoners
Woningen
1.188
Inwoners
2.130
36
60
Koop / Huur
36% Huur60% Koop
Huishoudens
Eenpersoon
28.0%
Geen kinderen
35.7%
Met kinderen
35.2%
Leeftijdsopbouw in jaren
Buurt Landelijk
17.110.320.428.424.216.312.324.728.218.5

Locatie

Plattegronden

Klik op de plattegrond voor een grote weergave

Misschien interessant voor jou

Blijf op de hoogte

Ontvang als eerste updates over nieuw aanbod en mis geen enkele kans om jouw droomwoning te vinden.

Gratis waardebepaling of verkoopgesprek

Met de vrijblijvende waardecheck weet je snel waar je aan toe bent. Onze makelaars kijken naar de lokale markt en vergelijkbare woningen in jouw buurt om een goede schatting te geven.