Aanbod

Verken ons aanbod. Van huur tot koop. En van nieuwbouw tot bouwkavel. Samen vinden we de plek waar jij je helemaal thuis voelt.

Diensten

Onze experts begeleiden je van A tot Z. Of je nu je huis wilt verkopen, op zoek bent naar je droomhuis of advies nodig hebt over hypotheken of verzekeringen. Met jarenlange ervaring en persoonlijke service zorgen we ervoor dat jij met een gerust hart de juiste keuzes maakt.

Over Ditters

Wij zijn Ditters. Verhalenvertellers. De schakel tussen droom en woning. We luisteren naar jouw wensen en maken op basis daarvan een plan.

Omschrijving

In een rustige en kindvriendelijke woonwijk van Almere Buiten staat deze ruime hoekwoning uit 2001. Met een woonoppervlakte van 135 m², vijf slaapkamers, een lichte woonkamer met schuifpui en een tuin op het zuidwesten biedt deze woning volop ruimte en comfort. Dankzij het energielabel A woon je hier bovendien energiezuinig en toekomstbestendig. De woning is zelfs voorzien van 12 zonnepanelen en een thuisbatterij voor het opslaan van zelfopgewekte elektra.

Pluspunten van deze woning:
+ Maar liefst 5 slaapkamers
+ Lichte woonkamer van 27 m² met schuifpui
+ Zonnescherm aanwezig
+ Energielabel A met 12 zonnepanelen en een thuisbatterij
+ Tuin op het zuidwesten met achterom en berging
+ Parkeren op eigen terrein
+ Nabij winkelvoorzieningen gelegen zoals de Albert Heijn
+ Op 1 minuut loopafstand van treinstation Almere Oostvaarders
+ De woning ligt op korte afstand van Oostrandpark en de Oostvaardersplassen waar je heerlijk kunt wandelen en fietsen

Ligging
De woning ligt centraal in Almere Buiten, in een wijk met veel voorzieningen op loop- en fietsafstand. Voor gezinnen zijn er basisscholen, speeltuinen en supermarkten dichtbij. Ook het winkelcentrum van Almere Buiten is eenvoudig bereikbaar. Natuurliefhebbers wandelen zo naar de Oostvaardersplassen, een uniek natuurgebied. Daarnaast ligt het treinstation op loopafstand en zijn de A6 en A27 via de Buitenring uitstekend bereikbaar.

Indeling

Begane grond
Via de entree met meterkast, toilet met fonteintje en trapopgang kom je in de woning. Aan de voorzijde ligt de keuken, die praktisch is opgesteld en veel werk- en kastruimte biedt. De lichte woonkamer van 27,2 m² strekt zich uit over de volledige breedte aan de achterzijde. Grote ramen en de schuifpui zorgen voor een prettige lichtinval en direct contact met de tuin. Er is voldoende ruimte voor zowel een royale zithoek als een eettafel. De trapkast maakt de leefruimte praktisch en biedt extra bergruimte.

Eerste verdieping
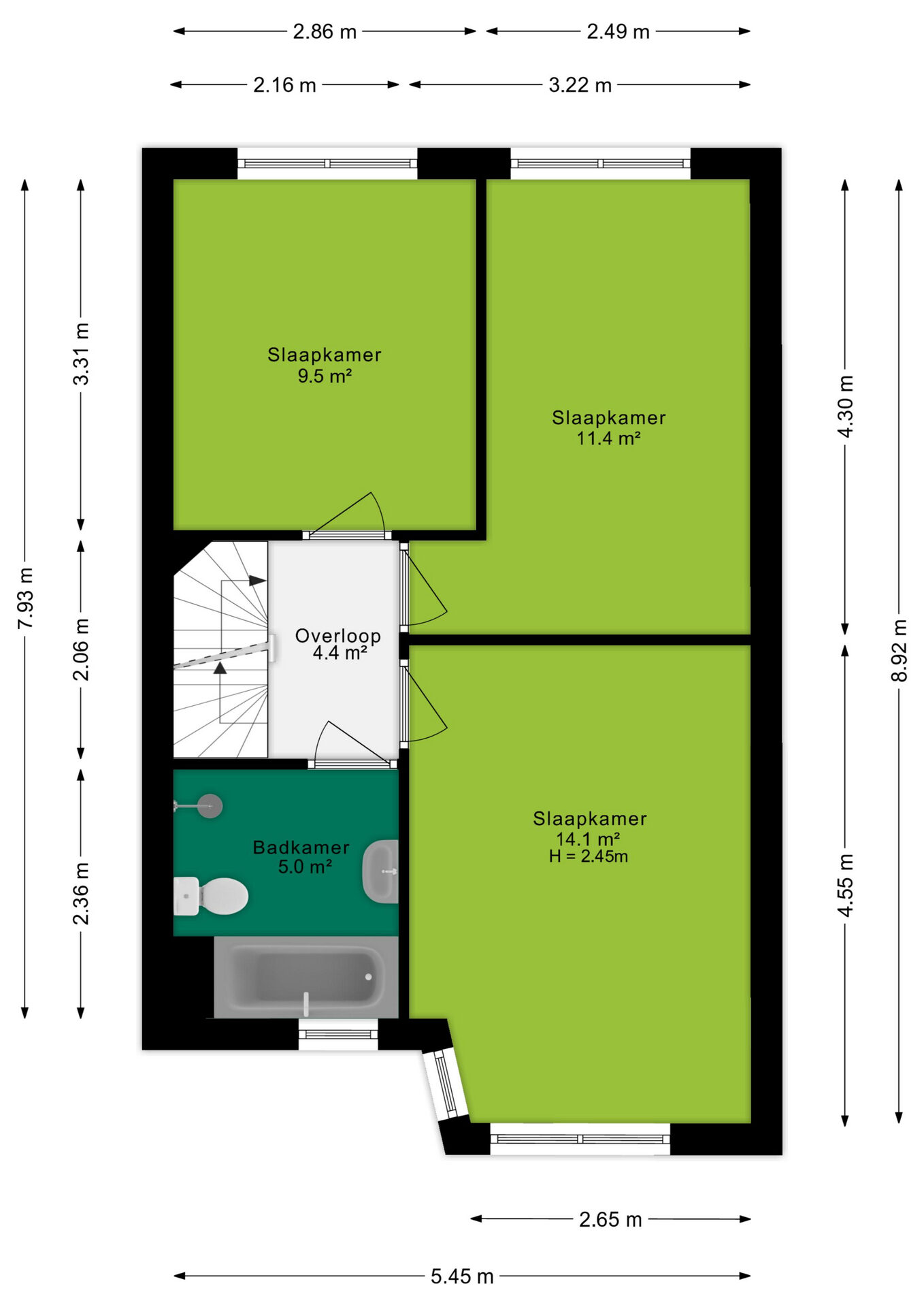
De eerste verdieping is ingericht met drie slaapkamers van 14,1 m², 11,4 m² en 9,5 m². Alle kamers zijn goed in te delen als slaap-, kinder- of werkkamer. Dankzij de rechte gevels gaat er nauwelijks ruimte verloren en profiteer je optimaal van de beschikbare vierkante meters. De badkamer is compleet ingericht met een ligbad, douche, toilet en wastafel – praktisch voor een gezin en comfortabel in gebruik.

Tweede verdieping
De tweede verdieping is verrassend ruim en biedt veel mogelijkheden. De overloop geeft toegang tot het balkon van 3,2 m² en een aparte wasruimte met C.V.-aansluiting en plek voor wasmachine en droger. Daarnaast zijn er nog twee slaapkamers, beide voorzien van daglicht. Deze kamers zijn ideaal als extra slaap-, werk- of hobbyruimte. Ook hier is de indeling flexibel, zodat de verdieping eenvoudig kan meegroeien met de wensen van de bewoners.

Buitenruimte
De achtertuin is gesitueerd op het zuidwesten en biedt daarmee volop middag- en avondzon. Direct bij de woning is een terras gecreëerd, perfect voor een grote eettafel of loungeset. Verder vind je in de tuin een houten berging, ideaal voor fietsen en tuingereedschap, en een achterom voor extra gemak. Het aanwezige zonnescherm maakt de tuin ook op warme dagen een prettige plek om te verblijven.

Bijzonderheden
- Bouwjaar 2001
- Woonoppervlakte 135 m²
- Perceeloppervlakte 204 m²
- Energielabel A
- 12 zonnepanelen en een thuisbatterij (opslagcapaciteit van 9.7 kWh, beide gehuurd € 65,33 per maand + € 94,23 per maand)
- 5 slaapkamers
- Parkeren op eigen terrein

Samenvatting
Cornelis Matelieffstraat 12 is een complete en ruime hoekwoning met vijf slaapkamers, een zonnige tuin en parkeren op eigen terrein. Dankzij de centrale ligging nabij voorzieningen, natuur en openbaar vervoer woon je hier comfortabel en energiezuinig in Almere Buiten.

Koopovereenkomst:
Bij de verkoop zal er een standaard NVM koopovereenkomst worden gehanteerd.
Bij woningen welke ouder zijn dan 20 jaar, wordt de volgende clausule opgenomen in de koopovereenkomst:
- Ouderdomsclausule.

Koop je de woning zonder voorbehoud van financiering? Dan zullen wij een termijn hanteren van 6 weken na het opstellen van de koopovereenkomst voor het storten van de bankgarantie/waarborgsom.
+ toon meer
1335 RL, Almere

Cornelis Matelieffstraat 12

Zaterdag 2 augustus 10:00 - 12:00 uur

€ 450.000 k.k.
ditters makelaars amersfoort
Kopen
Financiële mogelijkheden

Waardecheck

Onze makelaars kijken naar de lokale markt en vergelijkbare woningen in jouw buurt om een goede schatting te geven.
Onze makelaars kijken naar de lokale markt en vergelijkbare woningen in jouw buurt om een goede schatting te geven.
Goed om te weten: deze waardecheck is vrijblijvend en geheel kosteloos
Onafhankelijk

Hypotheekadvies

We helpen je met het vergelijken van aanbiedingen van verschillende banken, zodat je de beste deal krijgt. 
Wij staan klaar om je te begeleiden, zodat je met vertrouwen de juiste hypotheek kunt kiezen.
Goed om te weten: dit adviesgesprek is vrijblijvend en geheel kosteloos

Wij helpen jou bij de keuze van de juiste polis.

Bij een onbezorgde toekomst horen ook goede verzekeringen die uitkeren bij bijvoorbeeld ziekte, schade of diefstal. Onze assurantieadviseurs helpen je bij de keuze van de juiste polis. In heldere taal.

Diverse verzekeringen

  • Opstalverzekering
  • Aansprakelijkheidsverzekering
  • Zorgverzekering
  • Reisverzekering

Locatie

Belangrijke documenten

Lijst van zaken

Overzicht van de zaken die achterblijven of worden meegenomen door de huidige bewoners.

Vragenlijst

Hier deelt de verkoper belangrijke informatie over de staat en bijzonderheden van de woning.

Misschien interessant voor jou

Blijf op de hoogte

Ontvang als eerste updates over nieuw aanbod en mis geen enkele kans om jouw droomwoning te vinden.

Gratis waardebepaling of verkoopgesprek

Met de vrijblijvende waardecheck weet je snel waar je aan toe bent. Onze makelaars kijken naar de lokale markt en vergelijkbare woningen in jouw buurt om een goede schatting te geven.