Omschrijving

Wil jij wonen op een toplocatie in Vathorst, dicht bij alles wat je nodig hebt? Dan hebben wij de perfecte woning voor jou!

Gelegen aan het Drontermeer 1 in de geliefde en kindvriendelijke wijk Vathorst ligt deze zeer goed onderhouden, ruime en instapklare hoekwoning met energielabel A en maar liefst 6 slaapkamers.
Deze energiezuinige woning is gasloos en wordt zowel verwarmd als gekoeld door middel van een warmtepomp. Aan de eigen stroomvoorziening is gedacht met 8 zonnepanelen op het dak.

De wijk Vathorst heeft een gezellig winkelcentrum, treinstation, gezondheidscentrum, basisscholen, kinderdagverblijven en restaurants. Er zijn in de omgeving meerdere speeltuinen, parken en plantsoenen op loopafstand.

Deze woning is ideaal gelegen nabij Station Vathorst en het winkelcentrum. Je hoeft dus nooit ver te reizen voor je dagelijkse boodschappen of om de trein te pakken. Daarnaast bevinden zich ook basisscholen op steenworp afstand, ideaal voor gezinnen met kinderen.

Pluspunten van de woning op een rij:
+ Gelegen in de kindvriendeljke wijk Vathorst;
+ Nabij winkelcentrum Vathorst;
+ Basisscholen en kinderopvang binnen loopafstand;
+ Dichtbij station Amersfoort Vathorst;
+ Uitvalswegen A1 en A28 goed te bereiken;
+ Zeer ruime woning met maar liefst 6 slaapkamers;
+ Mooie keuken met inbouwapparatuur;
+ Vliering aanwezig voor extra bergruimte;
+ Achtertuin met houten berging en achterom;
+ Gasloze woning door de grond warmtepompinstallatie. Deze kan tevens de woning koelen!;
+ Elke verdieping is voorzien van vloerverwarming. De kamers op de eerste verdieping hebben allen een eigen zone regeling;
+ Instap klaar;
+ 8 zonnepanelen aanwezig (2024);
+ Energielabel A.

Indeling van de woning

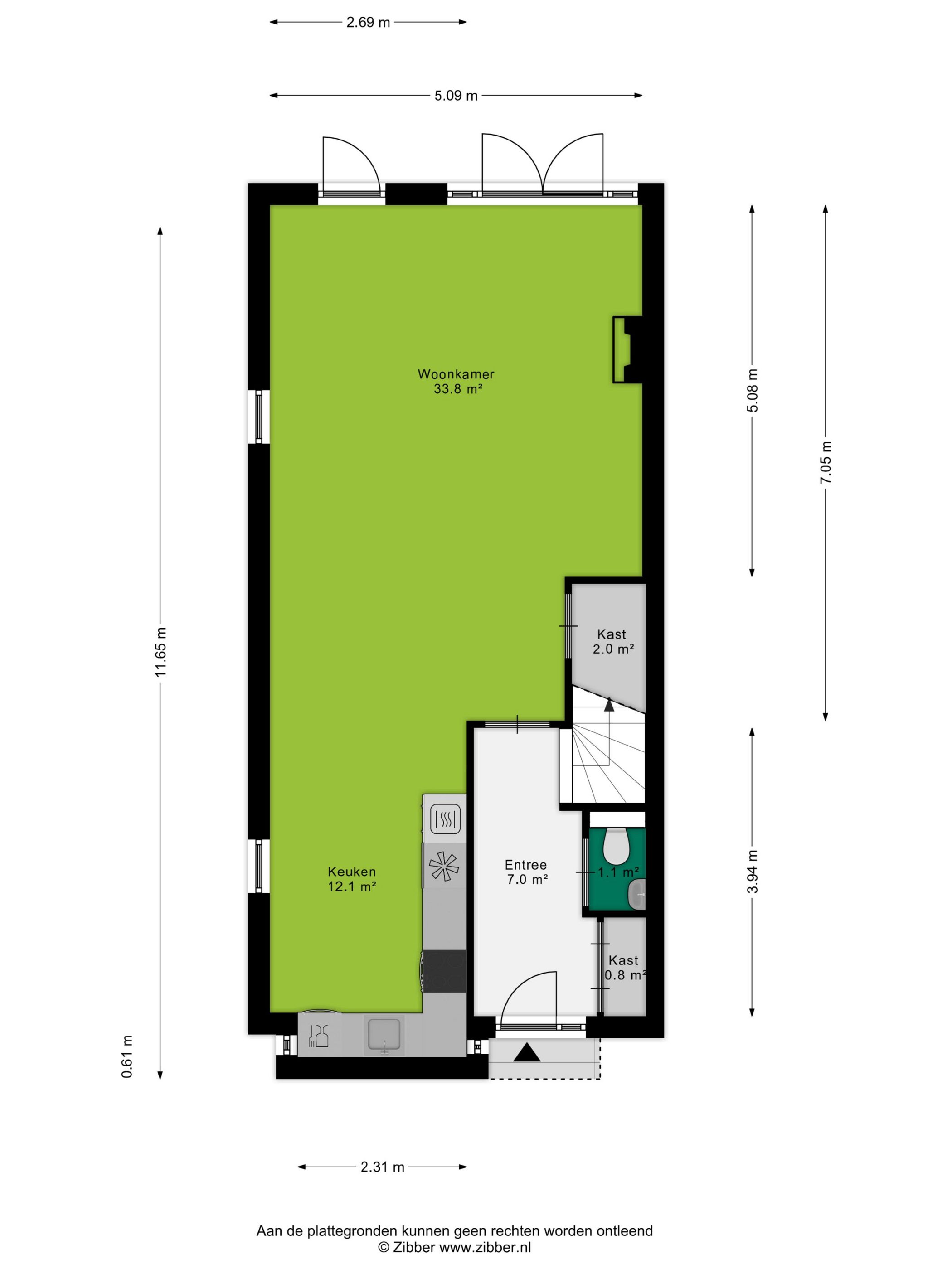
Begane grond
Ruime hal/entree met toegang tot de meterkast, de volledig betegelde toiletruimte met zwevend toilet en fonteintje, trapopgang naar de eerste verdieping en toegang tot aan de achterzijde gelegen ruime woonkamer met houtkachel en met openslaande deuren naar de achtertuin. Vanuit de woonkamer loop je via het eetgedeelte naar de aan de voorzijde gelegen keuken die is voorzien van diverse inbouwapparatuur waaronder:
+ koelkast;
+ afwasmachine;
+ oven;
+ magnetron;
+ inductiekookplaat;
+ afzuigkap.

De woonkamer is aan de achterzijde uitgebouwd en voorzien van grote raampartijen die zorgen voor een fijne lichtinval. De gehele begane grond is voorzien van glad gestucte wanden en een prachtige houten vloer.

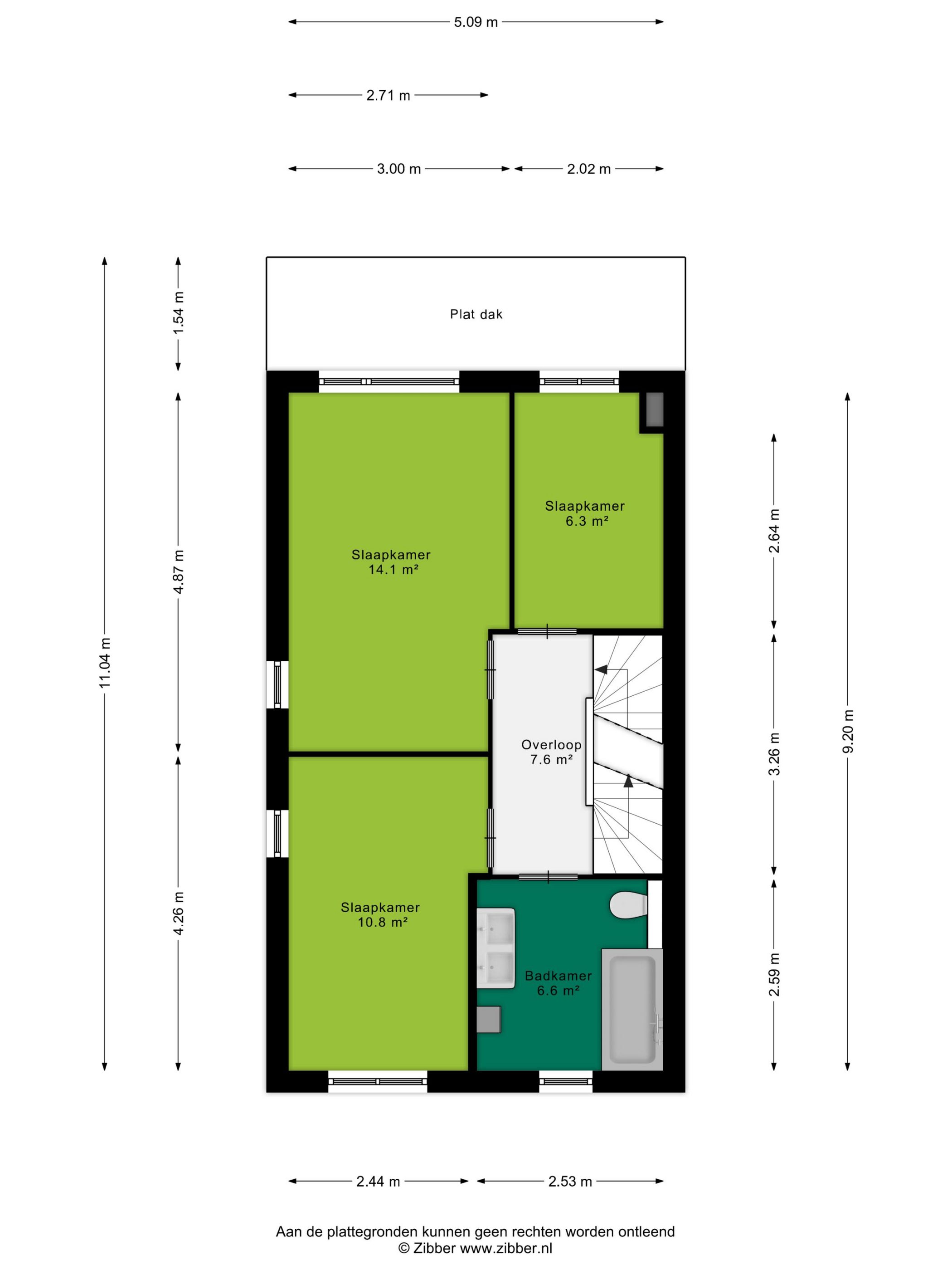
Eerste verdieping:
Vanaf de overloop zijn drie slaapkamers en de badkamer te bereiken. Twee slaapkamers zijn aan de achterzijde gelegen. Aan de voorzijde is hoofdslaapkamer. In de kamers en op de overloop ligt laminaat op de vloer.
De badkamer is ingedeeld met
+ een ligbad;
+ tweede toilet,
+ design wandradiator
+ dubbele wastafel;
+ wastafelmeubel.

Zowel de wanden als de vloer zijn geheel betegeld in een mooie kleurstelling.

Tweede verdieping:
Via een vaste trap bereik je de overloop van de tweede verdieping. Op de overloop is plaats voor de opstelling voor de wasmachine en droger en een vlizo trap naar de bergzolder. Verder zijn er drie slaapkamers aanwezig. Door de hoge nok van de woning zijn ook hier de slaapkamers ruim bemeten met respectievelijke oppervlaktes van ca. 8, 11 en 13m². De kleinere slaapkamer heeft een wastafel alsmede op de overloop is een wastafel aanwezig.

Vliering:
Veel opbergruimte door de hoge nok. In het midden is de hoogte hier zelfs nog 2.68 meter. Binnen de 1.50 bedraagt de oppervlakte van de vliering maar liefst 15 m².

Buiten:
De voortuin is grotendeels bestraat, hier is de ruimte om een auto te parkeren op eigen terrein.
Via de openslaande deuren in de woonkamer is de achtertuin met pergola te bereiken. De achtertuin heeft voldoende ruimte voor een gezellig zitje. De achtertuin is gelegen op het noorden en heeft voldoende zonlicht in de tuin (zie hiervoor ook de zonnestudio op onze eigen website.). Een zeer gezellige en knusse tuin met diverse zitgelegenheden die veel privacy hebben. Achterin de tuin de houten berging met opbergruimte.

Afmetingen
Perceeloppervlakte 195 m²
Inhoud woning 583 m³
Woonoppervlakte 149 m²

Bijzonderheden
Verwarming: Warmtepomp;
Isolatie: geheel;
Energielabel: A;
Bouwjaar: 2011;
Aanvaarding: In overleg;

Koopovereenkomst:
Bij de verkoop zal er een standaard NVM koopovereenkomst worden gehanteerd. Bij woningen welke ouder zijn dan 20 jaar, worden de volgende clausules opgenomen in de koopovereenkomst:
- Asbestclausule;
- Ouderdomsclausule.

Koopt u de woning zonder voorbehoud van financiering? Dan zullen wij een termijn hanteren van 14 dagen na het opstellen van de koopovereenkomst voor het storten van de bankgarantie/waarborgsom.

Deze informatie is door ons met de nodige zorgvuldigheid samengesteld. Onzerzijds wordt echter geen enkele aansprakelijkheid aanvaard voor enige onvolledigheid, onjuistheid of anderszins, dan wel de gevolgen daarvan. Alle opgegeven maten en oppervlakten zijn indicatief.
+ toon meer
3825 XK, Amersfoort

Drontermeer 1

Zaterdag 2 augustus 10:00 - 12:00 uur

€ 725.000 k.k.
ditters makelaars amersfoort
Kopen
Financiële mogelijkheden

Waardecheck

Onze makelaars kijken naar de lokale markt en vergelijkbare woningen in jouw buurt om een goede schatting te geven.
Onze makelaars kijken naar de lokale markt en vergelijkbare woningen in jouw buurt om een goede schatting te geven.
Goed om te weten: deze waardecheck is vrijblijvend en geheel kosteloos
Onafhankelijk

Hypotheekadvies

We helpen je met het vergelijken van aanbiedingen van verschillende banken, zodat je de beste deal krijgt. 
Wij staan klaar om je te begeleiden, zodat je met vertrouwen de juiste hypotheek kunt kiezen.
Goed om te weten: dit adviesgesprek is vrijblijvend en geheel kosteloos

Wij helpen jou bij de keuze van de juiste polis.

Bij een onbezorgde toekomst horen ook goede verzekeringen die uitkeren bij bijvoorbeeld ziekte, schade of diefstal. Onze assurantieadviseurs helpen je bij de keuze van de juiste polis. In heldere taal.

Diverse verzekeringen

  • Opstalverzekering
  • Aansprakelijkheidsverzekering
  • Zorgverzekering
  • Reisverzekering

Buurtinformatie

Amersfoort, De Bron-Zuid
Inwoners
Woningen
633
Inwoners
1.770
38
62
Koop / Huur
38% Huur62% Koop
Huishoudens
Eenpersoon
18.3%
Geen kinderen
23.8%
Met kinderen
57.1%
Leeftijdsopbouw in jaren
Buurt Landelijk
32.29.044.412.72.316.312.324.728.218.5

Locatie

Plattegronden

Klik op de plattegrond voor een grote weergave

Belangrijke documenten

Vragenlijst deelb

Hier deelt de verkoper belangrijke informatie over de staat en bijzonderheden van de woning.

Lijst van zaken

Overzicht van de zaken die achterblijven of worden meegenomen door de huidige bewoners.

Brochure

Bekijk hier alle details van de woning, compleet met foto's en beschrijvingen.

Misschien interessant voor jou

Blijf op de hoogte

Ontvang als eerste updates over nieuw aanbod en mis geen enkele kans om jouw droomwoning te vinden.

Gratis waardebepaling of verkoopgesprek

Met de vrijblijvende waardecheck weet je snel waar je aan toe bent. Onze makelaars kijken naar de lokale markt en vergelijkbare woningen in jouw buurt om een goede schatting te geven.