Omschrijving

Sfeervolle 2-onder-1-kapwoning met karakter, veranda en garage.

Deze charmante woning uit 1906 combineert authentieke details met modern wooncomfort. Met een woonoppervlakte van 87 m², twee slaapkamers, een moderne keuken en een zonnige tuin met veranda en stenen garage biedt deze woning een fijne balans tussen sfeer en functionaliteit. Dankzij energielabel B, vloerverwarming en acht zonnepanelen woon je hier comfortabel én energiezuinig.

Ligging
De woning ligt in het sfeervolle Leusderkwartier, een van de meest gewilde wijken van Amersfoort. Hier woon je op loopafstand van de Leusderweg met haar complete winkelaanbod, supermarkten en horeca, en op enkele minuten van de historische binnenstad. Ook scholen, kinderdagverblijven, sportvoorzieningen en het Centraal Station zijn snel bereikbaar. Voor natuurliefhebbers liggen Landgoed Den Treek en Bos Nimmerdor vlakbij — ideaal voor een wandeling of fietstocht. Via de A28 en de rondwegen ben je bovendien snel onderweg richting Utrecht, Leusden of de Gelderse Vallei.

Pluspunten
+ Uitgebouwde woonkamer
+ Betonvloer met vloerverwarming op de begane grond
+ Woonkamer en keuken voorzien van eikenhouten visgraat vloer
+ Fijne lichtstraat in de aanbouw voor extra veel lichtinval
+ Authentieke details behouden zoals het glas in lood
+ Veranda achter in de tuin
+ Houthaard in de woonkamer
+ Erker aan de voorzijde van de woning
+ Keuken en sanitair uit 2020
+ Volledig geïsoleerde garage met vliering
+ Energielabel B en 8 zonnepanelen
+ Geïsoleerde garage (parkeren, werkplaats, hobbyruimte)
+ De woning is in 2019/2020 volledig verbouwd en verbeterd

Indeling

Begane grond
Entree met hal en trapopgang naar de eerste verdieping. De woonkamer is aan de voorzijde gelegen en heeft een sfeervolle houthaard en een karakteristieke erker die zorgt voor extra lichtinval. De vloer, welke afgewerkt is met een eiken visgraat vloer, is geïsoleerd, uitgevoerd in beton en voorzien van vloerverwarming.

De keuken ligt aan de achterzijde en is uitgevoerd in een moderne rechte opstelling (2020) met inbouwapparatuur. Vanuit hier zijn de openslaande deuren naar de tuin bereikbaar.

Onder de trap bevindt zich een ruime provisiekast met nog een extra bergruimte die bereikbaar is middels een luik in de vloer met vaste trap naar de kelder toe. In de keuken bevindt zich tevens de toiletruimte.

De lichte en ruime woonkeuken zijn een ideale plek om het koken en borrelen met vrienden te combineren.

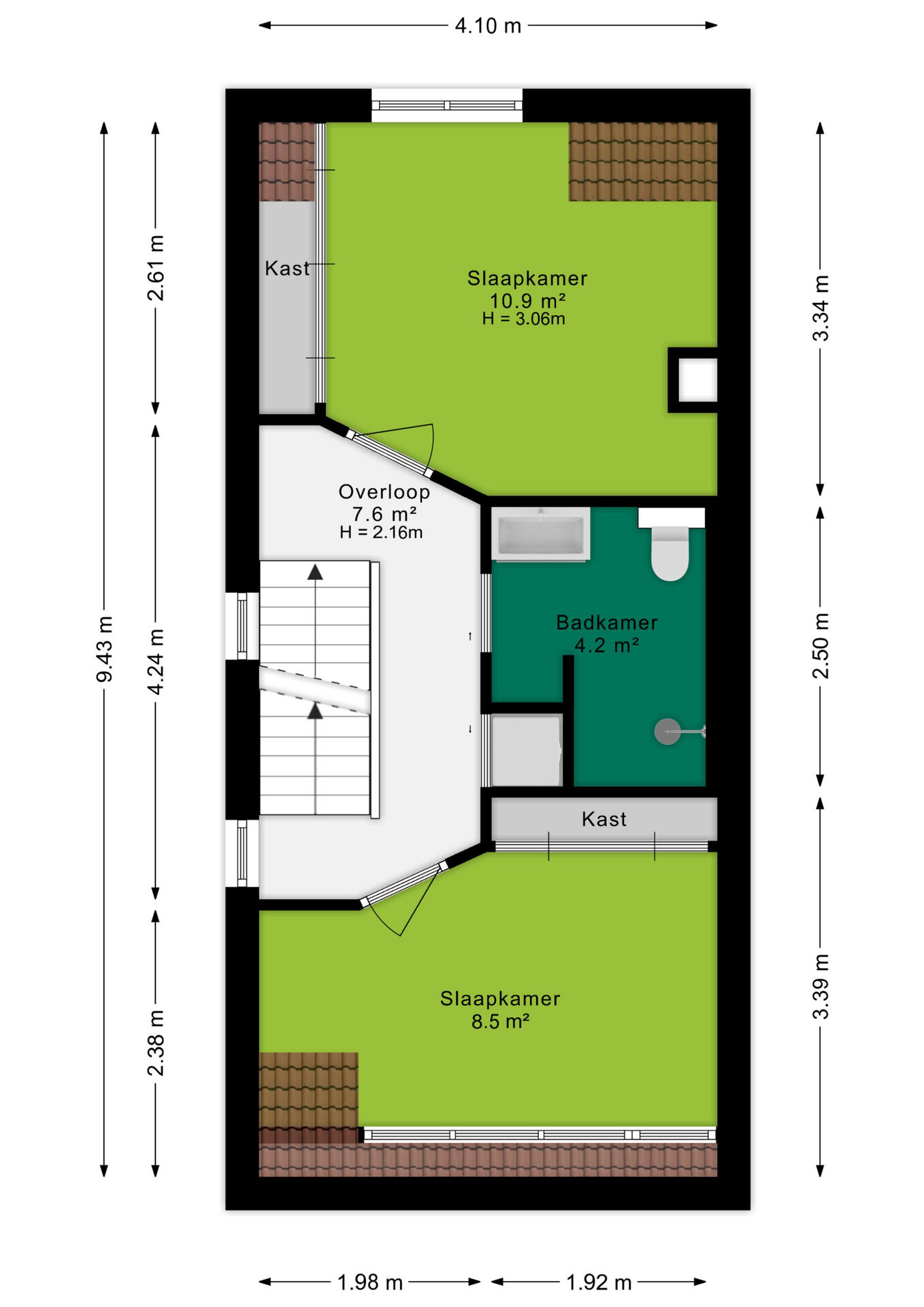
Eerste verdieping
Overloop met toegang tot twee slaapkamers en de badkamer.
Slaapkamer 1: circa 10,9 m², met vaste kast
Slaapkamer 2: circa 8,5 m², met vaste kast
De nette badkamer is voorzien van een douche, wastafel en tweede toilet. Ook hier is vloerverwarming aanwezig.

Tweede verdieping
Via een vaste trap bereikbare tweede verdieping. Deze is momenteel in gebruik als slaapkamer. Door de twee dakramen heb je hier een heerlijke lichtinval.

Buitenruimte
De achtertuin ligt op het noordwesten en biedt zowel zon als schaduw. Achter in de tuin staat een stenen schuur/garage met vliering — ideaal als werkplaats, berging, parkeerplaats of hobbyruimte. Deze is volledig geïsoleerd en voorbereidingen zijn getroffen voor verwarming (er ligt vloerverwarming op de begane grond), water aansluiting en afvoer. Deze ruimte kan hierdoor gemakkelijk in gebruik genomen worden als atelier of woning.

Voor de stenen schuur is een ruime veranda waar je heerlijk kunt zitten, beschut en met veel privacy. De hottub zorgt voor de ontspanning na een werkdag. De tuin is verder verzorgd aangelegd.

Bijzonderheden
- Bouwjaar 1906
- Woonoppervlakte 87 m²
- Perceeloppervlakte 175 m²
- Energielabel B
- 8 zonnepanelen
- Vloerverwarming in woonkamer en badkamer
- Keuken vernieuwd in 2020
- Buitenschilderwerk uitgevoerd in 2023
- Parkeren in de straat (openbaar)

Let op:
De woning heeft officieel 2 slaapkamers. De woning is aangemeld met een 3e slaapkamer. Dit is gedaan omdat deze momenteel ook op die manier in gebruik is. De 3e slaapkamer bevindt zich op de 2e verdieping, deze meters zijn niet opgenomen in het woonoppervlakte omdat de stahoogte niet boven de 2 meter is.

Samenvatting
Een sfeervolle 2-onder-1-kapwoning met authentieke details, een moderne keuken, vloerverwarming en een zonnige tuin met veranda en garage. Gelegen in het populaire Leusderkwartier, op loopafstand van winkels, het centrum en natuur, is dit een heerlijke plek voor wie charme, comfort en locatie wil combineren.

Koopovereenkomst
Bij de verkoop zal er een standaard NVM-koopovereenkomst worden gehanteerd. Bij woningen ouder dan 20 jaar worden de volgende clausules opgenomen in de koopovereenkomst:
- Asbestclausule
- Ouderdomsclausule
Koop je de woning zonder voorbehoud van financiering? Dan hanteren wij een termijn van zes weken na het opstellen van de koopovereenkomst voor het storten van de bankgarantie of waarborgsom. Deze informatie is met zorg samengesteld. Er wordt geen aansprakelijkheid aanvaard voor onvolledigheden of onjuistheden; alle opgegeven maten en oppervlakten zijn indicatief.
+ toon meer
3817 HA, Amersfoort

Everard Meysterweg 29

Zaterdag 2 augustus 10:00 - 12:00 uur

€ 630.000 k.k.
ditters makelaars amersfoort
Kopen
Financiële mogelijkheden

Waardecheck

Onze makelaars kijken naar de lokale markt en vergelijkbare woningen in jouw buurt om een goede schatting te geven.
Onze makelaars kijken naar de lokale markt en vergelijkbare woningen in jouw buurt om een goede schatting te geven.
Goed om te weten: deze waardecheck is vrijblijvend en geheel kosteloos
Onafhankelijk

Hypotheekadvies

We helpen je met het vergelijken van aanbiedingen van verschillende banken, zodat je de beste deal krijgt. 
Wij staan klaar om je te begeleiden, zodat je met vertrouwen de juiste hypotheek kunt kiezen.
Goed om te weten: dit adviesgesprek is vrijblijvend en geheel kosteloos

Wij helpen jou bij de keuze van de juiste polis.

Bij een onbezorgde toekomst horen ook goede verzekeringen die uitkeren bij bijvoorbeeld ziekte, schade of diefstal. Onze assurantieadviseurs helpen je bij de keuze van de juiste polis. In heldere taal.

Diverse verzekeringen

  • Opstalverzekering
  • Aansprakelijkheidsverzekering
  • Zorgverzekering
  • Reisverzekering

Buurtinformatie

Amersfoort, De Driehoek
Inwoners
Woningen
653
Inwoners
1.445
58
42
Koop / Huur
58% Huur42% Koop
Huishoudens
Eenpersoon
38.8%
Geen kinderen
23.9%
Met kinderen
35.8%
Leeftijdsopbouw in jaren
Buurt Landelijk
18.09.029.428.715.916.312.324.728.218.5

Locatie

Belangrijke documenten

Vragenlijst deelb

Hier deelt de verkoper belangrijke informatie over de staat en bijzonderheden van de woning.

Lijst van zaken

Overzicht van de zaken die achterblijven of worden meegenomen door de huidige bewoners.

Brochure

Bekijk hier alle details van de woning, compleet met foto's en beschrijvingen.

Misschien interessant voor jou

Blijf op de hoogte

Ontvang als eerste updates over nieuw aanbod en mis geen enkele kans om jouw droomwoning te vinden.

Gratis waardebepaling of verkoopgesprek

Met de vrijblijvende waardecheck weet je snel waar je aan toe bent. Onze makelaars kijken naar de lokale markt en vergelijkbare woningen in jouw buurt om een goede schatting te geven.