Smaakvol gerenoveerd hoek appartement in hartje Amersfoort!
Welkom bij Langegracht 4A: een schitterend gerenoveerd hoek appartement in het historische centrum van Amersfoort. In 2024 is deze woning van top tot teen aangepakt en omgetoverd tot een modern, stijlvol en instapklaar appartement.
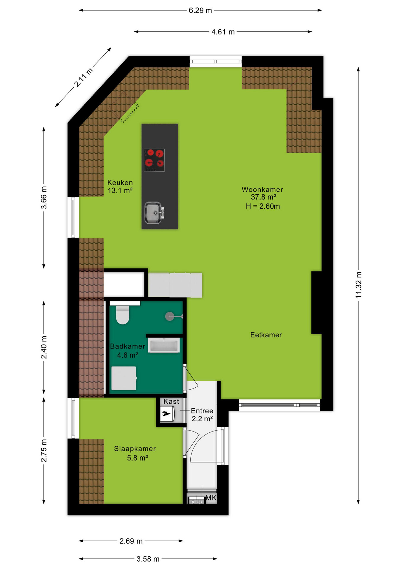
De schuine wanden geven karakter en extra ruimte.
Vanuit dit hoekappartement geniet je van een prachtig uitzicht op de Lieve Vrouwentoren, de karakteristieke Langegracht en de levendige Langestraat. Dankzij de gunstige ligging op de hoek geniet je van veel natuurlijk licht en kijk je uit op enkele van de gezelligste straten van Amersfoort. Stap je de deur uit, dan bevind je je direct tussen sfeervolle terrassen, restaurants en diverse winkels, stads wonen op z’n best.
Pluspunten:
+Gelegen in het bruisende centrum van Amersfoort
+Balkon op het westen
+Volledig gerenoveerd in 2024
+Nieuwe keuken met kookeiland 2024
+Moderne badkamer uit 2024
+Nieuwe vloer uit 2024
+Gestucte en geschilderde wanden in 2024
+Nieuwe meterkast en elektra in 2024
+Nieuwe houten kozijnen en buitendeur 2025
Indeling
Via de centrale entree op de begane grond kom je het gebouw binnen. Hier bevinden zich het bellentableau, een afgesloten portiek, de toegang tot het trappenhuis en de lift, evenals de bergingen in de onderbouw.
Op de vierde en tevens hoogste verdieping betreed je het appartement via de galerij.
Binnen valt meteen de mooie afwerking op: strak gestucte en fris geschilderde wanden, gecombineerd met een nieuwe vloer die zorgt voor een warme, eigentijdse uitstraling.
De nieuwe keuken is een echte eyecatcher, met een royaal kookeiland, perfect voor kookliefhebbers of gezellige avonden met vrienden.
Keuken is voorzien van:
+ AEG Oven
+ Siemens vaatwasser
+ BORA inductiekookplaat
+ Koelvriescombinatie
+ Quooker
Ook de badkamer is volledig vernieuwd en uitgevoerd in een moderne stijl, met fraaie marmerlook tegels, een stijlvol badkamermeubel en een praktische spiegelkast. In de badkamer bevindt zich tevens de aansluiting voor de wasmachine.
Badkamer is voorzien van:
+ Regendouche
+ Wastafel
+ Badmeubel
+ Zwevend toilet
+ wasmachine aansluiting
De slaapkamer is compact, maar praktisch ingedeeld. Er is nog voldoende ruimte voor hoge kasten.
Buiten
Het balkon ligt op het westen en grenst aan de galerij. Hier kun je heerlijk genieten van de zon vanaf de middag tot in de avond. Het allermooiste van het balkon is het uitzicht op de Lieve Vrouwentoren. Ook bevindt zich er nog een gemeenschappelijk dakterras op het westen.
Parkeren
In de binnenstad van Amersfoort kun je een parkeervergunning aanvragen zodra je eigenaar bent van het appartement en beschikt over een auto.
Langegracht 4A biedt de perfecte combinatie van een karakteristiek pand en hedendaags wooncomfort.
Afmetingen
Woonoppervlakte 55 m²
Inhoud woning 170 m³
Bijzonderheden
Verwarming CV ketel, (2023)
Energielabel C
Bouwjaar 1980
Balkon op het west
Aanvaarding In overleg
Ben jij op zoek naar een sfeervol appartement waar je zo in kunt? Neem dan snel contact op voor een bezichtiging!
Koopovereenkomst:
Bij de verkoop zal er een standaard NVM koopovereenkomst worden gehanteerd. Bij woningen welke ouder zijn dan 20 jaar, worden de volgende clausules opgenomen in de koopovereenkomst:
- Asbestclausule;
- Ouderdomsclausule.
Koopt u de woning zonder voorbehoud van financiering? Dan zullen wij een termijn hanteren van 14 dagen na het opstellen van de koopovereenkomst voor het storten van de bankgarantie/waarborgsom.
Deze informatie is door ons met de nodige zorgvuldigheid samengesteld. Onzerzijds wordt echter geen enkele aansprakelijkheid aanvaard voor enige onvolledigheid, onjuistheid of anderszins, dan wel de gevolgen daarvan. Alle opgegeven maten en oppervlakten zijn indicatief.