Aanbod

Verken ons aanbod. Van huur tot koop. En van nieuwbouw tot bouwkavel. Samen vinden we de plek waar jij je helemaal thuis voelt.

Diensten

Onze experts begeleiden je van A tot Z. Of je nu je huis wilt verkopen, op zoek bent naar je droomhuis of advies nodig hebt over hypotheken of verzekeringen. Met jarenlange ervaring en persoonlijke service zorgen we ervoor dat jij met een gerust hart de juiste keuzes maakt.

Over Ditters

Wij zijn Ditters. Verhalenvertellers. De schakel tussen droom en woning. We luisteren naar jouw wensen en maken op basis daarvan een plan.

Omschrijving

Op zoek naar een unieke woonplek in hartje Amersfoort?
Dit charmante appartement met tuin kan zomaar jouw nieuwe thuis worden. Gelegen op een karakteristieke locatie aan een van de sfeervolle grachten, bevindt deze woonruimte zich midden in de binnenstad van Amersfoort. Binnen enkele minuten lopen ben je op de Hof, het Lieve Vrouwenplein en natuurlijk midden in de bruisende stadskern.

De studio maakt deel uit van een kleinschalig complex uit het begin van de 20e eeuw en bevindt zich op de begane grond. Via de eigen entree krijg je toegang tot het appartement op de benedenverdieping. Elke woning beschikt over een eigen meterkast in de hal.

Pluspunten van het appartement op een rij:

+ Gelegen in het hartje centrum van Amersfoort
+ Aan de grachten van Amersfoort
+ Groene omgeving
+ Eigen tuin van 10 m²
+ Entresol gerealiseerd met slaap gelegenheid en badkamer
+ Keurige keuken  

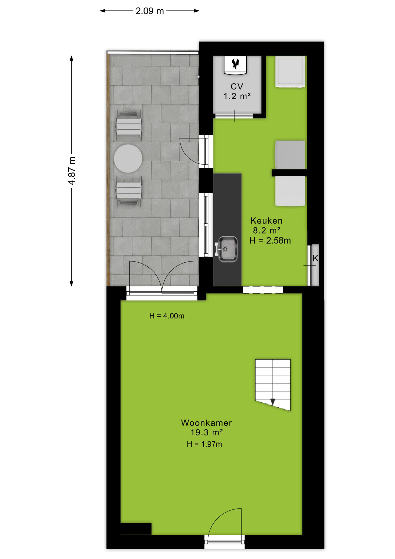
Indeling 
Bij binnenkomst loop je de lichte woonkamer binnen met een open vide en dubbele tuindeuren die uitkomen in je eigen tuin. Dankzij de hoge ramen geniet je hier de hele dag van prettig daglicht. Aan de achterzijde bevindt zich de keuken, met daarnaast een aparte ruimte voor was apparatuur en de cv-installatie. De keuken is eenvoudig van opzet maar netjes onderhouden.

Via een vaste trap bereik je de open entresol, waar ruimte is gecreëerd voor een comfortabele werkplek en een ruim slaapvertrek met een aangrenzende badkamer.

De badkamer is voorzien van:
+ Toilet
+ Douche

Tuin
Vanuit de woonkamer stap je zo de tuin in via de openslaande deuren. Zodra je de tuin instapt, valt direct de kalmte op, een zeldzame stilte in het levendige hart van Amersfoort.

Een zeer unieke plek die rust en toch midden in de stad wonen te bieden heeft. Een compact en uniek appartement. 

Afmetingen
Woonoppervlakte 30 m²
Inhoud woning 164 m³

Let op: De woning heeft een officieel woonoppervlak van circa 30 m² volgens de NEN 2580-meetinstructie. Dit komt doordat delen van de woning, zoals in dit geval de vide, niet voldoen aan de minimale hoogte-eisen van het Bouwbesluit. In de praktijk is er echter aanzienlijk meer bruikbare ruimte beschikbaar, wat zorgt voor extra comfort en flexibiliteit in het gebruik!

Bijzonderheden
Isolatie: dubbelglas;
Energielabel: C;
Bouwjaar: 1920;
Bijdrage VVE: 116 euro per maand;
Aanvaarding: In overleg.

Koopovereenkomst:
Bij de verkoop zal er een standaard NVM koopovereenkomst worden gehanteerd. Bij woningen welke ouder zijn dan 20 jaar, worden de volgende clausules opgenomen in de koopovereenkomst:
- Asbestclausule;
- Ouderdomsclausule.

Koopt u de woning zonder voorbehoud van financiering? Dan zullen wij een termijn hanteren van 14 dagen na het opstellen van de koopovereenkomst voor het storten van de bankgarantie/waarborgsom.

Deze informatie is door ons met de nodige zorgvuldigheid samengesteld. Onzerzijds wordt echter geen enkele aansprakelijkheid aanvaard voor enige onvolledigheid, onjuistheid of anderszins, dan wel de gevolgen daarvan. Alle opgegeven maten en oppervlakten zijn indicatief.
+ toon meer
deze woning is Verkocht

Zuidsingel 9 Amersfoort

Zuidsingel 9

3811 HA, Amersfoort
Ditters open huis: 5 april 2025 10:00 - 12:00 uur
Landelijke Open Huizen Route NVM: 5 april 2025 11:00 uur - 15:00 uur
Vanaf€ 235.000 k.k.

Schakel een aankoopmakelaar in.

Snel handelen helpt je jouw droomhuis te bemachtigen. Zo vergroot je de kans dat je er op tijd bij bent.
Amersfoort
verkocht

Of maak vrijblijvend een zoekprofiel aan.

Vergelijkbare woningen

Hypotheken

Onafhankelijk hypotheekadvies

  • Ligt jouw droomhuis binnen handbereik?
  • Wil je jouw huidige hypotheek verhogen?
  • Is er hypotheekruimte voor verduurzaming?

Blijf op de hoogte

Ontvang als eerste updates over nieuw aanbod en mis geen enkele kans om jouw droomwoning te vinden.

Gratis waardebepaling of verkoopgesprek

Met de vrijblijvende waardecheck weet je snel waar je aan toe bent. Onze makelaars kijken naar de lokale markt en vergelijkbare woningen in jouw buurt om een goede schatting te geven.

Realiseer al jouw woondromen met Ditters

Wij zijn een team van gedreven vastgoedexperts met een passie voor het maken van verbindingen – tussen kopers en verkopers, huurders en verhuurders. Met een frisse kijk op de makelaardij combineren we expertise met creativiteit. Onze makelaars luisteren écht en nemen de tijd om jouw wensen te begrijpen.


Bij Ditters sta je er niet alleen voor. We denken met je mee, begeleiden je in elke stap en zijn altijd bereikbaar voor vragen. Neem gerust contact met ons op – we helpen je graag verder!