Omschrijving

Perfect afgewerkte, volledig instapklare en centraal gelegen woning in het Soesterkwartier met 3 slaapkamers (mogelijkheid tot 4), uitbouw aan de achterzijde, balkon, veranda met glazen schuifpui en houtkachel, tuin op het zuiden en een woonoppervlak van 138 m²!

Deze woning is recent compleet gerenoveerd. Werkelijk alles is aangepakt, nieuwe vloeren, luxe badkamer en keuken, stucwerk, tot in detail verzorgd. Daarnaast combineert het huis comfort, functionaliteit en een gezinsvriendelijke buurt.

Geniet van de zonnige achtertuin op het zuiden, moderne voorzieningen en een bijzonder gunstige ligging; dichtbij scholen, winkels, zwembad en station Amersfoort-Centraal allemaal op loopafstand of korte fietsafstand. In de directe omgeving zijn sportvelden en de speeltuinen 'Soesterkwartier' en 'Rivierenbuurt'. Er kan voor de deur worden geparkeerd (op eigen terrein) en de snelwegen rond Amersfoort (A1/A28) zijn gemakkelijk en snel bereikbaar. Ook het Meander ziekenhuis en Dierenpark Amersfoort zijn in de nabije omgeving gelegen.

Kortom een bijzonder charmante woning met volop mogelijkheden gelegen in een zeer gewilde buurt van het Amersfoortse Soesterkwartier!

Pluspunten van de woning
+ Energielabel A;
+ Volledig instapklaar, perfecte afwerking;
+ Gelegen in een zeer gewilde wijk van Amersfoort;
+ 3 ruime slaapkamers (mogelijkheid tot 4 slaapkamers);
+ Grote dakopbouw waardoor een volwaardige 2e verdieping is ontstaan;
+ Nieuwe pannen en dakgoten (2023);
+ Volledig gerenoveerd in 2023;
+ Recent schilderwerk (2025);
+ Overwegend HR++ glas;
+ Vloerverwarming begane grond en in de toilet en badkamer;
+ Airco op de begane grond en verdiepingen;
+ Houtkachel in het tuinhuis;
+ Paneeldeuren;
+ Onderhoudsarme kozijnen.

Indeling

Begane grond
Bij binnenkomst merk je direct dat er aandacht is besteed aan de afwerking en inrichting van de woning.

Entree met toiletruimte, trapopgang naar de eerste verdieping en trapkast. Vanaf de oprit is er ook toegang tot de keuken met bijkeuken. Er zijn voorbereidingen getroffen om een laadpaal te kunnen plaatsen zodat je op eigen terrein je auto kan parkeren en opladen.

De luxe keuken aan de voorzijde is van alle gemakken voorzien, veel kastruimte en diverse inbouwapparatuur t.w.: 5-pits gasfornuis met oven, afzuigkap, koel-/vriescombinatie (met koud water en ijsblokjes) en vaatwasser. Vanuit de keuken kun je de bijkeuken in waar de C.V.-ketel hangt en er aansluitingen zijn voor de wasmachine en droger.

Zeer ruime en lichte woonkamer (44 m²) met glazen schuifpui van aluminium. Op de gehele begane grondvloer ligt een lichte gietvloer met vloerverwarming.

Eerste verdieping
Ruime overloop in de huidige staat, waarvan eenvoudig een extra slaapkamer gerealiseerd kan worden.

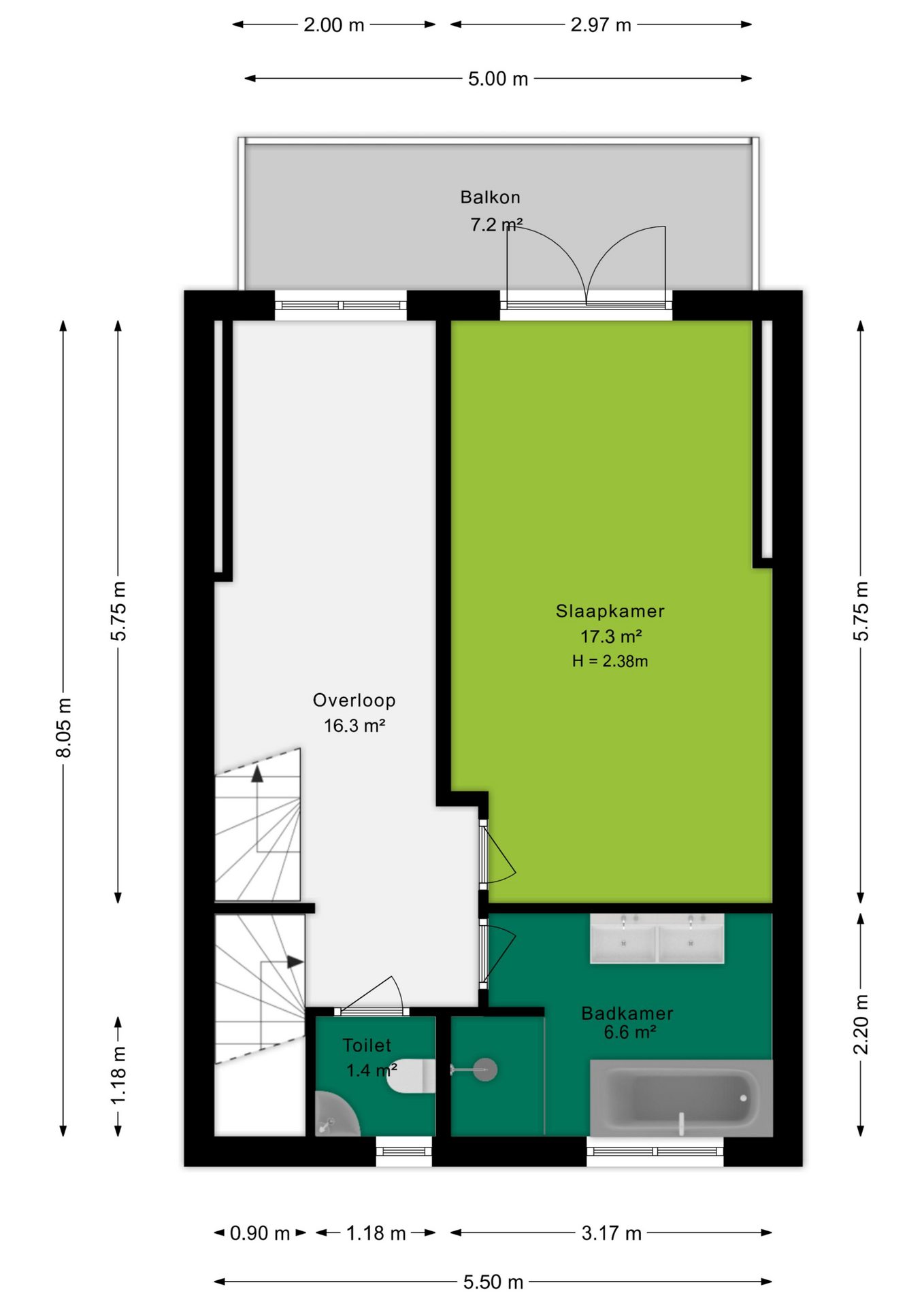
Er is toegang tot een zeer ruime slaapkamer (17 m²) met openslaande deuren naar het balkon (7 m²), de luxe badkamer en een separaat toilet. De badkamer is in 2023 geheel vernieuwd en voorzien van een ligbad, inloopdouche met stortdouche en stalen toegangsdeur, dubbele wastafel met lades, spiegel met ledlamp en verwarming tegen condens, designradiator, draai-/kiepraam voor natuurlijke ventilatie, elektrisch afzuigsysteem en elektrische vloerverwarming. Separate toiletruimte met hangend toilet, fonteintje en raam voor de ventilatie. De gehele 1e verdiepingsvloer (met uitzondering van de badkamer) is voorzien van dezelfde lichte gietvloer als de begane grond. Door de airco op de overloop kun je deze verdieping zowel verwarmen als koelen.

Tweede verdieping
Vaste trap naar de tweede verdieping. Overloop met toegang tot 2 slaapkamers. Beiden zeer strak afgewerkt met laminaatvloer in Hongaarse punt gelegd, grote dakkapellen en bergruimte achter de knieschotten.

Buitenruimte
En dan de tuin....wat een genot! Fraai aangelegd op het zonnige zuiden met fantastisch tuinhuis! Een perfecte plek om te ontspannen of te barbecueën met familie of vrienden. Compleet ingericht met buitenkeuken, aansluiting televisiescherm, glazen schuifwand, berging en deur naar de achtergelegen steeg. De voortuin/oprit is volledig betegeld en is er een fietsenschuur aanwezig. Ook bevindt zich hier de mogelijkheid een laadpaal te plaatsen (de voorbereidingen hiervoor zijn reeds getroffen).

Bijzonderheden
- Woonoppervlakte circa 138 m²
- Inhoud woning circa 465 m³
- Perceeloppervlakte 179 m²
- Verwarming C.V.-ketel, vloerverwarming
- Warm water C.V.-ketel
- Isolatie Volledig geïsoleerd
- Parkeren op eigen terrein en in de nabije omgeving
- Tuin op het zuiden

Samenvatting
Deze recent volledig gerenoveerde en tot in perfectie afgewerkte woning in het gewilde Soesterkwartier biedt 138 m² luxe wooncomfort, een zonnige tuin op het zuiden, 3 (mogelijk 4) slaapkamers en een stijlvolle uitbouw met veranda en glazen schuifpui. Dankzij de centrale ligging vlak bij scholen, winkels, station Amersfoort Centraal en uitvalswegen is dit een instapklare droomwoning waar je zó kunt intrekken.

Koopovereenkomst
Bij de verkoop zal een standaard NVM-koopovereenkomst worden gehanteerd.
Bij woningen ouder dan 20 jaar worden de volgende clausules opgenomen:
- Asbestclausule
- Ouderdomsclausule
Bij aankoop zonder financieringsvoorbehoud geldt een termijn van zes weken na het opstellen van de koopovereenkomst voor het storten van de waarborgsom of bankgarantie.

Deze informatie is met zorg samengesteld. Er wordt geen aansprakelijkheid aanvaard voor eventuele onvolledigheden of onjuistheden. Alle opgegeven maten en oppervlakten zijn indicatief.
+ toon meer

Video

3812 KK, Amersfoort

Schiestraat 90

Zaterdag 2 augustus 10:00 - 12:00 uur

€ 675.000 k.k.
ditters makelaars amersfoort
Kopen

Wat is jouw woning écht waard bij Ditters?

Waardecheck

Wij combineren lokale marktkennis met actuele data en ons grote zoekersbestand in de regio.

Je krijgt niet alleen een waarde, maar inzicht in hoe je de maximale verkoopopbrengst kunt realiseren.

Onze aanpak is strategisch, transparant en volledig afgestemd op jouw situatie.

Goed om te weten: deze waardecheck is vrijblijvend en geheel kosteloos
Onafhankelijk

Hypotheekadvies

We helpen je met het vergelijken van aanbiedingen van verschillende banken, zodat je de beste deal krijgt. 
Wij staan klaar om je te begeleiden, zodat je met vertrouwen de juiste hypotheek kunt kiezen.
Goed om te weten: dit adviesgesprek is vrijblijvend en geheel kosteloos

Wij helpen jou bij de keuze van de juiste polis.

Bij een onbezorgde toekomst horen ook goede verzekeringen die uitkeren bij bijvoorbeeld ziekte, schade of diefstal. Onze assurantieadviseurs helpen je bij de keuze van de juiste polis. In heldere taal.

Diverse verzekeringen

  • Opstalverzekering
  • Aansprakelijkheidsverzekering
  • Zorgverzekering
  • Reisverzekering

Buurtinformatie

Amersfoort, Rivierenbuurt-West
Inwoners
Woningen
543
Inwoners
1.265
50
50
Koop / Huur
50% Huur50% Koop
Huishoudens
Eenpersoon
35.1%
Geen kinderen
23.4%
Met kinderen
39.6%
Leeftijdsopbouw in jaren
Buurt Landelijk
20.611.131.225.712.316.312.324.728.218.5

Locatie

Plattegronden

Klik op de plattegrond voor een grote weergave

Belangrijke documenten

Lijst van zaken

Vragenlijst deel B

Brochure

Misschien interessant voor jou

Blijf op de hoogte

Ontvang als eerste updates over nieuw aanbod en mis geen enkele kans om jouw droomwoning te vinden.

Gratis waardebepaling of verkoopgesprek

Met de vrijblijvende waardecheck weet je snel waar je aan toe bent. Onze makelaars kijken naar de lokale markt en vergelijkbare woningen in jouw buurt om een goede schatting te geven.