Omschrijving

Sfeervolle tussenwoning met drie slaapkamers en diepe tuin in het Leusderkwartier.

Deze karaktervolle tussenwoning uit 1919 ligt in het geliefde Leusderkwartier en is op meerdere punten vernieuwd. Met 85 m² woonoppervlakte, drie slaapkamers, een diepe tuin op het oosten en een frisse en keurige afwerking is dit een fijne woning voor wie centraal en comfortabel wil wonen.

Ligging
De woning ligt in het populaire Leusderkwartier. Hier woon je op loopafstand van de Leusderweg met haar complete winkelaanbod, supermarkten en horeca, en op enkele minuten van de historische binnenstad. Het treinstation bereik je eenvoudig per fiets en scholen, opvang en een speeltuintje liggen in de directe omgeving. Met de auto ben je binnen vijf minuten op de A28, wat zorgt voor een goede bereikbaarheid richting Utrecht en Zwolle. Voor natuurliefhebbers liggen Landgoed Den Treek en Bos Nimmerdor vlakbij — ideaal voor een wandeling of fietstocht. Een prettige woonomgeving met alles binnen handbereik.

Pluspunten van de woning
+ Alle wanden en plafond gestuct
+ Eiken lamelparket
+ Openslaande deuren naar de tuin
+ HR++ glas in de gehele woning
+ Diepe achtertuin met stenen berging
+ Drie slaapkamers
+ Zeer ruime en praktische zolder bereikbaar met vlizotrap

Indeling

Begane grond
Via de entree kom je in de hal met trapopgang naar de eerste verdieping. De woonkamer is ruim en loopt door in een lange woon-/eetkamer. Dankzij de openslaande deuren aan de achterzijde is er een fijne verbinding met de tuin. In de woonkamer bevindt zich een praktische trap-/meterkast.

De open keuken is voorzien van een keukenblok met inbouwapparatuur en sluit goed aan op de leefruimte. Vanuit de tussenhal bereik je de tuin, het separate toilet en de badkamer. De badkamer is netjes ingericht en beschikt over een douche, vaste wastafel en de aansluiting voor de wasmachine.

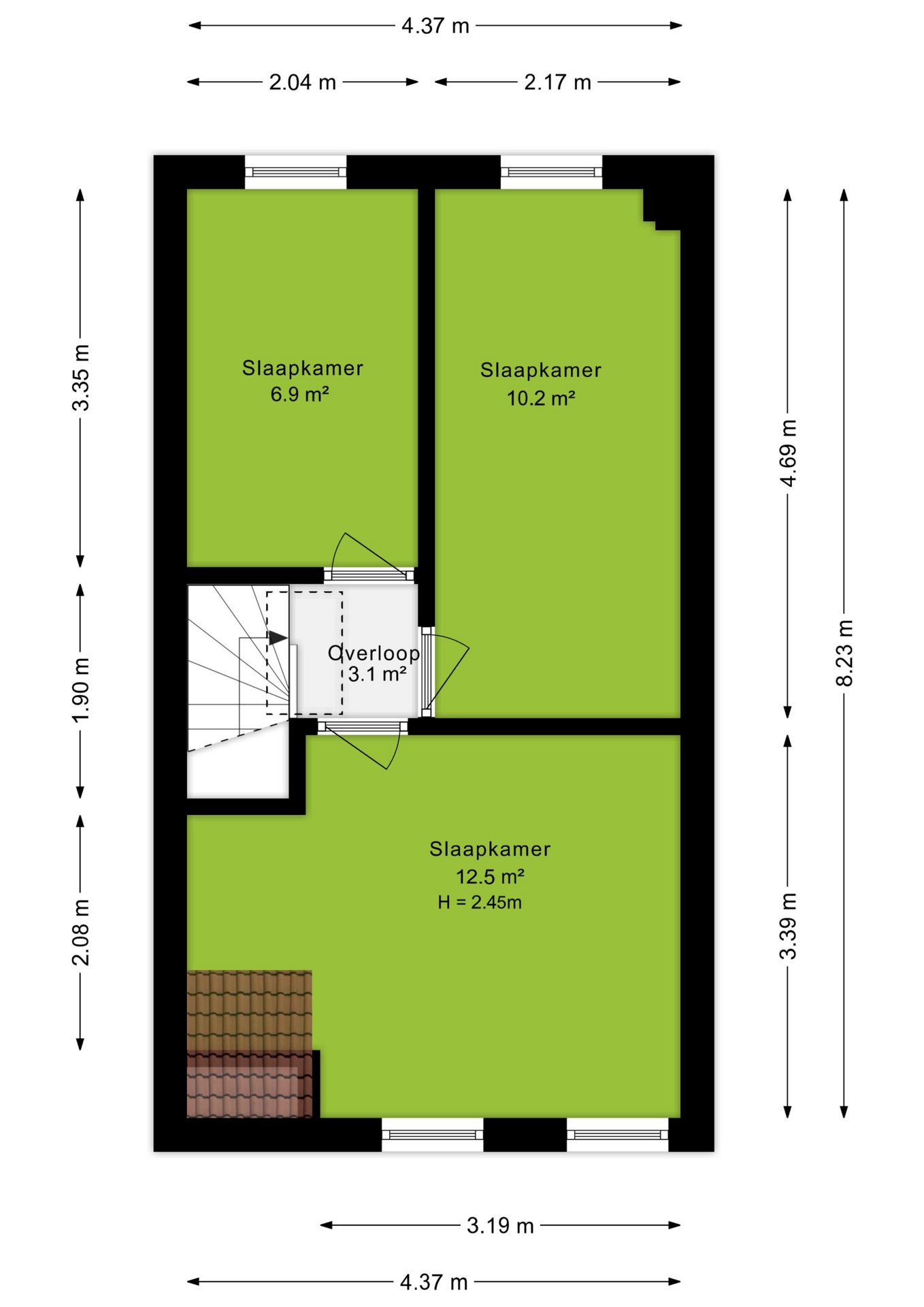
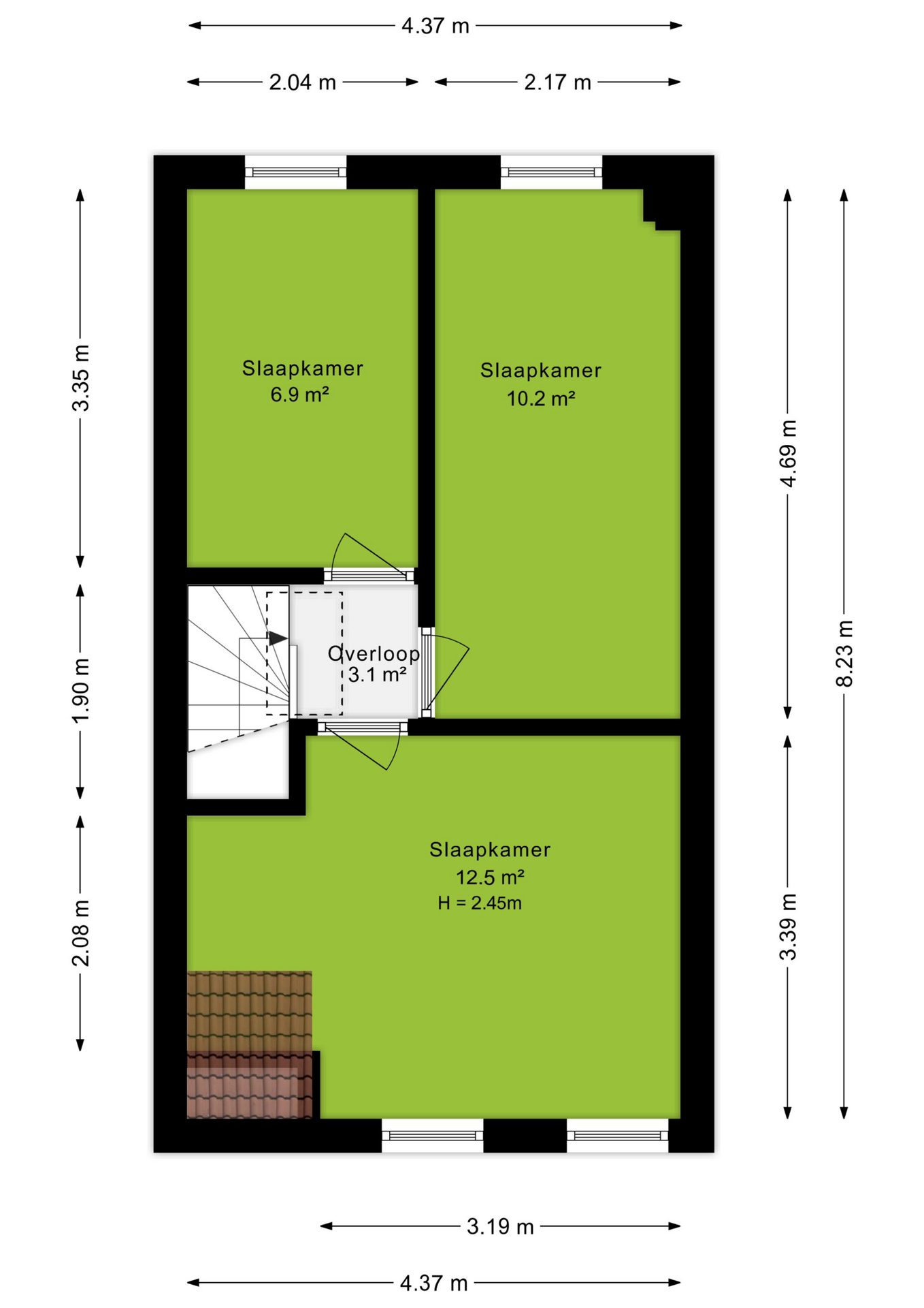
Eerste verdieping
Op de eerste verdieping bevinden zich drie slaapkamers. Eén slaapkamer ligt aan de voorzijde van de woning en twee slaapkamers aan de achterzijde. Alle kamers zijn functioneel in te delen en profiteren van daglicht.

Zolderverdieping
De zolder is bereikbaar via een vlizotrap. Hier bevindt zich de cv-combiketel en is extra bergruimte aanwezig.

Buitenruimte
De achtertuin ligt op het oosten en is diep van opzet. Hierdoor is er voldoende ruimte voor een terras en groen. De tuin is bereikbaar via een achterom en beschikt over een vrijstaande stenen berging, ideaal voor fietsen en tuinspullen.

Bijzonderheden
- Bouwjaar 1919
- Woonoppervlakte circa 85 m²
- Energielabel E (geldig tot 04-11-2027)
- Dubbele beglazing met HR++ glas
- CV-ketel Remeha Avanta 28C (2013)
- Diepe tuin met berging
- Openbaar parkeren in de wijk

Samenvatting
Een sfeervolle en goed onderhouden tussenwoning met drie slaapkamers, een diepe tuin en een fijne ligging in het Leusderkwartier. Ideaal voor wie centraal wil wonen met voorzieningen, groen en uitvalswegen dichtbij.

Koopovereenkomst
Bij de verkoop zal een standaard NVM-koopovereenkomst worden gehanteerd. Bij woningen ouder dan 20 jaar worden de volgende clausules opgenomen:
Asbestclausule
Ouderdomsclausule
Bij aankoop zonder financieringsvoorbehoud geldt een termijn van zes weken na het opstellen van de koopovereenkomst voor het storten van de waarborgsom of bankgarantie.

Deze informatie is met zorg samengesteld. Er wordt geen aansprakelijkheid aanvaard voor eventuele onvolledigheden of onjuistheden. Alle opgegeven maten en oppervlakten zijn indicatief.
+ toon meer

Video

3817 SL, Amersfoort

Woestijgerweg 40

Zaterdag 2 augustus 10:00 - 12:00 uur

€ 545.000 k.k.
ditters makelaars amersfoort
Kopen
Financiële mogelijkheden

Waardecheck

Onze makelaars kijken naar de lokale markt en vergelijkbare woningen in jouw buurt om een goede schatting te geven.
Onze makelaars kijken naar de lokale markt en vergelijkbare woningen in jouw buurt om een goede schatting te geven.
Goed om te weten: deze waardecheck is vrijblijvend en geheel kosteloos
Onafhankelijk

Hypotheekadvies

We helpen je met het vergelijken van aanbiedingen van verschillende banken, zodat je de beste deal krijgt. 
Wij staan klaar om je te begeleiden, zodat je met vertrouwen de juiste hypotheek kunt kiezen.
Goed om te weten: dit adviesgesprek is vrijblijvend en geheel kosteloos

Wij helpen jou bij de keuze van de juiste polis.

Bij een onbezorgde toekomst horen ook goede verzekeringen die uitkeren bij bijvoorbeeld ziekte, schade of diefstal. Onze assurantieadviseurs helpen je bij de keuze van de juiste polis. In heldere taal.

Diverse verzekeringen

  • Opstalverzekering
  • Aansprakelijkheidsverzekering
  • Zorgverzekering
  • Reisverzekering

Buurtinformatie

Amersfoort, De Driehoek
Inwoners
Woningen
653
Inwoners
1.445
58
42
Koop / Huur
58% Huur42% Koop
Huishoudens
Eenpersoon
38.8%
Geen kinderen
23.9%
Met kinderen
35.8%
Leeftijdsopbouw in jaren
Buurt Landelijk
18.09.029.428.715.916.312.324.728.218.5

Locatie

Plattegronden

Klik op de plattegrond voor een grote weergave

Belangrijke documenten

Brochure

Bekijk hier alle details van de woning, compleet met foto's en beschrijvingen.

Misschien interessant voor jou

Blijf op de hoogte

Ontvang als eerste updates over nieuw aanbod en mis geen enkele kans om jouw droomwoning te vinden.

Gratis waardebepaling of verkoopgesprek

Met de vrijblijvende waardecheck weet je snel waar je aan toe bent. Onze makelaars kijken naar de lokale markt en vergelijkbare woningen in jouw buurt om een goede schatting te geven.