Omschrijving

Gelegen in het Leusderkwartier aan de Réaumurstraat in Amersfoort ligt dit unieke 3-kamerappartement gelegen op de tweede woonlaag. Het appartement gevestigd op de hoek, heeft 2 balkons, 1 gelegen op het westen en de ander op het oosten. Genoeg mogelijkheid om te genieten van de zon!

Welkom in het geliefde Leusderkwartier, een perfecte mix van natuur en stedelijk gemak in Amersfoort! Een wijk met een unieke ligging. Zo is dit prachtige appartement gelegen nabij het bos Nimmerdor, ideaal voor ontspanning en lange wandelingen. Voor de boodschappen kan je terecht aan de Leusderweg, gelegen op loopafstand. De levendige binnenstad van Amersfoort ligt op slechts enkele minuten afstand, met een scala aan winkels, restaurants en cultuur. Tegenover het appartement complex is een speeltuin voor kinderen aanwezig. De nabijheid van belangrijke uitvalswegen zoals de A1 en A28 zorgt ervoor dat je altijd snel op weg bent naar jouw bestemming. Met een uitstekende verbinding naar Amersfoort Centraal Station, op slechts 10 minuten fietsafstand, reis je moeiteloos naar bruisende steden als Utrecht en Amsterdam.

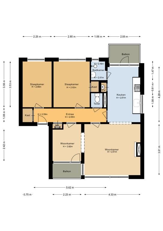
Op de begane grond bereik je via de hoofdentree met intercom de centrale hal met trappenhuis en berging.

Pluspunten van het appartement op een rij:

+ Zeer centrale ligging ten opzichte van stad en uitvalswegen;
+ Gelegen in het geliefde Leusderkwartier nabij de Leusderweg en binnenstad van Amersfoort;
+ Nabij het bos Nimmerdor met zijn groene omgeving;
+ Voormalig 4 kamer appartement waarbij een slaapkamer bij de woonkamer is gevoegd;'
+ Keurige keuken met doorkijk naar de woonkamer;
+ 2 balkons gelegen op het westen en oosten;
+ Een berging in de onderbouw;
+ Twee ruime slaapkamers;
+ Actieve VvE.

De indeling van het appartement is als volgt:
Vanuit de ruime hal zijn de slaapkamers, eetkamer, woonkamer, toiletruimte met fonteintje en keuken bereikbaar. Vanuit de keuken is de badkamer bereikbaar en de bergkast met cv-installatie.
De woonkamer is een lichte leefruimte met een groot raam aan de voorzijde en heeft een leuk doorkijkje naar de keuken. Vanuit de eetkamer heb je toegang tot het balkon aan de voorzijde en vanuit de keuken heb je toegang tot het balkon aan de achterzijde.

De keuken is voorzien van diverse inbouwapparatuur, waaronder begrepen:
+ 4 pits kookplaat;
+ Afzuigkap;
+ Oven;
+ Vaatwasser;
+ Wasmachine aansluiting.

De badkamer is voorzien van een:
+ Douche;
+ Wastafel;
+ Wastafelmeubel.

De berging bevindt zich in de onderbouw van het appartement.

Afmetingen
Inhoud woning 219 m³
Woonoppervlakte 66 m²

Bijzonderheden
Verwarming: CV-Ketel, eigendom;
Warm water: CV--Ketel, eigendom;
Isolatie: Dubbelglas, variërend van HR tot HR++;
Energielabel: D;
Bouwjaar: 1955;
Aanvaarding: In overleg;
Servicekosten € 179,46 per maand

Koopovereenkomst:
Bij de verkoop zal er een standaard NVM koopovereenkomst worden gehanteerd. De volgende clausules worden opgenomen in de koopovereenkomst:
- Asbestclausule;
- Ouderdomsclausule;
- Niet bewoners clausule.

Koopt u de woning zonder voorbehoud van financiering? Dan zullen wij een termijn hanteren van 14 dagen na het opstellen van de koopovereenkomst voor het storten van de bankgarantie/waarborgsom.

Deze informatie is door ons met de nodige zorgvuldigheid samengesteld. Onzerzijds wordt echter geen enkele aansprakelijkheid aanvaard voor enige onvolledigheid, onjuistheid of anderszins, dan wel de gevolgen daarvan. Alle opgegeven maten en oppervlakten zijn indicatief.
+ toon meer
deze woning is Verkocht

Reaumurstraat 13 B Amersfoort

Reaumurstraat 13 B

3817 ZK, Amersfoort
Ditters open huis: 5 april 2025 10:00 - 12:00 uur
Landelijke Open Huizen Route NVM: 5 april 2025 11:00 uur - 15:00 uur
Vanaf€ 335.000 k.k.

Schakel een aankoopmakelaar in.

Snel handelen helpt je jouw droomhuis te bemachtigen. Zo vergroot je de kans dat je er op tijd bij bent.
Amersfoort
verkocht

Of maak vrijblijvend een zoekprofiel aan.

Vergelijkbare woningen

Hypotheken

Onafhankelijk hypotheekadvies

  • Ligt jouw droomhuis binnen handbereik?
  • Wil je jouw huidige hypotheek verhogen?
  • Is er hypotheekruimte voor verduurzaming?

Blijf op de hoogte

Ontvang als eerste updates over nieuw aanbod en mis geen enkele kans om jouw droomwoning te vinden.

Gratis waardebepaling of verkoopgesprek

Met de vrijblijvende waardecheck weet je snel waar je aan toe bent. Onze makelaars kijken naar de lokale markt en vergelijkbare woningen in jouw buurt om een goede schatting te geven.

Realiseer al jouw woondromen met Ditters

Wij zijn een team van gedreven vastgoedexperts met een passie voor het maken van verbindingen – tussen kopers en verkopers, huurders en verhuurders. Met een frisse kijk op de makelaardij combineren we expertise met creativiteit. Onze makelaars luisteren écht en nemen de tijd om jouw wensen te begrijpen.


Bij Ditters sta je er niet alleen voor. We denken met je mee, begeleiden je in elke stap en zijn altijd bereikbaar voor vragen. Neem gerust contact met ons op – we helpen je graag verder!