Aanbod

Verken ons aanbod. Van huur tot koop. En van nieuwbouw tot bouwkavel. Samen vinden we de plek waar jij je helemaal thuis voelt.

Diensten

Onze experts begeleiden je van A tot Z. Of je nu je huis wilt verkopen, op zoek bent naar je droomhuis of advies nodig hebt over hypotheken of verzekeringen. Met jarenlange ervaring en persoonlijke service zorgen we ervoor dat jij met een gerust hart de juiste keuzes maakt.

Over Ditters

Wij zijn Ditters. Verhalenvertellers. De schakel tussen droom en woning. We luisteren naar jouw wensen en maken op basis daarvan een plan.

Omschrijving

Welkom in Résidence Gelre! Dit opvallend ruime appartement biedt een unieke kans voor liefhebbers van royaal en comfortabel wonen op loopafstand van het bruisende hart van Arnhem.

Het royale en speels ingedeelde 3-appartement (woonkamer, slaapkamer en werkkamer) van maar liefst 107m² is gelegen op de benedenverdieping van het verzorgde exclusieve appartementencomplex. Deze benedenwoning is markant op een hoek gelegen met een eigen entree. De eigen entree is ideaal voor een ieder die een hoge mate van privacy belangrijk vindt. Het appartement is voorzien van energielabel A. Op het beveiligde en afgesloten parkeerterrein, middels een op afstand bedienbare poort te betreden, bevindt zich direct achter de woning een eigen parkeerplaats.

Het complex, gebouwd in 2002, is hoogwaardig afgewerkt en heeft een prachtige statige bouwstijl. De Vereniging van Eigenaren is goed functionerend. Het appartement is optimaal geïsoleerd (o.a. dak-, muur- en vloerisolatie) en is geheel v.v. dubbel glas. Tevens beschikt het appartement over een warmte-terugwininstallatie. Dit heeft als voordeel dat de energiekosten van de woning laag zijn. Verwarming en warm water worden geregeld middels een HR cv-combiketel uit 2020. Op initiatief van de VvE zijn er 72 zonnepanelen op het gebouw geïnstalleerd, ten behoeve van stroom voor de algemene voorzieningen.

Résidence Gelre is een modern appartementencomplex in het levendige en bruisende Boulevardkwartier, gelegen in de wijk ‘Het Spijkerkwartier’. Er staan veel negentiende-eeuwse, karakteristieke herenhuizen en de ligging aan de rand van het Arnhemse stadshart is fantastisch. Het centrum met haar vele restaurants, theaters, winkels en boetiekjes en het bruisende uitgaansleven is wandelend door park Lauwersgracht en langs Musis Sacrum in enkele minuten bereikbaar. Ook de vernieuwde Rijnkade, de Uiterwaarden, groengebied Meinerswijk en de bekende stadsparken Sonsbeek en Zijpendaal zijn zeer nabij. NS station Arnhem Centraal en Velperpoort liggen op loop-/fietsafstand en de (snel)wegen A325, A15, A50 en de Pleijroute zijn eenvoudig en snel te bereiken.

Alle feiten op een rij:
- Royaal en speels ingedeelde benedenwoning met 107m² woonoppervlakte
- Eigen entree zorgt voor een hoge mate van privacy
- Direct achter de woning, op het afgesloten parkeerterrein, beschik je over een eigen parkeerplaats
- Bescheiden terrasje waar je - zeker in de ochtendzon - heerlijk buiten kunt zitten
- Praktische berging waar je je fiets of (seizoens)spullen kunt stallen
- Gelegen nabij diverse voorzieningen zoals het Arnhemse binnenstad, NS station, uitvalswegen en parken
- Het appartement is voorzien van energielabel A en beschikt over een warmte-terugwininstallatie

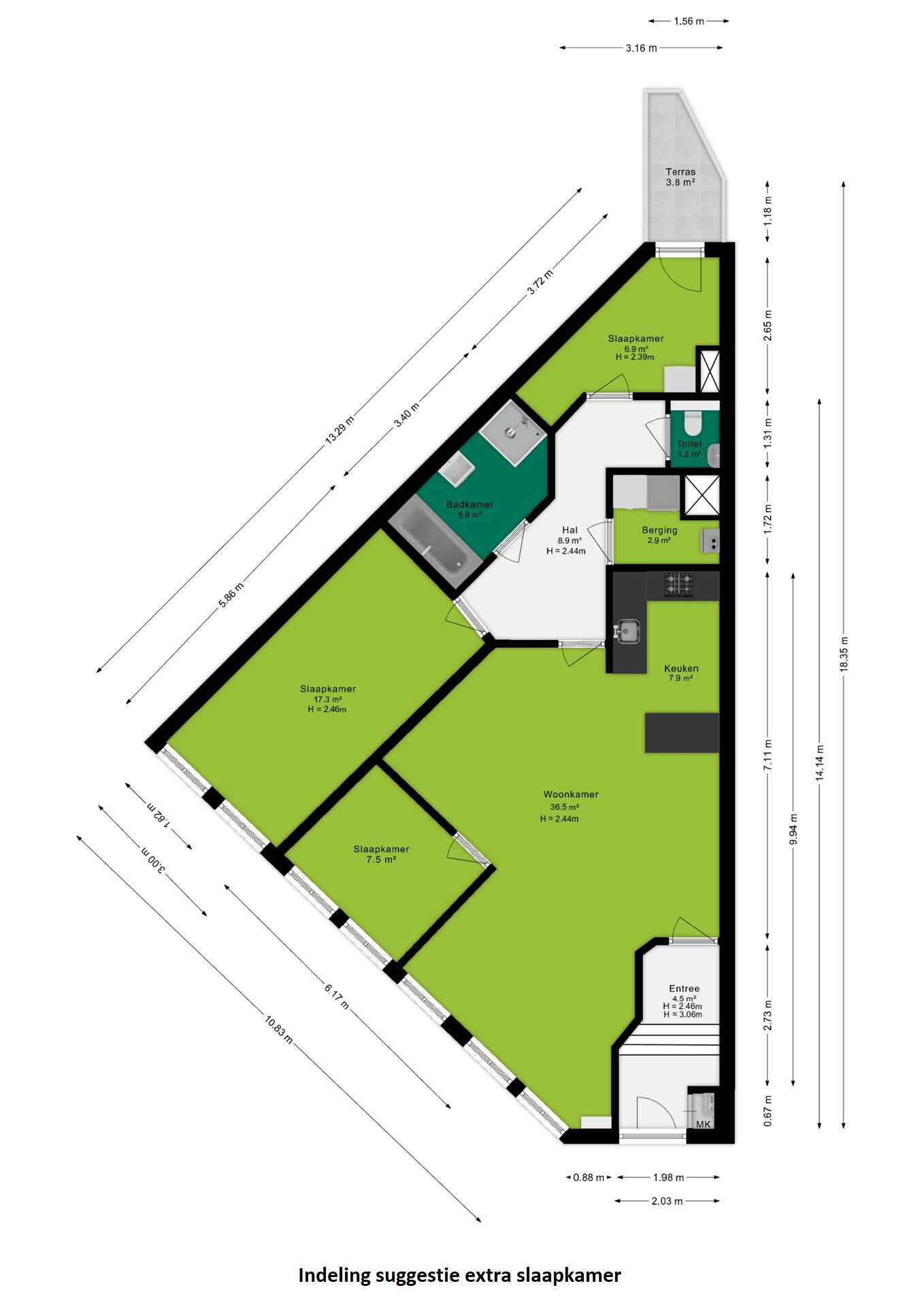
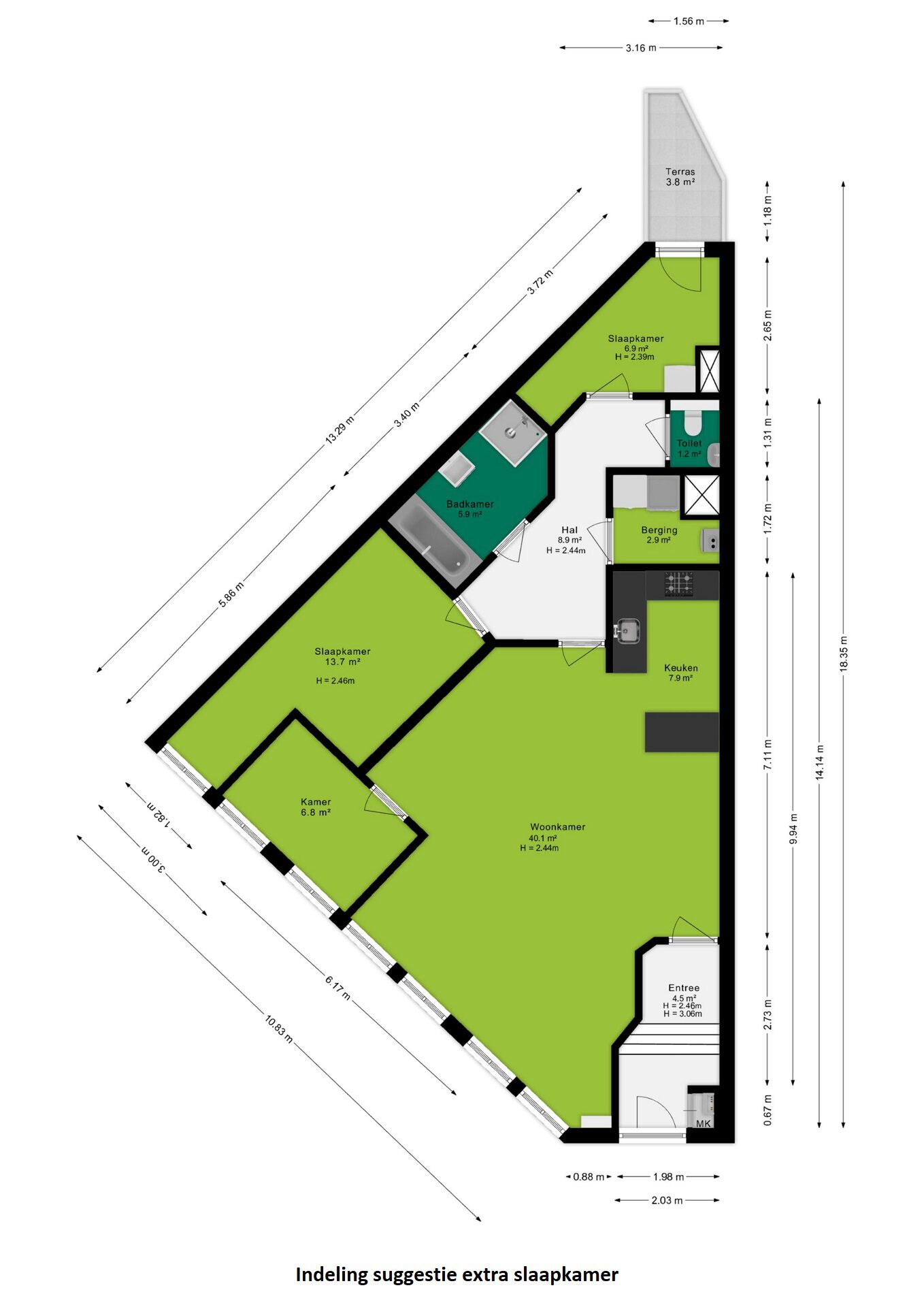
Indeling
Vanuit de ruime hal kom je in de bijzonder grote woonkamer met open verbinding naar de praktische keuken. Deze opvallende ruimtes, samen circa 52m², bieden meer dan voldoende plek om optimaal te kunnen leven. De huidige inrichting bestaat uit een heerlijke loungebank, een 8-persoons eettafel en een bar bij de keuken. De keuken is opgesteld in een hoekkeuken met diverse apparatuur. De gehele ruimte beschikt over grote raampartijen. Allen voorzien van plisségordijnen, wederom voor gewenste privacy of juist heerlijk vrij uitzicht.

Via de hal in het midden van de woning bereik je o.a. de - eveneens - enige, maar grote slaapkamer van ruim 17m². Met de mogelijkheid om deze eenvoudig te splitsen om een slaapkamer én een aparte inloopkast te realiseren.

Ook vind je aan de achterzijde van de woning een -driehoekige- kamer/doorloop naar buiten voor bijvoorbeeld een thuiswerkplek, opslag of (kleding)kasten.

Het appartement biedt een nette badkamer met ligbad, douchecabine en wastafel. En er is een apart toilet met een fonteintje. In de waskamer/bijkeuken treft je de opstelplaats voor de mechanische ventilatie/warmte-terug-win systeem en C.V.-ketel aan. Hier bevindt zich eveneens de wasmachine/droger-aansluiting.

Via de buitendeur aan de achterkant van het appartement bereik je direct de (beveiligde) privé parkeerplaats. In de onderbouw is er een ruime berging aanwezig waar je je fiets of (seizoen)spullen kunt stallen. Op het afgesloten parkeerterrein zelf bevind zich eveneens een fietsenstalling.

Koopovereenkomst:
Bij de verkoop zal er een standaard NVM koopovereenkomst worden gehanteerd. Bij woningen welke ouder zijn dan 20 jaar, worden de volgende clausules opgenomen in de koopovereenkomst:
- Asbestclausule
- Ouderdomsclausule

Koop je de woning zonder voorbehoud van financiering? Dan zullen wij een termijn hanteren van 14 dagen na het opstellen van de koopovereenkomst voor het storten van de bankgarantie/waarborgsom.

Deze informatie is door ons met de nodige zorgvuldigheid samengesteld. Onzerzijds wordt echter geen enkele aansprakelijkheid aanvaard voor enige onvolledigheid, onjuistheid of anderszins, dan wel de gevolgen daarvan. Alle opgegeven maten en oppervlakten zijn indicatief.
+ toon meer
6828 JX, Arnhem

Gravenstraat 2 A

Zaterdag 2 augustus 10:00 - 12:00 uur

€ 419.500 k.k.
ditters makelaars arnhem
Kopen
Financiële mogelijkheden

Waardecheck

Onze makelaars kijken naar de lokale markt en vergelijkbare woningen in jouw buurt om een goede schatting te geven.
Onze makelaars kijken naar de lokale markt en vergelijkbare woningen in jouw buurt om een goede schatting te geven.
Goed om te weten: deze waardecheck is vrijblijvend en geheel kosteloos
Onafhankelijk

Hypotheekadvies

We helpen je met het vergelijken van aanbiedingen van verschillende banken, zodat je de beste deal krijgt. 
Wij staan klaar om je te begeleiden, zodat je met vertrouwen de juiste hypotheek kunt kiezen.
Goed om te weten: dit adviesgesprek is vrijblijvend en geheel kosteloos

Wij helpen jou bij de keuze van de juiste polis.

Bij een onbezorgde toekomst horen ook goede verzekeringen die uitkeren bij bijvoorbeeld ziekte, schade of diefstal. Onze assurantieadviseurs helpen je bij de keuze van de juiste polis. In heldere taal.

Diverse verzekeringen

  • Opstalverzekering
  • Aansprakelijkheidsverzekering
  • Zorgverzekering
  • Reisverzekering

Buurtinformatie

Arnhem, Boulevardwijk
Inwoners
Woningen
948
Inwoners
1.875
64
35
Koop / Huur
64% Huur35% Koop
Huishoudens
Eenpersoon
74.1%
Geen kinderen
16.7%
Met kinderen
8.7%
Leeftijdsopbouw in jaren
Buurt Landelijk
6.425.338.722.46.716.312.324.728.218.5

Locatie

Belangrijke documenten

Brochure

Bekijk hier alle details van de woning, compleet met foto's en beschrijvingen.

Misschien interessant voor jou

Blijf op de hoogte

Ontvang als eerste updates over nieuw aanbod en mis geen enkele kans om jouw droomwoning te vinden.

Gratis waardebepaling of verkoopgesprek

Met de vrijblijvende waardecheck weet je snel waar je aan toe bent. Onze makelaars kijken naar de lokale markt en vergelijkbare woningen in jouw buurt om een goede schatting te geven.