Aanbod

Verken ons aanbod. Van huur tot koop. En van nieuwbouw tot bouwkavel. Samen vinden we de plek waar jij je helemaal thuis voelt.

Diensten

Onze experts begeleiden je van A tot Z. Of je nu je huis wilt verkopen, op zoek bent naar je droomhuis of advies nodig hebt over hypotheken of verzekeringen. Met jarenlange ervaring en persoonlijke service zorgen we ervoor dat jij met een gerust hart de juiste keuzes maakt.

Over Ditters

Wij zijn Ditters. Verhalenvertellers. De schakel tussen droom en woning. We luisteren naar jouw wensen en maken op basis daarvan een plan.

Omschrijving

Ben je op zoek naar een ruime gezinswoning met 120m² woonoppervlakte, 4 slaapkamers en een tuin op het westen? En het liefst gelegen in de geliefde wijk De Laar-West? Dan is deze eindwoning met 16 stuks zonnepanelen gelegen in een kindvriendelijke wijk wellicht jouw nieuwe droomwoning.

De lichte woonkamer, met aan de achterzijde een ruime leefkeuken voorzien van diverse ingebouwde apparatuur, zorgt ervoor dat het hele gezin hier volop kan genieten. Op de verdiepingen tref je in totaal vier slaapkamers en een badkamer uit 2020. Maak snel een afspraak om de woning te bezichtigen!

De woning is gelegen in de kindvriendelijke woonwijk De Laar-West (Arnhem-Zuid). Een centrale ligging ten opzichte van (internationale) scholen, kinderopvang, sportvoorzieningen, busverbindingen, dichtbij NS-station Arnhem-Zuid, het bruisende winkelcentrum en diverse uitvalswegen zoals de A325, A12, A15 en A50. Kortom, een ideale rustige ligging met alle voorzieningen, meerdere parken en wandelgebieden in de nabije omgeving.

Alle kenmerken op een rij:
- Lichte eindwoning in de geliefde woonwijk De Laar- West
- Moderne keuken uit 2017 met diverse inbouwapparatuur
- Voorzien van 4 slaapkamers
- Moderne badkamer uit 2020 met vloerverwarming
- Heerlijke tuin gelegen op het westen, met achterom en berging
- Op korte afstand van diverse winkels en voorzieningen

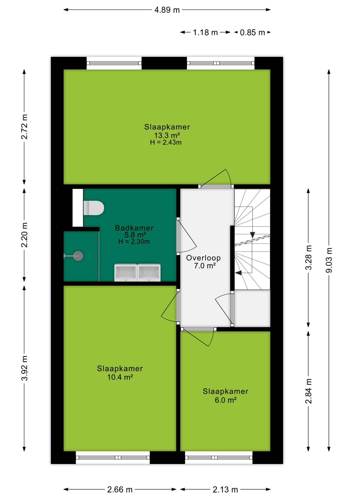
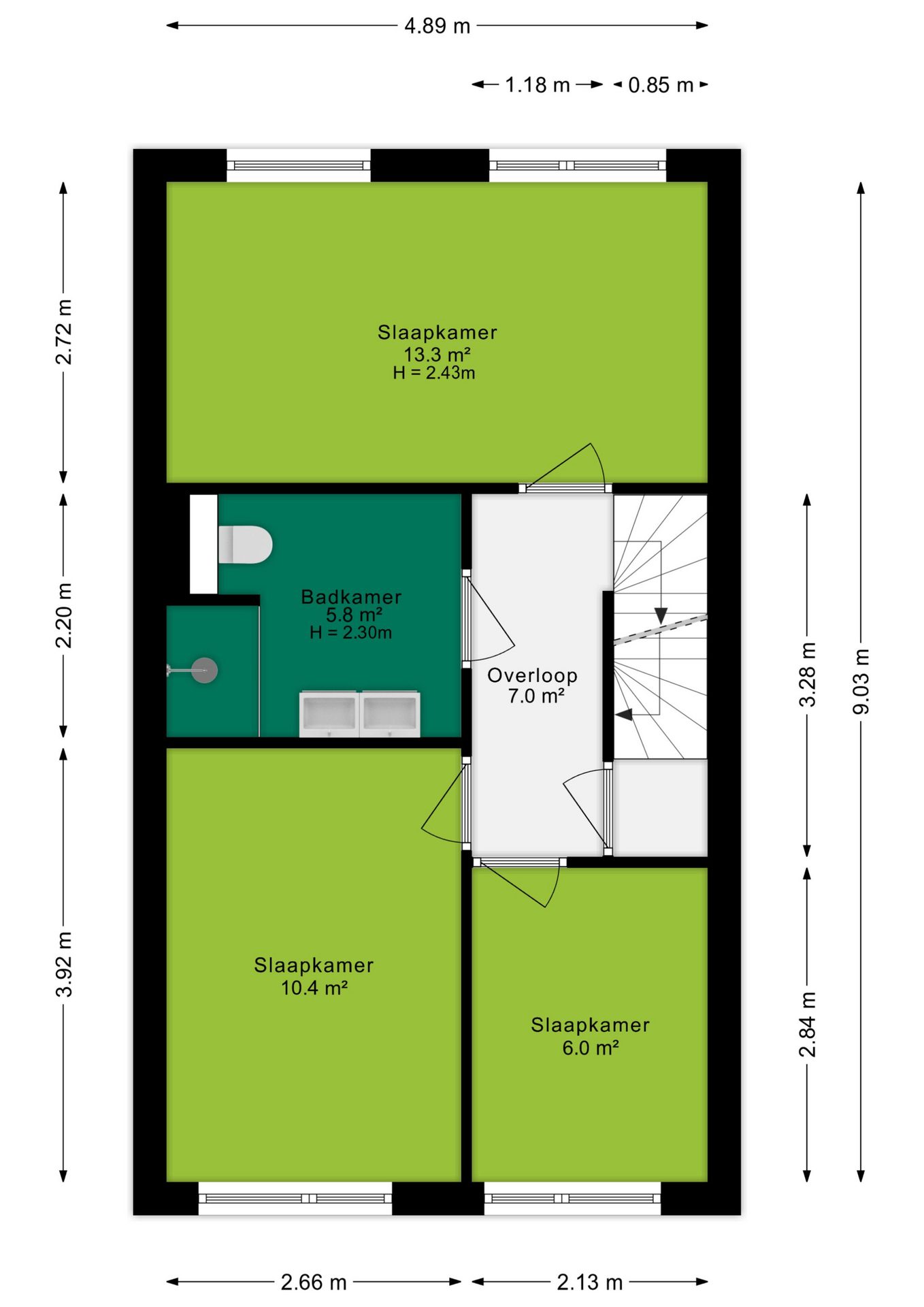
Indeling
Begane grond
Bij binnenkomst in de woning kom je eerst de meterkast, berging en het toilet tegen, waarna er toegang is tot de woonkamer. Deze ruime woonkamer ontvangt een prachtige lichtinval dankzij de grote ramen aan beide zijden van de woning en beschikt over een laminaatvloer. Aan de achterzijde bevindt zich een gezellige leef keuken van bijna 5 meter breed, compleet met ruimte voor een ruime eettafel waardoor de keuken het middelpunt van de woning vormt. De toegang naar de achtertuin maakt het mogelijk om in de zomer heerlijk buiten te dineren en te genieten van gezellige BBQ's. De keuken is uitgerust met een apparatenwand die is voorzien van een koelkast, vriezer en combimagnetron, en een rechte opstelling inclusief een 5-pits Belling fornuis, afzuigkap en vaatwasser.

Eerste verdieping
De overloop geeft toegang tot drie slaapkamers en de badkamer. De slaapkamers hebben goede afmetingen van circa 13m², 10m² en 6m² en zijn eveneens voorzien van een laminaatvloer. De grootste slaapkamer is gelegen aan de achterzijde van de woning en over de gehele breedte van de woning. De moderne badkamer uit 2020 is voorzien van een douche, dubbel wastafelmeubel, toilet en comfortabele vloerverwarming.

Tweede verdieping
Via een vaste trap bereik je de volwaardig tweede verdieping. Deze verdieping is voorzien van een ruime slaapkamer van circa 17m 2 en een berging-/ wasruimte met witgoed aansluiting.

Buitenleven
De ruime tuin, gelegen op het westen, is voorzien van tegelwerk en een groene border. Dankzij de ligging en de privacy kun je hier na een lange dag werken optimaal ontspannen. Bovendien beschikt de tuin over een berging en is er een achterom aanwezig.

Kenmerken:
Verwarming: C.V.-combiketel (bouwjaar 2017)
Warm water: C.V.-combiketel (bouwjaar 2017)
Isolatie: dakisolatie, vloerisolatie, muurisolatie, en grotendeels dubbel glas
Bouwjaar: 1976
Tuinligging: westen
Aanvaarding: in overleg

Koopovereenkomst:
Bij de verkoop zal er een standaard NVM koopovereenkomst worden gehanteerd. Bij woningen welke ouder zijn dan 20 jaar, worden de volgende clausules opgenomen in de koopovereenkomst:
- Asbestclausule
- Ouderdomsclausule

Koopt u de woning zonder voorbehoud van financiering? Dan zullen wij een termijn hanteren van 14 dagen na het opstellen van de koopovereenkomst voor het storten van de bankgarantie/waarborgsom.

Deze informatie is door ons met de nodige zorgvuldigheid samengesteld. Onzerzijds wordt echter geen enkele aansprakelijkheid aanvaard voor enige onvolledigheid, onjuistheid of anderszins, dan wel de gevolgen daarvan. Alle opgegeven maten en oppervlakten zijn indicatief.
+ toon meer
6843 SG, Arnhem

Helmondstraat 28

Zaterdag 2 augustus 10:00 - 12:00 uur

€ 425.000 k.k.
ditters makelaars arnhem
Kopen
Financiële mogelijkheden

Waardecheck

Onze makelaars kijken naar de lokale markt en vergelijkbare woningen in jouw buurt om een goede schatting te geven.
Onze makelaars kijken naar de lokale markt en vergelijkbare woningen in jouw buurt om een goede schatting te geven.
Goed om te weten: deze waardecheck is vrijblijvend en geheel kosteloos
Onafhankelijk

Hypotheekadvies

We helpen je met het vergelijken van aanbiedingen van verschillende banken, zodat je de beste deal krijgt. 
Wij staan klaar om je te begeleiden, zodat je met vertrouwen de juiste hypotheek kunt kiezen.
Goed om te weten: dit adviesgesprek is vrijblijvend en geheel kosteloos

Wij helpen jou bij de keuze van de juiste polis.

Bij een onbezorgde toekomst horen ook goede verzekeringen die uitkeren bij bijvoorbeeld ziekte, schade of diefstal. Onze assurantieadviseurs helpen je bij de keuze van de juiste polis. In heldere taal.

Diverse verzekeringen

  • Opstalverzekering
  • Aansprakelijkheidsverzekering
  • Zorgverzekering
  • Reisverzekering

Buurtinformatie

Arnhem, De Laar-West
Inwoners
Woningen
2.708
Inwoners
6.125
42
58
Koop / Huur
42% Huur58% Koop
Huishoudens
Eenpersoon
34.7%
Geen kinderen
27.6%
Met kinderen
37.5%
Leeftijdsopbouw in jaren
Buurt Landelijk
18.011.527.828.713.916.312.324.728.218.5

Locatie

Belangrijke documenten

Brochure

Bekijk hier alle details van de woning, compleet met foto's en beschrijvingen.

Misschien interessant voor jou

Blijf op de hoogte

Ontvang als eerste updates over nieuw aanbod en mis geen enkele kans om jouw droomwoning te vinden.

Gratis waardebepaling of verkoopgesprek

Met de vrijblijvende waardecheck weet je snel waar je aan toe bent. Onze makelaars kijken naar de lokale markt en vergelijkbare woningen in jouw buurt om een goede schatting te geven.