Omschrijving

Ruime tussenwoning met moderne keuken, luxe badkamer en diepe tuin op het zuiden

Deze goed onderhouden tussenwoning uit 1990 combineert ruimte, licht en comfort. Met een woonoppervlakte van 113 m², vier slaapkamers, een vernieuwde badkamer en een diepe achtertuin op het zuiden is dit een ideale gezinswoning. Dankzij de vrije ligging aan de voorzijde, zonder directe overburen, geniet je hier van rust en privacy, midden in de kindvriendelijke wijk Rijkerswoerd.

Ligging
De woning ligt in de populaire wijk Rijkerswoerd, een groene en ruim opgezette woonomgeving met uitstekende voorzieningen. Op korte afstand bevinden zich diverse (basis)scholen, sportverenigingen, winkelcentra, en het openbaar vervoer is goed bereikbaar. Via de nabijgelegen uitvalswegen A12, A15, A50 en A325 ben je binnen enkele minuten onderweg richting Nijmegen, Ede of Utrecht. Het is een rustige wijk met veel speelgelegenheid voor kinderen en voldoende parkeergelegenheid in de directe omgeving.

Pluspunten
+ Vernieuwde luxe badkamer
+ Moderne keuken in hoekopstelling
+ Vier ruim bemeten slaapkamers
+ Diepe achtertuin op het zuiden
+ Gelegen in een kindvriendelijke wijk
+ Vrij uitzicht aan de voorzijde, zonder directe overburen

Indeling
Begane grond
Entree met vernieuwd toilet en meterkast. Vanuit de hal toegang tot de woonkamer en keuken. De royale woonkamer van circa 30 m² heeft grote raampartijen die zorgen voor veel daglicht en een prettige sfeer. De moderne keuken in hoekopstelling is voorzien van diverse inbouwapparatuur, waaronder een koel-/vriescombinatie, gasfornuis, oven, magnetron, afzuigkap en vaatwasser.

Eerste verdieping
Via de overloop zijn de badkamer en de 3 slaapkamers te bereiken. De slaapkamers zijn voorzien van voldoende daglicht, een nette laminaatvloer en hebben een afmeting van ca. 14m2, 12 m2 en 8m2. De luxe vernieuwde badkamer is voorzien van een douche, dubbele wastafel en handig tweede toilet.

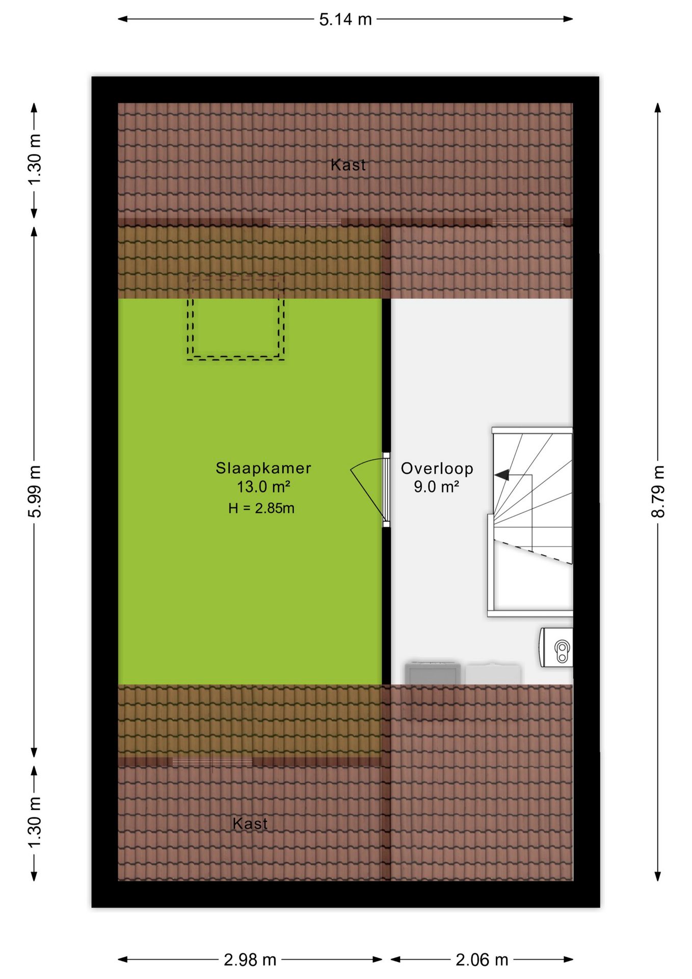
Tweede verdieping
Via een vaste trap is de tweede verdieping bereikbaar. Op de voorzolder bevinden zich de witgoedaansluiting en de cv-installatie. Daarnaast is er een ruime vierde slaapkamer van circa 17 m², voorzien van laminaatvloer, dakraam en bergruimte. Deze ruimte kan ook perfect worden gebruikt als kantoor of logeerkamer.

Buitenruimte
De diepe achtertuin ligt op het zuiden en is voorzien van een berging, overkapping en achterom. Dankzij de gunstige ligging geniet je hier volop van de zon en de privacy. De tuin biedt ruimte voor meerdere zitplekken en is ideaal voor gezinnen die graag buiten leven.

Bijzonderheden
- Bouwjaar 1990
- Woonoppervlakte 113 m²
- Perceeloppervlakte 148 m²
- Energielabel C
- Vier slaapkamers
- Vrije ligging aan de voorzijde
- Kindvriendelijke omgeving met veel voorzieningen

Samenvatting
Een ruime en verzorgde tussenwoning met vier slaapkamers, een moderne keuken, vernieuwde badkamer en een diepe, zonnige tuin op het zuiden. De combinatie van rust, ruimte en de centrale ligging in Rijkerswoerd maakt dit een ideale woning voor gezinnen die comfortabel willen wonen in Arnhem.

Koopovereenkomst:
Bij de verkoop zal er een standaard NVM koopovereenkomst worden gehanteerd. Bij woningen welke ouder zijn dan 20 jaar, worden de volgende clausules opgenomen in de koopovereenkomst:
Asbestclausule;
Ouderdomsclausule.
Koop je de woning zonder voorbehoud van financiering? Dan zullen wij een termijn hanteren van 6 weken na het opstellen van de koopovereenkomst voor het storten van de bankgarantie/waarborgsom.
Deze informatie is door ons met de nodige zorgvuldigheid samengesteld. Onzerzijds wordt echter geen enkele aansprakelijkheid aanvaard voor enige onvolledigheid, onjuistheid of anderszins, dan wel de gevolgen daarvan. Alle opgegeven maten en oppervlakten zijn indicatief.
+ toon meer
6836 JC, Arnhem

Marxsingel 10

Zaterdag 2 augustus 10:00 - 12:00 uur

€ 389.500 k.k.
ditters makelaars arnhem
Kopen
Financiële mogelijkheden

Waardecheck

Onze makelaars kijken naar de lokale markt en vergelijkbare woningen in jouw buurt om een goede schatting te geven.
Onze makelaars kijken naar de lokale markt en vergelijkbare woningen in jouw buurt om een goede schatting te geven.
Goed om te weten: deze waardecheck is vrijblijvend en geheel kosteloos
Onafhankelijk

Hypotheekadvies

We helpen je met het vergelijken van aanbiedingen van verschillende banken, zodat je de beste deal krijgt. 
Wij staan klaar om je te begeleiden, zodat je met vertrouwen de juiste hypotheek kunt kiezen.
Goed om te weten: dit adviesgesprek is vrijblijvend en geheel kosteloos

Wij helpen jou bij de keuze van de juiste polis.

Bij een onbezorgde toekomst horen ook goede verzekeringen die uitkeren bij bijvoorbeeld ziekte, schade of diefstal. Onze assurantieadviseurs helpen je bij de keuze van de juiste polis. In heldere taal.

Diverse verzekeringen

  • Opstalverzekering
  • Aansprakelijkheidsverzekering
  • Zorgverzekering
  • Reisverzekering

Buurtinformatie

Arnhem, Rijkerswoerd-West
Inwoners
Woningen
2.015
Inwoners
4.565
47
53
Koop / Huur
47% Huur53% Koop
Huishoudens
Eenpersoon
36.4%
Geen kinderen
24.1%
Met kinderen
39.3%
Leeftijdsopbouw in jaren
Buurt Landelijk
15.713.521.035.614.116.312.324.728.218.5

Locatie

Belangrijke documenten

Brochure

Bekijk hier alle details van de woning, compleet met foto's en beschrijvingen.

Lijst van zaken

Overzicht van de zaken die achterblijven of worden meegenomen door de huidige bewoners.

Vragenlijst deelc.

Hier deelt de verkoper belangrijke informatie over de staat en bijzonderheden van de woning.

Kadastrale kaart

Vragenlijst deelb.

Hier deelt de verkoper belangrijke informatie over de staat en bijzonderheden van de woning.

Misschien interessant voor jou

Blijf op de hoogte

Ontvang als eerste updates over nieuw aanbod en mis geen enkele kans om jouw droomwoning te vinden.

Gratis waardebepaling of verkoopgesprek

Met de vrijblijvende waardecheck weet je snel waar je aan toe bent. Onze makelaars kijken naar de lokale markt en vergelijkbare woningen in jouw buurt om een goede schatting te geven.