Omschrijving

Gelegen aan een rustige straat en op minder dan 15 minuten fietsen van het centrum van Arnhem bevindt zich deze instapklare tussenwoning met 4 (slaap)kamers. De woning is goed afgewerkt en beschikt over energielabel A, heeft vloerverwarming op de begane grond, een fraaie open keuken, overkapping in de tuin en 9 zonnepanelen. De achtertuin is gelegen op de middag en de avondzon en grenst aan een groenstrook.

Voor je dagelijkse boodschappen is de supermarkt op korte afstand, en als je zin hebt in een ontspannen wandeling, sta je binnen 10 minuten in de uiterwaarden met uitzicht over de Rijn. Hier woon je heerlijk rustig, met alles wat je nodig hebt binnen handbereik!

Alle kenmerken op een rij:
* Tussenwoning met 4 (slaap)kamers;
* Voorzien van vloerverwarming en zonnepanelen;
* Tuin op het noordwesten;
* Dichtbij alle voorzieningen, uitvalswegen en openbaar vervoer (ook treinstation);
* Nabij de uiterwaarden gelegen.

De woning is gelegen in de wijk 'Malburgen-West' dicht bij winkels en scholen en met een snelle verbindingen naar de A12, A15 en de A325. Met het openbaar vervoer ben je binnen 15 minuten in het centrum. Deze omgeving is zeer geschikt voor zowel gezinnen, starters en ouderen. Kinderen kunnen vrij spelen in de directe omgeving van de woning en op korte afstand zijn het winkelcentrum, scholen, kinderopvang en openbaar vervoersvoorzieningen.

Indeling
Begane grond
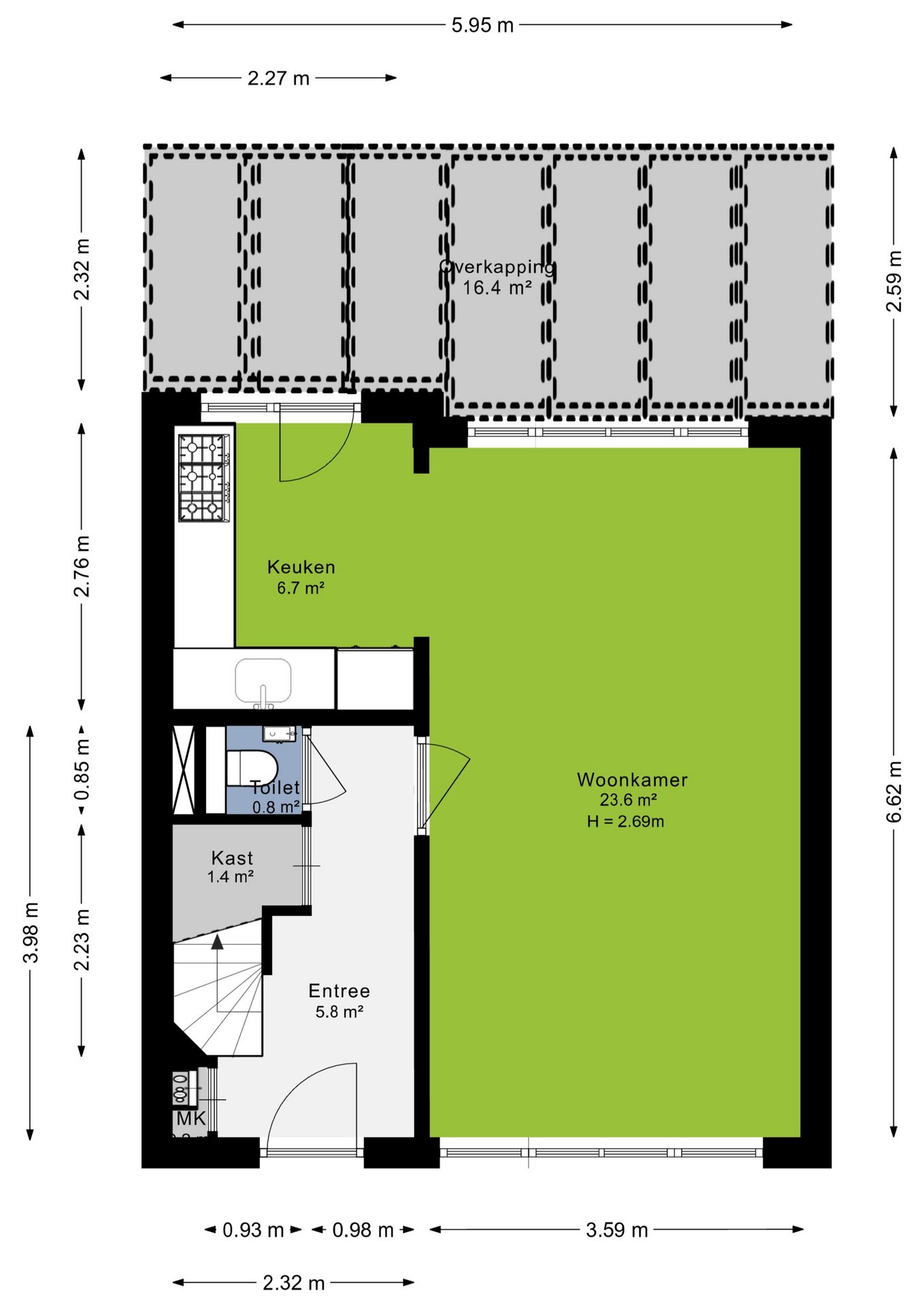
Wat direct opvalt in de woonkamer is de fijne lichtinval dankzij de grote raampartijen. Een gezellige ruimte die naadloos overloopt in de eetkamer, waardoor het geheel een open en verbonden sfeer uitstraalt. Vanuit de eetkamer heb je direct toegang tot de lichte hoekkeuken, die is voorzien van diverse inbouwapparatuur en alles biedt wat je nodig hebt.

Eerste verdieping
Op de eerste verdieping bevinden zich drie fijne slaapkamers, een apart toilet en de badkamer. De badkamer is ingericht met een inloopdouche en een wastafel. De (slaap)kamers bieden niet alleen ruimte om heerlijk te slapen, maar zijn ook perfect in te richten als comfortabele thuiswerkplek.

Tweede verdieping
Op de tweede verdieping tref je voldoende ruimte voor de wasmachine en droger. Daarnaast vind je hier een vierde slaapkamer, perfect als extra slaapruimte, hobbykamer of werkplek. Veel mogelijkheden om deze verdieping naar wens in te richten

Tuin
Geniet van het buitenleven in deze fijne tuin op het noordwesten. Direct aan het huis vind je een licht doorlatende overkapping, waardoor je ook bij minder weer comfortabel buiten kunt zitten, terwijl je binnen profiteert van volop lichtinval. Daarnaast beschik je over een handige stenen berging en een achterom. Een tuin om écht van te genieten!

Koopovereenkomst:
Bij de verkoop zal er een standaard NVM koopovereenkomst worden gehanteerd. Bij woningen welke ouder zijn dan 20 jaar, worden de volgende clausules opgenomen in de koopovereenkomst:
- Asbestclausule;
- Ouderdomsclausule.

Koop je de woning zonder voorbehoud van financiering? Dan zullen wij een termijn hanteren van 14 dagen na het opstellen van de koopovereenkomst voor het storten van de bankgarantie/waarborgsom.

Deze informatie is door ons met de nodige zorgvuldigheid samengesteld. Onzerzijds wordt echter geen enkele aansprakelijkheid aanvaard voor enige onvolledigheid, onjuistheid of anderszins, dan wel de gevolgen daarvan. Alle opgegeven maten en oppervlakten zijn indicatief.
+ toon meer
deze woning is Verkocht

Paardebloemstraat 78 Arnhem

Paardebloemstraat 78

6841 BX, Arnhem
Ditters open huis: 5 april 2025 10:00 - 12:00 uur
Landelijke Open Huizen Route NVM: 5 april 2025 11:00 uur - 15:00 uur
Vanaf€ 300.000 k.k.

Schakel een aankoopmakelaar in.

Snel handelen helpt je jouw droomhuis te bemachtigen. Zo vergroot je de kans dat je er op tijd bij bent.
Arnhem
verkocht

Of maak vrijblijvend een zoekprofiel aan.

Vergelijkbare woningen

Hypotheken

Onafhankelijk hypotheekadvies

  • Ligt jouw droomhuis binnen handbereik?
  • Wil je jouw huidige hypotheek verhogen?
  • Is er hypotheekruimte voor verduurzaming?

Blijf op de hoogte

Ontvang als eerste updates over nieuw aanbod en mis geen enkele kans om jouw droomwoning te vinden.

Gratis waardebepaling of verkoopgesprek

Met de vrijblijvende waardecheck weet je snel waar je aan toe bent. Onze makelaars kijken naar de lokale markt en vergelijkbare woningen in jouw buurt om een goede schatting te geven.

Realiseer al jouw woondromen met Ditters

Wij zijn een team van gedreven vastgoedexperts met een passie voor het maken van verbindingen – tussen kopers en verkopers, huurders en verhuurders. Met een frisse kijk op de makelaardij combineren we expertise met creativiteit. Onze makelaars luisteren écht en nemen de tijd om jouw wensen te begrijpen.


Bij Ditters sta je er niet alleen voor. We denken met je mee, begeleiden je in elke stap en zijn altijd bereikbaar voor vragen. Neem gerust contact met ons op – we helpen je graag verder!