Aanbod

Verken ons aanbod. Van huur tot koop. En van nieuwbouw tot bouwkavel. Samen vinden we de plek waar jij je helemaal thuis voelt.

Diensten

Onze experts begeleiden je van A tot Z. Of je nu je huis wilt verkopen, op zoek bent naar je droomhuis of advies nodig hebt over hypotheken of verzekeringen. Met jarenlange ervaring en persoonlijke service zorgen we ervoor dat jij met een gerust hart de juiste keuzes maakt.

Over Ditters

Wij zijn Ditters. Verhalenvertellers. De schakel tussen droom en woning. We luisteren naar jouw wensen en maken op basis daarvan een plan.

Omschrijving

Gelegen in de geliefde wijk Rijkerswoerd bevindt zich deze duurzame eengezinswoning welke is voorzien van maar liefst 23 zonnepanelen, een warmtepomp, volledige isolatie en energielabel A! De woning is volledig energieneutraal en gasloos. Klaar voor de toekomst en lage energielasten.

De volgende kenmerken van deze duurzame woning spreken je vast aan: woonkamer met heerlijk veel lichtinval door de grote raampartijen, open keuken voorzien van diverse inbouwapparatuur, voorzien van 3 royale slaapkamers, moderne badkamer en een heerlijk diepe achtertuin gelegen op het noordwesten. Daarnaast is iedere verdieping voorzien van airconditioning, welke kan koelen en verwarmen.

De woning is volledig gasloos en beschikt over een geavanceerde warmtepomp met LTV-radiatoren met DBE's (Dynamic Boost Effect) en vloerverwarming. Dit systeem zorgt voor een efficiënte en gelijkmatige verwarming van de woning. Daarnaast is er een 200-liter vat voor warm water aanwezig, zodat je altijd voldoende warm water hebt. Het energielabel is op dit moment A maar met de aanpassingen die gedaan zijn in de woning kan het een A+++ label worden.

De gevelbekleding van de woning is voorzien van Trespa, een duurzaam en onderhoudsarm materiaal dat de woning niet alleen een moderne uitstraling geeft, maar ook zorgt voor een lange levensduur en eenvoudige reiniging.

De woning ligt in de geliefde wijk 'Rijkerswoerd'. Deze wijk ligt in Arnhem-Zuid en heeft een zeer gunstige ligging. De woonwijk wordt gekenmerkt door haar moderne architectuur en ruime opzet. Met 15 minuten ben je in de binnenstad van Arnhem! Op korte loopafstand zijn het winkelcentrum, scholen, kinderopvang, openbaar vervoersvoorzieningen en diverse wandelgebieden aanwezig. De belangrijke uitvalswegen waaronder de Pleyroute naar Arnhem Noord, A15, de A325 en de A50 zijn ook snel te bereiken.

Pluspunten van de woning
+ Duurzame eengezinswoning op een groot perceel;
+ Gelegen in de geliefde wijk Rijkerswoerd;
+ Volledig energieneutraal en gasloos;
+ Woonkamer met heerlijk veel lichtinval;
+ Open keuken voorzien van diverse apparatuur;
+ Voorzien van 3 royale slaapkamers;
+ Moderne badkamer;
+ Heerlijke diepe achtertuin;
+ Onderhoudsvriendelijke afwerking van de gevel;
+ In 2016 gerenoveerd;
+ Voorzien van 23 zonnepanelen;
+ Voorzien van airconditioning op elke verdieping;
+ Gelegen nabij diverse voorzieningen en uitvalswegen

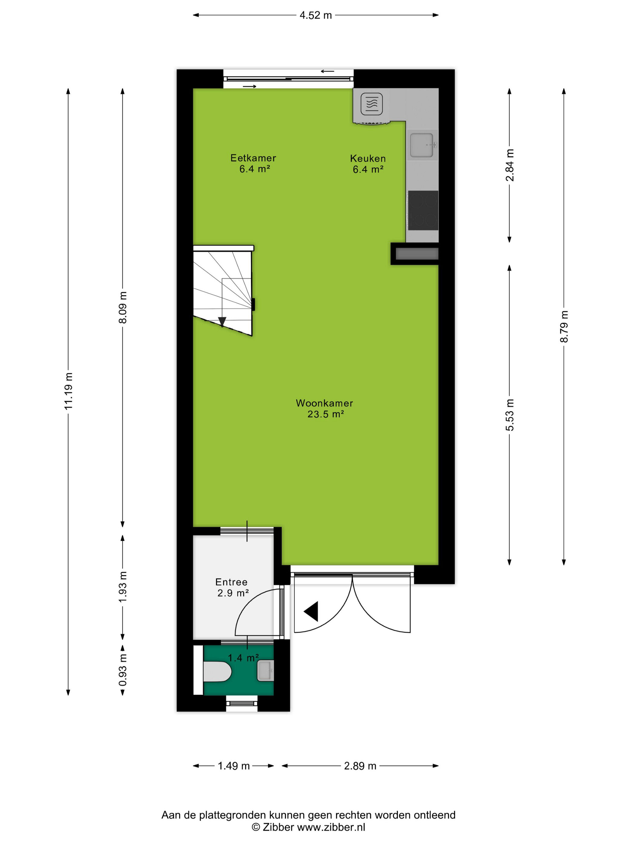
Indeling

Begane grond
Via de entree met hal en modern toilet bereik je de woning. De woonkamer is goed bemeten, is voorzien van een keramische tegelvloer en heerlijk veel lichtinval door de vele raampartijen. De keuken bevindt zich aan de achterzijde van de woning en is opgesteld in een witte kleurstelling. De keuken heeft een composiet werkblad en is voorzien van diverse inbouwapparatuur, te weten: een kookplaat, afzuigkap, combi-oven/magnetron, koelkast en een vaatwasser. Door de goede afmeting in de keuken is er ruimte genoeg voor een eettafel. De gehele begane grond is voorzien van vloerverwarming.

Eerste verdieping
Via de overloop bereik je de eerste 2 slaapkamers en de badkamer. De slaapkamers hebben royale afmetingen van 17,1m² en 12,9m², zijn voorzien van een PVC-vloer en veel lichtinval. De moderne badkamer is opgesteld in een moderne kleurstelling en voorzien van een ruime inloopdouche (regendouche), wastafel met wastafelmeubel en een toilet.

Tweede verdieping
Via een vaste trap bereik je de volwaardig 2e verdieping. Hier bevindt zich de 3e slaapkamer met een afmeting van 21m² en ook hier is veel lichtinval aanwezig door de dakramen. Tevens is er een bergruimte aanwezig waar de wasmachine-aanwezig is en de warmtepomp staat opgesteld.

Tuin
De heerlijk diepe tuin is gelegen op het noordwesten en door de prettige afmeting is er altijd wel een plekje in het zonnetje of de schaduw te vinden. De tuin is fraai aangelegd en hier kan je optimaal van het buitenleven genieten. Achterin is nog een ideale berging aanwezig, handig voor het opslaan van je spullen of het stallen van je fiets. Tevens is er nog een achterom aanwezig.

Kenmerken
Verwarming: vloerverwarming (begane grond) en warmtepomp
Warm water: elektrische boiler (eigendom)
Bouwjaar: 1999
Isolatie: volledig geïsoleerd
Tuinligging: noordwesten
Aanvaarding: in overleg

Koopovereenkomst:
Bij de verkoop zal er een standaard NVM koopovereenkomst worden gehanteerd. Bij woningen welke ouder zijn dan 20 jaar, worden de volgende clausules opgenomen in de koopovereenkomst:
- Asbestclausule;
- Ouderdomsclausule.

Koop je de woning zonder voorbehoud van financiering? Dan zullen wij een termijn hanteren van 14 dagen na het opstellen van de koopovereenkomst voor het storten van de bankgarantie/waarborgsom.

Deze informatie is door ons met de nodige zorgvuldigheid samengesteld. Onzerzijds wordt echter geen enkele aansprakelijkheid aanvaard voor enige onvolledigheid, onjuistheid of anderszins, dan wel de gevolgen daarvan. Alle opgegeven maten en oppervlakten zijn indicatief.
+ toon meer
6836 EN, Arnhem

Peppelenwei 65

Zaterdag 2 augustus 10:00 - 12:00 uur

€ 419.500 k.k.
ditters makelaars arnhem
Kopen
Financiële mogelijkheden

Waardecheck

Onze makelaars kijken naar de lokale markt en vergelijkbare woningen in jouw buurt om een goede schatting te geven.
Onze makelaars kijken naar de lokale markt en vergelijkbare woningen in jouw buurt om een goede schatting te geven.
Goed om te weten: deze waardecheck is vrijblijvend en geheel kosteloos
Onafhankelijk

Hypotheekadvies

We helpen je met het vergelijken van aanbiedingen van verschillende banken, zodat je de beste deal krijgt. 
Wij staan klaar om je te begeleiden, zodat je met vertrouwen de juiste hypotheek kunt kiezen.
Goed om te weten: dit adviesgesprek is vrijblijvend en geheel kosteloos

Wij helpen jou bij de keuze van de juiste polis.

Bij een onbezorgde toekomst horen ook goede verzekeringen die uitkeren bij bijvoorbeeld ziekte, schade of diefstal. Onze assurantieadviseurs helpen je bij de keuze van de juiste polis. In heldere taal.

Diverse verzekeringen

  • Opstalverzekering
  • Aansprakelijkheidsverzekering
  • Zorgverzekering
  • Reisverzekering

Buurtinformatie

Arnhem, Rijkerswoerd-West
Inwoners
Woningen
2.015
Inwoners
4.565
47
53
Koop / Huur
47% Huur53% Koop
Huishoudens
Eenpersoon
36.4%
Geen kinderen
24.1%
Met kinderen
39.3%
Leeftijdsopbouw in jaren
Buurt Landelijk
15.713.521.035.614.116.312.324.728.218.5

Locatie

Belangrijke documenten

Brochure

Bekijk hier alle details van de woning, compleet met foto's en beschrijvingen.

Vragenlijst deelb

Hier deelt de verkoper belangrijke informatie over de staat en bijzonderheden van de woning.

Misschien interessant voor jou

Blijf op de hoogte

Ontvang als eerste updates over nieuw aanbod en mis geen enkele kans om jouw droomwoning te vinden.

Gratis waardebepaling of verkoopgesprek

Met de vrijblijvende waardecheck weet je snel waar je aan toe bent. Onze makelaars kijken naar de lokale markt en vergelijkbare woningen in jouw buurt om een goede schatting te geven.