Omschrijving

Sfeervolle en royale geschakelde twee-onder-een-kapwoning met 5 slaapkamers, carport en tuin op het noorden in geliefde wijk Elderhof.

In de rustige en groene wijk Elderhof, vlakbij het prachtige natuur- en uiterwaardengebied Meinerswijk, ligt deze sfeervolle geschakelde twee-onder-een-kapwoning aan een rustig woonerf. De woning beschikt over een vrijstaande stenen berging, een carport op eigen terrein en een tuin op het noorden, grenzend aan een park met vrij uitzicht.

Een bijzonder pluspunt is de vrije ligging aan de achterzijde, vrijwel direct aan het water, wat zorgt voor veel privacy en een prachtig uitzicht.

Deze royale gezinswoning biedt volop ruimte voor een groot gezin of voor wie graag comfortabel vanuit huis werkt. Met maar liefst vijf slaapkamers is er aan ruimte geen gebrek. Een van de grote pluspunten is de ruime begane grond: de woon- en eetkamer is ruim 47m² groot, wat zorgt voor een heerlijke leefruimte. Dankzij de kunststof kozijnen met HR++ beglazing profiteer je bovendien van extra wooncomfort en weinig onderhoud.

Bijzonderheden:
- Gelegen aan een autoluw en kindvriendelijk woonerf
- Directe ligging aan een park en nabij natuurgebied Meinerswijk
- Riante achtertuin op het noorden
- Volledig voorzien van onderhoudsvriendelijke kunststof kozijnen met HR++ glas
- Parkeren op eigen terrein met carport
- Woonoppervlakte ca. 165 m²
- Maar liefst 5 slaapkamers
- Heeft een airco
- Energielabel C

Indeling
Begane grond:
Bij binnenkomst in de woning betreed je een ruime en praktische entreehal die toegang biedt tot diverse vertrekken op de begane grond. Aan de linkerzijde bevindt zich de deur naar de keuken, eetkamer en woonkamer – de centrale leefruimtes van het huis. De keuken (ca. 15 m²) is functioneel ingericht en voorzien van een 4-pits gasfornuis met combioven. Aansluitend ligt de royale eetkamer (ca. 23 m²), waar een sfeervolle open haard is geplaatst – een heerlijke plek voor lange diners of gezellige avonden. Via een deur is er direct toegang tot de zonnige achtertuin, waar zich tevens een praktische berging van ruim 1 m² bevindt. De woonkamer (ca. 24 m²) is bereikbaar vanuit de eetkamer en biedt ruimte voor een comfortabele zithoek met uitzicht op het groen aan de achterzijde. De grote raampartijen zorgen hier voor een prettige sfeer. Verder beschikt de entree over een handige voorraadkast (ca. 2 m²), een modern toilet met fonteintje, de meterkast, en de trapopgang naar de eerste verdieping.

Eerste verdieping:
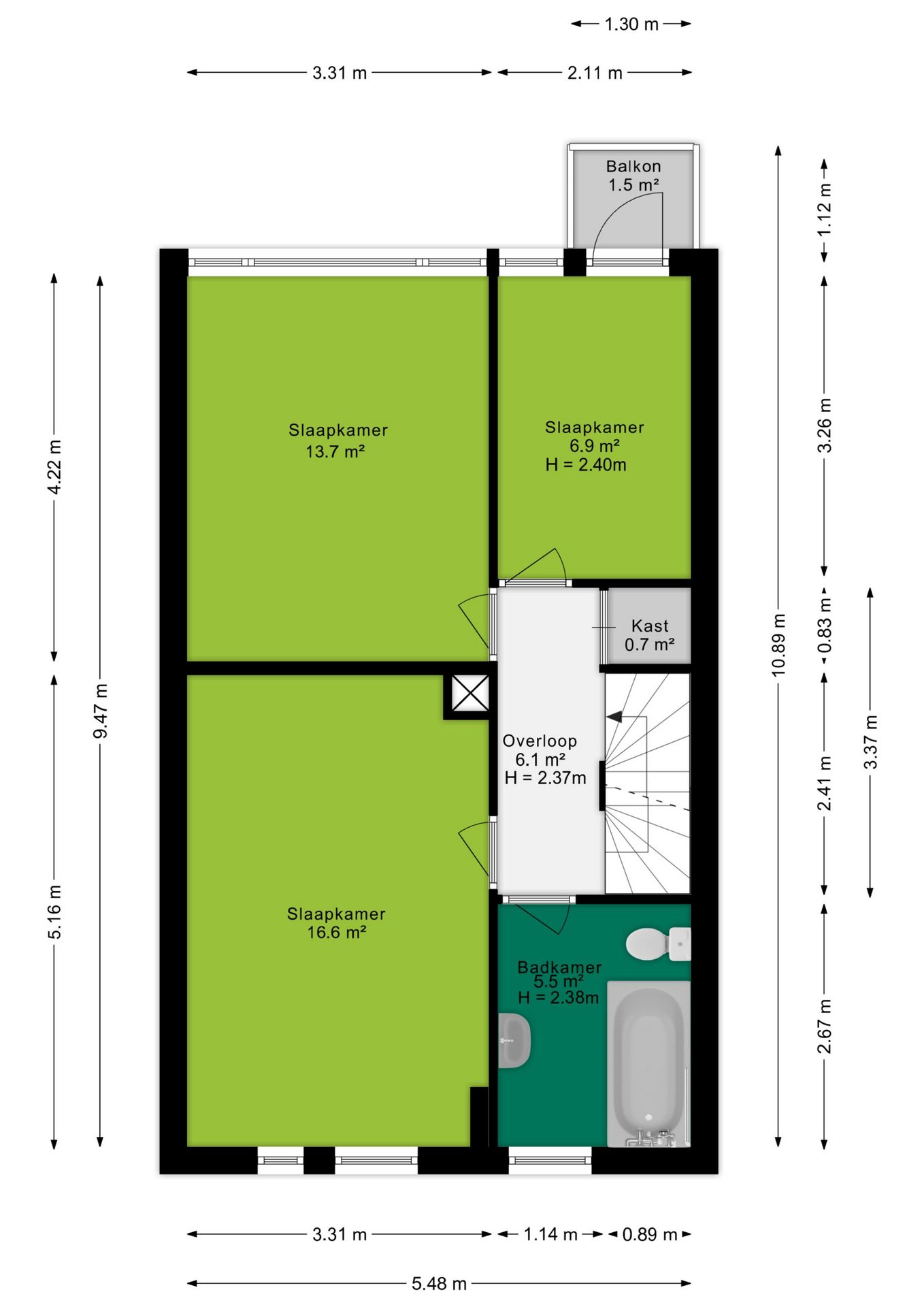
Via de overloop (ca. 6 m²) zijn alle vertrekken op deze verdieping bereikbaar. Hier bevinden zich drie ruime slaapkamers. De grootste slaapkamer (ca. 17 m²) is gesitueerd aan de voorzijde van de woning. Aan de achterzijde liggen de andere twee slaapkamers van ca. 14 m² en ca. 7 m². De kleinste kamer biedt bovendien toegang tot een balkon van ca. 1,5 m² – een fijne plek voor een moment in de buitenlucht. De badkamer is eenvoudig maar functioneel ingericht en voorzien van een douche, wastafel en toilet. Tot slot beschikt deze verdieping over een handige inbouwkast (ca. 1 m²), ideaal voor het opbergen van linnengoed of andere spullen.

Tweede verdieping:
Via een vaste trap bereik je de tweede verdieping, waar je uitkomt op een ruime overloop. Hier bevindt zich de opstelplaats van de cv-ketel. Deze verdieping is ingedeeld met twee volwaardige slaapkamers: één aan de voorzijde en één aan de achterzijde van de woning. De slaapkamer aan de voorzijde is ca. 11 m² groot en de royale slaapkamer aan de achterzijde meet ca. 17 m². Beide kamers zijn voorzien van daglicht en bieden diverse mogelijkheden, bijvoorbeeld als extra slaapkamer, werkkamer of hobbyruimte.

Buiten:
Deze woning beschikt over zowel een ruime voortuin als een zeer royale achtertuin, wat zorgt voor volop privacy en buitenruimte. Aan de voorzijde bevindt zich veel groen, samen met een carport en een vrijstaande berging – ideaal voor het stallen van fietsen en het parkeren van de auto op eigen terrein.

De achtertuin is een waar pluspunt: met een oppervlakte van ca. 130 m² biedt deze volop ruimte voor ontspanning en buitenleven. De tuin is fraai aangelegd met diverse zithoekjes, veel groen en een sfeervolle vijver. Dankzij de gunstige ligging is er op elk moment van de dag wel een zonnig plekje te vinden.

Vanuit de tuin loop je direct het prachtige natuurgebied 'Meijnerswijck' in, een perfecte plek voor wandelen en ontspannen in de natuur.

Afmetingen
+ Woonoppervlakte: 165 m²;
+ Inhoud woning: 563 m³.

Kenmerken:
+ Bouwjaar: 1977;
+ Verwarming en warm water via cv-ketel (2010);
+ Energielabel C.

Koopovereenkomst:
Bij de verkoop zal er een standaard NVM koopovereenkomst worden gehanteerd. Bij dit woonhuis worden onder andere de volgende clausules opgenomen in de koopovereenkomst:
- Ouderdomsclausule;
- Asbest clausule;
- Niet bewonersclausule;
- Bouwkundige staat.

Koop je de woning zonder voorbehoud van financiering? Dan zullen wij een termijn hanteren van 14 dagen na het opstellen van de koopovereenkomst voor het storten van de bankgarantie/waarborgsom.

Deze informatie is door ons met de nodige zorgvuldigheid samengesteld. Onzerzijds wordt echter geen enkele aansprakelijkheid aanvaard voor enige onvolledigheid, onjuistheid of anderszins, dan wel de gevolgen daarvan. Alle opgegeven maten en oppervlakten zijn indicatief.
+ toon meer
deze woning is Verkocht

Postmeesterwei 1 Arnhem

Postmeesterwei 1

6843 ZB, Arnhem
Ditters open huis: 5 april 2025 10:00 - 12:00 uur
Landelijke Open Huizen Route NVM: 5 april 2025 11:00 uur - 15:00 uur
Vanaf€ 549.000 k.k.

Schakel een aankoopmakelaar in.

Snel handelen helpt je jouw droomhuis te bemachtigen. Zo vergroot je de kans dat je er op tijd bij bent.
Arnhem
verkocht

Of maak vrijblijvend een zoekprofiel aan.

Vergelijkbare woningen

Hypotheken

Onafhankelijk hypotheekadvies

  • Ligt jouw droomhuis binnen handbereik?
  • Wil je jouw huidige hypotheek verhogen?
  • Is er hypotheekruimte voor verduurzaming?

Blijf op de hoogte

Ontvang als eerste updates over nieuw aanbod en mis geen enkele kans om jouw droomwoning te vinden.

Gratis waardebepaling of verkoopgesprek

Met de vrijblijvende waardecheck weet je snel waar je aan toe bent. Onze makelaars kijken naar de lokale markt en vergelijkbare woningen in jouw buurt om een goede schatting te geven.

Realiseer al jouw woondromen met Ditters

Wij zijn een team van gedreven vastgoedexperts met een passie voor het maken van verbindingen – tussen kopers en verkopers, huurders en verhuurders. Met een frisse kijk op de makelaardij combineren we expertise met creativiteit. Onze makelaars luisteren écht en nemen de tijd om jouw wensen te begrijpen.


Bij Ditters sta je er niet alleen voor. We denken met je mee, begeleiden je in elke stap en zijn altijd bereikbaar voor vragen. Neem gerust contact met ons op – we helpen je graag verder!