Omschrijving

Luxe geschakelde woning met 5 slaapkamers, 2 badkamers en tuin op het zuidoosten

Op zoek naar een instapklare woning die ruimte, comfort en duurzaamheid combineert? Deze geschakelde woning uit 2009 aan het Rhijnspoor 10 in de geliefde wijk Schuytgraaf biedt alles wat je nodig hebt. Met een woonoppervlakte van 159 m², vijf slaapkamers, twee badkamers, een tuin op het zuidoosten en moderne voorzieningen zoals stadsverwarming en 13 zonnepanelen, is dit een ideale gezinswoning. De luxe keuken welke deels is vernieuwd in 2025 maakt het plaatje compleet.

De woning ligt in de moderne en geliefde wijk Schuytgraaf, op korte afstand van de bruisende binnenstad van Arnhem. Alle voorzieningen zijn in de buurt: basisscholen, een internationale school, sportcomplexen, horecagelegenheden en supermarkten. Dankzij station Arnhem-Zuid en de uitvalswegen A50 en A325 is de woning uitstekend bereikbaar. De rustige straat en de nabijgelegen speelplekken en groenstroken maken het een ideale plek voor gezinnen.

Rhijnspoor 10 is een luxe en instapklare gezinswoning met veel ruimte en comfort. Dankzij de vijf slaapkamers, twee badkamers, moderne keuken en duurzame voorzieningen is dit een toekomstbestendige woning op een toplocatie in Arnhem.

De sterke punten op een rij
+ Instapklaar: modern afgewerkt en goed onderhouden
+ Luxe keuken met alle gewenste inbouwapparatuur (2025)
+ 5 slaapkamers en 2 badkamers – ideaal voor gezinnen
+ Duurzaam: stadsverwarming en 13 zonnepanelen (energielabel A)
+ Ruime bergvliering, ideaal voor het opbergen van seizoensgebonden spullen
+ Tuin op het zuidoosten met sfeervolle overkappingre
+ Gelegen in een populaire, kindvriendelijke buurt in Schuytgraaf

Indeling
Begane grond
De woonkamer is tuingericht, voorzien van vloerverwarming en een sfeervolle houten vloer. De luxe inbouwkeuken is in 2025 deels vernieuwd met een nieuwe kastenwand en het meeste apparatuur is vervangen. Verder biedt de begane grond veel bergruimte dankzij een trapkast en een aparte garderobe bergkast.

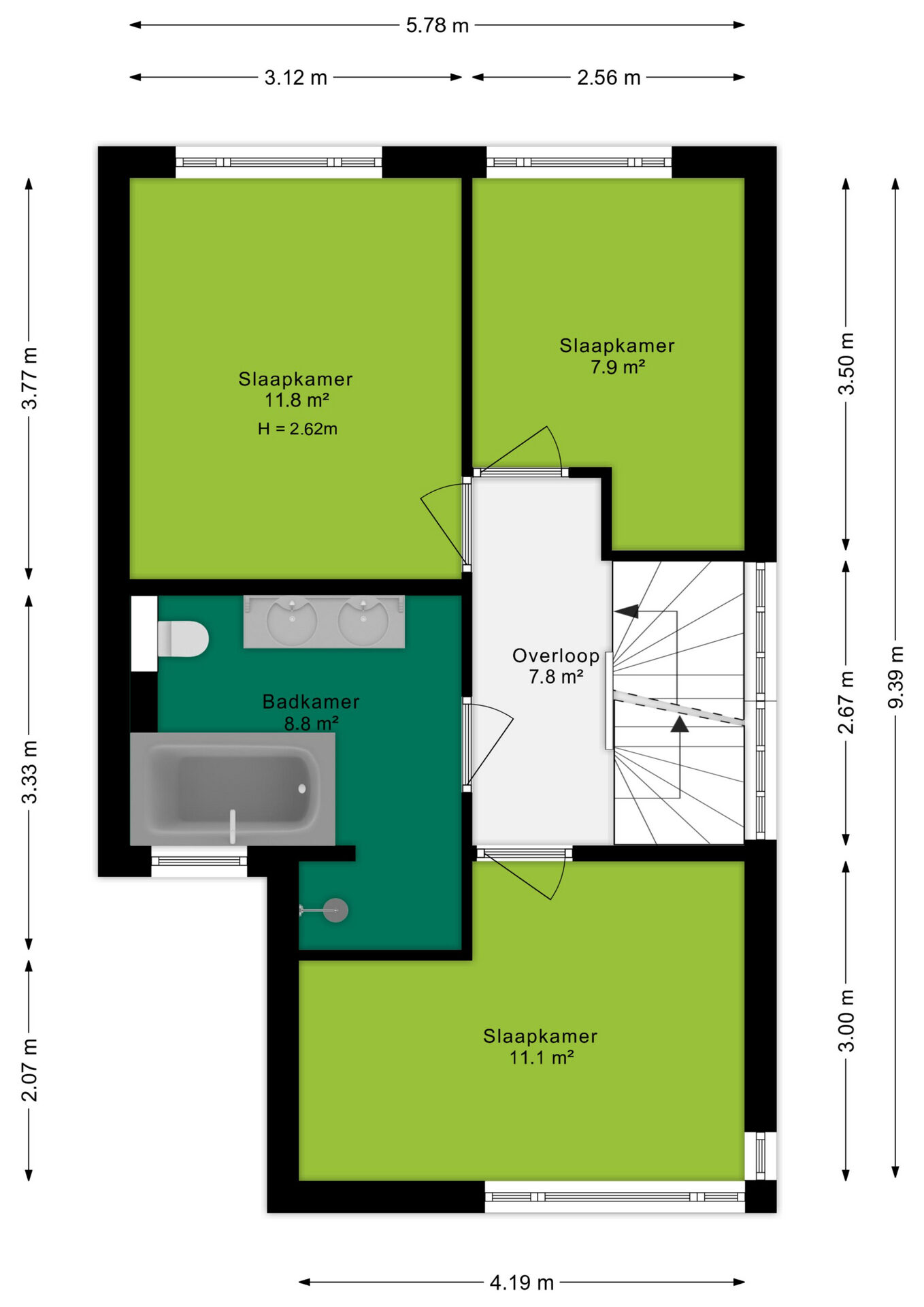
Eerste verdieping
Hier bevinden zich drie slaapkamers en een ruime badkamer. De slaapkamers zijn allen recht opgetrokken en van een goed formaat. De badkamer is in 2019 vernieuwd en uitgerust met een ligbad, inloopdouche, dubbele wastafels, toilet en vloerverwarming. Het trappenhuis is voorzien van een dakkapel, waardoor er veel natuurlijk licht binnenvalt.

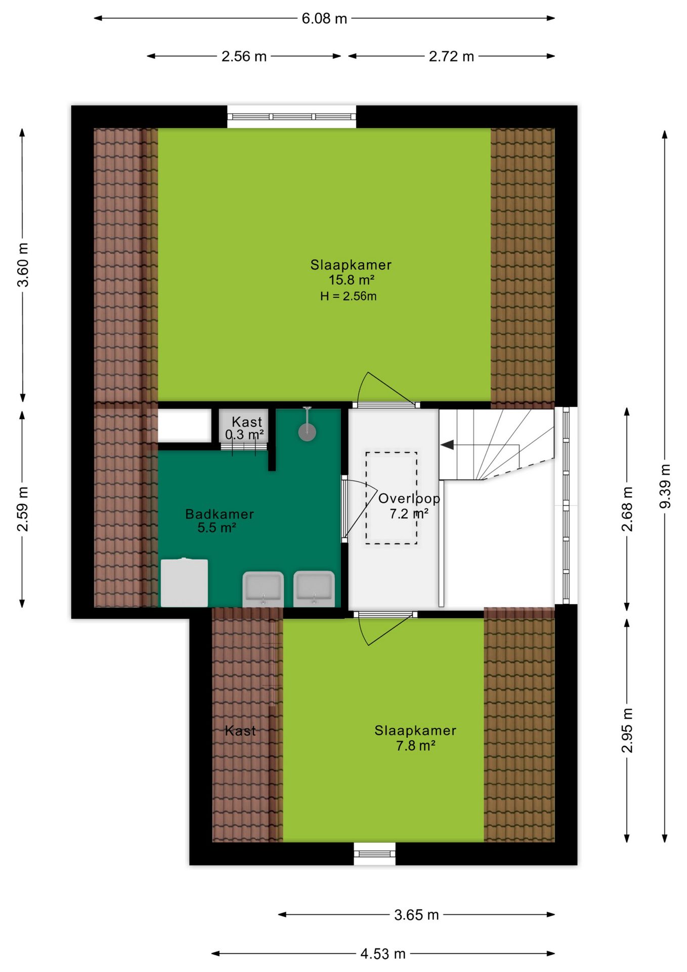
Tweede verdieping
Op zolder vind je nog twee slaapkamers en een tweede badkamer met inloopdouche, wastafelmeubel met wasmachineaansluiting en toilet. Via een vlizotrap is de ruime bergvliering te bereiken, ideaal voor het opbergen van seizoensgebonden spullen.

Buitenruimte
De woning beschikt over een verzorgde tuin op het zuidoosten, voorzien van een sfeervolle overkapping en een vrijstaande berging voor het opbergen van fietsen, tuinkussens en gereedschap. Daarnaast is er parkeergelegenheid op eigen terrein én in de directe omgeving.

Nieuwsgierig geworden?
Plan een bezichtiging en ontdek zelf de ruimte, luxe en ligging van deze woning in Schuytgraaf.

Koopovereenkomst:
Bij de verkoop zal er een standaard NVM koopovereenkomst worden gehanteerd.

Koop je de woning zonder voorbehoud van financiering? Dan zullen wij een termijn hanteren van 6 weken na het opstellen van de koopovereenkomst voor het storten van de bankgarantie/waarborgsom.
+ toon meer
deze woning is Verkocht

Rhijnspoor 10 Arnhem

Rhijnspoor 10

6846 GD, Arnhem
Ditters open huis: 5 april 2025 10:00 - 12:00 uur
Landelijke Open Huizen Route NVM: 5 april 2025 11:00 uur - 15:00 uur
Vanaf€ 695.000 k.k.

Schakel een aankoopmakelaar in.

Snel handelen helpt je jouw droomhuis te bemachtigen. Zo vergroot je de kans dat je er op tijd bij bent.
Arnhem
verkocht

Of maak vrijblijvend een zoekprofiel aan.

Vergelijkbare woningen

Hypotheken

Onafhankelijk hypotheekadvies

  • Ligt jouw droomhuis binnen handbereik?
  • Wil je jouw huidige hypotheek verhogen?
  • Is er hypotheekruimte voor verduurzaming?

Blijf op de hoogte

Ontvang als eerste updates over nieuw aanbod en mis geen enkele kans om jouw droomwoning te vinden.

Gratis waardebepaling of verkoopgesprek

Met de vrijblijvende waardecheck weet je snel waar je aan toe bent. Onze makelaars kijken naar de lokale markt en vergelijkbare woningen in jouw buurt om een goede schatting te geven.

Realiseer al jouw woondromen met Ditters

Wij zijn een team van gedreven vastgoedexperts met een passie voor het maken van verbindingen – tussen kopers en verkopers, huurders en verhuurders. Met een frisse kijk op de makelaardij combineren we expertise met creativiteit. Onze makelaars luisteren écht en nemen de tijd om jouw wensen te begrijpen.


Bij Ditters sta je er niet alleen voor. We denken met je mee, begeleiden je in elke stap en zijn altijd bereikbaar voor vragen. Neem gerust contact met ons op – we helpen je graag verder!