Omschrijving

Gelegen in het centrum van het levendige Arnhem biedt deze charmante etage een unieke woonbeleving. Het appartement verkeert in goede staat, is recent voorzien van nieuw buitenschilderwerk en heeft binnen lichte wand en vloerafwerking. Een ideale keuze voor starters.

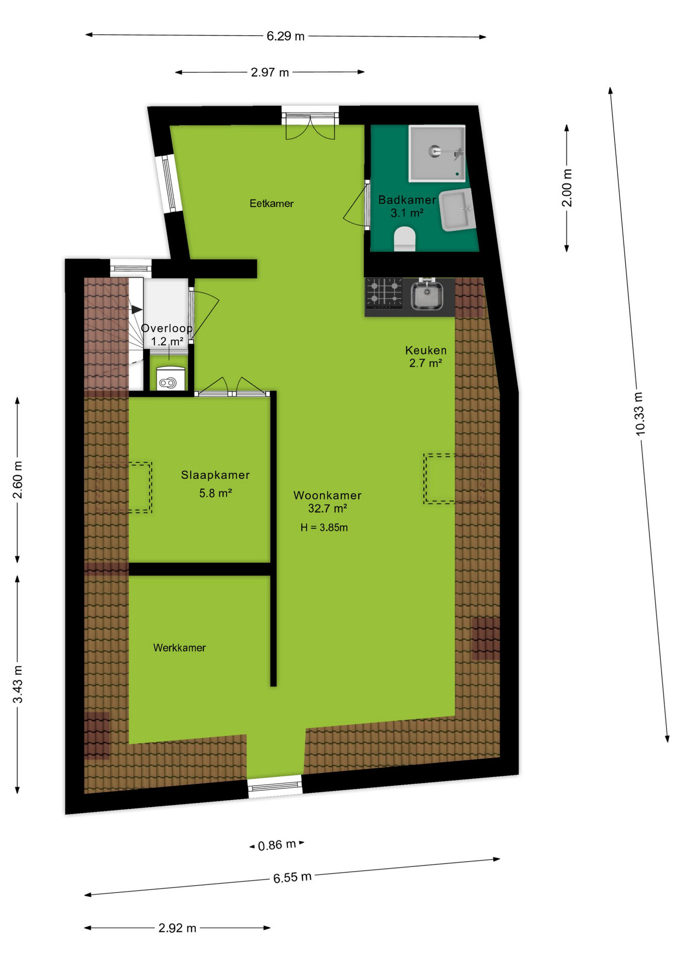
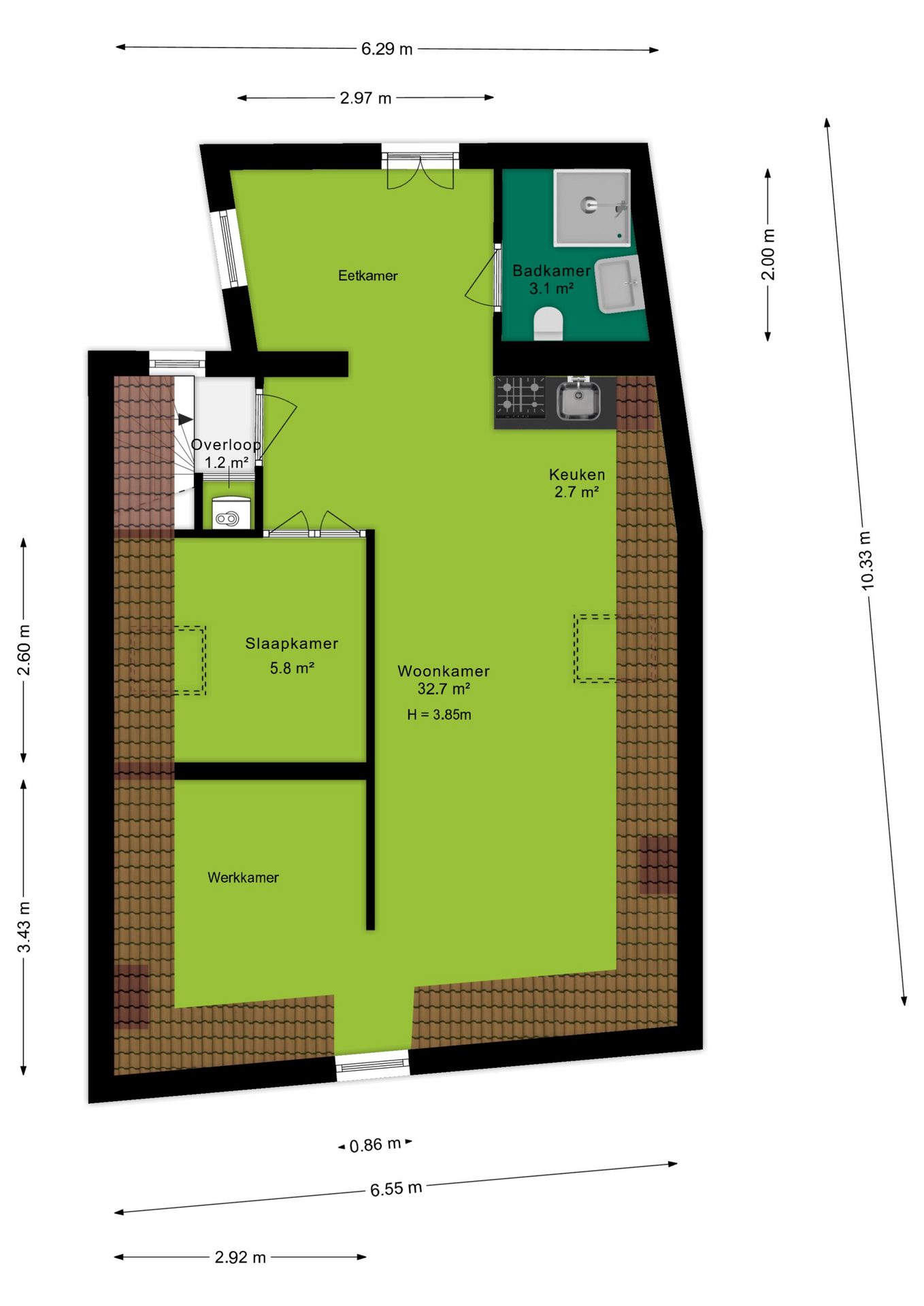
Naast de toplocatie beschikt dit appartement over een aantal opvallende kenmerken. De woonkamer met open keuken heeft een hoog plafond met zichtbare balken, een dakkapel en een dakraam die samen zorgen voor een ruimtelijke atmosfeer en een fijn daglicht. De eetkamer leent zich uitstekend voor gezellige diners, terwijl het Franse balkon van de eetkamer een prachtig uitzicht biedt op de levendige omgeving. Verder is er een nette badkamer (vernieuwd in 2020), een slaapkamer en een praktische werkkamer aanwezig.

In de directe omgeving vind je alles wat je nodig hebt: supermarkten, sportscholen, diverse winkels, gezellige koffietentjes en een aangename horecascene. Bovendien is het huis ideaal gelegen nabij Park Sonsbeek, landgoed Mariëndaal en de Arnhemse bossen, waar je kunt wandelen, ontspannen of aan sport kunt doen. Met het openbaar vervoer praktisch voor de deur reis je gemakkelijk naar omliggende plaatsen of de Randstad, en ben je met de auto in een handomdraai op de A12 of A50. Eventueel kun je een parkeervergunning via de gemeente aanvragen om in Arnhem Centraal te parkeren.

Alle feiten op een rij:
- Bovenwoning met frans balkon en prachtig uitzicht
- Gelegen in het bruisende centrum
- Woonkamer met open keuken
- Recent voorzien van nieuw buitenschilderwerk
- Het geheel is goed onderhouden en voorzien van HR-glas
- Nabij winkels, horecagelegenheden, openbaar vervoer en het geliefde Sonsbeekpark

Indeling
Middels de entree is via de trapopgang het appartement op de derde en tevens bovenste verdieping te bereiken. Hier beschik je over een ruime woonkamer van circa 33m² met open keuken en een hoek welke zich uitstekend leent voor een werk of studeerplek. De woonkamer beschikt over lichte wanden en plafonds en raampartijen middels dakkapel en dakramen. De slaapkamer is ruim genoeg voor een tweepersoonsbed; het dakraam zorgt voor aangenaam daglicht en biedt uitzicht op de omgeving. De badkamer is vernieuwd in 2020 en uitgerust met een douche, wastafel en toilet.

Kenmerken:
Verwarming: C.V.-ketel
Warm water: C.V.-ketel
Isolatie: HR- glas en dakisolatie
Bouwjaar: 1870
Aanvaarding in overleg

Koopovereenkomst:
Bij de verkoop zal er een standaard NVM koopovereenkomst worden gehanteerd. Bij woningen welke ouder zijn dan 20 jaar, worden de volgende clausules opgenomen in de koopovereenkomst:
- Asbestclausule;
- Ouderdomsclausule.

Koop je de woning zonder voorbehoud van financiering? Dan zullen wij een termijn hanteren van 6 weken na het opstellen van de koopovereenkomst voor het storten van de bankgarantie/waarborgsom.

Deze informatie is door ons met de nodige zorgvuldigheid samengesteld. Onzerzijds wordt echter geen enkele aansprakelijkheid aanvaard voor enige onvolledigheid, onjuistheid of anderszins, dan wel de gevolgen daarvan. Alle opgegeven maten en oppervlakten zijn indicatief.
+ toon meer
deze woning is Verkocht

Rijnstraat 78 3 Arnhem

Rijnstraat 78 3

6811 EZ, Arnhem
Ditters open huis: 5 april 2025 10:00 - 12:00 uur
Landelijke Open Huizen Route NVM: 5 april 2025 11:00 uur - 15:00 uur
Vanaf€ 199.500 k.k.

Schakel een aankoopmakelaar in.

Snel handelen helpt je jouw droomhuis te bemachtigen. Zo vergroot je de kans dat je er op tijd bij bent.
Arnhem
verkocht

Of maak vrijblijvend een zoekprofiel aan.

Vergelijkbare woningen

Hypotheken

Onafhankelijk hypotheekadvies

  • Ligt jouw droomhuis binnen handbereik?
  • Wil je jouw huidige hypotheek verhogen?
  • Is er hypotheekruimte voor verduurzaming?

Blijf op de hoogte

Ontvang als eerste updates over nieuw aanbod en mis geen enkele kans om jouw droomwoning te vinden.

Gratis waardebepaling of verkoopgesprek

Met de vrijblijvende waardecheck weet je snel waar je aan toe bent. Onze makelaars kijken naar de lokale markt en vergelijkbare woningen in jouw buurt om een goede schatting te geven.

Realiseer al jouw woondromen met Ditters

Wij zijn een team van gedreven vastgoedexperts met een passie voor het maken van verbindingen – tussen kopers en verkopers, huurders en verhuurders. Met een frisse kijk op de makelaardij combineren we expertise met creativiteit. Onze makelaars luisteren écht en nemen de tijd om jouw wensen te begrijpen.


Bij Ditters sta je er niet alleen voor. We denken met je mee, begeleiden je in elke stap en zijn altijd bereikbaar voor vragen. Neem gerust contact met ons op – we helpen je graag verder!