Comfortabel wonen met moderne afwerking, uitbouw én tuin — Twikkelstraat 3 in Arnhem
Ben jij op zoek naar een goed onderhouden recent gerenoveerde tussenwoning met een moderne uitstraling, een ruime tuin én een uitbouw? Twikkelstraat 3 in Arnhem biedt het allemaal.
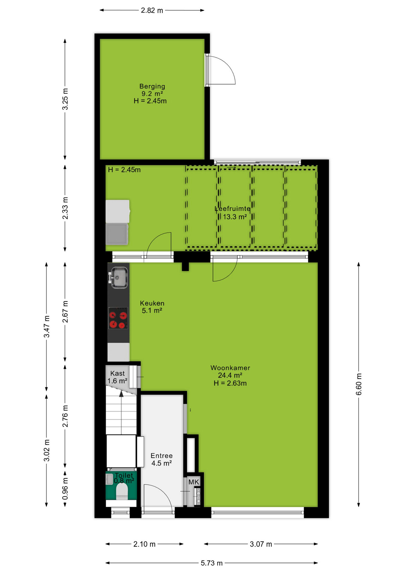
Deze instapklare woning beschikt over ca. 91 m² woonoppervlakte, drie ruime slaapkamers, een lichte woonkamer met serre, een moderne keuken en badkamer én een ruime tuin op het noordwesten. Dankzij de uitbouw (serre, 2024) geniet je van extra leefruimte en veel daglicht in huis. De woning is voorzien van een energielabel C en heeft een praktische bergvliering voor extra opbergruimte. Ideaal voor starters, jonge gezinnen of iedereen die comfortabel en centraal wil wonen.
Twikkelstraat 3 ligt in de rustige en kindvriendelijke wijk Over het Lange Water. Deze wijk staat bekend om het vele groen, de goede bereikbaarheid en de complete voorzieningen in de buurt.
Op een steenworp afstand vind je winkelcentrum Presikhaaf met supermarkten en winkels voor de dagelijkse boodschappen. Voor ontspanning wandel je zo naar het nabijgelegen Park Presikhaaf. Ook scholen, kinderopvang en sportvoorzieningen zijn dichtbij. De binnenstad van Arnhem bereik je binnen een kwartier fietsen en Station Arnhem Presikhaaf ligt op loopafstand. Ook met de auto is de woning uitstekend bereikbaar dankzij de gunstige ligging ten opzichte van de A12, A348 en N325. Parkeren kan gratis voor de deur.
Alle feiten op een rij:
+ Moderne keuken, badkamer en toilet
+ Lichte woonkamer met uitbouw (serre) uit 2024
+ Ruime voor- en achtertuin met berging en achterom
+ Drie volwaardige slaapkamers
+ Bergvliering bereikbaar via vlizotrap
+ Energielabel C, goed onderhouden
+ Rustige ligging in een kindvriendelijke woonwijk
+ Gratis parkeren voor de deur
Indeling:
Begane grond:
Je komt binnen in de hal met modern toilet. De hal geeft toegang tot de lichte woonkamer middels een stalen schuifdeur. De lichte woonkamer beschikt over een gezellige zithoek aan de voorzijde en ruimte voor het plaatsen van een ruime 6 persoons eettafel aan de achterzijde. De moderne keuken is uitgerust met inbouwapparatuur en biedt voldoende kastruimte. Vanuit de keuken is er toegang naar een serre-uitbouw uit 2024.
Eerste verdieping:
Vanaf de overloop heb je toegang tot drie ruime slaapkamers en de moderne badkamer. De slaapkamers beschikken allen over een nette vloer en een fijn lichtinval. De badkamer is compleet ingericht met een ligbad, een aparte douche, een wastafelmeubel en toilet.
Tweede verdieping:
Via een vlizotrap bereik je de praktische bergvliering. Ideaal voor koffers, seizoensspullen of andere opbergruimte die je uit het zicht wilt houden.
Buitenruimte:
De woning beschikt over een ruime voor- en achtertuin, beiden onderhoudsvriendelijk aangelegd. De achtertuin is gelegen op het noordwesten en voorzien van een berging en een handige achterom. Hier geniet je van zon en schaduw en is er voldoende plek voor een loungehoek en speelruimte.
Koopovereenkomst:
- Bij de verkoop zal er een standaard NVM koopovereenkomst worden gehanteerd.
Bij woningen welke ouder zijn dan 20 jaar, worden de volgende clausules opgenomen in de koopovereenkomst:
- Asbestclausule;
- Ouderdomsclausule.
Koop je de woning zonder voorbehoud van financiering? Dan zullen wij een termijn hanteren van 14 dagen na het opstellen van de koopovereenkomst voor het storten van de bankgarantie/waarborgsom.
Deze informatie is door ons met de nodige zorgvuldigheid samengesteld. Onzerzijds wordt echter geen enkele aansprakelijkheid aanvaard voor enige onvolledigheid, onjuistheid of anderszins, dan wel de gevolgen daarvan. Alle opgegeven maten en oppervlakten zijn indicatief.