Omschrijving

Ben je op zoek naar een instapklare woning op een kindvriendelijke locatie? Dan is deze fraaie hoekwoning (3-onder-1-kap) absoluut een bezichtiging waard. Met een royale breedte van maar liefst 6 meter, hoogwaardige materialen en een luxe afwerking biedt deze woning uitzonderlijk wooncomfort. De eigen parkeerplaats, garage, lichte en ruime begane grond en zonnige tuin maken het geheel helemaal compleet.

De begane grond is uitgerust met comfortabele vloerverwarming. De grote raampartijen zorgen voor een prachtige lichtinval en creëren een prettige, open sfeer. Aan de voorzijde vind je de sfeervolle zithoek waar je heerlijk kunt ontspannen. Aan de achterzijde bevindt zich de ruime woonkeuken: ideaal voor een royale eettafel en voorzien van een moderne hoekopstelling met diverse inbouwapparatuur. Tussen de zit- en eetruimte is daarnaast volop ruimte voor een piano, een werkplek of een gezellige speelhoek voor de kinderen. De openslaande deuren naar de achtertuin verbinden binnen en buiten op een natuurlijke manier, perfect voor etentjes, borrels of zomerse barbecues. Dankzij de hoogwaardige afwerking en de royale breedte van zes meter voelt de gehele verdieping ruim, stijlvol en bijzonder comfortabel aan.

De woning is gelegen in de geliefde en kindvriendelijke wijk Schuytgraaf, een moderne en groene woonomgeving in het zuidwesten van Arnhem. Hier woon je in alle rust, omgeven door veel groen, diverse speeltuinen en volop speelmogelijkheden voor kinderen. Alle dagelijkse voorzieningen bevinden zich binnen handbereik: van supermarkten, scholen (ook een internationale school), sportclubs, medische voorzieningen, horecagelegenheden en diverse winkels. Dankzij station Arnhem-Zuid, meerdere buslijnen en de nabijheid van de A50 en A325 is de wijk uitstekend bereikbaar. Brede stoepen, veilige wandelpaden en goed ingerichte speelplekken maken dit een ideale buurt voor gezinnen. In combinatie met de volledige garage, hoogwaardige afwerking en de brede, lichte indeling is deze hoekwoning daarmee een bijzonder aantrekkelijke keuze voor iedereen die ruim, modern en comfortabel wil wonen.

Alle feiten op een rij:
- Royale hoekwoning met maar liefst 159 m² woonoppervlakte
- Eigen oprit met parkeerplaats én aangebouwde garage
- Extra brede woning van 6 meter
- Tussendeur naar de garage
- Volledig geïsoleerd, energielabel A en voorzien van stadsverwarming
- Vloerverwarming op de begane grond
- PU Gietvloer door de gehele woning
- Plafondhoge Piet Boon binnendeuren met “undercover” kozijnen op de begane grond en 1e verdieping
- Kunststof kozijnen, onderhoudsarm en duurzaam
- Gelegen in een moderne, groene en kindvriendelijke wijk

Indeling
Begane grond
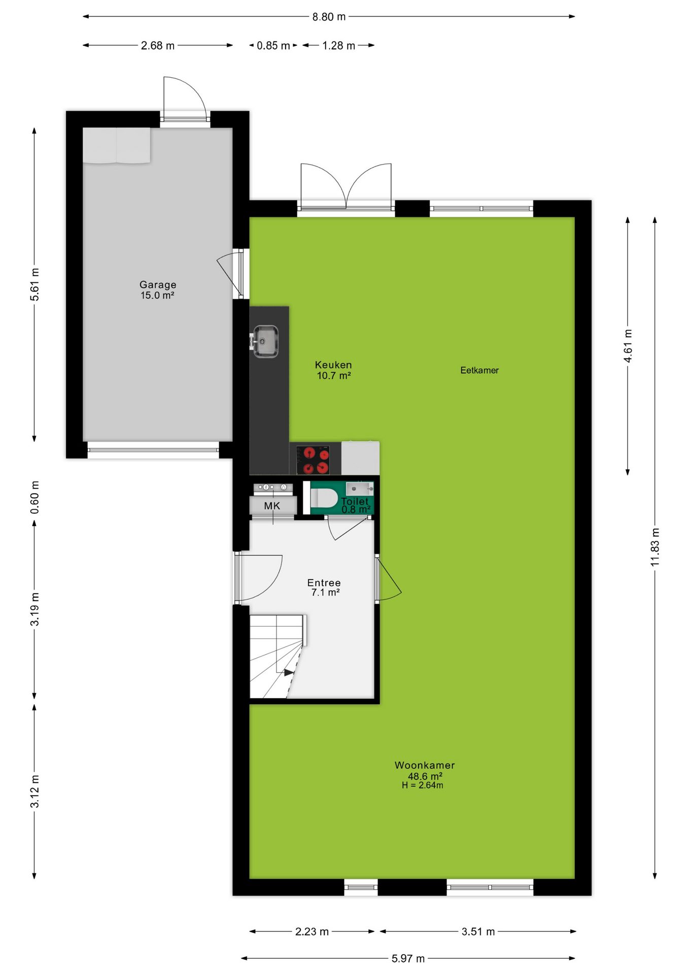
Bij binnenkomst sta je in een ruime en nette hal met toegang tot de moderne toiletruimte, voldoende ruimte voor een praktische garderobe en de trapopgang naar de verdieping. Een stijlvolle glazen deur leidt je naar de woonkamer en geeft direct een voorproefje van de sfeer die deze woonlaag kenmerkt. De begane grond is afgewerkt met een prachtige gietvloer met comfortabele vloerverwarming, waardoor de ruimte warm, strak en bijzonder uitnodigend aanvoelt. Aan de voorzijde bevindt zich de gezellige zithoek, een heerlijke plek om te ontspannen. Aan de achterzijde ligt de ruime woonkeuken, groot genoeg voor een ruime 6 of 8 persoons eettafel en voorzien van een moderne hoekopstelling met diverse inbouwapparatuur waaronder een Quooker kraan en CUBE (gekoeld en bruisend-water). Tussen de zitruimte en keuken is bovendien volop ruimte om een piano te plaatsen, een fijne werkplek te creëren of een speelse kinderhoek in te richten. De openslaande deuren naar de achtertuin verbinden binnen en buiten op een natuurlijke manier, waardoor je in de zomer moeiteloos geniet van diners, borrels en zonnige barbecues. Vanuit de keuken is er daarnaast directe toegang tot de garage, een extra pluspunt voor comfort, gemak. Ideaal om spullen die je uit het zicht wilt houden eenvoudig en overzichtelijk op te bergen.

Eerste verdieping
Op deze verdieping beschik je ook over prachtige, plafondhoge Piet Boon deuren, wat direct zorgt voor een luxe en stijlvolle uitstraling. Hier bevinden zich drie volwaardige slaapkamers van circa 12 m², 12 m² en 9 m², ideaal voor een gezin of voor wie wonen en thuiswerken prettig wil combineren. De badkamer is verzorgd afgewerkt in een lichte, rustige en moderne kleurstelling en uitgerust met een ligbad, aparte douche, wastafelmeubel en toilet. Dankzij het aanwezige raam geniet je van veel natuurlijke lichtinval en kun je de ruimte op een prettige, natuurlijke manier ventileren, naast de aanwezige mechanische ventilatie.

Tweede verdieping
De tweede verdieping beschikt over een vierde slaapkamer die zich uitstekend leent als werkplek of hobbyruimte, maar kan natuurlijk ook eenvoudig worden ingericht als logeerkamer of extra slaapkamer. Achter de schuine wanden bevindt zich bovendien volop bergruimte, ideaal voor het opbergen van seizoensgebonden spullen. Op de ruime overloop vind je daarnaast de wasmachineaansluiting en extra opbergmogelijkheden, waardoor deze verdieping zowel praktisch als veelzijdig is ingedeeld.

Tuin
De achtertuin ligt op het westen, een ideale ligging waarbij je na een lange werkdag nog heerlijk kunt genieten van de avondzon welke tevens is voorzien dan een elektrisch bedienbare knikarm zonnescherm. Of je nu kiest voor een gezellige barbecue met familie of vrienden, of juist voor een rustig moment met een kop koffie, deze tuin biedt voor iedere gelegenheid een fijne plek. Dankzij de praktische indeling en het royale formaat is er volop ruimte om te ontspannen, terwijl kinderen hier veilig en met plezier kunnen spelen. De tuin beschikt over een achterom én biedt directe toegang tot de garage. Deze garage is ideaal voor extra opslag en perfect geschikt voor het stallen van de (bak)fiets, tuinkussens en andere spullen die je graag uit het zicht bewaart.

Koopovereenkomst:
Bij de verkoop zal er een standaard NVM koopovereenkomst worden gehanteerd. Bij woningen welke ouder zijn dan 20 jaar, worden de volgende clausules opgenomen in de koopovereenkomst:
- Asbestclausule
- Ouderdomsclausule

Koop je de woning zonder voorbehoud van financiering? Dan zullen wij een termijn hanteren van 6 weken na het opstellen van de koopovereenkomst voor het storten van de bankgarantie/waarborgsom.

Deze informatie is door ons met de nodige zorgvuldigheid samengesteld. Onzerzijds wordt echter geen enkele aansprakelijkheid aanvaard voor enige onvolledigheid, onjuistheid of anderszins, dan wel de gevolgen daarvan. Alle opgegeven maten en oppervlakten zijn indicatief.
+ toon meer

Video

6846 DJ, Arnhem

Lenteregen 42

Zaterdag 2 augustus 10:00 - 12:00 uur

€ 715.000 k.k.
ditters makelaars arnhem
Kopen

Wat is jouw woning écht waard bij Ditters?

Waardecheck

Wij combineren lokale marktkennis met actuele data en ons grote zoekersbestand in de regio.

Je krijgt niet alleen een waarde, maar inzicht in hoe je de maximale verkoopopbrengst kunt realiseren.

Onze aanpak is strategisch, transparant en volledig afgestemd op jouw situatie.

Goed om te weten: deze waardecheck is vrijblijvend en geheel kosteloos
Onafhankelijk

Hypotheekadvies

We helpen je met het vergelijken van aanbiedingen van verschillende banken, zodat je de beste deal krijgt. 
Wij staan klaar om je te begeleiden, zodat je met vertrouwen de juiste hypotheek kunt kiezen.
Goed om te weten: dit adviesgesprek is vrijblijvend en geheel kosteloos

Wij helpen jou bij de keuze van de juiste polis.

Bij een onbezorgde toekomst horen ook goede verzekeringen die uitkeren bij bijvoorbeeld ziekte, schade of diefstal. Onze assurantieadviseurs helpen je bij de keuze van de juiste polis. In heldere taal.

Diverse verzekeringen

  • Opstalverzekering
  • Aansprakelijkheidsverzekering
  • Zorgverzekering
  • Reisverzekering

Buurtinformatie

Arnhem, Schuytgraaf-Zuid
Inwoners
Woningen
1.365
Inwoners
3.885
28
72
Koop / Huur
28% Huur72% Koop
Huishoudens
Eenpersoon
15.4%
Geen kinderen
21.9%
Met kinderen
62.3%
Leeftijdsopbouw in jaren
Buurt Landelijk
31.08.135.420.84.416.312.324.728.218.5

Locatie

Plattegronden

Klik op de plattegrond voor een grote weergave

Misschien interessant voor jou

Blijf op de hoogte

Ontvang als eerste updates over nieuw aanbod en mis geen enkele kans om jouw droomwoning te vinden.

Gratis waardebepaling of verkoopgesprek

Met de vrijblijvende waardecheck weet je snel waar je aan toe bent. Onze makelaars kijken naar de lokale markt en vergelijkbare woningen in jouw buurt om een goede schatting te geven.