Omschrijving

Deze zeer sfeervolle en gemoderniseerde bovenwoning, bestaande uit 2 verdiepingen beschikt over een heerlijk zonnig dakterras en een eigen berging. De woning is van binnen een plaatje om te zien en helemaal instapklaar. De platte daken zijn in 2016 en 2018 vernieuwd. Ook is er vloerisolatie aangebracht. Daarnaast heeft de woning een sfeervolle en ruime woonkamer met een open keuken, voorzien van 2 slaapkamers en een aparte werkkamer, separate wasruimte en een moderne badkamer met ligbad. Plan gauw een bezichtiging in, wij laten je de woning graag zien!

De Beeldhouwerstraat is gelegen in een rustige en kindvriendelijke wijk op 10 minuten lopen van winkelcentrum Presikhaaf. Het Stadspark en de kinderboerderij liggen op slechts 5 minuten loopafstand, evenals NS-station Arnhem Presikhaaf. Op korte afstand zijn er ook een kinderopvang en scholen. De gezellige binnenstad is gemakkelijk per fiets bereikbaar. Via de nabijgelegen uitvalswegen ben je in korte tijd in steden als Apeldoorn, Nijmegen en Utrecht.

Het appartement maakt deel uit van een Vereniging van Eigenaren samen met de onderburen. De maandelijkse bijdrage bedraagt €75,- en dit is voor de gezamenlijke opstalverzekering. Het onderhoud wordt in overleg met elkaar uitgevoerd. Er is een reservefonds aanwezig en deze bedraagt €5.601,- (december 2024).

Indeling

Begane grond
Entree met hal en trapopgang naar het appartement.

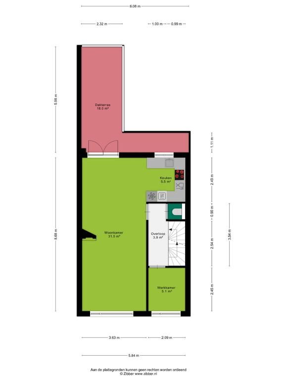
Eerste verdieping
De overloop met toilet geeft toegang tot alle vertrekken. De sfeervolle en ruim bemeten woonkamer heeft een oppervlakte van 31,5m², is voorzien van een laminaatvloer en heerlijk veel lichtinval door de grote raampartijen. Door de fijne afmeting is er plek genoeg voor een eettafel. De open keuken is opgesteld in een lichte kleurstelling en voorzien van diverse inbouwapparatuur, te weten: een gasfornuis, afzuigkap, magnetron, oven (2022), koelkast, vriezer en een vaatwasser (2022). De (werk)kamer heeft een afmeting van 5,1m².

Tweede verdieping
De overloop geeft toegang tot de vertrekken. Deze verdieping is voorzien van een groot dakkapel waardoor je nog meer woongenot ervaart. De slaapkamers hebben een afmeting van 17m² en 4,1m², zijn voorzien van een laminaatvloer en voldoende lichtinval. De badkamer is opgesteld in een moderne kleurstelling en voorzien van een ligbad, inloopdouche, wastafel met wastafelmeubel en een raam om te kunnen ventileren. De wasruimte is voorzien van witgoed-aansluiting en tevens is hier opbergruimte aanwezig.

Vliering
Via een vlizotrap is de vliering bereikbaar waar de C.V.-ketel staat opgesteld. De vloer van de vliering is geheel vervangen en geïsoleerd in 2022.

Dakterras/berging
Dit fantastische dakterras heeft een afmeting van maar liefst 18m² en is gelegen op het zonnige westen. Hier kan je optimaal van het buitenleven en het zonnetje genieten. Er is ook een berging aanwezig op de begane grond. Ideaal voor het stallen van je fiets.

Kenmerken:
Verwarming: C.V.-ketel (bouwjaar 2023)
Warm water: C.V.-ketel (bouwjaar 2023)
Isolatie: vloerisolatie en dubbel glas
Bouwjaar: 1929
Dakterrasligging: Westen
Aanvaarding: In overleg

Extra's:
- Sfeervolle en gemoderniseerde bovenwoning;
- Ruime woonkamer met heerlijk veel lichtinval;
- Keuken voorzien van diverse inbouwapparatuur;
- Badkamer met ligbad en inloopdouche;
- Voorzien van 2 slaapkamers en aparte (werk)kamer;
- Heerlijk zonnig dakterras gelegen op het westen;
- Eigen berging op de begane grond;
- Bitumendakbedekking in 2016 en 2018 vernieuwd;
- Gelegen nabij diverse voorzieningen en uitvalswegen.

Koopovereenkomst
Bij de verkoop zal er een standaard NVM koopovereenkomst worden gehanteerd. Bij woningen welke ouder zijn dan 20 jaar, worden de volgende clausules opgenomen in de koopovereenkomst:
- Asbestclausule;
- Ouderdomsclausule.

Koop je de woning zonder voorbehoud van financiering? Dan zullen wij een termijn hanteren van 14 dagen na het opstellen van de koopovereenkomst voor het storten van de bankgarantie/waarborgsom.

Deze informatie is door ons met de nodige zorgvuldigheid samengesteld. Onzerzijds wordt echter geen enkele aansprakelijkheid aanvaard voor enige onvolledigheid, onjuistheid of anderszins, dan wel de gevolgen daarvan. Alle opgegeven maten en oppervlakten zijn indicatief.
+ toon meer
deze woning is Verkocht

Beeldhouwerstraat 12 Arnhem

Beeldhouwerstraat 12

6824 EH, Arnhem
Ditters open huis: 5 april 2025 10:00 - 12:00 uur
Landelijke Open Huizen Route NVM: 5 april 2025 11:00 uur - 15:00 uur
Vanaf€ 350.000 k.k.

Schakel een aankoopmakelaar in.

Snel handelen helpt je jouw droomhuis te bemachtigen. Zo vergroot je de kans dat je er op tijd bij bent.
Arnhem
verkocht

Of maak vrijblijvend een zoekprofiel aan.

Vergelijkbare woningen

Hypotheken

Onafhankelijk hypotheekadvies

  • Ligt jouw droomhuis binnen handbereik?
  • Wil je jouw huidige hypotheek verhogen?
  • Is er hypotheekruimte voor verduurzaming?

Blijf op de hoogte

Ontvang als eerste updates over nieuw aanbod en mis geen enkele kans om jouw droomwoning te vinden.

Gratis waardebepaling of verkoopgesprek

Met de vrijblijvende waardecheck weet je snel waar je aan toe bent. Onze makelaars kijken naar de lokale markt en vergelijkbare woningen in jouw buurt om een goede schatting te geven.

Realiseer al jouw woondromen met Ditters

Wij zijn een team van gedreven vastgoedexperts met een passie voor het maken van verbindingen – tussen kopers en verkopers, huurders en verhuurders. Met een frisse kijk op de makelaardij combineren we expertise met creativiteit. Onze makelaars luisteren écht en nemen de tijd om jouw wensen te begrijpen.


Bij Ditters sta je er niet alleen voor. We denken met je mee, begeleiden je in elke stap en zijn altijd bereikbaar voor vragen. Neem gerust contact met ons op – we helpen je graag verder!