Omschrijving

Gelegen in één van de mooiste wijken van Arnhem bevindt zich deze prachtige villa met een woonoppervlakte van 227m². Deze villa is gebouwd in 1926 en vele oorspronkelijke details zijn vandaag de dag bewaard gebleven die het karakter van het pand benadrukken. De villa onderscheidt zich door haar ruimtelijke en niet alledaagse ontwerp. Met een unieke oriëntatie op het zuidoosten, zuiden en zuidwesten, baadt de woning in natuurlijk licht gedurende de dag. Het bijzondere trappenhuis en de aparte trap naar de zolderverdieping voegen een extra dimensie toe aan de architectuur van het huis. De oorspronkelijke indeling van de villa is vrijwel geheel bewaard gebleven, wat bijdraagt aan de authentieke uitstraling en charme van het pand. De huidige eigenaren hebben veel aandacht besteed aan moderne comfort met verbeterde isolatie en dat is door de gehele woning terug te zien.

Deze prachtige woning is gelegen in de charmante Burgemeesterswijk, op 5 minuten afstand van het NS station Arnhem Centraal. Deze wijk wordt gekenmerkt door veel groen en karakteristieke hoogteverschillen. Voor een fijne wandeling loop je zo Park Sonsbeek in en ook diverse voorzieningen, waaronder scholen en supermarkten, zijn op korte afstand bereikbaar. Het bruisende centrum van Arnhem bevindt zich eveneens om de hoek.

Indeling

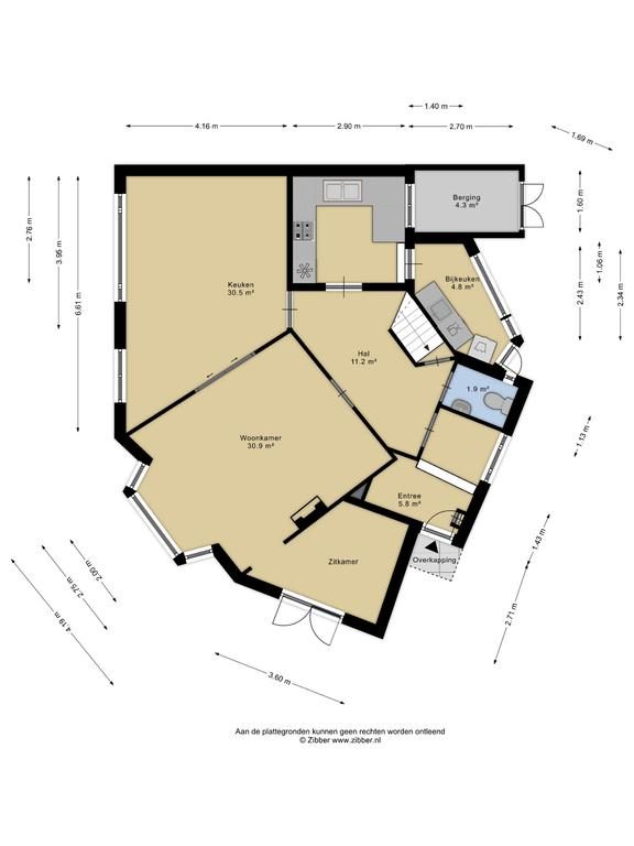
Begane grond
Middels de entree met vestibule bereik je de hal. Bij binnenkomst wordt je meteen verrast door de karakteristieke uitstraling met de granietenvloer en de glas-in-lood ramen. De hal met toilet en toegang tot de kelder geeft je toegang tot alle vertrekken. Allereerst de sfeervolle en royale woonkamer met en-suite deuren naar de eetkamer. Door de vele raampartijen is er heerlijk veel lichtinval. Er is een houtkachel aanwezig wat bijdraagt aan extra sfeer. Naast de woon-eetkamer is nog een zitkamer met openslaande deuren naar de tuin. Vanuit de hal is ook de keuken te bereiken. De keuken is voorzien van diverse inbouwapparatuur, te weten: halogeen kookplaat, afzuigkap, combimagnetron, elektrische oven en een koelkast. Naast de keuken is de praktische bijkeuken aanwezig. In de bijkeuken is een keukenblok geplaatst met een vaatwasser en een vriezer. Tevens is hier de wasmachine-aansluiting aanwezig.

Eerste verdieping
Het bijzondere trappenhuis geeft je toegang tot de eerste verdieping. Deze verdieping telt 3 slaapkamers, 2 badkamers en een separaat toilet. De slaapkamers zijn goed bemeten met een afmeting van 21,1m², 16,5m² en 7,7m². De grootste slaapkamer geeft toegang tot het balkon aan de voorzijde en aan de deze kamer grenst de eerste badkamer. Deze badkamer is voorzien van een inloopdouche, wastafel en een raam om te kunnen ventileren. De tweede badkamer is te bereiken via de royale overloop en is voorzien van een ligbad, inloopdouche en een wastafel. Vanuit deze badkamer krijg je toegang tot het 2e balkon welke is gelegen aan de achterzijde van de woning.

Tweede verdieping
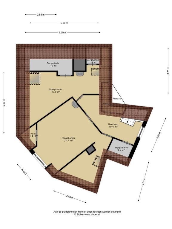
Via een vaste trap bereik je de volwaardig tweede verdieping. Deze verdieping telt nog eens 2 slaapkamers en veel opbergruimte. De slaapkamers zijn royaal bemeten met een oppervlakte van 27,7m² en 19m² en beide voorzien van een eigen wastafel. Er is veel opbergruimte aanwezig, ideaal voor het opslaan van je spullen.

Tuin/ berging
De buitenruimtes zijn net zo indrukwekkend als het interieur! Aan de achterzijde vindt je een gezellige plaats, terwijl de voorzijde een seizoenstuin biedt met een hardhouten terras. Deze tuin transformeert met de seizoenen: in de winter biedt de bladverliezende haag veel zonlicht, terwijl het vanaf het voorjaar een besloten groene oase wordt, volledig afgeschermd van de straat. Je kunt hier optimaal van het buitenleven én het zonnetje genieten. Er is tevens een handige berging aanwezig, ideaal voor het stallen van je fiets.

Kenmerken:
Verwarming: C.V.-combiketel (bouwjaar 2011)
Warm water: C.V.-combiketel (bouwjaar 2011)
Bouwjaar: 1926
Isolatie: muurisolatie, vloerisolatie, dakisolatie en dubbel glas (o.a.vacuumglas /Fineo)
Energielabel: C
Tuinligging: Zuid
Aanvaarding: in overleg

Pluspunten van de woning:
+ Unieke en zeer karakteristieke villa;
+ Gebouwd in 1926;
+ Oorspronkelijke details zijn bewaard gebleven;
+ Veel lichtinval door de gehele woning;
+ Sfeervolle en royale woonkamer en-suite met houtkachel;
+ Keuken voorzien van diverse inbouwapparatuur;
+ Aparte bijkeuken;
+ Voorzien van 5 (slaap)kamers en 2 badkamers;
+ Heerlijke zonnige tuin met hardhouten terras;
+ Gelegen nabij Park Sonsbeek en andere diverse voorzieningen.

Koopovereenkomst:
Bij de verkoop zal er een standaard NVM koopovereenkomst worden gehanteerd. Bij woningen welke ouder zijn dan 20 jaar, worden de volgende clausules opgenomen in de koopovereenkomst:
- Asbestclausule;
- Ouderdomsclausule.

Koop je de woning zonder voorbehoud van financiering? Dan zullen wij een termijn hanteren van 14 dagen na het opstellen van de koopovereenkomst voor het storten van de bankgarantie/waarborgsom.

Deze informatie is door ons met de nodige zorgvuldigheid samengesteld. Onzerzijds wordt echter geen enkele aansprakelijkheid aanvaard voor enige onvolledigheid, onjuistheid of anderszins, dan wel de gevolgen daarvan. Alle opgegeven maten en oppervlakten zijn indicatief.
+ toon meer
deze woning is Verkocht

Roellstraat 20 Arnhem

Roellstraat 20

6814 JD, Arnhem
Ditters open huis: 5 april 2025 10:00 - 12:00 uur
Landelijke Open Huizen Route NVM: 5 april 2025 11:00 uur - 15:00 uur
Vanaf€ 1.025.000 k.k.

Schakel een aankoopmakelaar in.

Snel handelen helpt je jouw droomhuis te bemachtigen. Zo vergroot je de kans dat je er op tijd bij bent.
Arnhem
verkocht

Of maak vrijblijvend een zoekprofiel aan.

Vergelijkbare woningen

Hypotheken

Onafhankelijk hypotheekadvies

  • Ligt jouw droomhuis binnen handbereik?
  • Wil je jouw huidige hypotheek verhogen?
  • Is er hypotheekruimte voor verduurzaming?

Blijf op de hoogte

Ontvang als eerste updates over nieuw aanbod en mis geen enkele kans om jouw droomwoning te vinden.

Gratis waardebepaling of verkoopgesprek

Met de vrijblijvende waardecheck weet je snel waar je aan toe bent. Onze makelaars kijken naar de lokale markt en vergelijkbare woningen in jouw buurt om een goede schatting te geven.

Realiseer al jouw woondromen met Ditters

Wij zijn een team van gedreven vastgoedexperts met een passie voor het maken van verbindingen – tussen kopers en verkopers, huurders en verhuurders. Met een frisse kijk op de makelaardij combineren we expertise met creativiteit. Onze makelaars luisteren écht en nemen de tijd om jouw wensen te begrijpen.


Bij Ditters sta je er niet alleen voor. We denken met je mee, begeleiden je in elke stap en zijn altijd bereikbaar voor vragen. Neem gerust contact met ons op – we helpen je graag verder!