Omschrijving

Royale 2-onder-1 kapwoning met garage, eigen parkeerplaats, maar liefst 5 slaapkamers, veel bergruimte en heerlijke achtertuin op het zonnige zuidwesten. Een snelle opsomming van wat deze woning allemaal te bieden heeft! En dan is er ook nog de geweldige ligging in een van de populairste buurten van Schuytgraaf. De aanwezige stadsverwarming, 16 stuks zonnepanelen en het energielabel A++ zorgt ervoor dat jouw nieuwe (t)huis klaar is voor de toekomst.

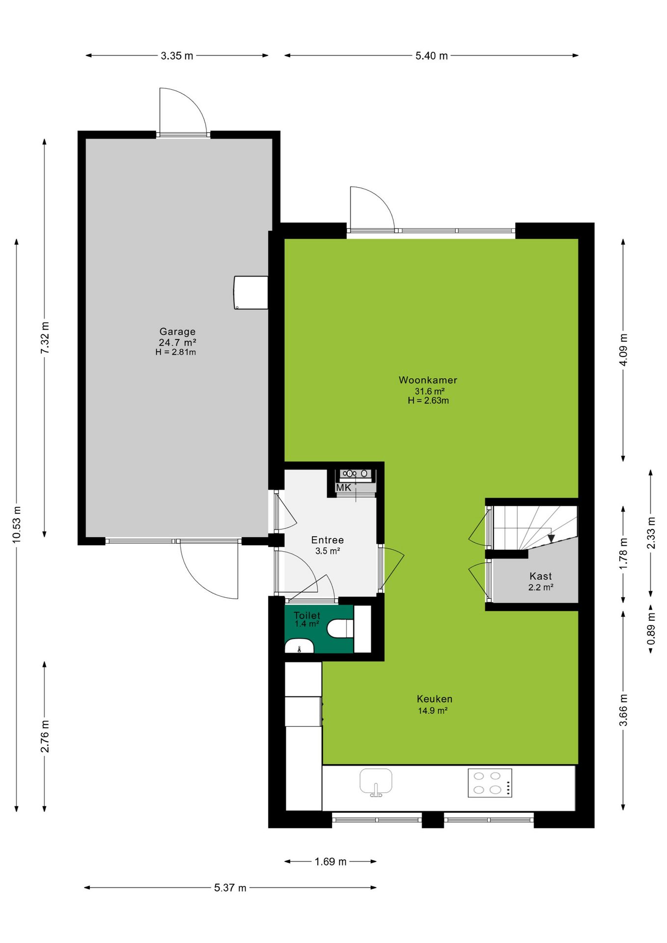
In de woning beschik je over een open keuken aan de voorzijde en een ruime tuingerichte woonkamer van circa 32m². De nieuwe keuken, geplaatst in 2024, beschikt over diverse inbouwapparatuur en veel werkruimte. Op de verdiepingen heb je maar liefst 5 slaapkamers, een badkamer en twee bergingen. Kortom, genoeg ruimte voor het gehele gezin! In de heerlijke tuin, gelegen op het zuidwesten, kun je uitstekend genieten van een plekje in de zon of in de schaduw. De aanwezige garage zorgt voor genoeg bergruimte (denk aan het stallen van een motor, bakfiets en het opbergen van de tuinkussens), biedt een achterom en vanuit de garage is de woning te bereiken.

Schuytgraaf ligt op korte afstand van de bruisende binnenstad en beschikt over diverse voorzieningen, zoals: meerdere basisscholen, een internationale school, sportcomplexen, horecagelegenheden en supermarkten. Tevens door het openbare vervoer (station Arnhem-Zuid) en de uitvalswegen A50 en A325 is de woning ideaal gelegen. Verder is de woning gelegen binnen een rustige straat en zijn er diverse speelplekjes en groenstroken in de nabije omgeving.

Alle feiten op een rij:
- Royale woning met 158m² woonoppervlakte en maar liefst 5 slaapkamers
- Moderne badkamer (deels gerenoveerd in 2024)
- Parketvloer op de begane grond is in 2024 opnieuw geschuurd en gelakt
- Luxe inbouwkeuken, geplaatst in 2024, met veel werkruimte
- Alle ramen zijn voorzien van rolluiken en horren
- Verwarming middels stadsverwarming
- Volledig geïsoleerd, 16 stuks zonnepanelen en energielabel A++
- Eigen oprit met parkeerplaats en laadpaal, garage en zonnige tuin op het zuidwesten
- Luxe afgewerkt, biedt veel ruimte en instapklaar
- Gelegen in een populaire buurt in de wijk Schuytgraaf

Indeling
Begane grond
Via een eigen oprit, waar je gemakkelijk de auto op eigen terrein kunt parkeren, bereik je de woning. De entree met ruime hal, meterkast, inpandige toegang tot de garage en toiletruimte geeft tot de leefruimte van de woning. De royale woonkamer is voorzien van een houten parket vloer en heerlijk veel lichtinval door de aanwezige raampartijen. De luxe keuken is geplaatst in 2024 en is gelegen aan de voorzijde van de woning. De keuken is opgesteld in een lichte kleurstelling, voorzien van hoogwaardige keukenkast-indeling en van diverse luxe a-merk inbouwapparatuur, te weten: een kookplaat met geïntegreerde afzuiging, combi-oven/magnetron, koel-/vriescombinatie en een vaatwasser. Tevens beschik je over een trapkast met een fijne bergruimte voor extra voorraad.

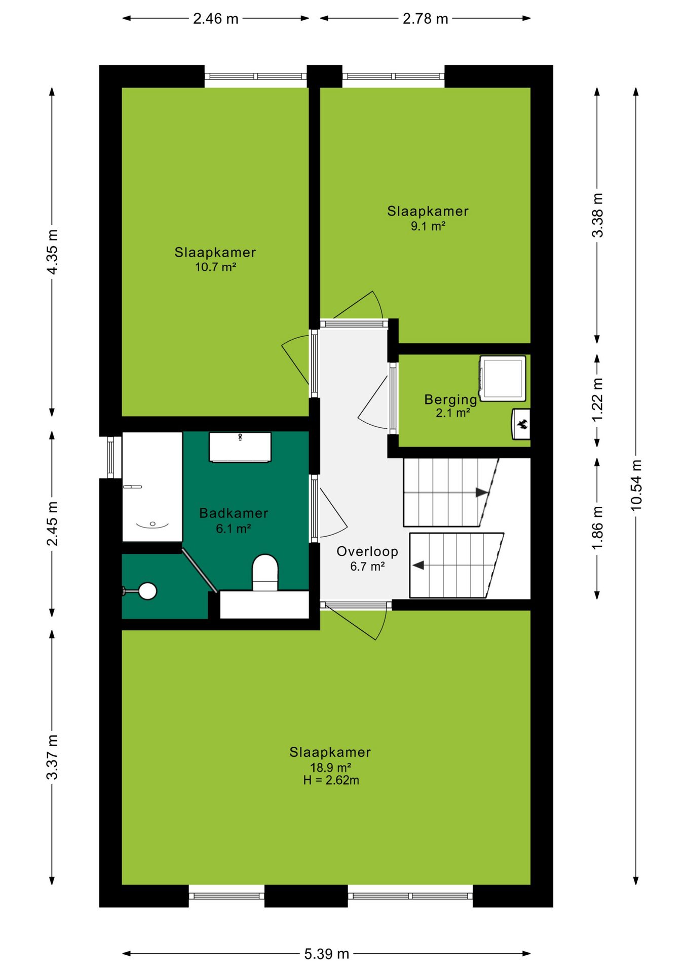
Eerste verdieping
De ruime overloop geeft je toegang tot 3 slaapkamers, de badkamer en een vaste kast met witgoed aansluiting. De slaapkamers zijn goed bemeten met een oppervlakte van 20m², 11m² en 9m². De slaapkamers zijn voorzien van een laminaatvloer en voldoende lichtinval. De complete badkamer is opgesteld in een moderne kleurstelling en voorzien van een ligbad, douche, wastafelmeubel en tweede toilet. Tevens is er een raam aanwezig voor een fijn daglicht en om, naast de aanwezige mechanische ventilatie, de badkamer ook op een natuurlijke manier te kunnen ventileren.

Tweede verdieping
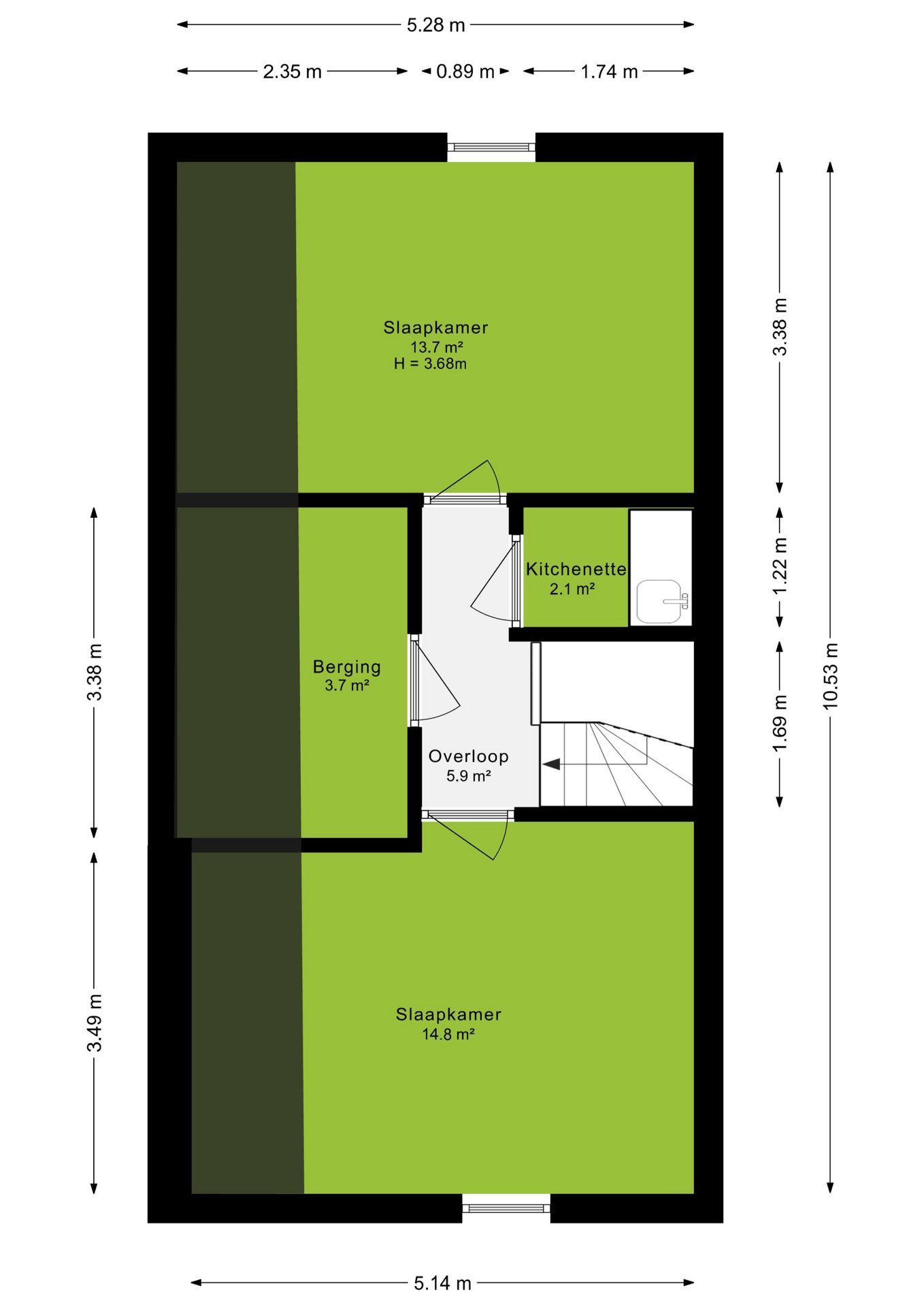
Via een vaste trap bereik je volwaardige 2e verdieping en deze verdieping zal je echt verrassen! Hier bevinden zich namelijk nog eens 2 slaapkamers, een ruime berging en een kitchenette. De slaapkamers zijn circa 15m² en 14m² en door de hoge plafonds voelen de slaapkamers heerlijk ruim aan.
De berging van circa 4m² geeft extra bergruimte. De huidige bewoners hebben een praktische kitchenette gerealiseerd in de vaste kast. Deze etage is ook gemakkelijk voor andere doeleinden te gebruiken, te denken valt aan: een werk-, sport-, hobby- of logeerkamer.

Tuin
Wat een fantastische tuin! Hier kan je optimaal van het buitenleven, het zonnetje en de rust genieten. Door de huidige inrichting en beplanting ervaar je hier veel privacy en rust. Er is zowel een heerlijk terras grenzend aan de woonkamer als achterin de tuin, hierdoor kan je altijd genieten van een plekje in de zon of in de schaduw. Ook onder het elektrische zonnescherm kan je genieten van een plekje in de schaduw.

Kenmerken:
Verwarming: Stadsverwarming
Warm water: Stadsverwarming
Bouwjaar: 2008
Tuin: Zuidwesten
Isolatie: Volledig geïsoleerd
Aanvaarding: In overleg

Koopovereenkomst:
Bij de verkoop zal er een standaard NVM koopovereenkomst worden gehanteerd. Bij woningen welke ouder zijn dan 20 jaar, worden de volgende clausules opgenomen in de koopovereenkomst:
- Asbestclausule
- Ouderdomsclausule

Koop je de woning zonder voorbehoud van financiering? Dan zullen wij een termijn hanteren van 14 dagen na het opstellen van de koopovereenkomst voor het storten van de bankgarantie/waarborgsom.

Deze informatie is door ons met de nodige zorgvuldigheid samengesteld. Onzerzijds wordt echter geen enkele aansprakelijkheid aanvaard voor enige onvolledigheid, onjuistheid of anderszins, dan wel de gevolgen daarvan. Alle opgegeven maten en oppervlakten zijn indicatief.
+ toon meer
deze woning is Verkocht

Staatsspoor 18 Arnhem

Staatsspoor 18

6846 GB, Arnhem
Ditters open huis: 5 april 2025 10:00 - 12:00 uur
Landelijke Open Huizen Route NVM: 5 april 2025 11:00 uur - 15:00 uur
Vanaf€ 695.000 k.k.

Schakel een aankoopmakelaar in.

Snel handelen helpt je jouw droomhuis te bemachtigen. Zo vergroot je de kans dat je er op tijd bij bent.
Arnhem
verkocht

Of maak vrijblijvend een zoekprofiel aan.

Vergelijkbare woningen

Hypotheken

Onafhankelijk hypotheekadvies

  • Ligt jouw droomhuis binnen handbereik?
  • Wil je jouw huidige hypotheek verhogen?
  • Is er hypotheekruimte voor verduurzaming?

Blijf op de hoogte

Ontvang als eerste updates over nieuw aanbod en mis geen enkele kans om jouw droomwoning te vinden.

Gratis waardebepaling of verkoopgesprek

Met de vrijblijvende waardecheck weet je snel waar je aan toe bent. Onze makelaars kijken naar de lokale markt en vergelijkbare woningen in jouw buurt om een goede schatting te geven.

Realiseer al jouw woondromen met Ditters

Wij zijn een team van gedreven vastgoedexperts met een passie voor het maken van verbindingen – tussen kopers en verkopers, huurders en verhuurders. Met een frisse kijk op de makelaardij combineren we expertise met creativiteit. Onze makelaars luisteren écht en nemen de tijd om jouw wensen te begrijpen.


Bij Ditters sta je er niet alleen voor. We denken met je mee, begeleiden je in elke stap en zijn altijd bereikbaar voor vragen. Neem gerust contact met ons op – we helpen je graag verder!