Omschrijving

Op zoek naar een compleet gerenoveerde woning (label B) mét behoud van originele elementen en heerlijke tuin van maar liefst 20 meter diep? Kom dan snel kijken, deze woning is van binnen werkelijk een plaatje om te zien!

Deze perfect onderhouden benedenwoning met woonkeuken, volwaardig souterrain en een extra verdieping heeft een zeer authentieke en sfeervolle uitstraling en is gelegen op korte afstand van het bruisende centrum van Arnhem. Deze fraaie woning is ca 164m² groot en is recent (2023/2024) compleet gemoderniseerd. Kenmerkend voor deze woning is de sfeervolle uitstraling in combinatie met veel luxe.

Deze woning is echt een genot om te bezichtigingen: veel woonruimte (3 verdiepingen), een ruim souterrain met 2 (slaap)kamers, meerdere indelingsmogelijkheden (2 woonkamers of werken aan huis mogelijk) en veel buitenruimte door de tuin van maar liefst 20m diep. Deze instapklare woning is recent compleet gemoderniseerd, waardoor er een zeer prettige indeling is ontstaan en de volgende aspecten zullen je ook vast verrassen: woonkeuken met kookeiland en met diverse inbouwapparatuur, moderne badkamer, sfeervolle woonkamer met een hoog plafond, een aparte werkruimte en een strakke afwerking. Daarnaast is er in de achtertuin een veranda (21m²) geplaatst welke ook gebruikt kan worden als thuiswerkplek / gastenverblijf.

Deze benedenwoning ligt aan de Zuidelijke Parallelweg met overwegend 19e-eeuwse herenhuizen. De woning bevindt zich in het geliefde Arnhem-Noord dichtbij het stadscentrum met al haar sfeervolle restaurants en barretjes. Ook het Centraal Station, een bushalte, Landgoed Mariëndaal en de diverse uitvalswegen zijn op korte afstand gelegen.

Het appartement maakt deel uit van een functionerende VvE en de maandelijkse bijdrage bedraagt €100,-

Indeling

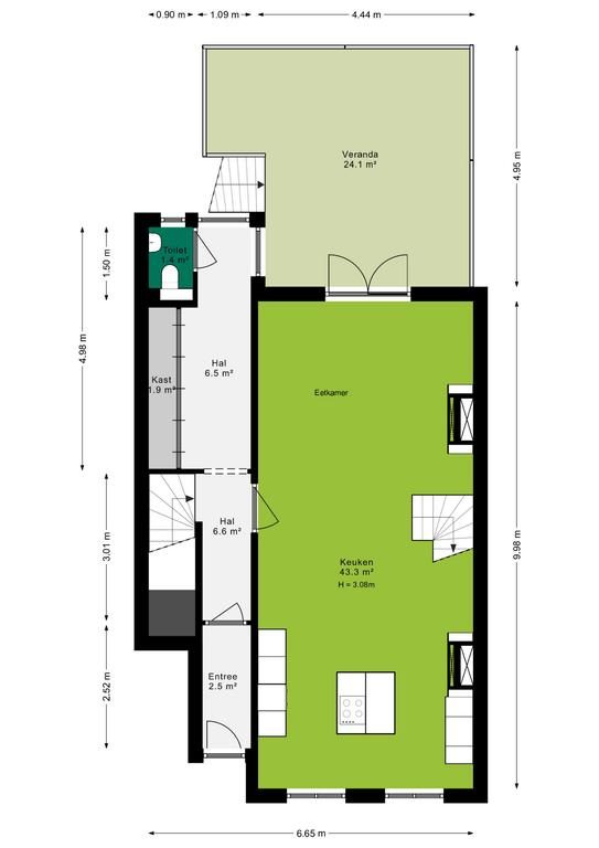
Begane grond
Via de entree met hal bereik je de fraaie woonkamer met open keuken. De woonkeuken (2023) is opgesteld in een moderne kleurstelling en is voorzien van een groot kookeiland. Er is diverse inbouwapparatuur (Bosch) aanwezig, te weten: een kookplaat, afzuigkap, combi-oven/magnetron, koelkast, vriezer, vaatwasser en een Quooker. Door de royale afmeting is er ruimte genoeg voor een grote eettafel. Er is heerlijk veel lichtinval aanwezig door de grote raampartijen. De openslaande deuren geven toegang tot het terras en de tuin. De 2e hal met toilet geven eveneens toegang tot het ruime terras en de tuin welke beide gelegen zijn op het zonnige zuiden.

Eerste verdieping
De trap geeft toegang tot de 2e woonkamer welke op deze etage is gelegen. De woonkamer geeft een hotel chique uitstraling en heeft een royale afmeting. Deze ruimte is ook uitstekend te gebruiken als werkkamer of als eigen zelfstandige etage voor bijvoorbeeld oudere thuiswonende kinderen (eigen woonkamer, slaapkamer en balkon). De hoge plafonds, ornamenten in het plafonds en de paneeldeuren geven enorm veel sfeer en charme aan de woonkamer. Ook hier is veel lichtinval aanwezig door de grote raampartijen. Er zijn stalen schuifdeuren geplaatst tussen de slaapkamer en de woonkamer. Tevens is er airconditioning op deze etage aanwezig.

Souterrain
De overloop geeft toegang tot alle vertrekken. De 2 slaapkamers zijn goed bemeten, hebben een goede stahoogte en zijn voorzien van voldoende lichtinval. De royale badkamer is gemoderniseerd in 2023 en is opgesteld in een lichte kleurstelling en is voorzien van een ruime inloopdouche met twee stortdouches, een vrijstaand ligbad, een dubbele wastafel met wastafelmeubel en een toilet. Daarnaast is er ook vloerverwarming aanwezig in de badkamer. Vanuit de badkamer en de slaapkamer aan de achterzijde kan je zo de heerlijke tuin (zuid) in lopen.

Tuin
Deze fantastische stadstuin is maar liefst ca. 20 meter diep en is gelegen op het zonnige zuiden. Je kunt hier gemakkelijke meerdere terrasjes en/of speelplekjes creëren en door de diepe afmeting is er altijd wel een plekje in de zon of schaduw te vinden. Achter in de tuin bevindt zich een fraai en volwaardig tuinhuis welke te gebruiken is als tuinkamer, kantoor of gastenverblijf. Optimaal genieten van het buitenleven! In de voortuin is een fietsenberging geplaatst.

Kenmerken:
Verwarming: C.V. combiketel (bouwjaar 2023)
Warm water: C.V. combiketel (bouwjaar 2023)
Isolatie: grotendeels muurisolatie en grotendeels dubbel glas
Bouwjaar: 1902
Balkon en tuinligging: zuiden

Extra's:
- Geliefde ligging met karakteristieke woningen;
- Compleet gemoderniseerd in 2023/2024;
- Luxe woonkeuken met Bosch apparatuur;
- Vernieuwde en complete badkamer;
- Algeheel strakke en luxe afwerking;
- Heerlijk terras en fantastische tuin van 20 meter diep gelegen op het zuiden;
- Zeer goed onderhouden;
- Veranda geplaatst in 2023;
- Fietsenberging in de voortuin;
- Voorzien van 10 zonnepanelen;
- Aan de achterzijde is het schilderwerk in 2024 uitgevoerd;
- De woning is gelegen nabij diverse voorzieningen en uitvalswegen.

Koopovereenkomst:
Bij de verkoop zal er een standaard NVM koopovereenkomst worden gehanteerd. Bij woningen welke ouder zijn dan 20 jaar, worden de volgende clausules opgenomen in de koopovereenkomst:
- Asbestclausule;
- Ouderdomsclausule.

Koopt u de woning zonder voorbehoud van financiering? Dan zullen wij een termijn hanteren van 14 dagen na het opstellen van de koopovereenkomst voor het storten van de bankgarantie/waarborgsom.

Deze informatie is door ons met de nodige zorgvuldigheid samengesteld. Onzerzijds wordt echter geen enkele aansprakelijkheid aanvaard voor enige onvolledigheid, onjuistheid of anderszins, dan wel de gevolgen daarvan. Alle opgegeven maten en oppervlakten zijn indicatief.
+ toon meer
deze woning is Verkocht

Zuidelijke Parallelweg 14 Arnhem

Zuidelijke Parallelweg 14

6812 BN, Arnhem
Ditters open huis: 5 april 2025 10:00 - 12:00 uur
Landelijke Open Huizen Route NVM: 5 april 2025 11:00 uur - 15:00 uur
Vanaf€ 735.000 k.k.

Schakel een aankoopmakelaar in.

Snel handelen helpt je jouw droomhuis te bemachtigen. Zo vergroot je de kans dat je er op tijd bij bent.
Arnhem
verkocht

Of maak vrijblijvend een zoekprofiel aan.

Vergelijkbare woningen

Hypotheken

Onafhankelijk hypotheekadvies

  • Ligt jouw droomhuis binnen handbereik?
  • Wil je jouw huidige hypotheek verhogen?
  • Is er hypotheekruimte voor verduurzaming?

Blijf op de hoogte

Ontvang als eerste updates over nieuw aanbod en mis geen enkele kans om jouw droomwoning te vinden.

Gratis waardebepaling of verkoopgesprek

Met de vrijblijvende waardecheck weet je snel waar je aan toe bent. Onze makelaars kijken naar de lokale markt en vergelijkbare woningen in jouw buurt om een goede schatting te geven.

Realiseer al jouw woondromen met Ditters

Wij zijn een team van gedreven vastgoedexperts met een passie voor het maken van verbindingen – tussen kopers en verkopers, huurders en verhuurders. Met een frisse kijk op de makelaardij combineren we expertise met creativiteit. Onze makelaars luisteren écht en nemen de tijd om jouw wensen te begrijpen.


Bij Ditters sta je er niet alleen voor. We denken met je mee, begeleiden je in elke stap en zijn altijd bereikbaar voor vragen. Neem gerust contact met ons op – we helpen je graag verder!