Omschrijving

Gelegen op 8e woonlaag (bovenste verdieping en fraai uitzicht) in een prachtige omgeving bevindt zich dit ruime appartement met maar liefst 100m² woonoppervlakte. Apart wordt aangeboden de garage a € 25.000,= k.k.

De ligging van dit appartement is echt perfect te noemen: middenin de bossen, dus gegarandeerd een prachtig uitzicht en op korte afstand van het winkelcentrum "De Weerd".

Dit ruime appartement (voormalig 4-kamerappartement) is voorzien van een royale woonkamer met heerlijk veel lichtinval, keuken voorzien van diverse inbouwapparatuur, ruime badkamer en separaat toilet, voorzien van 2 slaapkamers en de mogelijkheid tot het creëren van een 3e (slaap)kamer. Daarnaast telt de woning 2 balkons en doordat de woning is gelegen op de 8e etage, bent u iedere dag gegarandeerd van een fantastisch vrij uitzicht over de bossen. Plan gauw een bezichtiging in, wij leiden u graag rond!

Het appartementencomplex ligt op korte afstand van diverse wandelgebieden maar ook dichtbij het gezellige centrum van Doorwerth. Houdt u van wandelen? Ook dan bent u hier aan het goede adres want u loopt zo naar het geliefde kasteel van Doorwerth. Daarnaast zijn ook de belangrijke uitvalswegen zoals de N225 en A50 in de nabije omgeving. Het appartementencomplex is voorzien van een lift en beschikt over een actieve VvE. De servicekosten voor het appartement bedragen €295 per maand (inclusief kosten C.V. contract) en de servicekosten voor de garage bedraagt €28,50,- per maand.

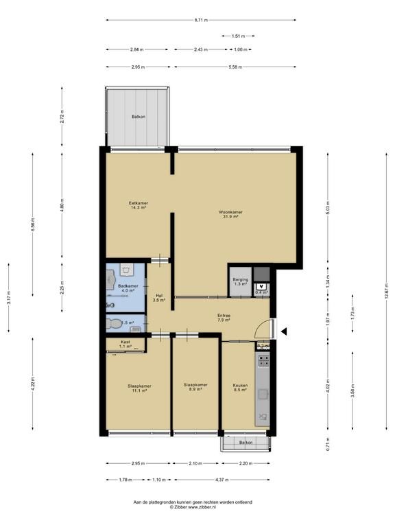
Indeling

Centrale entree:
Centrale entree met brievenbussen, bellentableau en lift/trapopgang naar het appartement.

Het appartement:
Via de entree met ruime hal bereik je alle vertrekken van het appartement. De royale woonkamer heeft een ruim woonoppervlakte van totaal 46m² en is voorzien van heerlijk veel lichtinval door de grote raampartij. Door de fijne afmeting is er ruimte genoeg voor een eettafel. Met enige ingrepen is het mogelijk om hier weer een extra (slaap)kamer te creëren. In de eetkamer is een grote kast aanwezig welke eventueel mag achterblijven in de woning. De keuken is opgesteld in een lichte kleurstelling en is voorzien van een gasfornuis, afzuigkap en een vaatwasser.

De slaapkamers zijn goed bemeten met een afmeting van 11,1m² en 9,9m² en zijn voorzien van voldoende daglicht. De grootste slaapkamer is voorzien van een vaste kast. De badkamer is opgesteld in een lichte kleurstelling en voorzien van een douche, wastafel en wasmachine-aansluiting. Naast de badkamer bevindt zich separaat het toilet. In de hal bevinden zich nog de meterkast en een bergkast.

Balkon, garage en berging
Het appartement telt 2 heerlijke balkons. Het eerste balkon is bereikbaar via de woon-eetkamer en hier kan je optimaal van het buitenleven, het zonnetje en het uitzicht genieten. Het andere balkon is bereikbaar via de keuken en ook hier kan je fijn van het zonnetje en het uitzicht genieten. Apart wordt aangeboden de garage a € 25.000,= k.k. Daarnaast bevindt zich in de onderbouw ook nog een handige berging.

Kenmerken:
Verwarming: C.V.-combiketel
Warm water: C.V.-combiketel
Balkonligging: Zuidwest en noordoost
Isolatie: Muurisolatie en dubbel glas
Bouwjaar: 1972
Aanvaarding: in overleg (kan snel)

Extra's:
+ Royaal appartement met een fantastisch uitzicht over groen;
+ Een riante woonkamer met veel lichtinval;
+ Keuken met diverse inbouwapparatuur;
+ 2 heerlijke balkons met vrij uitzicht;
+ Voorzien van 2 (slaap)kamers en mogelijkheid tot het creëren van een 3e (slaap)kamer;
+ Voorzien van onderhoudsvriendelijke aluminium kozijnen;
+ Het appartement is voorzien van een lift;
+ Het appartement beschikt over een actieve VVE, de servicekosten bedragen maandelijks €295,- voor de woning en €28,50,- voor de garage;
+ De woning is gelegen nabij diverse voorzieningen, uitvalswegen en de bossen.

Koopovereenkomst:
Bij de verkoop zal er een standaard NVM koopovereenkomst worden gehanteerd. Bij woningen welke ouder zijn dan 20 jaar, worden de volgende clausules opgenomen in de koopovereenkomst:
- Asbestclausule;
- Ouderdomsclausule.

Koopt u de woning zonder voorbehoud van financiering? Dan zullen wij een termijn hanteren van 14 dagen na het opstellen van de koopovereenkomst voor het storten van de bankgarantie/waarborgsom.

Deze informatie is door ons met de nodige zorgvuldigheid samengesteld. Onzerzijds wordt echter geen enkele aansprakelijkheid aanvaard voor enige onvolledigheid, onjuistheid of anderszins, dan wel de gevolgen daarvan. Alle opgegeven maten en oppervlakten zijn indicatief.
+ toon meer
deze woning is Verkocht

Rolandseck 88 Doorwerth

Rolandseck 88

6865 AD, Doorwerth
Ditters open huis: 5 april 2025 10:00 - 12:00 uur
Landelijke Open Huizen Route NVM: 5 april 2025 11:00 uur - 15:00 uur
Vanaf€ 309.500 k.k.

Schakel een aankoopmakelaar in.

Snel handelen helpt je jouw droomhuis te bemachtigen. Zo vergroot je de kans dat je er op tijd bij bent.
Doorwerth
verkocht

Of maak vrijblijvend een zoekprofiel aan.

Vergelijkbare woningen

Hypotheken

Onafhankelijk hypotheekadvies

  • Ligt jouw droomhuis binnen handbereik?
  • Wil je jouw huidige hypotheek verhogen?
  • Is er hypotheekruimte voor verduurzaming?

Blijf op de hoogte

Ontvang als eerste updates over nieuw aanbod en mis geen enkele kans om jouw droomwoning te vinden.

Gratis waardebepaling of verkoopgesprek

Met de vrijblijvende waardecheck weet je snel waar je aan toe bent. Onze makelaars kijken naar de lokale markt en vergelijkbare woningen in jouw buurt om een goede schatting te geven.

Realiseer al jouw woondromen met Ditters

Wij zijn een team van gedreven vastgoedexperts met een passie voor het maken van verbindingen – tussen kopers en verkopers, huurders en verhuurders. Met een frisse kijk op de makelaardij combineren we expertise met creativiteit. Onze makelaars luisteren écht en nemen de tijd om jouw wensen te begrijpen.


Bij Ditters sta je er niet alleen voor. We denken met je mee, begeleiden je in elke stap en zijn altijd bereikbaar voor vragen. Neem gerust contact met ons op – we helpen je graag verder!