Omschrijving

De woning betreft een ruime tussenwoning, rustig gelegen in de woonwijk Eltingerhof. De woning beschikt over een aangename woonkamer, een nette keuken, vier volwaardige slaapkamers, een luxe badkamer, een veelzijdige zolderruimte en een ruime tuin gesitueerd op het noordwesten.

Het centrum bevindt zich op loopafstand en biedt een breed scala aan voorzieningen, waaronder een supermarkt, slager, diverse eetgelegenheden, kledingwinkels en scholen. Daarnaast zijn meerdere sportfaciliteiten eenvoudig per fiets bereikbaar.

Belangrijkste kenmerken op een rij:
+ Tussenwoning met vier slaapkamers;
+ Moderne keuken vernieuwd in 2020;
+ Vloerverwarming op de begane grond;
+ Badkamer vernieuwd in 2022;
+ Onderhoudsarme kunststof kozijnen met HR++-glas (m.u.v. zolder);
+ CV-ketel uit 2023;
+ Energielabel A;
+ 8 zonnepanelen geplaatst in 2023;
+ Extra groepen in de meterkast (2024) voor inductiekookplaat en zonnepanelen;
+ Mechanische ventilatie vernieuwd in 2023;
+ Fraai aangelegde tuin op het noordwesten.

Begane grond
Via de entree, waar zich de meterkast en het toilet bevinden, kom je in de lichte en ruime woonkamer van 31,1 m². De woonkamer met vloerverwarming biedt volop ruimte voor een comfortabele hoekbank en een gezellige zithoek. Dankzij de grote aluminium schuifpui, die in 2024 is vernieuwd met HR++-glas, geniet je van een overvloed aan natuurlijk licht en een directe verbinding met de tuin. Centraal in de ruimte is het eetgedeelte gesitueerd, met aansluitend de L-vormige open keuken. Deze is voorzien van diverse inbouwapparatuur, waaronder een kookplaat, afzuigkap, magnetron, combi-oven en vaatwasser. De keuken is elegant vormgegeven met zwarte fronten en een werkblad van warm walnoothout. Ook het keukenraam is in 2024 vernieuwd en voorzien van onderhoudsarme kunststof kozijnen en isolerend HR++-glas.

Eerste verdieping
Via de trap in de woonkamer bereik je de overloop, die toegang biedt tot alle vertrekken op deze verdieping. Hier bevinden zich drie slaapkamers met oppervlaktes van 14,2 m², 10,9 m² en 8,1 m². Alle slaapkamers zijn heerlijk licht dankzij de royale raampartijen, die in 2024 zijn vernieuwd met HR++-glas en onderhoudsarme kunststof kozijnen. De ruime badkamer is compleet uitgevoerd met een ligbad, een inloopdouche, een wastafelmeubel, planchet en een toilet. De marmerlook wandtegels in combinatie met de donkere vloer geven de badkamer een stijlvolle en chique uitstraling.

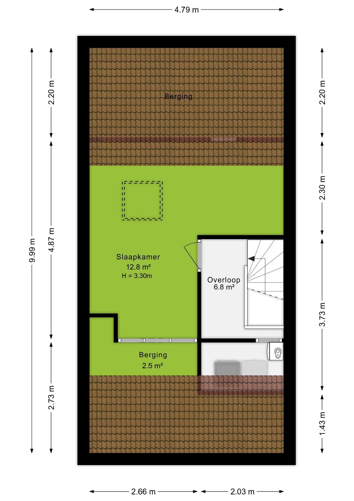
Tweede verdieping
Via de vaste trap bereik je de zolderverdieping, waar zich een ruime vierde slaapkamer van 12,8 m² bevindt. Dankzij het aanwezige dakraam geniet deze kamer van veel natuurlijk licht. De ruimte is veelzijdig en kan naast slaapkamer ook uitstekend dienen als werk-, sport- of hobbykamer. Op de overloop bevinden zich de aansluitingen voor de wasmachine en droger. Daarnaast beschikt deze verdieping over een praktische berging van 2,5 m².

Tuin
De fraai aangelegde tuin van ca. 50 m², gelegen op het noordwesten, biedt volop ruimte voor meerdere zithoekjes. Daarnaast beschikt de tuin over een praktische achterom, wat ideaal is voor het stallen van fietsen en het plaatsen van de kliko’s.

Koopovereenkomst:
Bij de verkoop zal er een standaard NVM koopovereenkomst worden gehanteerd. Bij woningen welke ouder zijn dan 20 jaar, worden de volgende clausules opgenomen in de koopovereenkomst:
- Asbestclausule;
- Ouderdomsclausule.

Koop je de woning zonder voorbehoud van financiering? Dan zullen wij een termijn hanteren van 6 weken na het opstellen van de koopovereenkomst voor het storten van de bankgarantie/waarborgsom.

Deze informatie is door ons met de nodige zorgvuldigheid samengesteld. Onzerzijds wordt echter geen enkele aansprakelijkheid aanvaard voor enige onvolledigheid, onjuistheid of anderszins, dan wel de gevolgen daarvan. Alle opgegeven maten en oppervlakten zijn indicatief.
+ toon meer
6921 CW, Duiven

Kennedystraat 24

Zaterdag 2 augustus 10:00 - 12:00 uur

€ 397.500 k.k.
ditters makelaars arnhem
Kopen
Financiële mogelijkheden

Waardecheck

Onze makelaars kijken naar de lokale markt en vergelijkbare woningen in jouw buurt om een goede schatting te geven.
Onze makelaars kijken naar de lokale markt en vergelijkbare woningen in jouw buurt om een goede schatting te geven.
Goed om te weten: deze waardecheck is vrijblijvend en geheel kosteloos
Onafhankelijk

Hypotheekadvies

We helpen je met het vergelijken van aanbiedingen van verschillende banken, zodat je de beste deal krijgt. 
Wij staan klaar om je te begeleiden, zodat je met vertrouwen de juiste hypotheek kunt kiezen.
Goed om te weten: dit adviesgesprek is vrijblijvend en geheel kosteloos

Wij helpen jou bij de keuze van de juiste polis.

Bij een onbezorgde toekomst horen ook goede verzekeringen die uitkeren bij bijvoorbeeld ziekte, schade of diefstal. Onze assurantieadviseurs helpen je bij de keuze van de juiste polis. In heldere taal.

Diverse verzekeringen

  • Opstalverzekering
  • Aansprakelijkheidsverzekering
  • Zorgverzekering
  • Reisverzekering

Buurtinformatie

Duiven, Oud Zuid
Inwoners
Woningen
1.129
Inwoners
2.715
46
54
Koop / Huur
46% Huur54% Koop
Huishoudens
Eenpersoon
27.5%
Geen kinderen
30.1%
Met kinderen
41.9%
Leeftijdsopbouw in jaren
Buurt Landelijk
19.010.927.129.713.816.312.324.728.218.5

Locatie

Plattegronden

Klik op de plattegrond voor een grote weergave

Belangrijke documenten

Meetrapport

Alle afmetingen van de woning duidelijk op een rij, inclusief totale oppervlakte.

Brochure

Bekijk hier alle details van de woning, compleet met foto's en beschrijvingen.

Lijst van zaken

Overzicht van de zaken die achterblijven of worden meegenomen door de huidige bewoners.

Vragenlijst

Hier deelt de verkoper belangrijke informatie over de staat en bijzonderheden van de woning.

Vragenlijst deelc

Hier deelt de verkoper belangrijke informatie over de staat en bijzonderheden van de woning.

Misschien interessant voor jou

Blijf op de hoogte

Ontvang als eerste updates over nieuw aanbod en mis geen enkele kans om jouw droomwoning te vinden.

Gratis waardebepaling of verkoopgesprek

Met de vrijblijvende waardecheck weet je snel waar je aan toe bent. Onze makelaars kijken naar de lokale markt en vergelijkbare woningen in jouw buurt om een goede schatting te geven.