Aanbod

Verken ons aanbod. Van huur tot koop. En van nieuwbouw tot bouwkavel. Samen vinden we de plek waar jij je helemaal thuis voelt.

Diensten

Onze experts begeleiden je van A tot Z. Of je nu je huis wilt verkopen, op zoek bent naar je droomhuis of advies nodig hebt over hypotheken of verzekeringen. Met jarenlange ervaring en persoonlijke service zorgen we ervoor dat jij met een gerust hart de juiste keuzes maakt.

Over Ditters

Wij zijn Ditters. Verhalenvertellers. De schakel tussen droom en woning. We luisteren naar jouw wensen en maken op basis daarvan een plan.

Omschrijving

Ben je op zoek naar een sfeervol appartement op een toplocatie? Dit 3-kamer-hoekappartement op de begane grond aan de Anna van Burenlaan 38 in de geliefde wijk 'Het Beatrixpark' heeft alles wat je zoekt! Met een heerlijk eigen terras op het zuiden, een uitstekende afwerking en het feit dat het volledig instapklaar is, hoef je alleen nog maar je spullen mee te nemen en te genieten van je nieuwe thuis.

Dit appartement ligt super centraal. Binnen enkele minuten loop je naar het winkelcentrum Rozenplein of Spindop, het kinderdagverblijf Happy Kids of het medisch centrum 'Eerstelijnscentrum'. Ook het intercitystation Ede-Wageningen is op loopafstand, terwijl het gezellige centrum van Ede en de prachtige bossen op fietsafstand liggen. Via intercity station Ede-Wageningen ben je met 25 minuten op Utrecht centraal, 50 minuten in hartje Amsterdam en 11 minuten in Arnhem. Daarnaast bereik je de snelwegen A12 en A30 binnen enkele autominuten. Kortom, een ideale ligging met alles binnen handbereik!

Het appartementencomplex beschikt over een actieve VvE. Er zijn nieuwe kozijnen geplaatst (kunststof) aan de tuin zijde. De servicekosten bedragen € 179,84 per maand. Voor het complex is voldoende openbare parkeerruimte en elk appartement is voorzien van een eigen berging in de onderbouw.

De pluspunten van het appartement op een rij:
+ In het geliefde Beatrixpark waar je je waant in een groene omgeving;
+ Nabij het centrum van Ede evenals het intercity station Ede-Wageningen;
+ Voldoende parkeergelegenheid in de straat;
+ Gelegen op het de hoek en dus als laatste appartement op de galerij;
+ De woonkamer en eetkamer zijn voorzien van een kunststof pui met HR++ beglazing;
+ Het gehele appartement heeft dubbele beglazing;
+ Heerlijke buitenruimte, uitkijkend naar het groen;
+ 2 slaapkamers aanwezig;
+ Voorzien van vloerverwarming met plavuizen vloer;
+ Alle wanden en plafonds zijn gestuct;
+ Door het vele groen voor het appartement is er een natuurlijke schaduw wat zorgt voor een koel appartement in de zomer op de hete dagen. Door de isolatie en de vloerwarming is het ook zeer aangenaam in de winter;
+ Actieve VvE.

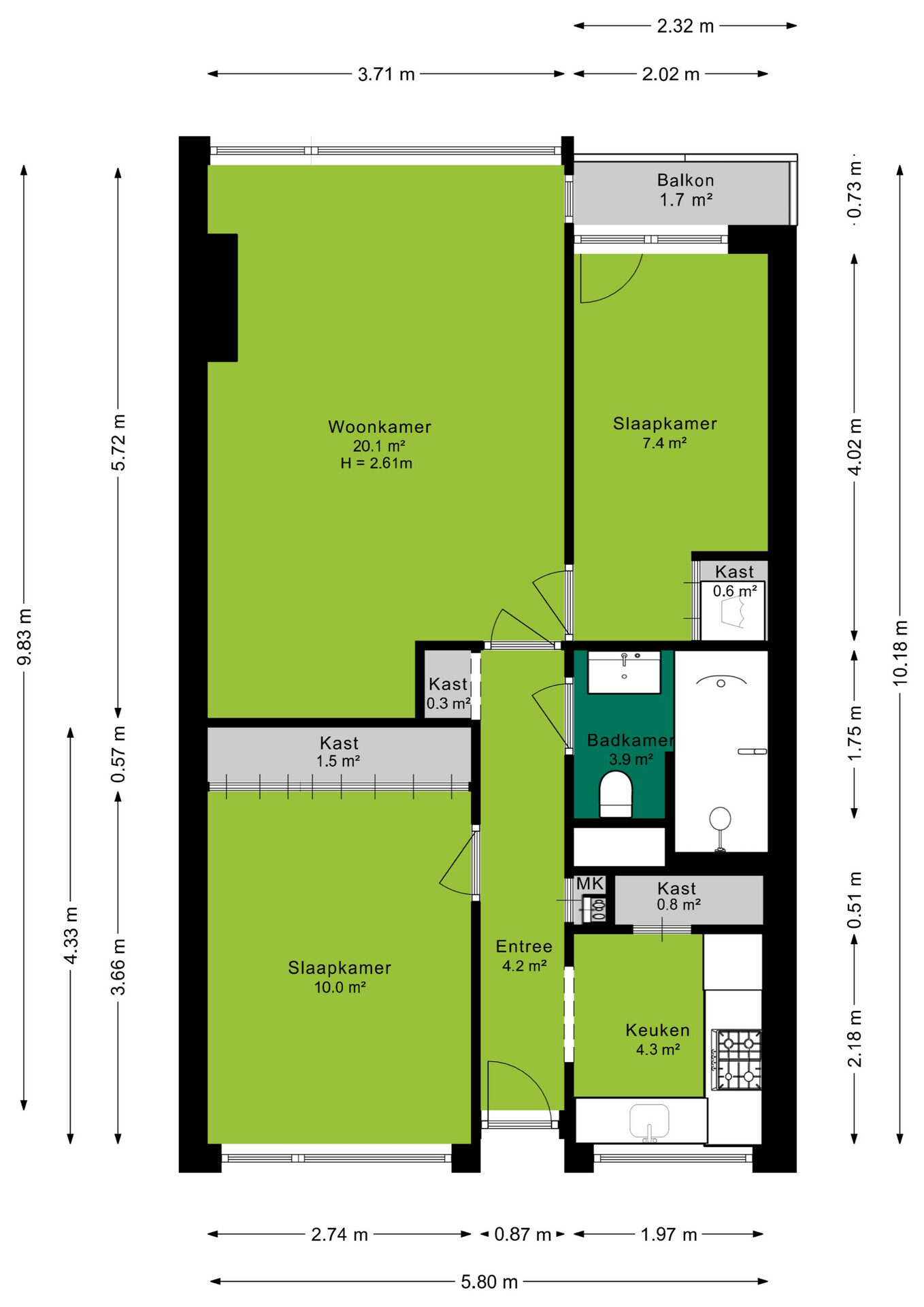
Indeling
Centrale entree
De gezamenlijke entree met brievenbussen geeft toegang tot de bergingen en de galerij naar het appartement.

Het appartement
Vanuit de hal zijn alle vertrekken van de woning te bereiken. Aan de voorzijde van de woning, aan de kant van het terras, bevindt zich de woonkamer met de eetkamer en een slaapkamer met een vaste kast voor de aansluiting van de wasmachine. Vanuit de woonkamer heb je door de grote raampartijen veel lichtinval en een vrij uitzicht over het groen aan de buitenzijde. De pui aan de tuinzijde is van kunststof.

De keuken ligt bij binnenkomst aan de rechterzijde van de woning. Het is een keurige keuken met veel opbergruimte en diverse inbouwapparatuur te weten:
+ Vaatwasser
+ Oven
+ Koelkast
+ Vriezer
+ Gaskookplaat
+ Afzuigkap

Vanuit de keuken heb je ook weer een mooi uitzicht naar buiten toe. De ramen aan de achterzijde zijn voorzien van dubbele beglazing en houten kozijnen.

Aan de voorzijde van het appartement is de grote slaapkamer met vaste kastenwand gelegen. Als laatste is de badkamer aanwezig met een luxe bad (met mogelijkheid tot douchen), toilet, wastafel en wastafelmeubel.

Vanuit de woonkamer bereik je het heerlijke terras gelegen op het zuiden. Dit loopt natuurlijk over in de tuin van de VvE. Doordat je op de hoek zit heb je veel privacy en kun je zomers heerlijk genieten van het buitenleven. Dat maakt het wonen op de begane grond zeer aangenaam.

In de onderbouw van het complex bevindt zich nog een berging. Deze is via de centrale portiek te bereiken.

Woonoppervlakte 57 m²
Inhoud woning 185 m³

Bijzonderheden
- Verwarming: CV ketel
- Warm water: CV ketel
- Isolatie: Dakisolatie, dubbel glas
- Servicekosten: € 179,84
- Bouwjaar: 1960
- Tuinligging: Zuid
- Aanvaarding: In overleg

Koopovereenkomst:
Bij de verkoop zal er een standaard NVM koopovereenkomst worden gehanteerd. Bij woningen welke ouder zijn dan 20 jaar, worden de volgende clausules opgenomen in de koopovereenkomst:
- Asbestclausule;
- Ouderdomsclausule.

Koopt u de woning zonder voorbehoud van financiering? Dan zullen wij een termijn hanteren van 14 dagen na het opstellen van de koopovereenkomst voor het storten van de bankgarantie/waarborgsom.

Deze informatie is door ons met de nodige zorgvuldigheid samengesteld. Onzerzijds wordt echter geen enkele aansprakelijkheid aanvaard voor enige onvolledigheid, onjuistheid of anderszins, dan wel de gevolgen daarvan. Alle opgegeven maten en oppervlakten zijn indicatief.
+ toon meer
deze woning is Verkocht

Anna van Burenlaan 38 Ede

Anna van Burenlaan 38

6713 NK, Ede
Ditters open huis: 5 april 2025 10:00 - 12:00 uur
Landelijke Open Huizen Route NVM: 5 april 2025 11:00 uur - 15:00 uur
Vanaf€ 289.000 k.k.

Schakel een aankoopmakelaar in.

Snel handelen helpt je jouw droomhuis te bemachtigen. Zo vergroot je de kans dat je er op tijd bij bent.
Ede
verkocht

Of maak vrijblijvend een zoekprofiel aan.

Vergelijkbare woningen

Hypotheken

Onafhankelijk hypotheekadvies

  • Ligt jouw droomhuis binnen handbereik?
  • Wil je jouw huidige hypotheek verhogen?
  • Is er hypotheekruimte voor verduurzaming?

Blijf op de hoogte

Ontvang als eerste updates over nieuw aanbod en mis geen enkele kans om jouw droomwoning te vinden.

Gratis waardebepaling of verkoopgesprek

Met de vrijblijvende waardecheck weet je snel waar je aan toe bent. Onze makelaars kijken naar de lokale markt en vergelijkbare woningen in jouw buurt om een goede schatting te geven.

Realiseer al jouw woondromen met Ditters

Wij zijn een team van gedreven vastgoedexperts met een passie voor het maken van verbindingen – tussen kopers en verkopers, huurders en verhuurders. Met een frisse kijk op de makelaardij combineren we expertise met creativiteit. Onze makelaars luisteren écht en nemen de tijd om jouw wensen te begrijpen.


Bij Ditters sta je er niet alleen voor. We denken met je mee, begeleiden je in elke stap en zijn altijd bereikbaar voor vragen. Neem gerust contact met ons op – we helpen je graag verder!