Aanbod

Verken ons aanbod. Van huur tot koop. En van nieuwbouw tot bouwkavel. Samen vinden we de plek waar jij je helemaal thuis voelt.

Diensten

Onze experts begeleiden je van A tot Z. Of je nu je huis wilt verkopen, op zoek bent naar je droomhuis of advies nodig hebt over hypotheken of verzekeringen. Met jarenlange ervaring en persoonlijke service zorgen we ervoor dat jij met een gerust hart de juiste keuzes maakt.

Over Ditters

Wij zijn Ditters. Verhalenvertellers. De schakel tussen droom en woning. We luisteren naar jouw wensen en maken op basis daarvan een plan.

Omschrijving

Deze tussenwoning in Ede, met een woonoppervlakte van maar liefst 128 m², is instapklaar en biedt veel ruimte, comfort én een tuin gelegen op het zonnige zuidoosten. De woning is ideaal voor (jonge) gezinnen of thuiswerkers die waarde hechten aan een praktische indeling, een gunstige ligging én duurzaamheid dankzij de 10 zonnepanelen.

De woning is gelegen in een rustige en kindvriendelijke wijk. Voorzieningen zoals scholen, winkels en sportmogelijkheden liggen dichtbij. Het kleinschalige winkelcentrum Bellestein vind je op loopafstand en binnen 10 minuten fiets je naar het bruisende centrum van Ede en het NS-station. Daarnaast zijn de uitvalswegen, zoals de A30, nabijgelegen, waardoor je snel onderweg bent naar andere steden. En voor natuurliefhebbers? Je bevindt je op korte afstand van de prachtige natuurgebieden die Ede te bieden heeft.

Alle kenmerken op een rij:
+ Ruime tussenwoning met wonen op de 1e verdieping
+ 3 slaapkamers en een multifunctionele kamer op de begane grond
+ Badkamer in 2022 vernieuwd
+ Inpandige garage en parkeergelegenheid op eigen terrein
+ Tuin gelegen op het zuidoosten, perfect om van de zon te genieten
+ Voorzien van 10 zonnepanelen

Indeling van de woning
Begane grond
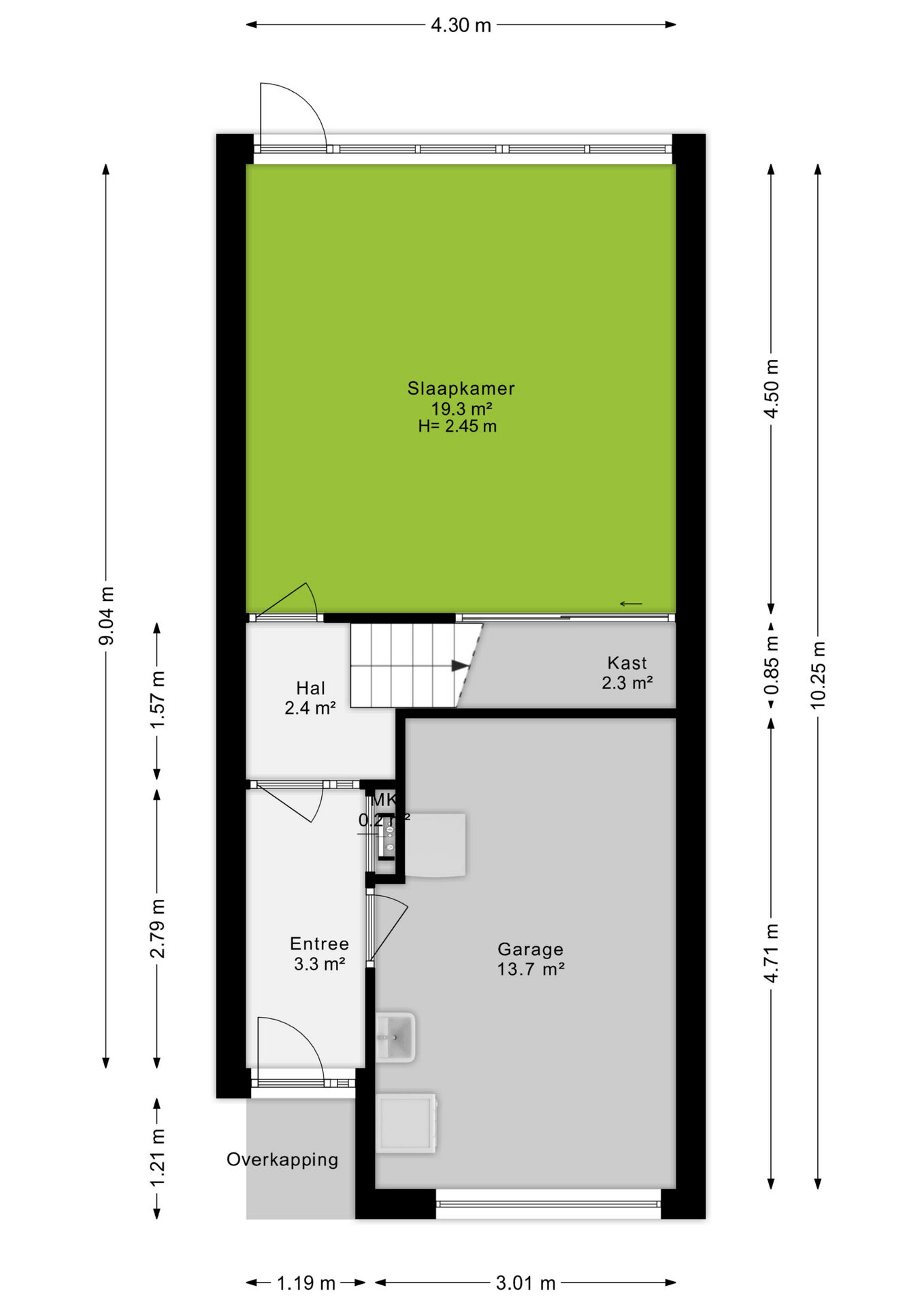
Bij binnenkomst tref je direct de inpandige garage die zowel van binnenuit als van buitenaf toegankelijk is. Vanuit de hal kom je in een multifunctionele kamer die perfect kan dienen als slaapkamer, thuiskantoor of hobbyruimte. Vanuit deze kamer stap je zo de zonnige tuin op het zuidoosten in – ideaal voor ontspanning.

Eerste verdieping
Op de eerste verdieping vind je een ruime en lichte overloop. Hier bevindt zich ook de aparte toiletruimte. De woonkamer van circa 22 m² is gelegen aan de achterzijde van de woning en biedt uitzicht op de groene achtertuin. Aan de voorzijde bevindt zich de keuken, die van alle gemakken is voorzien, zoals een inductiekookplaat, oven en koelkast.

Tweede verdieping
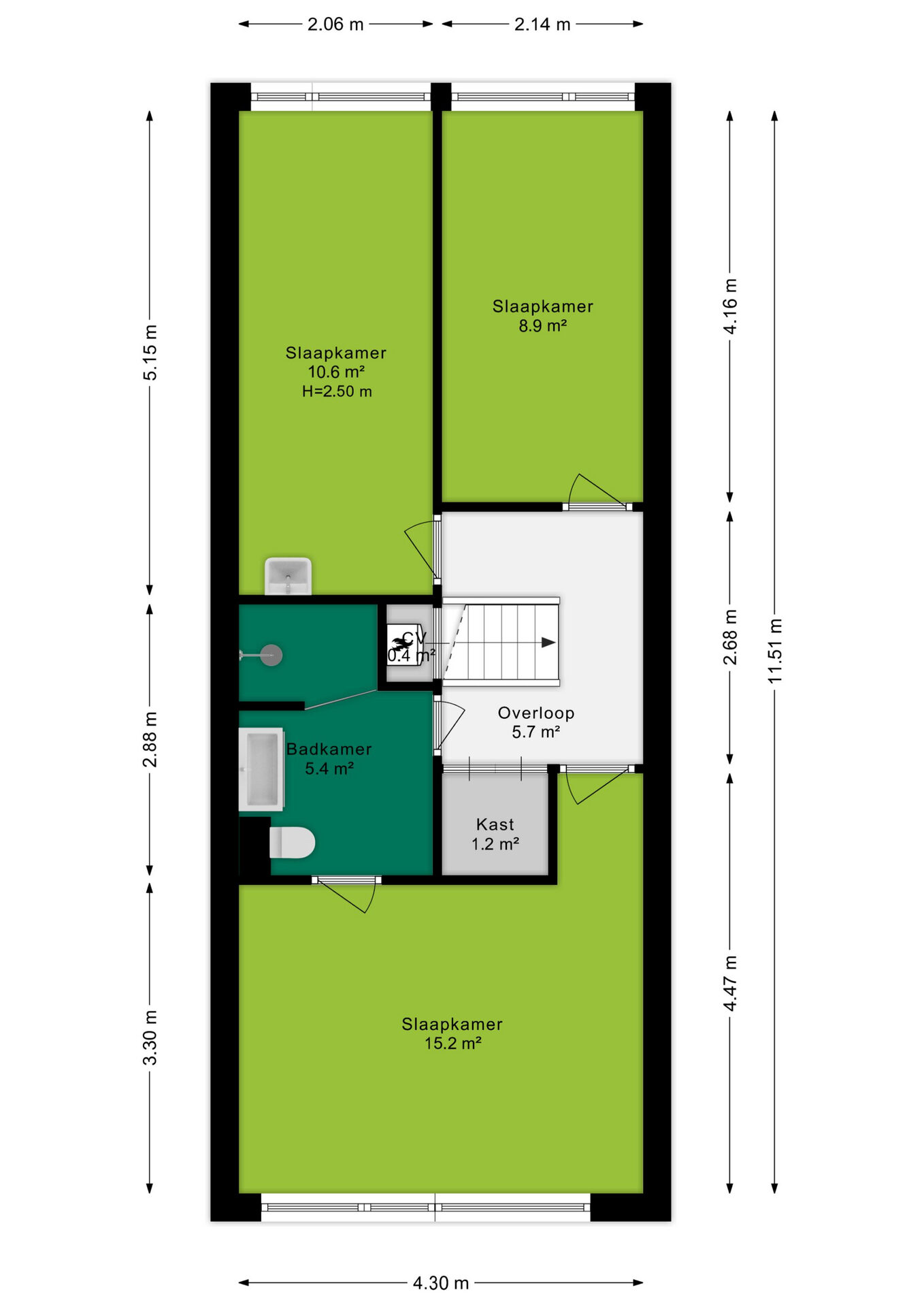
Op de bovenste verdieping bevinden zich drie comfortabele slaapkamers met oppervlaktes van circa 15 m², 11 m² en 9 m². De grootste slaapkamer aan de voorzijde heeft direct toegang tot de badkamer. De badkamer is in 2022 vernieuwd en modern uitgevoerd met een inloopdouche, toilet, wastafel met meubel en strakke afwerking.

Tuin
De tuin van circa 14 meter diep en 5 meter breed is perfect voor liefhebbers van zon en buitenleven. Georiënteerd op het zuidoosten geniet je hier de hele dag van zonnige momenten, of je nu een kop koffie drinkt op het terras of heerlijk aan het tuinieren bent. De tuin biedt voldoende ruimte voor een loungehoek én een speelhoek voor kinderen.

Zien hoe deze woning aan Arendshorst 9 jouw nieuwe thuis kan worden?
Plan snel een bezichtiging en ontdek de vele mogelijkheden die dit huis te bieden heeft!

Koopovereenkomst:
Bij de verkoop zal er een standaard NVM koopovereenkomst worden gehanteerd. Bij woningen welke ouder zijn dan 20 jaar, worden de volgende clausules opgenomen in de koopovereenkomst:
- Asbestclausule;
- Ouderdomsclausule.

Koop je de woning zonder voorbehoud van financiering? Dan zullen wij een termijn hanteren van 14 dagen na het opstellen van de koopovereenkomst voor het storten van de bankgarantie/waarborgsom.

Deze informatie is door ons met de nodige zorgvuldigheid samengesteld. Onzerzijds wordt echter geen enkele aansprakelijkheid aanvaard voor enige onvolledigheid, onjuistheid of anderszins, dan wel de gevolgen daarvan. Alle opgegeven maten en oppervlakten zijn indicatief.
+ toon meer
deze woning is Verkocht

Arendshorst 9 Ede

Arendshorst 9

6714 LV, Ede
Ditters open huis: 5 april 2025 10:00 - 12:00 uur
Landelijke Open Huizen Route NVM: 5 april 2025 11:00 uur - 15:00 uur
Vanaf€ 395.000 k.k.

Schakel een aankoopmakelaar in.

Snel handelen helpt je jouw droomhuis te bemachtigen. Zo vergroot je de kans dat je er op tijd bij bent.
Ede
verkocht

Of maak vrijblijvend een zoekprofiel aan.

Vergelijkbare woningen

Hypotheken

Onafhankelijk hypotheekadvies

  • Ligt jouw droomhuis binnen handbereik?
  • Wil je jouw huidige hypotheek verhogen?
  • Is er hypotheekruimte voor verduurzaming?

Blijf op de hoogte

Ontvang als eerste updates over nieuw aanbod en mis geen enkele kans om jouw droomwoning te vinden.

Gratis waardebepaling of verkoopgesprek

Met de vrijblijvende waardecheck weet je snel waar je aan toe bent. Onze makelaars kijken naar de lokale markt en vergelijkbare woningen in jouw buurt om een goede schatting te geven.

Realiseer al jouw woondromen met Ditters

Wij zijn een team van gedreven vastgoedexperts met een passie voor het maken van verbindingen – tussen kopers en verkopers, huurders en verhuurders. Met een frisse kijk op de makelaardij combineren we expertise met creativiteit. Onze makelaars luisteren écht en nemen de tijd om jouw wensen te begrijpen.


Bij Ditters sta je er niet alleen voor. We denken met je mee, begeleiden je in elke stap en zijn altijd bereikbaar voor vragen. Neem gerust contact met ons op – we helpen je graag verder!