Omschrijving

Instapklaar en uitgebouwd, deze tussenwoning met onderhoudsvriendelijke tuin beschikt over drie slaapkamers, een ruime woonkamer en een nette afwerking. Het is de ideale woning voor wie zorgeloos wil wonen op een centrale locatie in Ede.

De woning ligt in een rustige straat, dicht bij het centrum van Ede. Scholen, winkels en NS-station Ede-Centrum bevinden zich in de directe nabijheid. Voor wie graag de natuur opzoekt liggen de bossen op een korte afstand. Ook de bereikbaarheid richting uitvalswegen, horeca en sportvoorzieningen is uitstekend.

Pluspunten
- Instapklaar en uitgebouwde tussenwoning
- Drie slaapkamers
- Vloerverwarming in de uitbouw en in de badkamer
- Onderhoudsvriendelijke tuin op het oosten
- Twee houten bergingen
- Centrale ligging nabij centrum en station

Indeling
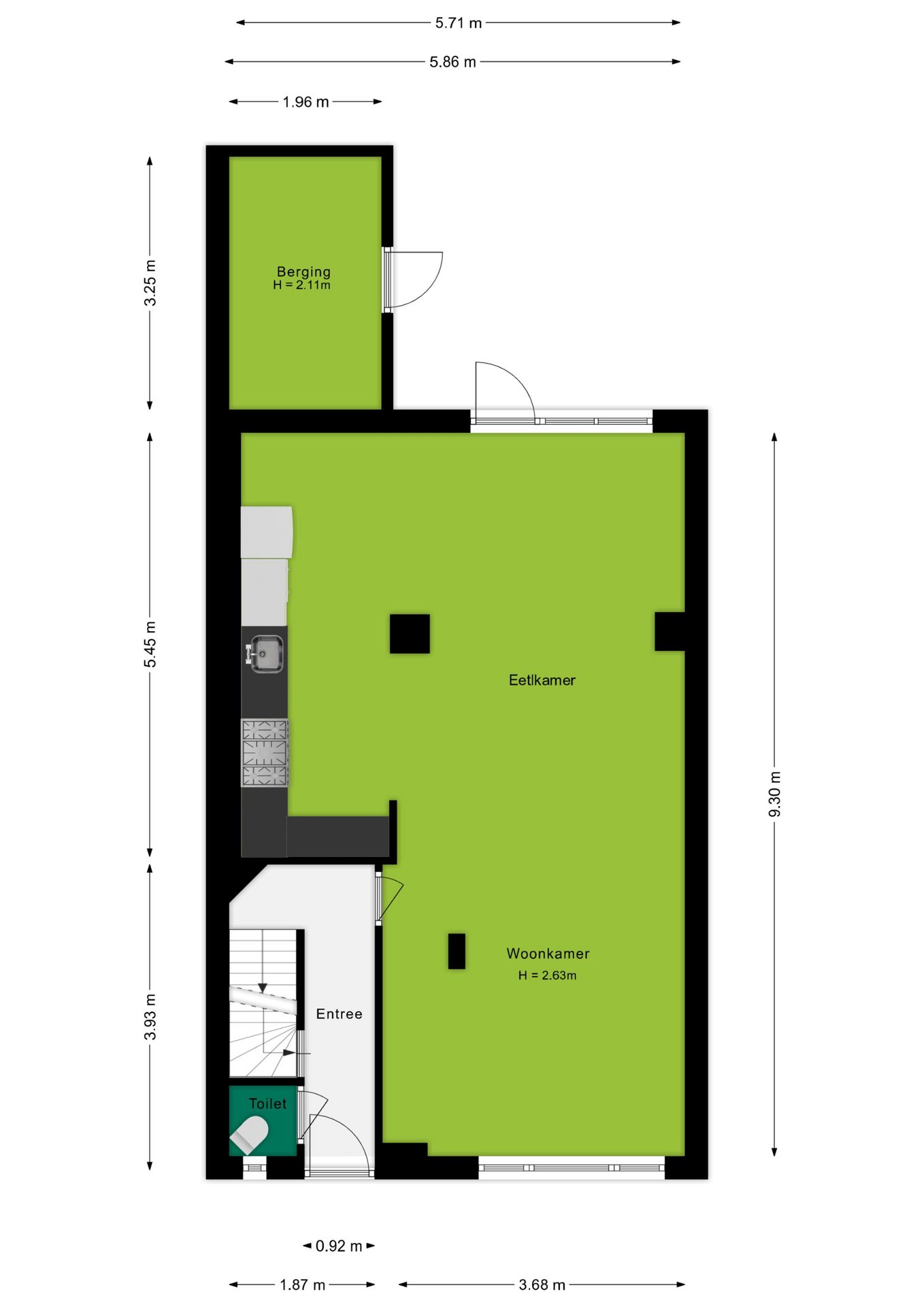
Begane grond
Je komt binnen in de entree met toilet en trapopgang naar zowel de eerste verdieping als de kelder. Fijn detail: de kelder van circa 6m² biedt extra opslagruimte.
In de uitgebouwde woonkamer valt direct de ruimte en het vele daglicht op. Er is voldoende plaats voor zowel een fijne zithoek als een ruime eethoek. Onder de tegelvloer in de uitbouw en de keuken ligt vloerverwarming.
De open keuken heeft een hoekopstelling en is voorzien van diverse inbouwapparatuur, waaronder een afzuigkap, combi-oven, koelkast en vaatwasser. Via de openslaande deuren loop je zo de tuin in gelegen op het oosten.

Eerste verdieping
Op de eerste verdieping bevinden zich twee slaapkamers van circa 14 m² en 12 m². De slaapkamer aan de achterzijde beschikt over een vaste kast.
De badkamer is uitgerust met een ligbad, wastafelmeubel, douche en vloerverwarming.

Tweede verdieping
Op de tweede verdieping bevindt zich een derde slaapkamer, compleet met een dakraam en een dakkapel die zorgen voor extra ruimte en volop lichtinval.

Buitenruimte
Via de openslaande deuren in de woonkamer stap je de onderhoudsvriendelijke achtertuin op het oosten in. De tuin beschikt over twee houten bergingen voor veel opbergruimte. Je kunt hier heerlijk zitten onder de veranda of in het sfeervolle zitje tussen de bloembakken.

Bijzonderheden
- Bouwjaar 1950
- Woonoppervlakte 112 m²
- Perceeloppervlakte 176 m²
- Energielabel C
- Buitenkozijnen geschilderd in 2023

Koopovereenkomst:
Bij de verkoop zal een standaard NVM-koopovereenkomst worden gehanteerd.
Bij woningen ouder dan 20 jaar worden de volgende clausules opgenomen:
- Asbestclausule
- Ouderdomsclausule

Bij aankoop zonder financieringsvoorbehoud geldt een termijn van zes weken na het opstellen van de koopovereenkomst voor het storten van de waarborgsom of bankgarantie.

Deze informatie is met zorg samengesteld. Er wordt geen aansprakelijkheid aanvaard voor eventuele onvolledigheden of onjuistheden. Alle opgegeven maten en oppervlakten zijn indicatief.
+ toon meer
6712 BG, Ede

Borneolaan 19

Zaterdag 2 augustus 10:00 - 12:00 uur

€ 425.000 k.k.
ditters makelaars ede
Kopen
Financiële mogelijkheden

Waardecheck

Onze makelaars kijken naar de lokale markt en vergelijkbare woningen in jouw buurt om een goede schatting te geven.
Onze makelaars kijken naar de lokale markt en vergelijkbare woningen in jouw buurt om een goede schatting te geven.
Goed om te weten: deze waardecheck is vrijblijvend en geheel kosteloos
Onafhankelijk

Hypotheekadvies

We helpen je met het vergelijken van aanbiedingen van verschillende banken, zodat je de beste deal krijgt. 
Wij staan klaar om je te begeleiden, zodat je met vertrouwen de juiste hypotheek kunt kiezen.
Goed om te weten: dit adviesgesprek is vrijblijvend en geheel kosteloos

Wij helpen jou bij de keuze van de juiste polis.

Bij een onbezorgde toekomst horen ook goede verzekeringen die uitkeren bij bijvoorbeeld ziekte, schade of diefstal. Onze assurantieadviseurs helpen je bij de keuze van de juiste polis. In heldere taal.

Diverse verzekeringen

  • Opstalverzekering
  • Aansprakelijkheidsverzekering
  • Zorgverzekering
  • Reisverzekering

Buurtinformatie

Ede, Indische buurt
Inwoners
Woningen
975
Inwoners
2.225
47
53
Koop / Huur
47% Huur53% Koop
Huishoudens
Eenpersoon
38.2%
Geen kinderen
29.4%
Met kinderen
31.9%
Leeftijdsopbouw in jaren
Buurt Landelijk
16.013.725.227.418.216.312.324.728.218.5

Locatie

Belangrijke documenten

Meetrapport

Alle afmetingen van de woning duidelijk op een rij, inclusief totale oppervlakte.

Brochure

Bekijk hier alle details van de woning, compleet met foto's en beschrijvingen.

Kadastrale kaart

Lijst van zaken

Overzicht van de zaken die achterblijven of worden meegenomen door de huidige bewoners.

Vragenlijst deelb

Hier deelt de verkoper belangrijke informatie over de staat en bijzonderheden van de woning.

Vragenlijst deelc

Hier deelt de verkoper belangrijke informatie over de staat en bijzonderheden van de woning.

Misschien interessant voor jou

Blijf op de hoogte

Ontvang als eerste updates over nieuw aanbod en mis geen enkele kans om jouw droomwoning te vinden.

Gratis waardebepaling of verkoopgesprek

Met de vrijblijvende waardecheck weet je snel waar je aan toe bent. Onze makelaars kijken naar de lokale markt en vergelijkbare woningen in jouw buurt om een goede schatting te geven.