Omschrijving

Moderne hoekwoning op het Enka-terrein met erker, vier slaapkamers en tuin met achterom.
Deze moderne hoekwoning uit 2017 biedt 120 m² woonruimte verdeeld over drie verdiepingen. Met vier slaapkamers, een lichte woonkamer met erker, een complete keuken en een tuin met achterom is dit een heerlijke gezinswoning. Dankzij energielabel A, vloerverwarming op de begane grond, stadsverwarming en 12 zonnepanelen woon je hier comfortabel en energiezuinig.

De woning ligt in een rustige straat op het geliefde Enka-terrein, een moderne wijk met karakteristieke architectuur, veel groen en een prettige, ruimtelijke opzet. Het bos ligt op korte afstand, ideaal voor wandelingen of sportieve uitstapjes. Het Hoekelumse Bos is slechts 5 minuten lopen en de Sysselt binnen 10 minuten te bereiken. Op loopafstand vind je winkelcentrum Spindop, met supermarkten, winkels en basisscholen. Station Ede-Wageningen ligt praktisch om de hoek, waardoor reizen naar Arnhem, Utrecht of Wageningen eenvoudig is. Via de A12 ben je snel verbonden met de rest van het land.

Alle kenmerken op een rij:
+ Mooie hoekwoning met erker
+ Vier slaapkamers
+ Vloerverwarming op de begane grond
+ Moderne keuken met inbouwapparatuur
+ Energielabel A en 12 zonnepanelen
+ Gelegen in het geliefde Enka-terrein

Indeling
Begane grond
De voordeur in boogvorm valt direct op en geeft de woning een bijzondere uitstraling. In de hal bevinden zich de meterkast, het toilet en de trapopgang naar de eerste verdieping. De woonkamer is licht en sfeervol dankzij de erker en de openslaande deuren naar de tuin. Er is volop ruimte voor een zit- en eethoek.
De keuken ligt aan de voorzijde en is uitgevoerd in een lichte hoekopstelling. Deze is uitgerust met een inductieplaat, afzuigkap, combi-oven, koelkast, vaatwasser en een ingebouwd koffiezetapparaat. De praktische trapkast biedt extra bergruimte. De gehele begane grond is voorzien van vloerverwarming.

Eerste verdieping
Op de eerste verdieping bevinden zich drie slaapkamers van circa 11 m², 9 m² en 5 m². Alle kamers hebben veel daglicht en natuurlijke ventilatie. De badkamer (ca. 5 m²) is compleet uitgevoerd met een ligbad, inloopdouche, wastafelmeubel en toilet.

Tweede verdieping
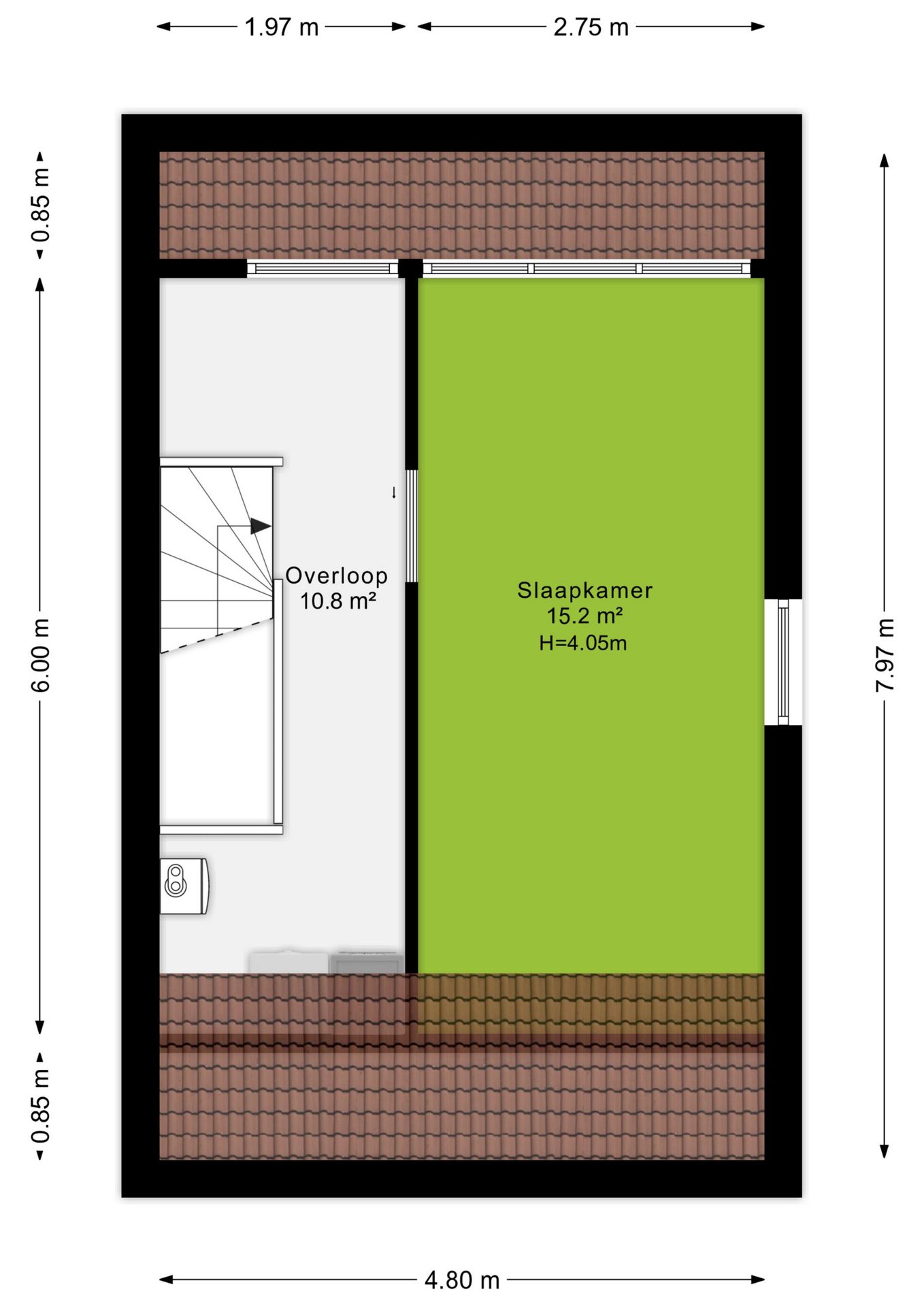
De tweede verdieping is bereikbaar via een vaste trap. Hier bevindt zich de vierde slaapkamer van circa 15 m², met een rond raam dat zorgt voor een speels effect. Het dakkapel zorgt voor extra ruimte en licht. Op de overloop vind je de aansluiting voor de wasmachine en de mechanische ventilatie.

Buitenruimte
De achtertuin ligt op het noorden en is bereikbaar via openslaande deuren vanuit de woonkamer. De tuin beschikt over een houten berging en een achterom, ideaal voor fietsen of tuinspullen. Direct naast de woning ligt een speelplek voor kinderen. Dankzij de erker heb je vanuit de woonkamer zicht op deze speelplek, praktisch én prettig voor gezinnen.

Koopovereenkomst:
Bij de verkoop zal een standaard NVM-koopovereenkomst worden gehanteerd.

Bij aankoop zonder financieringsvoorbehoud geldt een termijn van zes weken na het opstellen van de koopovereenkomst voor het storten van de waarborgsom of bankgarantie.

Deze informatie is met zorg samengesteld. Er wordt geen aansprakelijkheid aanvaard voor eventuele onvolledigheden of onjuistheden. Alle opgegeven maten en oppervlakten zijn indicatief.
+ toon meer
6717 ZP, Ede

Bremerstraat 35

Zaterdag 2 augustus 10:00 - 12:00 uur

€ 595.000 k.k.
ditters makelaars ede
Verkocht 2026
Financiële mogelijkheden

Waardecheck

Onze makelaars kijken naar de lokale markt en vergelijkbare woningen in jouw buurt om een goede schatting te geven.
Onze makelaars kijken naar de lokale markt en vergelijkbare woningen in jouw buurt om een goede schatting te geven.
Goed om te weten: deze waardecheck is vrijblijvend en geheel kosteloos
Onafhankelijk

Hypotheekadvies

We helpen je met het vergelijken van aanbiedingen van verschillende banken, zodat je de beste deal krijgt. 
Wij staan klaar om je te begeleiden, zodat je met vertrouwen de juiste hypotheek kunt kiezen.
Goed om te weten: dit adviesgesprek is vrijblijvend en geheel kosteloos

Wij helpen jou bij de keuze van de juiste polis.

Bij een onbezorgde toekomst horen ook goede verzekeringen die uitkeren bij bijvoorbeeld ziekte, schade of diefstal. Onze assurantieadviseurs helpen je bij de keuze van de juiste polis. In heldere taal.

Diverse verzekeringen

  • Opstalverzekering
  • Aansprakelijkheidsverzekering
  • Zorgverzekering
  • Reisverzekering

Buurtinformatie

Ede, Enka
Inwoners
Woningen
469
Inwoners
1.220
44
56
Koop / Huur
44% Huur56% Koop
Huishoudens
Eenpersoon
16.9%
Geen kinderen
32.6%
Met kinderen
49.4%
Leeftijdsopbouw in jaren
Buurt Landelijk
26.611.144.716.02.516.312.324.728.218.5

Locatie

Plattegronden

Klik op de plattegrond voor een grote weergave

Belangrijke documenten

Lijst van zaken

Overzicht van de zaken die achterblijven of worden meegenomen door de huidige bewoners.

Vragenlijst deelc

Hier deelt de verkoper belangrijke informatie over de staat en bijzonderheden van de woning.

Vragenlijst deelb

Hier deelt de verkoper belangrijke informatie over de staat en bijzonderheden van de woning.

Meetrapport

Alle afmetingen van de woning duidelijk op een rij, inclusief totale oppervlakte.

Kadastrale kaart

Brochure

Bekijk hier alle details van de woning, compleet met foto's en beschrijvingen.

Misschien interessant voor jou

Blijf op de hoogte

Ontvang als eerste updates over nieuw aanbod en mis geen enkele kans om jouw droomwoning te vinden.

Gratis waardebepaling of verkoopgesprek

Met de vrijblijvende waardecheck weet je snel waar je aan toe bent. Onze makelaars kijken naar de lokale markt en vergelijkbare woningen in jouw buurt om een goede schatting te geven.