Omschrijving

Ruime tussenwoning met aanbouw, vier slaapkamers en nette badkamer
Deze ruime tussenwoning uit 1991 biedt 129 m² woonoppervlakte, een royale uitgebouwde woonkamer, vier slaapkamers en een nette badkamer. Dankzij energielabel B, een praktische indeling en een verzorgde tuin op het zuiden is dit een comfortabele gezinswoning op een fijne locatie in Ede.

Ligging
De woning ligt in een veelzijdige en gunstige woonomgeving, ideaal voor gezinnen en iedereen die waarde hecht aan een combinatie van natuur, voorzieningen en bereikbaarheid. Op loopafstand bevinden zich diverse scholen, het winkelcentrum Stadspoort en het ziekenhuis.

Voor natuurliefhebbers liggen bossen en groene gebieden in de directe omgeving, perfect voor wandelen en fietsen. Ook zijn er meerdere speelplekken in de wijk, wat bijdraagt aan het kindvriendelijke karakter. Het centrum van Ede is eenvoudig per fiets bereikbaar en station Ede-Wageningen zorgt voor uitstekende trein- en busverbindingen. Met de A12 en A30 in de nabijheid is ook de bereikbaarheid met de auto uitstekend.

Pluspunten
+ Energielabel B
+ Royale woonkamer
+ Uitbouw op begane grond én eerste verdieping
+ Nette badkamer met inloopdouche
+ Vier wel bemeten slaapkamers
+ Ruime tuin met stenen berging
+ Openbaar parkeren voor de deur
+ Tuin op het zuiden


Indeling
Begane grond
Via de entree heb je toegang tot zowel de keuken als de woonkamer.
De keuken is praktisch ingericht, beschikt over diverse inbouwapparatuur en veel opbergruimte. De houten fronten geven de keuken een frisse en warme uitstraling.

De woonkamer is ruim opgezet en dankzij de royale aanbouw ontstaat er veel leefruimte. De indeling is praktisch en via de openslaande deur heb je direct toegang tot de tuin.

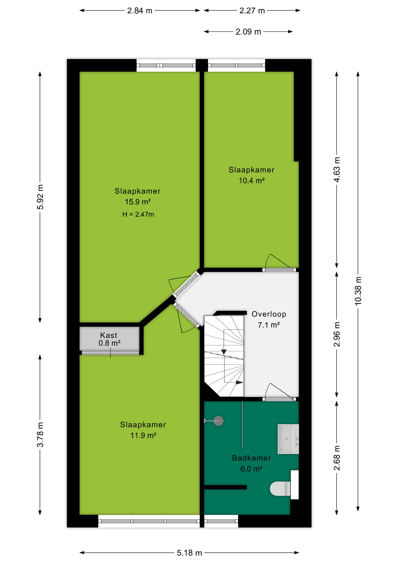
Eerste verdieping
Op de eerste verdieping bevinden zich drie goed bemeten slaapkamers van circa 10 m², 12 m² en 16 m². Alle kamers zijn voorzien van daglicht. Deze verdieping is aan de achterzijde uitgebouwd, wat zorgt voor extra ruimte.

De badkamer heeft een nette uitstraling en is uitgerust met een inloopdouche, wastafelmeubel, toilet en designradiator.

Tweede verdieping
Via de trap bereik je de zolderverdieping. Hier bevindt zich de wasmachineaansluiting en een vliering voor extra opbergruimte.
Verder vind je hier een vierde slaapkamer van circa 10 m² met dakraam. Deze kamer is functioneel in te delen en ook uitstekend geschikt als werk- of hobbykamer.

Buitenruimte
De ruime achtertuin ligt op het zonnige zuiden en is fraai aangelegd. Er is volop ruimte om meerdere zitplekken te creëren. Dankzij het zonnescherm over de volledige breedte van de woning kun je hier zowel van zon als schaduw genieten.
Achterin de tuin staat een stenen berging, ideaal voor fietsen, gereedschap of extra opslag.

Samenvatting
Een ruime en praktische tussenwoning met aanbouw, vier slaapkamers en een moderne afwerking. De combinatie van ruimte, een verzorgde tuin en de gunstige ligging nabij scholen, winkels, natuur en uitvalswegen maakt dit een ideale gezinswoning in Ede.

Koopovereenkomst:
Bij de verkoop zal een standaard NVM-koopovereenkomst worden gehanteerd.
Bij woningen ouder dan 20 jaar worden de volgende clausules opgenomen:

Asbestclausule
Ouderdomsclausule

Bij aankoop zonder financieringsvoorbehoud geldt een termijn van zes weken na het opstellen van de koopovereenkomst voor het storten van de waarborgsom of bankgarantie.

Deze informatie is met zorg samengesteld. Er wordt geen aansprakelijkheid aanvaard voor eventuele onvolledigheden of onjuistheden. Alle opgegeven maten en oppervlakten zijn indicatief.
+ toon meer
6716 HK, Ede

Churchilldreef 39

Zaterdag 2 augustus 10:00 - 12:00 uur

€ 445.000 k.k.
ditters makelaars ede
Kopen
Financiële mogelijkheden

Waardecheck

Onze makelaars kijken naar de lokale markt en vergelijkbare woningen in jouw buurt om een goede schatting te geven.
Onze makelaars kijken naar de lokale markt en vergelijkbare woningen in jouw buurt om een goede schatting te geven.
Goed om te weten: deze waardecheck is vrijblijvend en geheel kosteloos
Onafhankelijk

Hypotheekadvies

We helpen je met het vergelijken van aanbiedingen van verschillende banken, zodat je de beste deal krijgt. 
Wij staan klaar om je te begeleiden, zodat je met vertrouwen de juiste hypotheek kunt kiezen.
Goed om te weten: dit adviesgesprek is vrijblijvend en geheel kosteloos

Wij helpen jou bij de keuze van de juiste polis.

Bij een onbezorgde toekomst horen ook goede verzekeringen die uitkeren bij bijvoorbeeld ziekte, schade of diefstal. Onze assurantieadviseurs helpen je bij de keuze van de juiste polis. In heldere taal.

Diverse verzekeringen

  • Opstalverzekering
  • Aansprakelijkheidsverzekering
  • Zorgverzekering
  • Reisverzekering

Buurtinformatie

Ede, De Dreven
Inwoners
Woningen
818
Inwoners
2.250
6
94
Koop / Huur
6% Huur94% Koop
Huishoudens
Eenpersoon
19.9%
Geen kinderen
29.5%
Met kinderen
50.6%
Leeftijdsopbouw in jaren
Buurt Landelijk
20.913.324.030.711.816.312.324.728.218.5

Locatie

Plattegronden

Klik op de plattegrond voor een grote weergave

Belangrijke documenten

Meetrapport

Alle afmetingen van de woning duidelijk op een rij, inclusief totale oppervlakte.

Kadastrale kaart

Vragenlijst c.

Hier deelt de verkoper belangrijke informatie over de staat en bijzonderheden van de woning.

Vragenlijst b.

Hier deelt de verkoper belangrijke informatie over de staat en bijzonderheden van de woning.

Lijst van zaken

Overzicht van de zaken die achterblijven of worden meegenomen door de huidige bewoners.

Brochure

Bekijk hier alle details van de woning, compleet met foto's en beschrijvingen.

Misschien interessant voor jou

Blijf op de hoogte

Ontvang als eerste updates over nieuw aanbod en mis geen enkele kans om jouw droomwoning te vinden.

Gratis waardebepaling of verkoopgesprek

Met de vrijblijvende waardecheck weet je snel waar je aan toe bent. Onze makelaars kijken naar de lokale markt en vergelijkbare woningen in jouw buurt om een goede schatting te geven.