Omschrijving

Wonen in De Dubbelhof – wooncomfort met verrassend veel ruimte, binnen én buiten!

Ben je op zoek naar het comfort van een appartement, maar met de ruimte van een eengezinswoning?
Dan is deze royale maisonnette aan de Dubbelhof 63 in Ede precies wat je zoekt. Met een woonoppervlakte van maar liefst 115 m², vier volwaardige kamers, een tuin van circa 25 m² én twee balkons, combineert deze woning op de begane grond het beste van twee werelden: comfort, leefruimte en een fijne buitenbeleving.

Ligging en omgeving
Deze woning is gelegen in een groene, kindvriendelijke wijk aan de noordwestzijde van Ede. Een rustige en prettige woonomgeving, waar je toch alle voorzieningen dichtbij hebt. Supermarkten, basisscholen, sportfaciliteiten en speelgelegenheden liggen op loop- of fietsafstand. Bovendien sta je binnen enkele minuten midden in de natuur — perfect voor een wandeling of fietstocht.

De bereikbaarheid is uitstekend: zowel met de auto als met het openbaar vervoer ben je zo in het centrum van Ede of een van de omliggende steden.

Een goed verzorgd complex
De woning maakt deel uit van een complex waarvan de appartementen op termijn worden verkocht. De Vereniging van Eigenaren (VvE) is recent opgericht en wordt professioneel beheerd. Het gebouw krijgt binnenkort een opfrisbeurt, waarbij onder andere de entreehal en trappenhuizen opnieuw worden geschilderd. Daarnaast wordt op dit moment de dakbedekking volledig vernieuwd én extra geïsoleerd, wat bijdraagt aan een energiezuinig en comfortabel binnenklimaat. De woning is voorzien van dubbele beglazing en wordt verwarmd via een centrale blokverwarming.

Ruimte, licht en comfort
Ontdek dit lichte en ruime appartement op de begane grond van het complex. Met een woonoppervlakte van 115 m² biedt het volop ruimte voor een gezin, thuiswerkers of iedereen die net wat meer leefruimte zoekt. De grote raampartijen zorgen voor een prettige lichtinval in alle vertrekken.

Daarnaast beschikt de woning over een fraaie en zonnige tuin van circa 25 m² én twee balkons, waardoor je op elk moment van de dag van zon of schaduw kunt genieten.

Waarom kiezen voor Dubbelhof 63?
- Woonoppervlakte van 115 m²;
- Vier slaapkamers;
- Ruime tuin én twee balkons;
- Lichte leefruimtes met veel privacy;
- Rustige en groene ligging nabij voorzieningen;
- Professioneel beheerde VvE, vernieuwd dak.

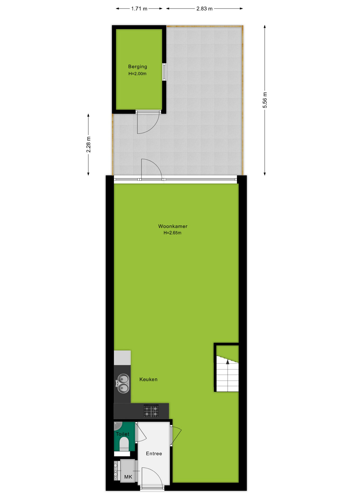
Indeling van de woning:
Deze maisonnette is gelegen op de begane grond en biedt een verrassend ruime en praktische indeling.

Begane grond
Je betreedt de woning via een centrale, afgesloten hal in het complex. In de hal van het appartement vind je de toegang tot de meterkast, toiletruimte en de overige vertrekken op deze verdieping.

De lichte en ruime woonkamer is gesitueerd aan de westzijde en beschikt over grote raampartijen die zorgen voor een prettige hoeveelheid daglicht. Vanuit de woonkamer heb je zicht op — én directe toegang tot — de tuin van circa 25 m², gelegen op het zuidwesten. Dankzij de ligging kun je hier een groot deel van de dag van de zon genieten: een heerlijke plek om te ontspannen na een lange (werk)dag.

De open keuken ligt centraal tussen de entree en de woonkamer. De keuken is praktisch ingericht en voorzien van een vierpits gasfornuis, afzuigkap, inbouwkoelkast met vriezer en een combi-oven/magnetron.

Eerste verdieping
Via de trap in de woonkamer bereik je de slaapverdieping. Hier bevinden zich vier slaapkamers, ideaal voor gezinnen, thuiswerkers of gasten:
- Twee slaapkamers van ca. 12 m², beide met toegang tot een eigen balkon
- Twee slaapkamers van ca. 8 m², geschikt als kinderkamer, werkkamer of hobbyruimte

Op deze verdieping bevindt zich een ruime centrale hal (ca. 9 m²) die toegang biedt tot de volledig betegelde badkamer. De badkamer is keurig afgewerkt en voorzien van een moderne wastafel, een nette douche en een tweede toilet. Daarnaast beschikt de hal over een praktische extra bergruimte.

Buitenruimte
Een van de grootste pluspunten van deze woning is de verrassend ruime tuin van bijna 25 m² — een echte zeldzaamheid bij een appartement! De tuin ligt op het zuidwesten, waardoor je hier het grootste deel van de dag heerlijk van de zon kunt genieten. Momenteel is de tuin volledig betegeld en voorzien van een praktisch schuurtje. De ruimte biedt echter volop mogelijkheden om geheel naar eigen smaak in te richten: creëer een groene oase, een onderhoudsvriendelijke patio of een sfeervolle buitenlounge. Dankzij de achterom is de tuin bovendien gemakkelijk bereikbaar en geniet je van extra gemak en privacy.

Berging
In het appartementengebouw heb je nog een eigen berging van circa 7 m² die je gemakkelijk van buitenaf kunt bereiken.

Bijdrage:
Voorschot stookkosten (inclusief kookgas) ca. : € 180,- per maand
Voorschot water: € 12,50 per maand
VvE bijdrage ca.: € 173,09 per maand

Er wordt gewerkt met een vaste notaris bij dit appartement, van Putten van Apeldoorn notarissen in Ede.

Koopovereenkomst:
Bij de verkoop zal er een standaard NVM koopovereenkomst worden gehanteerd. De volgende clausules worden onder andere opgenomen in de koopovereenkomst:
- Asbestclausule;
- Ouderdomsclausule;
- Niet bewoond clausule;
- As is where is clausule.

Koopt u de woning zonder voorbehoud van financiering? Dan zullen wij een termijn hanteren van 14 dagen na het opstellen van de koopovereenkomst voor het storten van de bankgarantie/waarborgsom.

Deze informatie is door ons met de nodige zorgvuldigheid samengesteld. Onzerzijds wordt echter geen enkele aansprakelijkheid aanvaard voor enige onvolledigheid, onjuistheid of anderszins, dan wel de gevolgen daarvan. Alle opgegeven maten en oppervlakten zijn indicatief.
+ toon meer
6715 EG, Ede

Dubbelhof 63

Zaterdag 2 augustus 10:00 - 12:00 uur

€ 369.000 k.k.
ditters makelaars ede
Kopen
Financiële mogelijkheden

Waardecheck

Onze makelaars kijken naar de lokale markt en vergelijkbare woningen in jouw buurt om een goede schatting te geven.
Onze makelaars kijken naar de lokale markt en vergelijkbare woningen in jouw buurt om een goede schatting te geven.
Goed om te weten: deze waardecheck is vrijblijvend en geheel kosteloos
Onafhankelijk

Hypotheekadvies

We helpen je met het vergelijken van aanbiedingen van verschillende banken, zodat je de beste deal krijgt. 
Wij staan klaar om je te begeleiden, zodat je met vertrouwen de juiste hypotheek kunt kiezen.
Goed om te weten: dit adviesgesprek is vrijblijvend en geheel kosteloos

Wij helpen jou bij de keuze van de juiste polis.

Bij een onbezorgde toekomst horen ook goede verzekeringen die uitkeren bij bijvoorbeeld ziekte, schade of diefstal. Onze assurantieadviseurs helpen je bij de keuze van de juiste polis. In heldere taal.

Diverse verzekeringen

  • Opstalverzekering
  • Aansprakelijkheidsverzekering
  • Zorgverzekering
  • Reisverzekering

Buurtinformatie

Ede, De Hoven
Inwoners
Woningen
989
Inwoners
2.400
27
73
Koop / Huur
27% Huur73% Koop
Huishoudens
Eenpersoon
27.0%
Geen kinderen
36.5%
Met kinderen
36.0%
Leeftijdsopbouw in jaren
Buurt Landelijk
17.711.721.729.220.216.312.324.728.218.5

Locatie

Belangrijke documenten

Meetrapport

Alle afmetingen van de woning duidelijk op een rij, inclusief totale oppervlakte.

Kadastrale kaart

Brochure

Bekijk hier alle details van de woning, compleet met foto's en beschrijvingen.

Misschien interessant voor jou

Blijf op de hoogte

Ontvang als eerste updates over nieuw aanbod en mis geen enkele kans om jouw droomwoning te vinden.

Gratis waardebepaling of verkoopgesprek

Met de vrijblijvende waardecheck weet je snel waar je aan toe bent. Onze makelaars kijken naar de lokale markt en vergelijkbare woningen in jouw buurt om een goede schatting te geven.