Omschrijving

Lakkerij 47 – Ede
Op zoek naar een instapklare, duurzame woning met veel ruimte en een unieke ligging? Deze moderne tussenwoning uit 2019 bevindt zich op het geliefde ENKA-terrein en combineert het comfort van nieuwbouw met de charme van een karakteristieke omgeving. Met energielabel A, 10 zonnepanelen, vijf slaapkamers, een dakkapel en een vrije ligging aan de voorzijde, is dit een perfecte gezinswoning.

Pluspunten van deze woning
+ Gasloos en voorzien van energielabel A
+ 10 zonnepanelen voor lage energielasten
+ Maar liefst 5 slaapkamers verdeeld over 2 verdiepingen
+ Dakkapel op de tweede verdieping
+ Gelegen in de karakteristieke omgeving van het ENKA-terrein
+ Vrije ligging aan de voorzijde

Wonen op het ENKA-terrein
Wonen OP ENKA betekent wonen op een historische locatie met een uniek karakter. Tussen de monumentale panden en moderne woningen woon je pal aan de rand van de Veluwse bossen, met natuurgebieden De Sysselt en het Horabos praktisch in je achtertuin. Het station Ede-Wageningen ligt op slechts 10 minuten loopafstand (straks 5 minuten na de realisatie van het nieuwe Intercitystation). Met de trein ben je binnen 25 minuten op Utrecht Centraal en in 60 minuten in hartje Amsterdam. Ook de uitvalswegen A12 en A30 zijn uitstekend bereikbaar. In de wijk zijn diverse voorzieningen aanwezig, waaronder een basisschool, kinderdagverblijf, BSO en het winkelcentrum Spindop voor dagelijkse boodschappen. Het centrum van Ede ligt op slechts 10 minuten fietsen.

Samengevat
Lakkerij 47 is een instapklare, energiezuinige gezinswoning met veel ruimte, een praktische indeling en een unieke ligging op het karakteristieke ENKA-terrein. Dankzij de vijf slaapkamers, het gasloze ontwerp en de duurzame voorzieningen is deze woning klaar voor de toekomst.

Enthousiast geworden?
Plan vandaag nog een bezichtiging en ontdek zelf waarom wonen op het ENKA-terrein zo bijzonder is.

Indeling:
Begane grond:
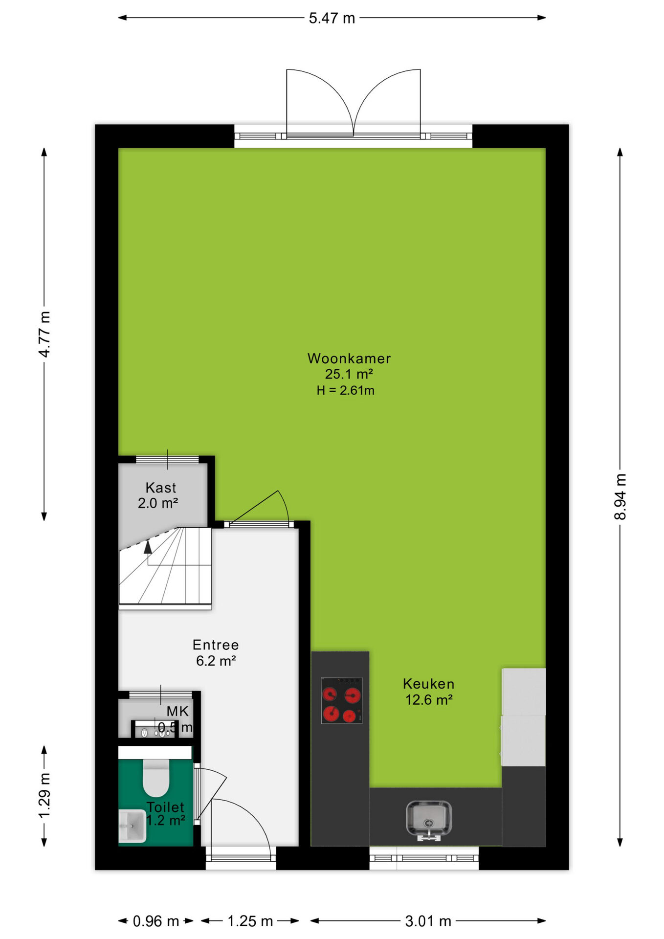
Via de entree kom je bij de hal met meterkast en toilet en de trap naar de eerste verdieping. De ruime en lichte woonkamer van maar liefst 25m2, beschikt over een trapkast, openslaande deuren naar de tuin en grote raampartijen die voor veel daglicht zorgen. Centraal tussen de woonkamer en keuken bevindt zich het eetgedeelte. Hier is meer dan voldoende ruimte voor een grote eettafel met stoelen. Een fijne plek om met familie en/of vrienden te genieten van een hapje, drankje en spelletje!
De open keuken aan de voorzijde is voorzien van moderne inbouwapparatuur zoals: een kookplaat, afzuigkap, combi-oven/magnetron, koelkast, vriezer en een vaatwasser.

Eerste verdieping
Via de vaste trap kom je bij de overloop van de eerste verdieping. Deze biedt toegang tot de drie slaapkamers op deze verdieping, de afmetingen van de slaapkamers zijn 14m2, 12m2 en 7m2. De slaapkamers zijn allemaal voorzien van heerlijk veel lichtinval. De badkamer beschikt over een toilet, wastafel, inloopdouche en de mogelijkheid om een ligbad te plaatsen.

Tweede verdieping
Door middel van de vaste trap kom je bij de ruime overloop en nog twee slaapkamers, waarvan één met dakkapel, en een aparte wasruimte met witgoedaansluiting. Tevens beschikt deze verdieping over voldoende opbergruimte.

Exterieur
De tuin is gelegen op het westen en heeft meerdere terrassen en groenvoorzieningen. Een fijne achtertuin om te genieten van het buitenleven in alle rust met privacy! Achterin staat een schuur voor het stallen van fietsen en het opbergen van tuinspullen. Via de achterom is de tuin gemakkelijk bereikbaar.

Koopovereenkomst:
Bij de verkoop zal er een standaard NVM koopovereenkomst worden gehanteerd.

Koop je de woning zonder voorbehoud van financiering? Dan zullen wij een termijn hanteren van 6 weken na het opstellen van de koopovereenkomst voor het storten van de bankgarantie/waarborgsom.
+ toon meer
deze woning is Verkocht

Lakkerij 47 Ede

Lakkerij 47

6717 ZT, Ede
Ditters open huis: 5 april 2025 10:00 - 12:00 uur
Landelijke Open Huizen Route NVM: 5 april 2025 11:00 uur - 15:00 uur
Vanaf€ 535.000 k.k.

Schakel een aankoopmakelaar in.

Snel handelen helpt je jouw droomhuis te bemachtigen. Zo vergroot je de kans dat je er op tijd bij bent.
Ede
verkocht

Of maak vrijblijvend een zoekprofiel aan.

Vergelijkbare woningen

Hypotheken

Onafhankelijk hypotheekadvies

  • Ligt jouw droomhuis binnen handbereik?
  • Wil je jouw huidige hypotheek verhogen?
  • Is er hypotheekruimte voor verduurzaming?

Blijf op de hoogte

Ontvang als eerste updates over nieuw aanbod en mis geen enkele kans om jouw droomwoning te vinden.

Gratis waardebepaling of verkoopgesprek

Met de vrijblijvende waardecheck weet je snel waar je aan toe bent. Onze makelaars kijken naar de lokale markt en vergelijkbare woningen in jouw buurt om een goede schatting te geven.

Realiseer al jouw woondromen met Ditters

Wij zijn een team van gedreven vastgoedexperts met een passie voor het maken van verbindingen – tussen kopers en verkopers, huurders en verhuurders. Met een frisse kijk op de makelaardij combineren we expertise met creativiteit. Onze makelaars luisteren écht en nemen de tijd om jouw wensen te begrijpen.


Bij Ditters sta je er niet alleen voor. We denken met je mee, begeleiden je in elke stap en zijn altijd bereikbaar voor vragen. Neem gerust contact met ons op – we helpen je graag verder!