Omschrijving

Op zoek naar een ruime gezinswoning met veel slaapkamers, een zonnige tuin en parkeren op eigen terrein? Deze hoekwoning aan de Pienemanstraat 77 in Ede biedt het allemaal. Met 111 m² woonoppervlakte, 5 slaapkamers, een eigen oprit met carport en 8 zonnepanelen woon je hier comfortabel en energiezuinig. De ligging in een kindvriendelijke wijk maakt het plaatje compleet.

Deze woning ligt op een fijne locatie, op korte afstand van winkelcentrum Stadspoort voor je dagelijkse boodschappen. Voor gezinnen is het ideaal: er is een speelpleintje om de hoek en ook een losloopgebied voor de hond in de buurt. De wijk is kindvriendelijk en groen. Bovendien is de A12 en station Ede-Wageningen snel bereikbaar.

De pluspunten op een rij:
+ Maar liefst 5 slaapkamers
+ Eigen oprit met carport en directe toegang tot de tuin
+ Dakkapellen geplaatst in 2024 voor extra ruimte en licht
+ Meterkast vernieuwd in 2023
+ Carport en veranda gerealiseerd in 2021
+ Keuken en badkamer vernieuwd in 2019, compleet uitgerust
+ 8 zonnepanelen (energielabel C)
+ Tuin op het oosten met meerdere bergingen en veranda
+ Gelegen in een rustige, kindvriendelijke wijk met veel voorzieningen in de buurt

Indeling
Begane grond
Via de hal, met toilet en meterkast, kom je in de ruime woonkamer. Dankzij de openslaande deuren valt er veel natuurlijk daglicht binnen. ’s Avonds zorgt de houtkachel voor extra sfeer, of je nu aan de eettafel zit of op de bank ontspant. De keuken is in 2019 vernieuwd en voorzien van o.a. Borreti inductiefornuis met dubbele oven, magnetron, afzuigkap, koel-vriescombinatie en vaatwasser.

Eerste verdieping
Op de eerste etage bevinden zich drie slaapkamers. De grootste kamer (ca. 12 m²) heeft een vaste kastenwand met veel opbergruimte. De andere twee kamers zijn ca. 7 m² groot. De badkamer (ca. 6 jaar oud) is voorzien van een dubbele wastafel, inloopdouche, designradiator en toilet.

Tweede verdieping
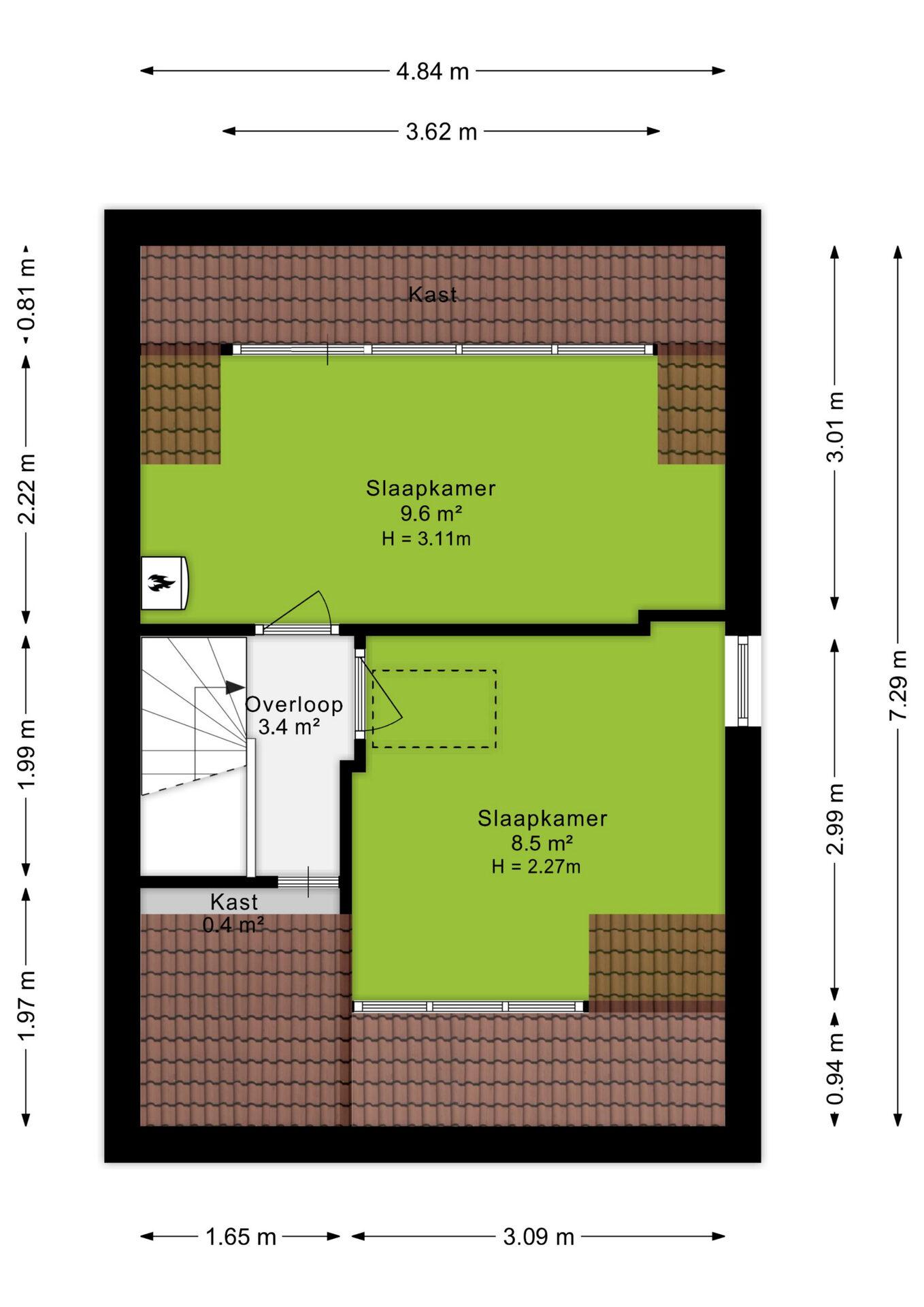
Op weg naar de tweede verdieping kom je langs de airconditioning in het trappengat. Boven zijn nog twee slaapkamers van ca. 10 m² en 9 m², beide met dakkapel. De kamer aan de voorzijde heeft een luik met vlizotrap naar de vliering, terwijl de kamer aan de achterzijde de cv-ketel herbergt. Achter de knieschotten is extra opbergruimte beschikbaar.

Buitenruimte
De tuin ligt op het oosten en is bereikbaar via de carport, waar een deur toegang geeft tot de achtertuin. Direct achter de carport is een overkapping/veranda geplaatst, perfect om beschut buiten te zitten. Achter in de tuin staat een grote stenen berging, opgedeeld in twee ruimtes, met wasmachineaansluiting en een vliering. Daarnaast is er nog een aparte fietsenberging.

Koopovereenkomst:
Bij de verkoop zal er een standaard NVM koopovereenkomst worden gehanteerd. Bij woningen welke ouder zijn dan 20 jaar, worden de volgende clausules opgenomen in de koopovereenkomst:
- Asbestclausule
- Ouderdomsclausule

Koop je de woning zonder voorbehoud van financiering? Dan zullen wij een termijn hanteren van 6 weken na het opstellen van de koopovereenkomst voor het storten van de bankgarantie/waarborgsom.
+ toon meer
deze woning is Verkocht

Pienemanstraat 77 Ede

Pienemanstraat 77

6717 WC, Ede
Ditters open huis: 5 april 2025 10:00 - 12:00 uur
Landelijke Open Huizen Route NVM: 5 april 2025 11:00 uur - 15:00 uur
Vanaf€ 495.000 k.k.

Schakel een aankoopmakelaar in.

Snel handelen helpt je jouw droomhuis te bemachtigen. Zo vergroot je de kans dat je er op tijd bij bent.
Ede
verkocht

Of maak vrijblijvend een zoekprofiel aan.

Vergelijkbare woningen

Hypotheken

Onafhankelijk hypotheekadvies

  • Ligt jouw droomhuis binnen handbereik?
  • Wil je jouw huidige hypotheek verhogen?
  • Is er hypotheekruimte voor verduurzaming?

Blijf op de hoogte

Ontvang als eerste updates over nieuw aanbod en mis geen enkele kans om jouw droomwoning te vinden.

Gratis waardebepaling of verkoopgesprek

Met de vrijblijvende waardecheck weet je snel waar je aan toe bent. Onze makelaars kijken naar de lokale markt en vergelijkbare woningen in jouw buurt om een goede schatting te geven.

Realiseer al jouw woondromen met Ditters

Wij zijn een team van gedreven vastgoedexperts met een passie voor het maken van verbindingen – tussen kopers en verkopers, huurders en verhuurders. Met een frisse kijk op de makelaardij combineren we expertise met creativiteit. Onze makelaars luisteren écht en nemen de tijd om jouw wensen te begrijpen.


Bij Ditters sta je er niet alleen voor. We denken met je mee, begeleiden je in elke stap en zijn altijd bereikbaar voor vragen. Neem gerust contact met ons op – we helpen je graag verder!