Omschrijving

Deze goed onderhouden woning beschikt over drie slaapkamers, negen zonnepanelen en een zonnige tuin op het zuiden, wat garant staat voor comfortabel en energiezuinig wonen. Dankzij de lichte woonkamer, praktische indeling en parkeergelegenheid op eigen terrein is dit een ideale gezinswoning op een centrale locatie in Ede.

De woning bevindt zich op slechts enkele minuten fietsen van winkelcentrum Spindop, winkelcentrum Stadspoort en station Ede-Wageningen. Bovendien bevinden diverse basisscholen, scholen voor voortgezet onderwijs, MBO- en HBO-instellingen, sportfaciliteiten en belangrijke uitvalswegen zich in de directe omgeving. Zo woon je centraal en toch in een rustige woonomgeving.

Pluspunten van deze woning
+ Tussenwoning met 3 slaapkamers
+ Zolder aanwezig voor extra opslagruimte
+ Tuin op het zuiden met handige achterom
+ Parkeren op eigen terrein
+ Twee bergingen aanwezig
+ Energielabel A en voorzien van 9 zonnepanelen

Indeling
Begane grond
Bij binnenkomst in de entree bevinden zich de meterkast, het toilet en de toegang tot de berging aan de voorzijde van de woning. De woonkamer is licht met een fijne overgang naar de open keuken. De keuken is opgesteld in een L-vorm en voorzien van diverse inbouwapparatuur, waaronder een gasfornuis, afzuigkap, combi-oven, koelkast en vaatwasser. De praktische trapkast biedt extra opbergruimte voor huishoudelijke spullen of voorraad.

Eerste verdieping
Op de eerste verdieping bevinden zich twee slaapkamers van ongeveer 10 m² en 13 m². De slaapkamer aan de voorzijde is voorzien van een vaste inbouwkast, terwijl de slaapkamer aan de achterzijde dankzij een dakkapel extra ruimtelijk is.
De badkamer is compleet uitgerust met een ligbad, douche, toilet, wastafel met meubel en designradiator.

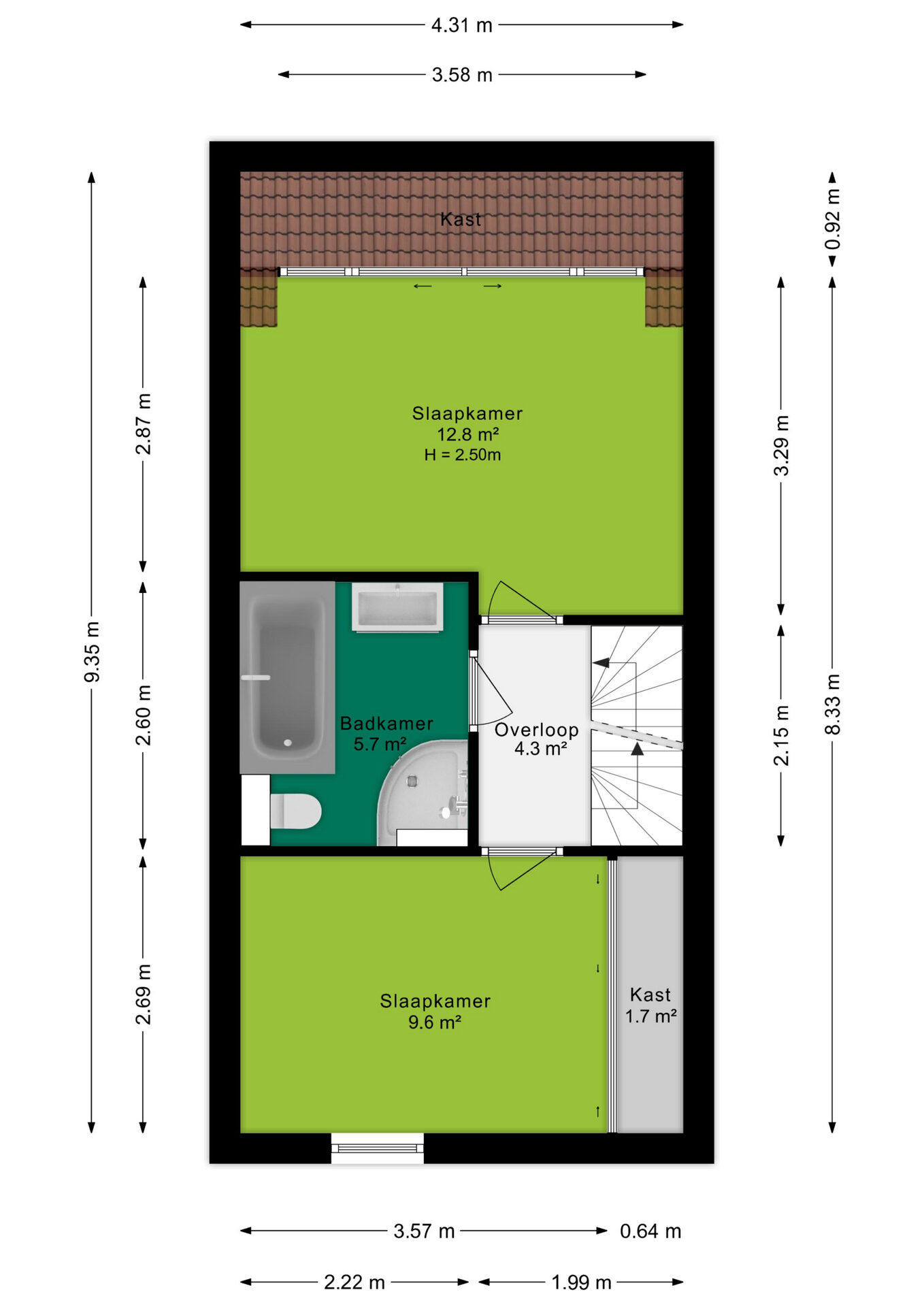
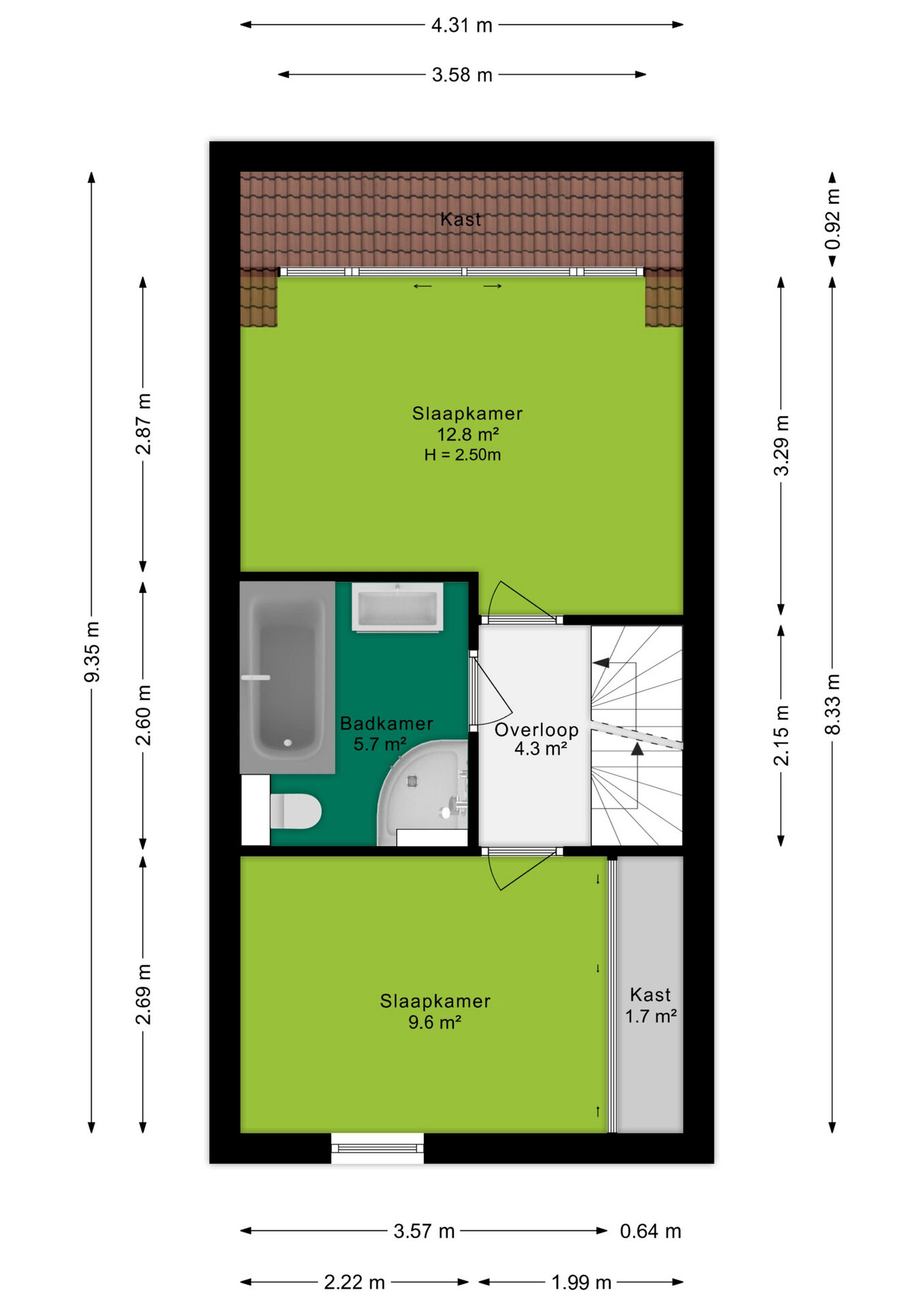
Tweede verdieping
Via de vaste trap bereik je de tweede verdieping met een ruime overloop en toegang tot een derde slaapkamer. Hier bevindt zich ook een berging met wasmachineaansluiting. en vaste trap leidt naar de zolder, waar je gemakkelijk kunt staan. Hier is extra bergruimte aanwezig, waardoor het een functionele ruimte vormt.

Buitenruimte
De zonnige achtertuin ligt op het zuiden en beschikt over een achterom en een stenen berging van circa 6 m². Dankzij de gunstige ligging geniet je hier de hele dag door van de zon.

Koopovereenkomst:
Bij de verkoop zal er een standaard NVM koopovereenkomst worden gehanteerd. Bij woningen welke ouder zijn dan 20 jaar, worden de volgende clausules opgenomen in de koopovereenkomst:
- Asbestclausule;
- Ouderdomsclausule.

Koop je de woning zonder voorbehoud van financiering? Dan zullen wij een termijn hanteren van 6 weken na het opstellen van de koopovereenkomst voor het storten van de bankgarantie/waarborgsom.

Deze informatie is door ons met de nodige zorgvuldigheid samengesteld. Onzerzijds wordt echter geen enkele aansprakelijkheid aanvaard voor enige onvolledigheid, onjuistheid of anderszins, dan wel de gevolgen daarvan. Alle opgegeven maten en oppervlakten zijn indicatief.
+ toon meer
6717 PX, Ede

Pieter de Hooghstraat 68

Zaterdag 2 augustus 10:00 - 12:00 uur

€ 400.000 k.k.
ditters makelaars ede
Kopen
Financiële mogelijkheden

Waardecheck

Onze makelaars kijken naar de lokale markt en vergelijkbare woningen in jouw buurt om een goede schatting te geven.
Onze makelaars kijken naar de lokale markt en vergelijkbare woningen in jouw buurt om een goede schatting te geven.
Goed om te weten: deze waardecheck is vrijblijvend en geheel kosteloos
Onafhankelijk

Hypotheekadvies

We helpen je met het vergelijken van aanbiedingen van verschillende banken, zodat je de beste deal krijgt. 
Wij staan klaar om je te begeleiden, zodat je met vertrouwen de juiste hypotheek kunt kiezen.
Goed om te weten: dit adviesgesprek is vrijblijvend en geheel kosteloos

Wij helpen jou bij de keuze van de juiste polis.

Bij een onbezorgde toekomst horen ook goede verzekeringen die uitkeren bij bijvoorbeeld ziekte, schade of diefstal. Onze assurantieadviseurs helpen je bij de keuze van de juiste polis. In heldere taal.

Diverse verzekeringen

  • Opstalverzekering
  • Aansprakelijkheidsverzekering
  • Zorgverzekering
  • Reisverzekering

Buurtinformatie

Ede, Maandereng-Oost
Inwoners
Woningen
742
Inwoners
1.925
22
78
Koop / Huur
22% Huur78% Koop
Huishoudens
Eenpersoon
25.3%
Geen kinderen
31.2%
Met kinderen
42.9%
Leeftijdsopbouw in jaren
Buurt Landelijk
21.310.428.630.99.616.312.324.728.218.5

Locatie

Belangrijke documenten

Vragenlijst deelb

Hier deelt de verkoper belangrijke informatie over de staat en bijzonderheden van de woning.

Lijst van zaken

Overzicht van de zaken die achterblijven of worden meegenomen door de huidige bewoners.

Vragenlijst deelc

Hier deelt de verkoper belangrijke informatie over de staat en bijzonderheden van de woning.

Kadastrale kaart

Meetrapport

Alle afmetingen van de woning duidelijk op een rij, inclusief totale oppervlakte.

Brochure

Bekijk hier alle details van de woning, compleet met foto's en beschrijvingen.

Misschien interessant voor jou

Blijf op de hoogte

Ontvang als eerste updates over nieuw aanbod en mis geen enkele kans om jouw droomwoning te vinden.

Gratis waardebepaling of verkoopgesprek

Met de vrijblijvende waardecheck weet je snel waar je aan toe bent. Onze makelaars kijken naar de lokale markt en vergelijkbare woningen in jouw buurt om een goede schatting te geven.