Aanbod

Verken ons aanbod. Van huur tot koop. En van nieuwbouw tot bouwkavel. Samen vinden we de plek waar jij je helemaal thuis voelt.

Diensten

Onze experts begeleiden je van A tot Z. Of je nu je huis wilt verkopen, op zoek bent naar je droomhuis of advies nodig hebt over hypotheken of verzekeringen. Met jarenlange ervaring en persoonlijke service zorgen we ervoor dat jij met een gerust hart de juiste keuzes maakt.

Over Ditters

Wij zijn Ditters. Verhalenvertellers. De schakel tussen droom en woning. We luisteren naar jouw wensen en maken op basis daarvan een plan.

Omschrijving

Aan de Reehorsterweg 21B in Ede-Zuid vind je deze schitterende, duurzame en luxe twee-onder-een-kapwoning, uitgerust met maar liefst 29 zonnepanelen. De woning is gelegen aan een brede, rustige en fraaie straat en combineert comfort, ruimte en stijl. Daarnaast beschikt de woning over een aangebouwde stenen garage, een dubbele oprit met plek voor twee auto's, en ruimte voor een carport naast de garage.

De woning is gebouwd in 2016. Op de begane grond bevindt zich een ruime woonkamer met veel lichtinval en een moderne keuken, voorzien van diverse inbouwapparatuur zoals een inductiekookplaat, combi-oven, vaatwasser en koel-vriescombinatie. Via openslaande deuren bereik je het terras en mooie, onder architectuur aangelegde tuin, waar je kunt genieten van privacy en rust. De gehele begane grond en eerste verdieping zijn voorzien van vloerverwarming, wat zorgt voor extra comfort.

De eerste verdieping beschikt over drie slaapkamers en een moderne badkamer. De zolderverdieping is een open ruimte die eenvoudig kan worden ingericht met twee extra kamers.

De woning bevindt zich in een geliefde en rustige woonwijk in Ede-Zuid, met een ideale ligging ten opzichte van talloze voorzieningen. Op loopafstand ligt Landgoed Hoekelum, een prachtig aangelegd park met wandelpaden en groenstroken, waar je heerlijk kunt ontspannen of een frisse wandeling kunt maken. In de nabije omgeving zijn diverse winkels, supermarkten en horecagelegenheden te vinden, waardoor je voor zowel de dagelijkse boodschappen als een gezellig avondje uit niet ver van huis hoeft. Het station Ede-Wageningen is op loopafstand, en met de goede verbindingen naar de A12 en A30 ben je snel onderweg naar steden als Arnhem, Utrecht en Amersfoort.

Voor gezinnen met kinderen is dit een ideale locatie, met meerdere basisscholen, een middelbare school en sportvoorzieningen in de buurt. Daarnaast is het nabijgelegen natuurgebied de Veluwe een geweldige plek voor liefhebbers van rust en natuur. Hier kun je eindeloos genieten van uitgestrekte bossen, heidevelden en talloze wandel- en fietsroutes.

Enkele pluspunten van de woning:
+ Brede oprit met laadpaal en plek voor twee auto’s;
+ Vloerverwarming op de begane grond en eerste verdieping;
+ 29 zonnepanelen en hybride warmtepomp aanwezig;
+ Luxe keuken;
+ Vier slaapkamers;
+ Moderne badkamer;
+ Onder architectuur aangelegde tuin op het zuidoosten;

Indeling
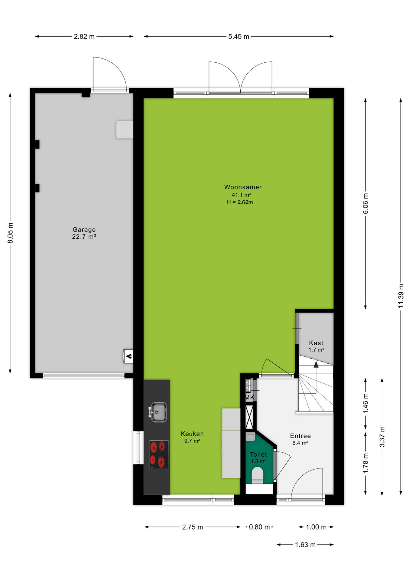
Begane grond
Bij binnenkomst tref je de entree met een luxe toilet voorzien van een fonteintje, een meterkast en de trapopgang naar de eerste verdieping. Via een moderne stalen deur kom je in de riante en lichte woonkamer met een oppervlakte van circa 41 m². Aan de achterzijde bij het zitgedeelte van de woning zijn er openslaande deuren naar de ruime tuin. In de woonkamer bevindt zich een handige trapkast, perfect te gebruiken als voorraadruimte.

De open keuken is stijlvol ingericht en is voorzien van diverse hoogwaardige inbouwapparatuur, waaronder een inductiekookplaat met geïntegreerde afzuiging, een Quooker, een vaatwasser, een combi-oven en een koelvries-combinatie.
De gehele begane grond is voorzien van een van eikenhouten parketvloer.

Eerste verdieping
Op de eerste verdieping bevindt zich een overloop, drie slaapkamers en een moderne badkamer. Een ruime slaapkamer aan de voorzijde van circa 10 m², een kleinere slaapkamer aan de achterzijde van circa 7 m² en een royale ouderslaapkamer van circa 18 m² met grote ramen die zorgen voor veel daglicht. Deze slaapkamer is tevens voorzien van een inloopkast en airconditioning. De moderne badkamer beschikt over een inloopdouche, een toilet en een dubbele wastafel met eikenhouten meubel.

Tweede verdieping
De ruime tweede verdieping biedt mogelijkheid tot het maken van twee extra (slaap)kamers. De ruimte heeft twee grote kunststof dakramen die zorgen voor veel licht. Aan de achterwand bevindt zich over de volle breedte een grote opbergkast.

Exterieur
Via de openslaande deuren in de woonkamer kom je in de zonnige, onder architectuur aangelegde achtertuin, gelegen op het zuidoosten. De fraai aangelegde tuin beschikt over twee terrassen en is bereikbaar via achterom. De brede achtertuin is voorzien van voldoende zon- en schaduwplekken en beschikt over een beregeningssysteem.

Oprit en garage
De stenen aangebouwde royale garage (ca. 23 m2) is voorzien van vloerverwarming (deze is nog niet aangesloten) waardoor er potentie is voor extra woonruimte. De dubbele oprit met laadpaal biedt plaats aan 2 auto’s. Tevens is er naast de garage voldoende ruimte voor een eventuele carport.

Afmetingen
Inhoud: 604 m³
Woonoppervlakte: 142 m²
Perceeloppervlakte: 287 m²

Bijzonderheden
Verwarming: Vloerverwarming gedeeltelijk, warmtepomp, CV-installatie, Intergas CW5 2016;
Warm water: CV-installatie Intergas CW5 2016;
Isolatie: Muur-, vloer-, dakisolatie, HR++-glas;
Bouwjaar: 2016;
Tuinligging: Zuidoosten;
Aanvaarding: In overleg.

Koopovereenkomst:
Bij de verkoop zal er een standaard NVM koopovereenkomst worden gehanteerd. Bij woningen welke ouder zijn dan 20 jaar, worden de volgende clausules opgenomen in de koopovereenkomst:
- Asbestclausule;
- Ouderdomsclausule.

Koop je de woning zonder voorbehoud van financiering? Dan zullen wij een termijn hanteren van 14 dagen na het opstellen van de koopovereenkomst voor het storten van de bankgarantie/waarborgsom.

Deze informatie is door ons met de nodige zorgvuldigheid samengesteld. Onzerzijds wordt echter geen enkele aansprakelijkheid aanvaard voor enige onvolledigheid, onjuistheid of anderszins, dan wel de gevolgen daarvan. Alle opgegeven maten en oppervlakten zijn indicatief.
+ toon meer
deze woning is Verkocht

Reehorsterweg 21 B Ede

Reehorsterweg 21 B

6717 LD, Ede
Ditters open huis: 5 april 2025 10:00 - 12:00 uur
Landelijke Open Huizen Route NVM: 5 april 2025 11:00 uur - 15:00 uur
Vanaf€ 775.000 k.k.

Schakel een aankoopmakelaar in.

Snel handelen helpt je jouw droomhuis te bemachtigen. Zo vergroot je de kans dat je er op tijd bij bent.
Ede
verkocht

Of maak vrijblijvend een zoekprofiel aan.

Vergelijkbare woningen

Hypotheken

Onafhankelijk hypotheekadvies

  • Ligt jouw droomhuis binnen handbereik?
  • Wil je jouw huidige hypotheek verhogen?
  • Is er hypotheekruimte voor verduurzaming?

Blijf op de hoogte

Ontvang als eerste updates over nieuw aanbod en mis geen enkele kans om jouw droomwoning te vinden.

Gratis waardebepaling of verkoopgesprek

Met de vrijblijvende waardecheck weet je snel waar je aan toe bent. Onze makelaars kijken naar de lokale markt en vergelijkbare woningen in jouw buurt om een goede schatting te geven.

Realiseer al jouw woondromen met Ditters

Wij zijn een team van gedreven vastgoedexperts met een passie voor het maken van verbindingen – tussen kopers en verkopers, huurders en verhuurders. Met een frisse kijk op de makelaardij combineren we expertise met creativiteit. Onze makelaars luisteren écht en nemen de tijd om jouw wensen te begrijpen.


Bij Ditters sta je er niet alleen voor. We denken met je mee, begeleiden je in elke stap en zijn altijd bereikbaar voor vragen. Neem gerust contact met ons op – we helpen je graag verder!