Aanbod

Verken ons aanbod. Van huur tot koop. En van nieuwbouw tot bouwkavel. Samen vinden we de plek waar jij je helemaal thuis voelt.

Diensten

Onze experts begeleiden je van A tot Z. Of je nu je huis wilt verkopen, op zoek bent naar je droomhuis of advies nodig hebt over hypotheken of verzekeringen. Met jarenlange ervaring en persoonlijke service zorgen we ervoor dat jij met een gerust hart de juiste keuzes maakt.

Over Ditters

Wij zijn Ditters. Verhalenvertellers. De schakel tussen droom en woning. We luisteren naar jouw wensen en maken op basis daarvan een plan.

Omschrijving

In de wijk 'Veldhuizen', op een rustige en kindvriendelijke locatie, ligt deze tussenwoning met een heerlijke diepe tuin op het zonnige zuiden!

Deze woning biedt onder andere een lichte woonkamer van 28 m² met half open keuken, 4 slaapkamers, een badkamer en een praktische berging/wasruimte. Met wat modernisatie kun je dit huis volledig naar jouw wens maken en genieten van een huis voor het hele gezin.

Verder bevindt de woning zich op loopafstand van diverse voorzieningen, zoals Landgoed Kernhem, scholen, een gezondheidscentrum, speeltuinen, winkelcentrum Parkweide, Bellestein en uitvalswegen. Aan de Schoonenburg in Ede woon je in een levendige buurt met veel jonge gezinnen en kinderen.

Alle feiten op een rij
- Tussenwoning gelegen in een rustig hofje
- Heerlijke zonnige en diepe tuin met een ligging op het zuiden
- Maar liefst 4 ruime slaapkamers
- Badkamer met ligbad en een praktische berging/wasruimte
- Voldoende parkeergelegenheid in de omgeving
- Het platte dak van het balkon is in 2024 vernieuwd, woonhuis en berging in 2023
- Gelegen nabij dagelijkse voorzieningen zoals winkelcentrum Parkweide en Bellestein

Indeling
Begane grond
Bij binnenkomst in de ruime hal heb je toegang tot de woonkamer. De tuingerichte woonkamer, met een oppervlakte van circa 28 m², heeft een deur die direct leidt naar de achtertuin. Daarnaast is er een praktische trapkast, ideaal voor extra opslag. De half open keuken bevindt zich aan de voorzijde van de woning en is uitgevoerd in een U-opstelling met diverse inbouwapparatuur. De begane grond is afgewerkt met een woongrindvloer. Terug in de hal, waar je ook de toiletruimte vindt, bereik je via de trapopgang de eerste verdieping.

1e verdieping
Via de overloop bereik je twee ruime slaapkamers en de badkamer. Beide slaapkamers zijn circa 12 m² groot en hebben rechte wanden, waardoor de ruimtes optimaal benut kunnen worden. Hierdoor heb je echt twee volwaardige slaapkamers. De slaapkamer aan de achterzijde heeft toegang tot een balkon, perfect om bijvoorbeeld de was te laten drogen of om een zitje te plaatsen. rustig van je ochtend te genieten. De badkamer is uitgevoerd in een lichte kleurstelling en is voorzien van een ligbad met douchefunctie, een wastafel en een toilet.

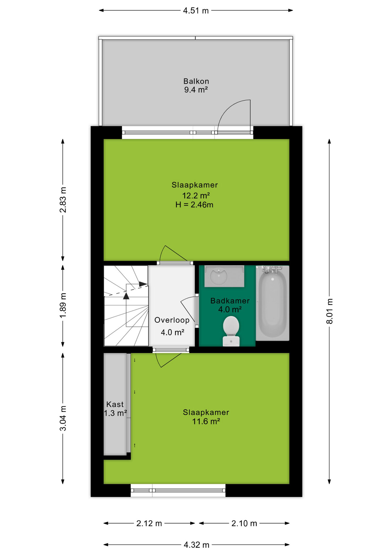
2e verdieping
Via een vaste trap bereik je de tweede verdieping. Hier bevinden zich twee slaapkamers van ongeveer 12 m² en 11 m². De slaapkamer aan de achterzijde is voorzien van een dakraam. Daarnaast is er een praktische berging/wasruimte, ideaal voor het opbergen van spullen. Deze ruimte is uitgerust met aansluitingen voor witgoed en biedt plaats aan de C.V.-ketel.

Tuin
De achtertuin is prachtig gelegen op het zonnige zuiden, waardoor je hier volop kunt genieten van zowel zon als schaduw, op ieder moment van de dag. Aan de voorzijde van de woning bevindt zich een aangebouwde stenen berging, ideaal voor het stallen van fietsen en extra opslag.

Bijzonderheden:
Verwarming: C.V.-ketel Nefit (2004)
Warmwater: C.V.-ketel Nefit (2004)
Tuinligging: Zuiden
Aanvaarding: In overleg

Koopovereenkomst:
Bij de verkoop zal er een standaard NVM koopovereenkomst worden gehanteerd. Bij woningen welke ouder zijn dan 20 jaar, worden de volgende clausules opgenomen in de koopovereenkomst:
- Asbestclausule
- Ouderdomsclausule

Koop je de woning zonder voorbehoud van financiering? Dan zullen wij een termijn hanteren van 14 dagen na het opstellen van de koopovereenkomst voor het storten van de bankgarantie/waarborgsom.

Deze informatie is door ons met de nodige zorgvuldigheid samengesteld. Onzerzijds wordt echter geen enkele aansprakelijkheid aanvaard voor enige onvolledigheid, onjuistheid of anderszins, dan wel de gevolgen daarvan. Alle opgegeven maten en oppervlakten zijn indicatief.
+ toon meer
deze woning is Verkocht

Schoonenburg 100 Ede

Schoonenburg 100

6714 GD, Ede
Ditters open huis: 5 april 2025 10:00 - 12:00 uur
Landelijke Open Huizen Route NVM: 5 april 2025 11:00 uur - 15:00 uur
Vanaf€ 365.000 k.k.

Schakel een aankoopmakelaar in.

Snel handelen helpt je jouw droomhuis te bemachtigen. Zo vergroot je de kans dat je er op tijd bij bent.
Ede
verkocht

Of maak vrijblijvend een zoekprofiel aan.

Vergelijkbare woningen

Hypotheken

Onafhankelijk hypotheekadvies

  • Ligt jouw droomhuis binnen handbereik?
  • Wil je jouw huidige hypotheek verhogen?
  • Is er hypotheekruimte voor verduurzaming?

Blijf op de hoogte

Ontvang als eerste updates over nieuw aanbod en mis geen enkele kans om jouw droomwoning te vinden.

Gratis waardebepaling of verkoopgesprek

Met de vrijblijvende waardecheck weet je snel waar je aan toe bent. Onze makelaars kijken naar de lokale markt en vergelijkbare woningen in jouw buurt om een goede schatting te geven.

Realiseer al jouw woondromen met Ditters

Wij zijn een team van gedreven vastgoedexperts met een passie voor het maken van verbindingen – tussen kopers en verkopers, huurders en verhuurders. Met een frisse kijk op de makelaardij combineren we expertise met creativiteit. Onze makelaars luisteren écht en nemen de tijd om jouw wensen te begrijpen.


Bij Ditters sta je er niet alleen voor. We denken met je mee, begeleiden je in elke stap en zijn altijd bereikbaar voor vragen. Neem gerust contact met ons op – we helpen je graag verder!