Welkom aan de Van Heutszlaan 114 in Ede!
Ben je op zoek naar een keurig afgewerkte, instapklare maisonnette op de begane grond met energielabel B? Dan is dit jouw kans! Deze woning ligt aan de gewilde en groene Van Heutszlaan, een geliefde locatie waar wonen in alle opzichten genieten is.
Wat maakt deze plek zo aantrekkelijk? De Van Heutszlaan staat bekend om de groene omgeving, de ruim opgezette percelen en appartementencomplexen die goed beheerd worden door de VvE. Bovendien ligt de woning uiterst centraal en dicht bij alle denkbare voorzieningen. Dit alles maakt deze locatie een van de favorieten in Ede!
Even behoefte aan een frisse neus? Op slechts enkele minuten wandelen sta je midden in de natuur, zoals het prachtige bosgebied 'De Sysselt' of de uitgestrekte Ginkelse Heide. Ook het gezellige centrum van Ede is vlakbij; je fietst er in slechts 3 minuten heen om te genieten van een ruim aanbod aan winkels en horecagelegenheden. Reis je met het openbaar vervoer? Zowel Intercitystation Ede-Wageningen als NS-station Ede Centrum zijn uitstekend bereikbaar. Het gloednieuwe intercitystation Ede-Wageningen ligt zelfs op maar 5 minuten fietsafstand!
Daarnaast vind je in de directe omgeving diverse scholen en kinderdagverblijf 'Eigenwijs', wat het een ideale locatie maakt voor gezinnen. Kortom, deze woning combineert comfort, een centrale ligging én een groene omgeving. Een kans die je niet wilt missen!
Nieuwsgierig? Kom snel een kijkje nemen en laat je verrassen door alles wat deze woning én de omgeving te bieden hebben!
De pluspunten van de woning op een rij:
+ Gelegen in een groene omgeving met veel gemeenschappelijke buitenruimte;
+ Keurig onderhouden begane grond appartement met ruime berging;
+ Nette keuken (recent gewrapt);
+ Keurige badkamer met douche en een tweede toilet;
+ 3 ruime slaapkamers;
+ Heerlijk balkon gelegen op het zuidoosten;
+ Centraal stofzuigsysteem aanwezig;
+ Energielabel B.
Begane grond
De entree van het appartement bevindt zich op de begane grond aan de zijkant van het complex. Je komt binnen in de hal met direct links de opstelplaats voor de wasmachine-aansluiting. Rechts vind je de meterkast, verderop het toilet, trapopgang naar de eerste verdieping en toegang tot de woonkamer.
De woonkamer en keuken zijn bij dit appartement samengevoegd en vormen een geheel. De keuken is gelegen aan de voorzijde en in mei 2025 gewrapt. De L vormige opstelling zorgt voor veel kastruimte en de bovenkant is voorzien van een prachtig werkblad. De keuken is uitgerust met de volgende apparatuur:
+ Een losse koelkast met vriezer;
+ Een losse oven met gaspit fornuis;
+ Een afzuigkap.
De ruime woonkamer biedt de gelegenheid voor een ruime zit. De gezellige gashaard is nog aanwezig en actief maar fungeert in deze als sfeermaker. De verwarming is geregeld middels een CV installatie.
Via de woonkamer is een praktische trapkast bereikbaar met daarin een luik dat, via een vaste trap, toegang geeft tot de ruime berging. Het balkon is bereikbaar vanuit de woonkamer en gelegen op het zonnige zuid-oosten. Door het vele groen rondom de appartementen zit je hier heerlijk privé, kijk je naar het groen en met wat geluk zie je eekhoorntjes voorbij komen.
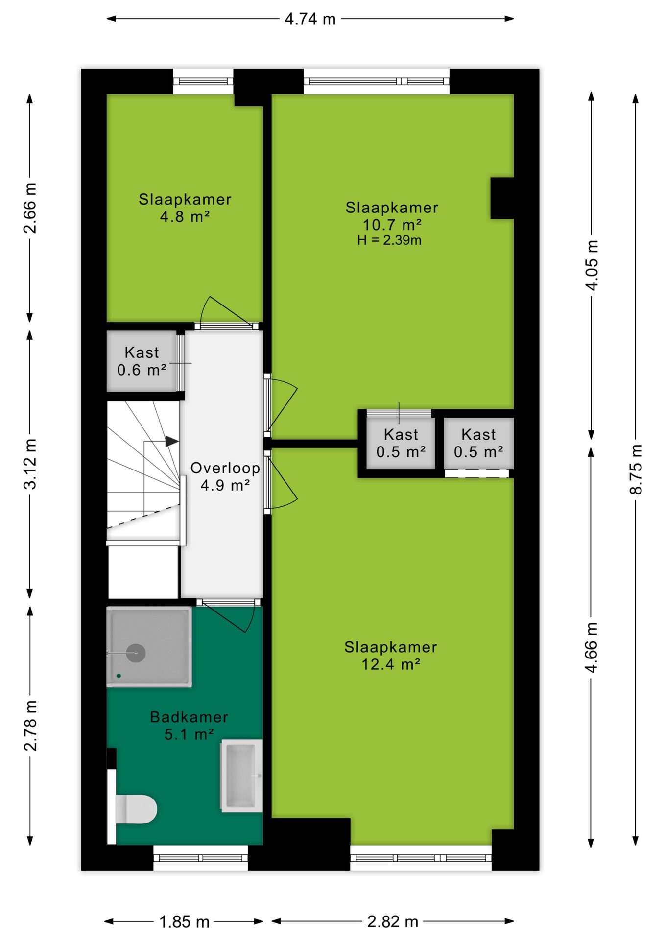
Eerste verdieping
Royale overloop met toegang tot drie slaapkamers, een praktische bergkast en de badkamer. De ouderslaapkamer en de tweede slaapkamer zijn voorzien van een inbouwkast. De derde slaapkamer kan ook als studieruimte fungeren.
De badkamer is voorzien van een douchehoek, een tweede toilet, een wastafel met spiegel en wastafelmeubel.
Het appartement is uitgerust met een nette laminaatvloer. Op de begane grond zijn de wanden en het plafond gestuct.
Afmetingen
Woonoppervlakte 83 m²
Inhoud woning 329 m³
Bijzonderheden
Verwarming CV ketel
Warmwater CV ketel
Bouwjaar 1955
Isolatie grotendeels dubbel glas
Balkonligging zuidoost
Servicekosten € 180,- per maand;
Aanvaarding In overleg
Koopovereenkomst:
Bij de verkoop zal er een standaard NVM koopovereenkomst worden gehanteerd. Bij woningen welke ouder zijn dan 20 jaar, worden de volgende clausules opgenomen in de koopovereenkomst:
- Asbestclausule;
- Ouderdomsclausule.
Koopt u de woning zonder voorbehoud van financiering? Dan zullen wij een termijn hanteren van 14 dagen na het opstellen van de koopovereenkomst voor het storten van de bankgarantie/waarborgsom.
Deze informatie is door ons met de nodige zorgvuldigheid samengesteld. Onzerzijds wordt echter geen enkele aansprakelijkheid aanvaard voor enige onvolledigheid, onjuistheid of anderszins, dan wel de gevolgen daarvan. Alle opgegeven maten en oppervlakten zijn indicatief.