Deze woning wordt verkocht door Woonstede. Deze woning wordt op dit moment uitsluitend verkocht aan huurders van een woningcorporatie, uit de gemeente Ede of Scherpenzeel. De verkoopperiode voor deze huurders duurt tot 6 oktober 2025 12:00 uur. Biedingen van huurders moeten voor dit tijdstip binnen zijn. Vanaf 7 oktober 2025 wordt de woning op de vrije markt aangeboden. Onder de woning tekst zijn de voorwaarden voor de verkoop van deze woning te vinden. Voor meer informatie: www.woonstede.nl/nieuws/huurders-krijgen-voorrang-bij-verkoop-huurwoningen/
Deze eindwoning met vier slaapkamers en een tuin op het zonnige zuidoosten biedt veel mogelijkheden voor het gehele gezin. De woning heeft een woonoppervlakte van circa 130m2.
In de directe omgeving bevinden zich alle gewenste dagelijkse voorzieningen zoals een supermarkt, winkelcentrum de Spindop, een basisschool, speeltuin de Zanderij en het treinstation Ede-Wageningen is op circa 10 minuten fietsen. Parkeren kan in de straat en voor de kinderen zijn er diverse speelgelegenheden in de directe omgeving.
Indeling:
Begane grond:
Entreehal met een toilet, trapkast en trap naar de eerste verdieping. Vanuit de hal is er toegang naar het woongedeelte met aan de voorzijde de open keuken, voorzien van keuken in een eenvoudige rechte opstelling. De woonkamer is gesitueerd aan de achterzijde en beschikt over een grote raampartij met deur die toegang biedt naar de achtertuin.
Eerste verdieping:
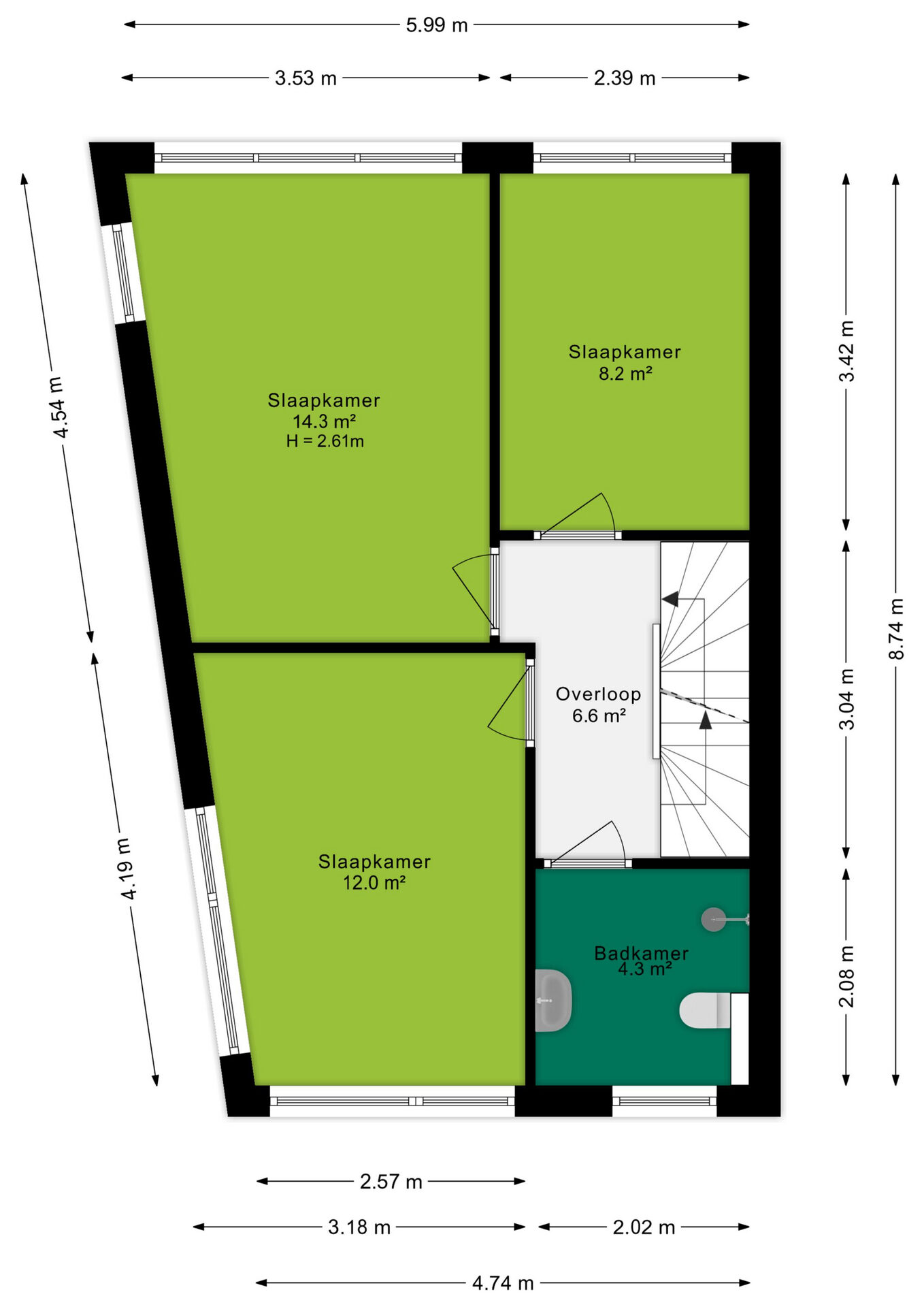
De overloop biedt toegang tot drie slaapkamers van circa 14m², 12m² en 8m² en de badkamer, evenals de vaste trap naar de zolder. De badkamer is volledig betegeld en voorzien van een inloopdouche, wastafelmeubel en toilet.
Tweede verdieping:
De open zolder ruimte biedt ruimte voor een vierde slaapkamer met bergruimte en hier bevindt zich de C.V.- opstelling.
Kenmerken:
- Dit is een woning die verkocht wordt door Woonstede. Deze woning wordt op dit moment uitsluitend verkocht aan huurders van een woningcorporatie, uit de gemeente Ede of Scherpenzeel.
- Er is een bouwtechnisch rapport aanwezig
Voor de verkoop van deze woning gelden de volgende voorwaarden:
1. U bent huurder van een sociale huurwoning (van een woningcorporatie) en woonachtig in de gemeente Ede of Scherpenzeel.
2. Na koop van de woning komt uw huurwoning vrij voor verhuur.
3. De woning wordt aangeboden tegen taxatiewaarde, bieden kan vanaf dit bedrag.
4. Als er voor eerdergenoemde datum geen biedingen zijn ontvangen van huurders, dan wordt de woning opnieuw te koop aangeboden voor alle overige geïnteresseerden.
Wanneer bent u huurder van een sociale huurwoning?
1. U staat ingeschreven in de gemeente Ede of Scherpenzeel.
2. U huurt een woning of appartement van een woningcorporatie die valt binnen de huurgrenzen van sociale huur. Wilt u zeker weten of dit voor uw woning geldt, neem dan contact op met uw verhuurder.
3. Uw naam staat op het huurcontract.
Wat is het voordeel?
• U heeft als huurder vier weken de tijd om te kijken en te kopen, voordat de woning op de vrije markt komt.
Overige informatie:
• In de koopovereenkomst wordt een zelfbewoningsplicht artikel opgenomen.
• De eigendomsoverdracht zal plaatsvinden bij één van de projectnotarissen: Van Putten Van Apeldoorn Notarissen, Posthuma Schutte Notariaat of notaris.com.
• Aanvaarding: uiterlijk 10 weken na mondelinge overeenstemming.