Aanbod

Verken ons aanbod. Van huur tot koop. En van nieuwbouw tot bouwkavel. Samen vinden we de plek waar jij je helemaal thuis voelt.

Diensten

Onze experts begeleiden je van A tot Z. Of je nu je huis wilt verkopen, op zoek bent naar je droomhuis of advies nodig hebt over hypotheken of verzekeringen. Met jarenlange ervaring en persoonlijke service zorgen we ervoor dat jij met een gerust hart de juiste keuzes maakt.

Over Ditters

Wij zijn Ditters. Verhalenvertellers. De schakel tussen droom en woning. We luisteren naar jouw wensen en maken op basis daarvan een plan.

Omschrijving

Deze 2-onder-1-kapwoning biedt een unieke combinatie van modern comfort, ruimte en een geweldige ligging. De woning is zorgvuldig en smaakvol ingericht, waardoor u zich bij binnenkomst meteen thuis zult voelen.

Met een ruime tuin op het zonnige zuidwesten is dit de ideale plek om te genieten van zomerse avonden. De tuin biedt veel privacy en genoeg ruimte voor zowel families als liefhebbers van tuinieren. Op eigen terrein is er een parkeerplaats beschikbaar, en daarnaast is er altijd ruim voldoende openbare parkeergelegenheid. Daarnaast is er een ruime berging van 18 m² die niet alleen veel opbergruimte biedt, maar ook eenvoudig kan worden teruggebouwd tot een garage.

Gelegen aan de rustige rand van Ede profiteert u van de rust en ruimte van de omgeving, terwijl u tegelijkertijd nabij alle voorzieningen bent. Bovendien ligt de schitterende Edese Heide op steenworp afstand, ideaal voor wandelingen, fietsen of gewoon genieten van de natuur.

Enkele pluspunten van de woning:
+ Gelegen in één van de meest geliefde wijken van Ede;
+ Moderne en luxe keuken, vernieuwd in 2019;
+ Complete en vernieuwde badkamer (2020);
+ Volledig geïsoleerd voor optimaal wooncomfort;
+ Beschikt over 4 ruime slaapkamers;
+ Zonnige tuin op het zuidwesten;
+ Ruime berging van 18 m², eenvoudig om te bouwen tot garage;
+ Parkeergelegenheid op eigen terrein en voldoende openbare parkeermogelijkheden;
+ In juni 2025 is de buitenkant van de woning volledig voorzien van een schilderbeurt.

Indeling
Begane grond
Bij binnenkomst via de entree tref je de toiletruimte, meterkast en trapopgang. Vanuit de hal stap je de ruime en lichte woonkamer binnen, die is voorzien van een sfeervolle erker. In de woonkamer is voldoende plaats voor een grote zitbank. Het eetgedeelte biedt ruimte voor een royale eettafel en grenst aan de moderne L-vormige keuken. De keuken is uitgerust met diverse inbouwapparatuur, waaronder een inductiekookplaat, afzuigkap, magnetron, oven, combi-oven, koelkast, vriezer en vaatwasser. Dankzij de grote ramen komt er ook in de keuken veel natuurlijk licht binnen.

Eerste verdieping
Met de vaste trap bereik je de eerste verdieping. Vanaf de overloop heb je toegang tot alle vertrekken. Op deze verdieping bevinden zich drie slaapkamers met oppervlaktes van circa 17 m², 13 m² en 11 m². Alle slaapkamers hebben een heerlijke lichtinval en een praktische indeling. De badkamer is van alle gemakken voorzien, waaronder een ligbad, aparte douche, stoomdouche, wastafelmeubel en een tweede toilet.

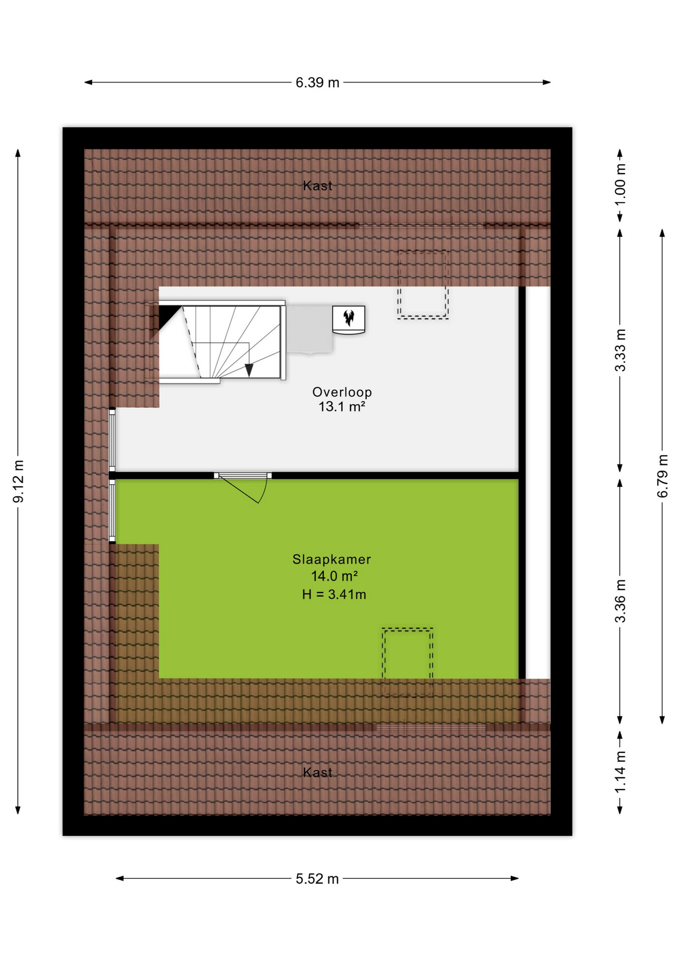
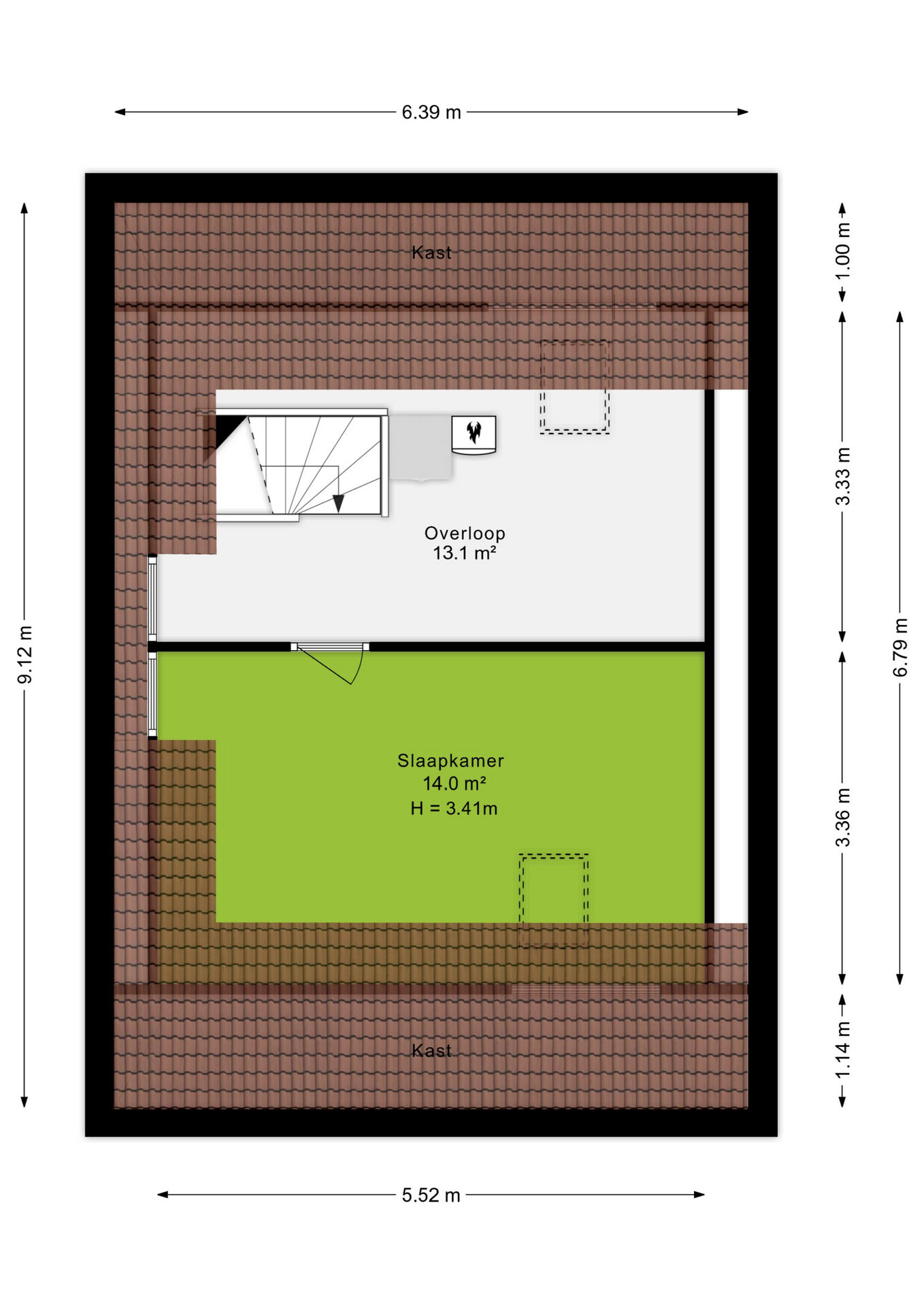
Tweede verdieping
Via de trap kom je op de tweede verdieping. Hier vind je een overloop met plaats voor de wasmachine en veel extra opbergruimte. Daarnaast bevindt zich hier een vierde slaapkamer van 14 m², voorzien van een dakkapel en een dakraam die zorgen voor veel lichtinval.

Tuin
Via de schuifpui kom je in de verzorgde tuin, die op het zuidwesten is gelegen. De tuin is voorzien van een zonnescherm en bereikbaar via een achterom. Daarnaast beschikt de tuin over een berging, en op eigen terrein is parkeergelegenheid aanwezig.
De ruime berging van 18 m² biedt niet alleen volop opbergruimte, maar kan ook eenvoudig weer omgebouwd worden tot een garage. Ooit deed deze ruimte namelijk dienst als garage, waardoor je de mogelijkheid hebt om dit naar wens terug te brengen.

Bijzonderheden
Verwarming: Cv-installatie Remeha calenta (2017);
Warmwater: Cv-installatie Remeha calenta (2017);
Isolatie: volledig geïsoleerd;
Bouwjaar: 1999;
Tuinligging: zuidwesten;
Aanvaarding: in overleg.

Koopovereenkomst:
Bij de verkoop zal er een standaard NVM koopovereenkomst worden gehanteerd. Bij woningen welke ouder zijn dan 20 jaar, worden de volgende clausules opgenomen in de koopovereenkomst:
- Ouderdomsclausule

Koopt u de woning zonder voorbehoud van financiering? Dan zullen wij een termijn hanteren van 14 dagen na het opstellen van de koopovereenkomst voor het storten van de bankgarantie/waarborgsom.

Deze informatie is door ons met de nodige zorgvuldigheid samengesteld. Onzerzijds wordt echter geen enkele aansprakelijkheid aanvaard voor enige onvolledigheid, onjuistheid of anderszins, dan wel de gevolgen daarvan. Alle opgegeven maten en oppervlakten zijn indicatief.
+ toon meer
deze woning is Verkocht

Van Okeghemlaan 13 Ede

Van Okeghemlaan 13

6711 EC, Ede
Ditters open huis: 5 april 2025 10:00 - 12:00 uur
Landelijke Open Huizen Route NVM: 5 april 2025 11:00 uur - 15:00 uur
Vanaf€ 825.000 k.k.

Schakel een aankoopmakelaar in.

Snel handelen helpt je jouw droomhuis te bemachtigen. Zo vergroot je de kans dat je er op tijd bij bent.
Ede
verkocht

Of maak vrijblijvend een zoekprofiel aan.

Vergelijkbare woningen

Hypotheken

Onafhankelijk hypotheekadvies

  • Ligt jouw droomhuis binnen handbereik?
  • Wil je jouw huidige hypotheek verhogen?
  • Is er hypotheekruimte voor verduurzaming?

Blijf op de hoogte

Ontvang als eerste updates over nieuw aanbod en mis geen enkele kans om jouw droomwoning te vinden.

Gratis waardebepaling of verkoopgesprek

Met de vrijblijvende waardecheck weet je snel waar je aan toe bent. Onze makelaars kijken naar de lokale markt en vergelijkbare woningen in jouw buurt om een goede schatting te geven.

Realiseer al jouw woondromen met Ditters

Wij zijn een team van gedreven vastgoedexperts met een passie voor het maken van verbindingen – tussen kopers en verkopers, huurders en verhuurders. Met een frisse kijk op de makelaardij combineren we expertise met creativiteit. Onze makelaars luisteren écht en nemen de tijd om jouw wensen te begrijpen.


Bij Ditters sta je er niet alleen voor. We denken met je mee, begeleiden je in elke stap en zijn altijd bereikbaar voor vragen. Neem gerust contact met ons op – we helpen je graag verder!