Omschrijving

Te Koop: Van Heutszlaan 138-1 te Ede - een ruime maisonnette met zonnige balkon, groen uitzicht en centrale ligging!

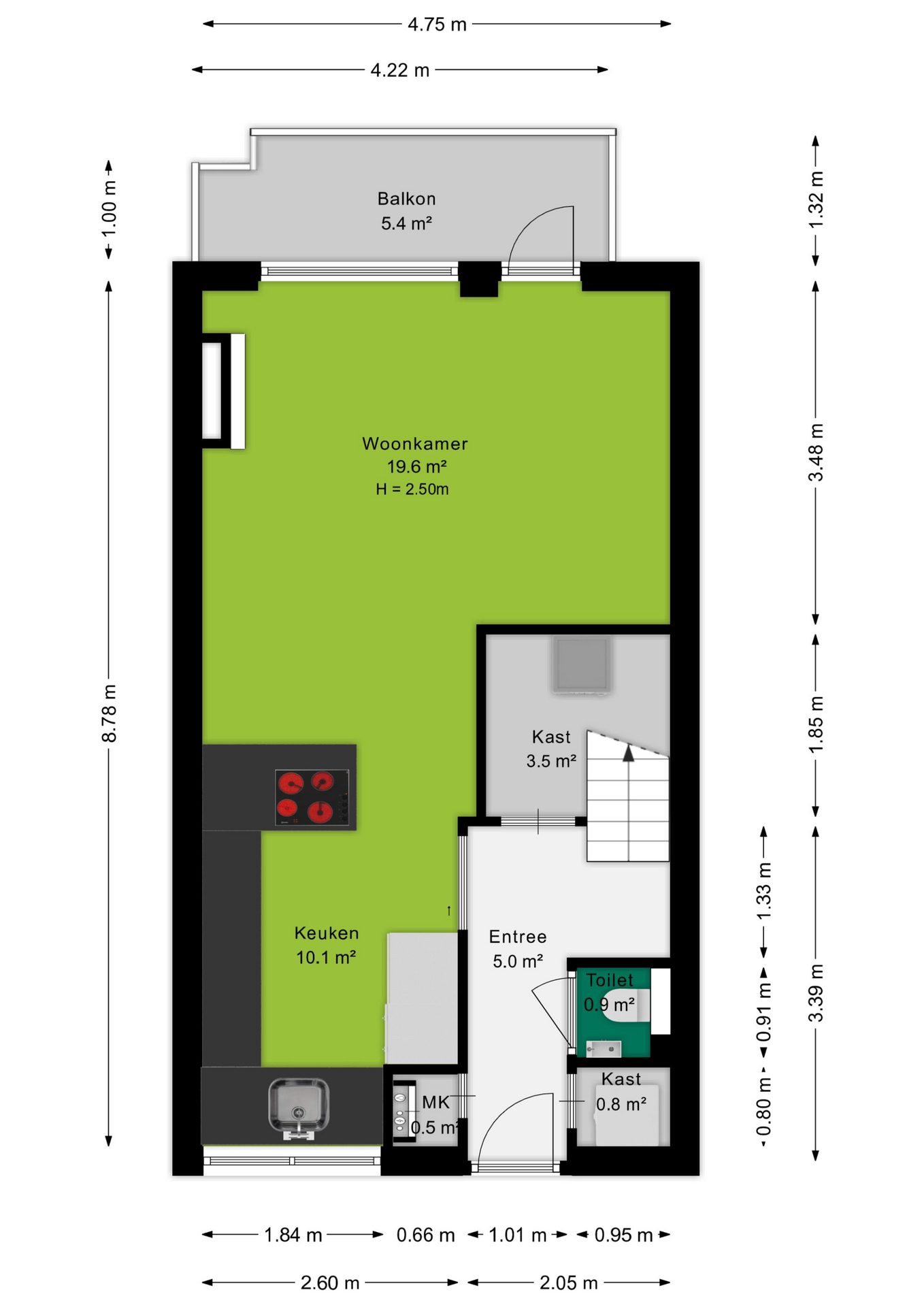
Op een fijne en groene locatie in Ede ligt deze goed ingedeelde maisonnette (bouwjaar 1955) met een woonoppervlakte van circa 83 m², verdeeld over twee woonlagen. De woning kijkt uit op een mooie groenstrook met volwassen bomen, wat zorgt voor een rustige en prettige woonbeleving. Dankzij de ligging nabij natuur, voorzieningen en het centrum is dit een ideale plek voor wie comfortabel wil wonen met alles binnen handbereik.

Fijne ligging in Ede:
Je woont hier aan de geliefde Van Heutszlaan, in een groene en kindvriendelijke wijk. Op loopafstand liggen de bossen van De Sysselt en op korte fietsafstand bereik je de Ginkelse Heide. Ook het centrum van Ede, winkelvoorzieningen, scholen, het intercitystation Ede-Wageningen maar ook de A30, A50 en A12 zijn snel en eenvoudig bereikbaar.

Wonen met licht, ruimte en comfort:
De woonetage beschikt over een royale woonkamer met een prettige lichtinval en uitzicht op het groen.
Centraal tussen de woonkamer en keuken bevindt zich het eetgedeelte. Hier is meer dan voldoende ruimte voor een grote eettafel met stoelen. Een fijne plek om met familie en/of vrienden te genieten van een hapje, drankje en spelletje! Aansluitend bevindt zich de moderne en riante keuken (vernieuwd in 2013), die van alle gemakken is voorzien en voldoende werk- en kastruimte biedt. Vanuit de keuken is er een loopdeur naar het zonnige balkon, gelegen op het zuidoosten – een heerlijke plek om de dag te beginnen met een kop koffie.

Praktische slaapverdieping:
Vanuit de woonkamer kom je door de schuifdeur weer terug in de hal, de schuifdeur zorgt ook voor warmte behoudt. Door middel van de vaste trap kom je op de bovenliggende verdieping. Hier vindt je de drie ruime slaapkamers van goed formaat namelijk circa 12m², 11m² en 5m². Daarnaast vind je hier de badkamer met douche, wastafel en tweede toilet. Daarnaast is er extra bergruimte aanwezig op de overloop en ook de aansluiting waar de CV ketel zich bevindt.

Duurzaamheid en onderhoud:
De woning beschikt over energielabel C. De spouwmuren zijn nageïsoleerd en de dakbedekking is in 2016 vernieuwd, wat bijdraagt aan het wooncomfort en een lagere energievraag.

Bijzonderheden:
- Maisonnette appartement;
- Ca. 83 m² woonoppervlakte;
- Balkon op het zuidoosten;
- Moderne keuken (2013);
- Energielabel C;
- Spouwmuurisolatie in 2024 en dakbedekking vernieuwd in 2016;
- Berging in de onderbouw;
- Complex is bezig met verduurzamingsproject;
- Servicekosten € 195,- per maand

Kortom: een ruime en praktisch ingedeelde woning op een groene, centrale locatie in Ede met volop mogelijkheden om er jouw thuis van te maken.

Koopovereenkomst:
Bij de verkoop zal een standaard NVM-koopovereenkomst worden gehanteerd.
Bij woningen ouder dan 20 jaar worden de volgende clausules opgenomen:
- Asbestclausule
- Ouderdomsclausule

Bij aankoop zonder financieringsvoorbehoud geldt een termijn van 6 weken na het opstellen van de koopovereenkomst voor het storten van de waarborgsom of bankgarantie.

Deze informatie is met zorg samengesteld. Er wordt geen aansprakelijkheid aanvaard voor eventuele onvolledigheden of onjuistheden. Alle opgegeven maten en oppervlakten zijn indicatief
+ toon meer

Video

6711 KW, Ede

van Heutszlaan 138 1

Zaterdag 2 augustus 10:00 - 12:00 uur

€ 295.000 k.k.
ditters makelaars ede
Kopen

Wat is jouw woning écht waard bij Ditters?

Waardecheck

Wij combineren lokale marktkennis met actuele data en ons grote zoekersbestand in de regio.

Je krijgt niet alleen een waarde, maar inzicht in hoe je de maximale verkoopopbrengst kunt realiseren.

Onze aanpak is strategisch, transparant en volledig afgestemd op jouw situatie.

Goed om te weten: deze waardecheck is vrijblijvend en geheel kosteloos
Onafhankelijk

Hypotheekadvies

We helpen je met het vergelijken van aanbiedingen van verschillende banken, zodat je de beste deal krijgt. 
Wij staan klaar om je te begeleiden, zodat je met vertrouwen de juiste hypotheek kunt kiezen.
Goed om te weten: dit adviesgesprek is vrijblijvend en geheel kosteloos

Wij helpen jou bij de keuze van de juiste polis.

Bij een onbezorgde toekomst horen ook goede verzekeringen die uitkeren bij bijvoorbeeld ziekte, schade of diefstal. Onze assurantieadviseurs helpen je bij de keuze van de juiste polis. In heldere taal.

Diverse verzekeringen

  • Opstalverzekering
  • Aansprakelijkheidsverzekering
  • Zorgverzekering
  • Reisverzekering

Buurtinformatie

Ede, Burgemeestersbuurt
Inwoners
Woningen
1.188
Inwoners
2.130
36
60
Koop / Huur
36% Huur60% Koop
Huishoudens
Eenpersoon
28.0%
Geen kinderen
35.7%
Met kinderen
35.2%
Leeftijdsopbouw in jaren
Buurt Landelijk
17.110.320.428.424.216.312.324.728.218.5

Locatie

Plattegronden

Klik op de plattegrond voor een grote weergave

Belangrijke documenten

brochure

vragenlijst

lijstvanzaken

vragenlijstc

Misschien interessant voor jou

Blijf op de hoogte

Ontvang als eerste updates over nieuw aanbod en mis geen enkele kans om jouw droomwoning te vinden.

Gratis waardebepaling of verkoopgesprek

Met de vrijblijvende waardecheck weet je snel waar je aan toe bent. Onze makelaars kijken naar de lokale markt en vergelijkbare woningen in jouw buurt om een goede schatting te geven.