Omschrijving

LET OP: Deze woning wordt verkocht door Woonstede. Deze woning wordt op dit moment uitsluitend verkocht aan huurders van een woningcorporatie, uit de gemeente Ede of Scherpenzeel. De verkoopperiode voor deze huurders duurt tot 16 januari 2025 12:00 uur. Biedingen van huurders moeten voor dit tijdstip binnen zijn. Vanaf 17 januari 2025 wordt de woning op de vrije markt aangeboden. Onder de woning tekst zijn de voorwaarden voor de verkoop van deze woning te vinden. Voor meer informatie: www.woonstede.nl/nieuws/huurders-krijgen-voorrang-bij-verkoop-huurwoningen/

Gelegen in de moderne wijk Kernhem vind je deze tussenwoning met energielabel A+. De woning beschikt over vier slaapkamers, een eigen parkeerplaats en is gelegen nabij het winkelcentrum Parkweide, waardoor het de ideale plek is voor jouw nieuwe thuis. Met een bouwjaar van 2001, is de woning volledig geïsoleerd.

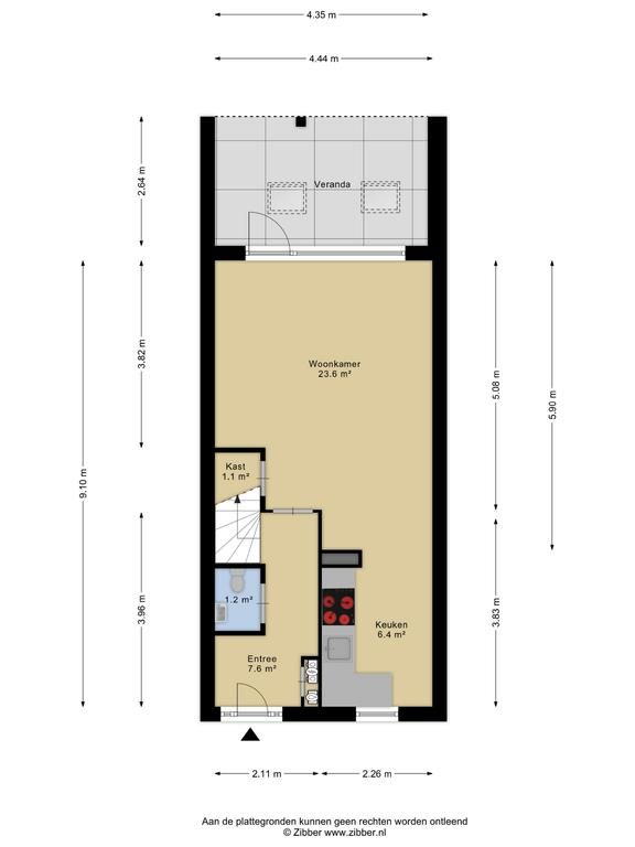
Op de begane grond bevindt zich een woonkamer met een groot raam en een achterdeur, die toegang geeft tot de op het zuidoosten gelegen achtertuin. Aan de voorkant van het huis vind je de open keuken, uitgerust met een L-vormig keukenblok. Op de bovenverdiepingen zijn er vier slaapkamers en een volledig betegelde badkamer. De achtertuin beschikt over een veranda, berging en een achterom, die leidt naar het binnenterrein waar je je eigen parkeerplaats hebt.

Voor gezinnen met kinderen is de wijk Kernhem een ideale woonplek. De wijk beschikt over meerdere basisscholen, buitenschoolse opvang (BSO) en kinderdagverblijven. Daarnaast zijn er iets verder verwijderd van de woning ook diverse middelbare scholen te vinden. Dit zorgt ervoor dat je kinderen veilig en snel naar school kunnen. Er diverse speeltuinen en sportvelden waar kinderen naar hartenlust kunnen spelen en sporten. Voor de dagelijkse boodschappen kun je terecht bij het nabijgelegen winkelcentrum Parkweide, hier vind je onder andere 2 supermarkten en diverse andere winkels. Het centrum van Ede, met een nog uitgebreider aanbod aan winkels, boetiekjes en eetgelegenheden, is eveneens gemakkelijk te bereiken.

Recreëren kan ook naar hartenlust in de omgeving van de woning. Het nabijgelegen Edese Bos, dat is gelegen op circa 10 minuten fietsafstand, biedt prachtige wandel- en fietspaden, waar je kunt genieten van de rust en de natuur. Het bos is een perfecte plek voor een zondagse wandeling, een picknick met het gezin of een sportieve hardloopsessie. Daarnaast is aan de achterzijde van de wijk een mooie groenstrook waar je heerlijk een kort rondje kunt wandelen.

De wijk ligt nabij belangrijke ontsluitingswegen zoals de A12 en A30, waardoor je snel en gemakkelijk naar steden als Utrecht, Arnhem en Amsterdam kunt reizen. Daarnaast is er een goed netwerk van openbaar vervoer met busdiensten en een treinstation op korte afstand.

Indeling:
Begane grond:
Entreehal met een toilet en trapopgang naar de eerste verdieping. Vanuit de hal heb je toegang tot de woonkamer met aan de voorzijde de open keuken. De open keuken is voorzien van L vormig keukenblok met kookplaat en afzuigkap. De woonkamer is gelegen aan de achterzijde van de woning en beschikt over een groot raam. De praktische trapkast biedt bergruimte voor voorraad. Via de woonkamer is er toegang naar de tuin middels de deur aan de achterzijde van de woning. De begane grond is voorzien van een laminaatvloer.

Eerste verdieping:
De overloop biedt toegang tot drie slaapkamers en de badkamer, evenals de vaste trap naar de tweede verdieping. Alle slaapkamers zijn recht opgetrokken en uitgerust met een laminaatvloer. De volledig betegelde badkamer is uitgerust met een ligbad met douche, wastafel met meubel, spiegelkast, toilet en designradiator.

Tweede verdieping:
Op deze verdieping is er via de overloop toegang naar de vierde slaapkamer. De slaapkamer aan de achterzijde is over de volle breedte van de woning gelegen. Aan de voorzijde van de woning zijn een berging en extra bergkamer gelegen. Op de overloop bevindt zich de aansluiting voor de wasmachine. Ook deze verdieping is voorzien van een laminaatvloer.

Bergzolder:
Via een losse trap is de bergzolder bereikbaar voor nog meer opbergruimte. Ideaal voor de seizoensgebonden spullen.

Informatie:
- Dit is een woning die verkocht wordt door Woonstede. Deze woning wordt op dit moment uitsluitend verkocht aan huurders van een woningcorporatie, uit de gemeente Ede of Scherpenzeel
- De woning wordt verkocht onder 'vrije koop' voorwaarden, hier valt o.a. een zelfbewoningsplicht onder.
- De eigendomsoverdracht zal plaatsvinden bij één van de projectnotarissen: Van Putten Van Apeldoorn Notarissen, Posthuma Schutte Notariaat of notaris.com.
- Aanvaarding: uiterlijk 10 weken na mondelinge overeenstemming.

Voor de verkoop van deze woning gelden de volgende voorwaarden:
1. U bent huurder van een sociale huurwoning (van een woningcorporatie) en woonachtig in de gemeente Ede of Scherpenzeel.
2. Na koop van de woning komt uw huurwoning vrij voor verhuur.
3. De woning wordt aangeboden tegen taxatiewaarde, bieden kan vanaf dit bedrag.
4. Als er voor eerdergenoemde datum geen biedingen zijn ontvangen van huurders, dan wordt de woning opnieuw te koop aangeboden voor alle overige geïnteresseerden.

Wanneer bent u huurder van een sociale huurwoning?
1. U staat ingeschreven in de gemeente Ede of Scherpenzeel.
2. U huurt een woning of appartement van een woningcorporatie die valt binnen de huurgrenzen van sociale huur. Wilt u zeker weten of dit voor uw woning geldt, neem dan contact op met uw verhuurder.
3. Uw naam staat op het huurcontract.

Wat is het voordeel?
• U heeft als huurder vier weken de tijd om te kijken en te kopen, voordat de woning op de vrije markt komt.
+ toon meer
deze woning is Verkocht

Ambtsbos 19 Ede

Ambtsbos 19

6718 HM, Ede
Ditters open huis: 5 april 2025 10:00 - 12:00 uur
Landelijke Open Huizen Route NVM: 5 april 2025 11:00 uur - 15:00 uur
Vanaf€ 395.000 k.k.

Schakel een aankoopmakelaar in.

Snel handelen helpt je jouw droomhuis te bemachtigen. Zo vergroot je de kans dat je er op tijd bij bent.
Ede
verkocht

Of maak vrijblijvend een zoekprofiel aan.

Vergelijkbare woningen

Hypotheken

Onafhankelijk hypotheekadvies

  • Ligt jouw droomhuis binnen handbereik?
  • Wil je jouw huidige hypotheek verhogen?
  • Is er hypotheekruimte voor verduurzaming?

Blijf op de hoogte

Ontvang als eerste updates over nieuw aanbod en mis geen enkele kans om jouw droomwoning te vinden.

Gratis waardebepaling of verkoopgesprek

Met de vrijblijvende waardecheck weet je snel waar je aan toe bent. Onze makelaars kijken naar de lokale markt en vergelijkbare woningen in jouw buurt om een goede schatting te geven.

Realiseer al jouw woondromen met Ditters

Wij zijn een team van gedreven vastgoedexperts met een passie voor het maken van verbindingen – tussen kopers en verkopers, huurders en verhuurders. Met een frisse kijk op de makelaardij combineren we expertise met creativiteit. Onze makelaars luisteren écht en nemen de tijd om jouw wensen te begrijpen.


Bij Ditters sta je er niet alleen voor. We denken met je mee, begeleiden je in elke stap en zijn altijd bereikbaar voor vragen. Neem gerust contact met ons op – we helpen je graag verder!