Mooie gezinswoning met zonnige tuin en moderne afwerking
Deze lichte, up to date middenwoning is ideaal voor wie op zoek is naar comfort en een uitstekende ligging. Gelegen aan een rustig, vrijwel autovrij straatje, om de hoek van winkelcentrum Bellestein, biedt deze woning alles wat je nodig hebt. Met een diepe, zonnige tuin op het zuiden, voorzien van een prachtige Douglashouten veranda, en een moderne afwerking binnen, is het hier heerlijk thuiskomen.
Ligging:
Deze woning ligt op een ideale locatie, letterlijk om de hoek van het winkelcentrum Bellestein en nabij het prachtige Proosdijpark. Scholen, sportverenigingen en andere voorzieningen bevinden zich op loop- en fietsafstand. Het treinstation en het centrum van Ede zijn snel bereikbaar, zowel met de fiets als het openbaar vervoer.
Kortom: een instapklare gezinswoning op een top locatie, met een luxe afwerking en een heerlijke tuin. Maak snel een afspraak voor een bezichtiging!
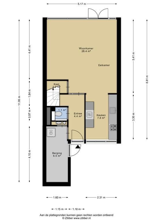
Globale indeling:
Begane grond
Bij aankomst zie je direct de praktische parkeerplaats voor het huis en de toegang tot de berging, die zowel van buitenaf als vanuit de hal bereikbaar is. Deze berging, voorzien van een handige bergvliering, is bekleed met duurzaam Douglashout en biedt volop ruimte voor fietsen en opslag.
Achter de voordeur wacht een nette hal met een moderne sfeervolle toiletruimte (zwevend toilet en fonteintje), de trapopgang naar de 1e verdieping en toegang tot de woonkamer met keuken.
De woonkamer is een fijne, tuingerichte ruimte met grote ramen (zuid) en openslaande deuren naar de zonnige achtertuin. De vloer op de begane grond is afgewerkt met een hoogwaardige keramisch parketvloer – een luxe plavuizen vloer met een stijlvolle uitstraling – en voorzien van comfortabele vloerverwarming.
Aan de voorzijde van de woning bevindt zich een moderne, zwarte inbouwkeuken (2022) met alle gemakken: een keramische kookplaat, afzuigkap, koelkast, vriezer, vaatwasser, oven en magnetron. Deze keuken combineert functionaliteit met een strakke, eigentijdse uitstraling.
Eerste verdieping:
Via de vaste trap kom je bij de eerste verdieping. Op de eerste verdieping zijn drie ruime slaapkamers, allemaal voorzien van een mooie laminaatvloer. De kamers zijn licht en praktisch ingedeeld, waarbij de achterzijde is vergroot door een dakkapel.
De recent vernieuwde badkamer (2022) is een ware blikvanger: luxe afgewerkt en van alle gemakken voorzien. Denk aan een inloopdouche met regendouche en handdouchecombinatie, een wastafel met modern meubel, een zwevend toilet en een design handdoekenradiator.
Zolder:
Via een vlizotrap bereik je de bergzolder. Hier vind je de cv-installatie (HR-ketel Intergas HRE, 2016) en volop bergruimte op de stevige betonnen vloer.
Buitenruimte:
De diepe achtertuin op het zuiden biedt volop ruimte om te genieten. Vooral door de ligging kun je heerlijk genieten van het buitenleven!
Achterin de tuin staat een robuuste Douglashouten veranda, een heerlijke plek om te ontspannen in de zomer.
De tuin is deels bestraat, voorzien van nette erfafscheidingen en mooie plantenbakken.
Bijzonderheden:
• Luxe keramisch parketvloer met vloerverwarming op de begane grond.
• Moderne zwarte inbouwkeuken met diverse inbouw apparatuur (2022).
• Recent vernieuwde badkamer met luxe voorzieningen (2022).
• Dakkapel aan de achterzijde (geplaatst in 2018).
• Douglashouten veranda in de achtertuin.
• Kunststof kozijnen op de eerste verdieping (achterzijde) met isolatieglas.
• Energiebesparende maatregelen, waaronder merendeels isolatieglas.
Koopovereenkomst:
Bij de verkoop zal er een standaard NVM koopovereenkomst worden gehanteerd. Bij woningen welke ouder zijn dan 20 jaar, worden de volgende clausules opgenomen in de koopovereenkomst:
- Asbestclausule;
- Ouderdomsclausule.
Koop je de woning zonder voorbehoud van financiering? Dan zullen wij een termijn hanteren van 14 dagen na het opstellen van de koopovereenkomst voor het storten van de bankgarantie/waarborgsom.
Deze informatie is door ons met de nodige zorgvuldigheid samengesteld. Onzerzijds wordt echter geen enkele aansprakelijkheid aanvaard voor enige onvolledigheid, onjuistheid of anderszins, dan wel de gevolgen daarvan. Alle opgegeven maten en oppervlakten zijn indicatief.