Omschrijving

Ruime middenwoning in geliefde wijk Maandereng

In de rustige en groene wijk Maandereng bieden wij deze ruime middenwoning aan, gelegen aan de De Moucheronstraat 5. Een fijne gezinswoning met eigen parkeergelegenheid op de oprit, een diepe achtertuin met veel privacy en volop mogelijkheden om de woning naar eigen smaak te moderniseren. Dit is dé kans voor kopers die hun eigen stempel willen drukken op een woning, tegen een aantrekkelijke prijs!

Een fijne basis met veel potentie, een geweldige locatie met alle voorzieningen binnen handbereik:
- Winkelen & voorzieningen: Winkelcentra De Spindop en Stadspoort liggen op korte afstand, evenals diverse (basis)scholen, sportvoorzieningen en gezondheidscentrum Zuiderzorg.
- Natuur & recreatie: Binnen enkele minuten wandel je in het Horabos of het Hoekelumse Bos, perfect voor ontspanning in de natuur.
- Uitstekende bereikbaarheid: Met de auto zit je in no-time op de A12 en A30. Treinreizigers bereiken station Ede-Wageningen in 10 minuten, met snelle verbindingen naar Utrecht (25 min.), Amsterdam (50 min.) en Arnhem (11 min.).
- Kindvriendelijke omgeving: Aan de achterzijde grenst de woning aan een rustige speelvoorziening, ideaal voor jonge kinderen.

Ben jij op zoek naar een betaalbare woning met ruimte, potentie en een fijne ligging? Maak dan snel een afspraak voor een bezichtiging en ontdek de mogelijkheden van deze woning!

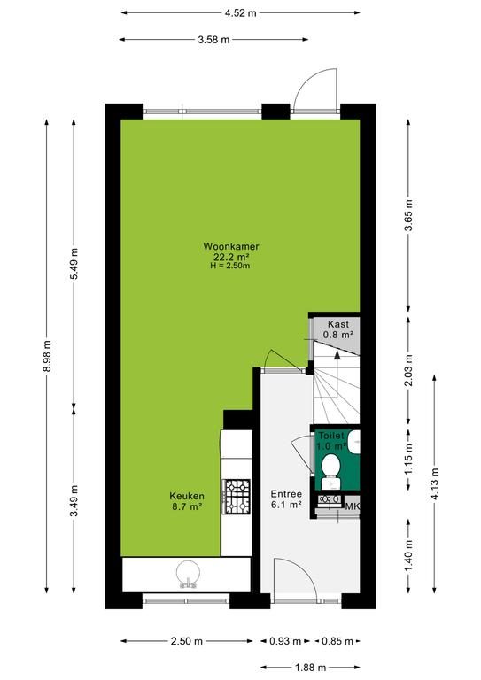
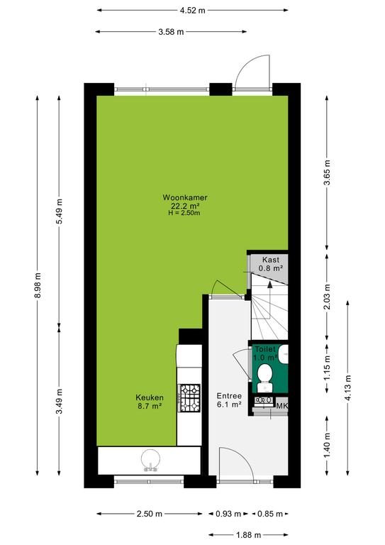
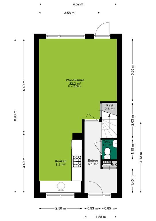
Indeling:
Begane grond:
Via de entree kom je bij de ruime hal met een toiletruimte, de trapopgang naar de eerste verdieping en de deur die toegang geeft tot de woonkamer. Bij binnenkomst tref je een praktische indeling met een lichte, tuingerichte woonkamer. Centraal tussen de woonkamer en keuken bevindt zich het eetgedeelte. Hier is meer dan voldoende ruimte voor een grote eettafel met stoelen. Een fijne plek om met familie en/of vrienden te genieten van een hapje, drankje en spelletje! De L-vormige keuken is aan de voorzijde van de woning gelegen en beschikt over een oven, afzuigkap, gasfornuis en een losse koelkast. Vanuit de keuken kijk je de gezellige straat in.

1e verdieping:
Via de trap kom je bij de eerste verdieping, hier bevinden zich de drie ruime slaapkamers en een badkamer. De slaapkamers hebben afmetingen van 15m², 8.5m² en 4.5m². De badkamer is 4m² en beschikt over een ruime douchehoek, wastafel en wasmachineaansluiting.

2e verdieping:
Via de vaste trap kom je bij de tweede verdieping. Hier is een royale open zolderruimte met mogelijkheden voor extra slaapkamers of een werkplek. Hier is ook de cv-installatie gesitueerd.

Tuin:
De achtertuin is gelegen op het noorden en grotendeels betegeld. De tuin is voorzien van groene borders en door de diepte is er altijd een plekje in de zon of schaduw te vinden. Rust en privacy staan hier centraal!

Kenmerken:
Verwarming: C.V. ketel
Warmwater: C.V. ketel
Bouwjaar: 1986
Tuinligging: Noord
Aanvaarding: In overleg

Extra's:
+ Fijne eengezinswoning;
+ Tuin gerichte woonkamer met heerlijk veel lichtinval;
+ Voorzien van 3 slaapkamers (4e is te realiseren op de tweede verdieping);
+ Heerlijke achtertuin gelegen op het noorden;
+ Gelegen in de geliefde wijk Maandereng nabij diverse voorzieningen.

Koopovereenkomst:
Bij de verkoop zal er een standaard NVM koopovereenkomst worden gehanteerd. Bij woningen welke ouder zijn dan 20 jaar, worden de volgende clausules opgenomen in de koopovereenkomst:
- Asbestclausule;
- Ouderdomsclausule.

Koop je de woning zonder voorbehoud van financiering? Dan zullen wij een termijn hanteren van 14 dagen na het opstellen van de koopovereenkomst voor het storten van de bankgarantie/waarborgsom.

Deze informatie is door ons met de nodige zorgvuldigheid samengesteld. Onzerzijds wordt echter geen enkele aansprakelijkheid aanvaard voor enige onvolledigheid, onjuistheid of anderszins, dan wel de gevolgen daarvan. Alle opgegeven maten en oppervlakten zijn indicatief.
+ toon meer
deze woning is Verkocht

De Moucheronstraat 5 Ede

De Moucheronstraat 5

6717 TS, Ede
Ditters open huis: 5 april 2025 10:00 - 12:00 uur
Landelijke Open Huizen Route NVM: 5 april 2025 11:00 uur - 15:00 uur
Vanaf€ 325.000 k.k.

Schakel een aankoopmakelaar in.

Snel handelen helpt je jouw droomhuis te bemachtigen. Zo vergroot je de kans dat je er op tijd bij bent.
Ede
verkocht

Of maak vrijblijvend een zoekprofiel aan.

Vergelijkbare woningen

Hypotheken

Onafhankelijk hypotheekadvies

  • Ligt jouw droomhuis binnen handbereik?
  • Wil je jouw huidige hypotheek verhogen?
  • Is er hypotheekruimte voor verduurzaming?

Blijf op de hoogte

Ontvang als eerste updates over nieuw aanbod en mis geen enkele kans om jouw droomwoning te vinden.

Gratis waardebepaling of verkoopgesprek

Met de vrijblijvende waardecheck weet je snel waar je aan toe bent. Onze makelaars kijken naar de lokale markt en vergelijkbare woningen in jouw buurt om een goede schatting te geven.

Realiseer al jouw woondromen met Ditters

Wij zijn een team van gedreven vastgoedexperts met een passie voor het maken van verbindingen – tussen kopers en verkopers, huurders en verhuurders. Met een frisse kijk op de makelaardij combineren we expertise met creativiteit. Onze makelaars luisteren écht en nemen de tijd om jouw wensen te begrijpen.


Bij Ditters sta je er niet alleen voor. We denken met je mee, begeleiden je in elke stap en zijn altijd bereikbaar voor vragen. Neem gerust contact met ons op – we helpen je graag verder!