Omschrijving

Royale energiezuinige en tevens uitgebouwde tussenwoning met stenen berging, maar liefst vier slaapkamers, een moderne badkamer en 10 zonnepanelen. De achtertuin tuin is gelegen op het zuid-westen wat ervoor zorgt dat je lang van de zon kan genieten. Het huis heeft een fijne ligging en grenst aan de achterzijde aan een speeltuin. Ruime parkeergelegenheid in de omgeving.

Gelegen in een serene en kindvriendelijke wijk, biedt de Dijkhof een oase van rust in combinatie met een scala aan handige voorzieningen die het dagelijks leven verrijken. Deze straat staat bekend om haar rustgevende karakter, versterkt door de overvloedige aanwezigheid van openbaar groen en nette, rustige straten.

Voor de dagelijkse benodigdheden hoeven de bewoners niet ver te reizen; de nabijgelegen winkelcentra Bellestein en Parkweide Kernhem zijn beide op 5 minuten afstand fietsen verwijderd. Hier kunnen zij terecht voor de dagelijkse boodschappen bij diverse supermarkten, ambachtelijke bakkers en slagers, terwijl ook speciaalzaken, een medisch centrum en financiële diensten binnen handbereik zijn.
Bovendien zijn er gezellige cafés en eetgelegenheden waar men kan genieten van een hapje en een drankje. Gezinnen met kinderen waarderen de nabijheid van uitstekende basisscholen, die veilig en snel per fiets bereikbaar zijn. De wijk heeft diverse groen voorzieningen, met zijn parken en speeltuinen. Fiets- en wandelpaden slingeren door de wijk, ideaal voor diegenen die de natuur willen verkennen of hun conditie op peil willen houden. Uitstekende bereikbaarheid naar de snelwegen A12 en A30. Voor natuurliefhebbers bieden het nabijgelegen bos en de Ginkelse Heide aan de rand van Ede fantastische mogelijkheden voor wandelen, hardlopen en fietsen.

Enkele pluspunten van de woning:
+ 10 zonnepanelen
+ Woonkamer flink uitgebouwd met extra veel daglicht
+ Energielabel A (dak, vloer en muurisolatie, dubbel glas en deels HR++ glas
+ Sfeervolle palletkachel
+ Moderne badkamer
+ Speeltuin in de buurt van de woning
+ Zeer ruime woning met maar liefst 4 slaapkamers
+ Alarminstallatie met camera’s
+ Cv ketel uit 2020.

Indeling
Begane grond
Ruime entree, moderne lichte toiletruimte voorzien van een wandcloset en fontein. Meterkast en aansluiting voor glasvezel. Trapopgang naar de eerste verdieping.

De hal en de woonkamer zijn gescheiden door middel van een zeer praktische schuifdeur. De tuingerichte uitgebouwde woonkamer van ruim 47.4 m², met veel lichtinval door de grote achterpui en de drie in de uitbouw geplaatste dakramen, de woonkamer vloer is afgewerkt met een fraaie laminaatvloer met brede planken en de toegang naar de tuin via de twee tuindeuren. Onder de trapopgang bevindt zich een kast met extra bergruimte. In de woonkamer is een fijne pelletkachel (Ravelli) geplaatst voor comfortabele verwarming. Vanuit de woonkamer loop je naar de open keuken. Hier is een in hoekopstelling geplaatste luxe inbouwkeuken. In lichte kleurstelling met zwart aanrechtblad. De keuken is uitgerust met een inductie kookplaat, afzuigkap, vaatwasser en koelkast.

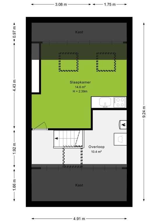
Eerste verdieping
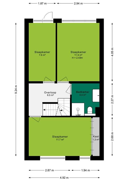
Ruime overloop met toegang naar drie ruime slaapkamers en een moderne badkamer. De badkamer heeft een douchecabine, groot wastafelmeubel, moderne betegeling en een wandcloset. Zowel de slaapkamers als ook op de overloop ligt een laminaatvloer.

Tweede verdieping
Ruime overloop/voorzolder met aansluiting voor de wasmachine en droger, Cv-installatie, elektrische boiler. Verder op deze verdieping is een ruime slaapkamer welke is voorzien van twee Velux dakramen voorzien van verduisterende rolgordijnen en zonwering aan de buitenzijde. Deze slaapkamer kan dienst doen als appartement vanwege de aanwezigheid van een keukenblokje met diverse voorzieningen. De gehele verdieping is voorzien van een laminaatvloer.

Tuin
Via de twee tuindeuren loop je vanuit de woonkamer de tuin in, de achtertuin is grotendeels bestraat met langs de zijden diverse plantenborders met beplanting. en zonnig terras. Op de achtergevel is een breed handbediend zonnescherm geplaatst.

De combinatie van de bestrating en de verschillende plantvakken zorgen ervoor dat de tuin een verzorgde uitstraling heeft. De tuin is gelegen op het zuidwesten, waar je tot laat van de zon kan genieten. Vanaf de tuin loop je zo de speeltuin in die links achter het huis is gesitueerd.

Afmetingen
Perceeloppervlakte: 125 m²
Woonoppervlakte: 130 m²

Woonkamer 47.4 m²
Keuken 7.0 m²
Slaapkamer 11.9 m²
Slaapkamer 11.7 m²
Slaapkamer 7.6 m²
Badkamer 4.4 m²
Slaapkamer 14.6 m²
Voorzolder 10.4 m²
Externe berging 8.1 m²

Kenmerken
Warmwater: CV-combiketel Nefit;
Verwarming: CV-combiketel Nefit en Daalderop elektrische boiler;
Isolatie: Vloer-, muur-, dakisolatie, dubbelglas (deels HR++ glas);
Bouwjaar: 1975;
Tuinligging: Zuidwesten;
Aanvaarding: In overleg.

Koopovereenkomst:
Bij de verkoop zal er een standaard NVM koopovereenkomst worden gehanteerd. Bij woningen welke ouder zijn dan 20 jaar, worden de volgende clausules opgenomen in de koopovereenkomst:
- Asbestclausule;
- Ouderdomsclausule.

Koopt u de woning zonder voorbehoud van financiering? Dan zullen wij een termijn hanteren van 14 dagen na het opstellen van de koopovereenkomst voor het storten van de bankgarantie/waarborgsom.

Deze informatie is door ons met de nodige zorgvuldigheid samengesteld. Onzerzijds wordt echter geen enkele aansprakelijkheid aanvaard voor enige onvolledigheid, onjuistheid of anderszins, dan wel de gevolgen daarvan. Alle opgegeven maten en oppervlakten zijn indicatief.
+ toon meer
deze woning is Verkocht

Dijkhof 35 Ede

Dijkhof 35

6715 DV, Ede
Ditters open huis: 5 april 2025 10:00 - 12:00 uur
Landelijke Open Huizen Route NVM: 5 april 2025 11:00 uur - 15:00 uur
Vanaf€ 425.000 k.k.

Schakel een aankoopmakelaar in.

Snel handelen helpt je jouw droomhuis te bemachtigen. Zo vergroot je de kans dat je er op tijd bij bent.
Ede
verkocht

Of maak vrijblijvend een zoekprofiel aan.

Vergelijkbare woningen

Hypotheken

Onafhankelijk hypotheekadvies

  • Ligt jouw droomhuis binnen handbereik?
  • Wil je jouw huidige hypotheek verhogen?
  • Is er hypotheekruimte voor verduurzaming?

Blijf op de hoogte

Ontvang als eerste updates over nieuw aanbod en mis geen enkele kans om jouw droomwoning te vinden.

Gratis waardebepaling of verkoopgesprek

Met de vrijblijvende waardecheck weet je snel waar je aan toe bent. Onze makelaars kijken naar de lokale markt en vergelijkbare woningen in jouw buurt om een goede schatting te geven.

Realiseer al jouw woondromen met Ditters

Wij zijn een team van gedreven vastgoedexperts met een passie voor het maken van verbindingen – tussen kopers en verkopers, huurders en verhuurders. Met een frisse kijk op de makelaardij combineren we expertise met creativiteit. Onze makelaars luisteren écht en nemen de tijd om jouw wensen te begrijpen.


Bij Ditters sta je er niet alleen voor. We denken met je mee, begeleiden je in elke stap en zijn altijd bereikbaar voor vragen. Neem gerust contact met ons op – we helpen je graag verder!