Omschrijving

Op één van de meest karakteristieke locaties van Ede, bij de Concordiamolen gelegen, goed onderhouden 3-kamerappartement met berging en een eigen parkeerplaats. Ervaar comfort in dit prachtige appartement met een ruime woonkamer en een terras met uitzicht op de molen, waar grote raampartijen zorgen voor natuurlijke lichtinval.

De Notaris van Puttenstraat 37 in Ede biedt niet alleen een prachtige woonlocatie, maar ook een scala aan voorzieningen die het leven hier bijzonder aangenaam maken. Het appartement is gelegen in een kleinschalige woonwijk in het centrum, waardoor je binnen enkele minuten toegang hebt tot diverse winkels voor al je dagelijkse boodschappen en gezellige eetgelegenheden. Scholen en kinderopvangcentra bevinden zich op loopafstand, wat het ideaal maakt voor gezinnen.

De nabijheid van het NS-station Ede-Centrum is een groot pluspunt, met snelle verbindingen naar omliggende steden. Daarnaast zijn er uitstekende uitvalswegen die zorgen voor een vlotte bereikbaarheid met de auto. Cultuurliefhebbers kunnen terecht in de lokale bibliotheek en diverse culturele instellingen in de buurt.

De omgeving biedt ook volop mogelijkheden voor recreatie en ontspanning. De nabijgelegen Edese heide en de Hoge Veluwe nodigen uit tot lange wandelingen en fietstochten in de natuur. Kortom, deze locatie combineert het beste van stedelijk gemak met de rust en schoonheid van de natuur.

Enkele pluspunten van de woning:
+ Uitzicht op de Concordia molen;
+ Luxe keuken en badkamer;
+ Ruime, lichte woonkamer;
+ Fraaie PVC-vloer in het gehele appartement;
+ Twee slaapkamers aanwezig;
+ Eigen berging en parkeerplaats in de onderbouw;
+ Servicekosten bedragen: €160,-;
+ Op steenworp afstand van het centrum.

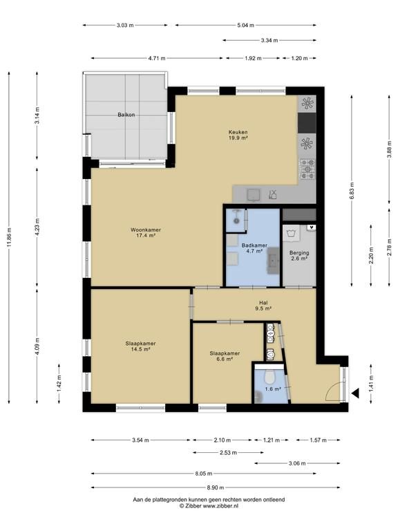
Indeling
Appartementengebouw
Afgesloten entree met intercomsysteem, brievenbussen, trapopgang en lift.

Appartement
Binnenkomst via de entree, waar zich de hal met meterkast bevindt, evenals een toiletruimte met zwevend toilet en fonteintje. Vanuit de hal zijn alle vertrekken toegankelijk. De ruime woonkamer heeft een mooie PVC-vloer en biedt toegang tot het terras aan de voorzijde van het appartementencomplex, met uitzicht op de molen. De grote raampartijen zorgen voor veel natuurlijk licht.

De luxe open keuken is in een L-vorm opgesteld en voorzien van lichte kasten met een composiet werkblad. De keuken is uitgerust met diverse inbouwapparatuur, waaronder een vaatwasser, koel-vriescombinatie, oven, magnetron, inductiekookplaat en afzuigkap.

Vanuit de hal zijn de twee slaapkamers toegankelijk, beide voorzien van een PVC-vloer en gestucte wanden. Beide kamers hebben grote raampartijen.

De volledig betegelde badkamer is uitgerust met een designradiator, douchecabine met thermostaatkraan en stortdouche, en een wastafel.

In de hal bevindt zich ook de technische ruimte met de opstelplaats voor de CV-ketel en een wasmachineaansluiting.

Woonoppervlakte: 82 m²
Inhoud: 271 m³

Bijzonderheden
Verwarming: CV-installatie, Intergas, 2011;
Warm water: CV-installatie, Intergas, 2011;
Bouwjaar: 2010;
Terrasligging: Oosten;
Aanvaarding: In overleg.

Koopovereenkomst:
Bij de verkoop zal er een standaard NVM koopovereenkomst worden gehanteerd. Bij woningen welke ouder zijn dan 20 jaar, worden de volgende clausules opgenomen in de koopovereenkomst:
- Asbestclausule;
- Ouderdomsclausule.

Koopt u de woning zonder voorbehoud van financiering? Dan zullen wij een termijn hanteren van 14 dagen na het opstellen van de koopovereenkomst voor het storten van de bankgarantie/waarborgsom.

Deze informatie is door ons met de nodige zorgvuldigheid samengesteld. Onzerzijds wordt echter geen enkele aansprakelijkheid aanvaard voor enige onvolledigheid, onjuistheid of anderszins, dan wel de gevolgen daarvan. Alle opgegeven maten en oppervlakten zijn indicatief.
+ toon meer
deze woning is Verkocht

Notaris van Puttenstraat 37 Ede

Notaris van Puttenstraat 37

6712 EK, Ede
Ditters open huis: 5 april 2025 10:00 - 12:00 uur
Landelijke Open Huizen Route NVM: 5 april 2025 11:00 uur - 15:00 uur
Vanaf€ 395.000 k.k.

Schakel een aankoopmakelaar in.

Snel handelen helpt je jouw droomhuis te bemachtigen. Zo vergroot je de kans dat je er op tijd bij bent.
Ede
verkocht

Of maak vrijblijvend een zoekprofiel aan.

Vergelijkbare woningen

Hypotheken

Onafhankelijk hypotheekadvies

  • Ligt jouw droomhuis binnen handbereik?
  • Wil je jouw huidige hypotheek verhogen?
  • Is er hypotheekruimte voor verduurzaming?

Blijf op de hoogte

Ontvang als eerste updates over nieuw aanbod en mis geen enkele kans om jouw droomwoning te vinden.

Gratis waardebepaling of verkoopgesprek

Met de vrijblijvende waardecheck weet je snel waar je aan toe bent. Onze makelaars kijken naar de lokale markt en vergelijkbare woningen in jouw buurt om een goede schatting te geven.

Realiseer al jouw woondromen met Ditters

Wij zijn een team van gedreven vastgoedexperts met een passie voor het maken van verbindingen – tussen kopers en verkopers, huurders en verhuurders. Met een frisse kijk op de makelaardij combineren we expertise met creativiteit. Onze makelaars luisteren écht en nemen de tijd om jouw wensen te begrijpen.


Bij Ditters sta je er niet alleen voor. We denken met je mee, begeleiden je in elke stap en zijn altijd bereikbaar voor vragen. Neem gerust contact met ons op – we helpen je graag verder!