Omschrijving

Ben je op zoek naar een plek waar modern comfort en serene rust samenkomen? Zoek niet verder!

Deze prachtige twee-onder-een-kapwoning in de charmante Rubensstraat biedt alles wat je nodig hebt voor een heerlijk woongenot. De net onderhouden keuken is perfect voor zowel de dagelijkse maaltijd als uitgebreide diners. Met moderne apparatuur en een stijlvol ontwerp is het de ideale plek voor elke kookliefhebber. Het toilet is recent vernieuwd in 2023. De gashaard in de woonkamer zorgt voor een warme en gezellige sfeer. Perfect om te ontspannen na een lange dag. Met twee royale slaapkamers op de eerste verdieping en de mogelijkheid om een derde slaapkamer op zolder te creëren, biedt deze woning voldoende ruimte voor het hele gezin. De ruime tuin op het zuiden is een zonovergoten paradijs. De zeer ruime garage met elektrische deur biedt niet alleen plaats voor je auto, maar ook voor extra opslag of hobbyruimte. Met zonnepanelen op het dak ben je klaar voor een duurzame toekomst en profiteer je van lagere energiekosten.

De Rubensstraat is een charmante straat die ligt in een groene, vriendelijke wijk die direct een gevoel van sereniteit oproept. Het is een ideale locatie voor gezinnen, stellen en ouderen die de rust van de natuur willen combineren met het gemak van nabijgelegen voorzieningen.

De omgeving van de Rubensstraat is bijzonder kindvriendelijk, met tal van speeltuinen en veilige wandelpaden. Op korte afstand bevinden zich prachtige natuurgebieden zoals het Edese Bos en de Ginkelse Heide. Deze gebieden nodigen uit tot lange wandelingen en fietstochten, waardoor bewoners kunnen genieten van de rust en schoonheid van de natuur, zonder ver van huis te hoeven gaan.

Wat betreft voorzieningen, biedt de Rubensstraat alles wat je nodig hebt binnen handbereik. Voor dagelijkse boodschappen zijn er diverse supermarkten en verswinkels in de buurt. Het nabijgelegen winkelcentrum biedt een gevarieerd aanbod aan winkels en gezellige horecagelegenheden.

Gezinnen met kinderen zullen de nabijheid van verschillende scholen en kinderopvangcentra waarderen, evenals de sportfaciliteiten in de buurt, waaronder een zwembad, sportvelden en een fitnesscentrum. Voor wie afhankelijk is van openbaar vervoer, biedt de nabijheid van station Ede-Wageningen en diverse bushaltes uitstekende verbindingen. Bovendien zijn de snelwegen A12 en A30 gemakkelijk bereikbaar, wat de Rubensstraat ook voor automobilisten aantrekkelijk maakt.

Enkele pluspunten van de woning:
+ 9 zonnepanelen aanwezig;
+ Moderne keuken;
+ Toilet vernieuwd in 2023;
+ Twee slaapkamers;
+ Extra grote garage met elektrische deur;
+ Tuin gelegen op het zuiden;

Indeling
Begane grond
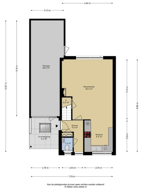
Wanneer je de woning binnenstapt, kom je terecht in een uitnodigende entree met een toilet voorzien van een fonteintje, de meterkast en de trapopgang naar de eerste verdieping. In de woonkamer geniet je van een overvloed aan natuurlijk licht dankzij de vele raampartijen met elektrisch zonnescherm , terwijl de open haard zorgt voor een warme en gezellige sfeer. Onder de trapopgang vind je een praktische berging, perfect voor extra opslagruimte.
De keuken is uitgerust in lichte kleurstelling met een natuurstenenblad. De keuken heeft diverse inbouwappartuur te weten:
- Inductiekookplaat
- Afzuigkap
- combi oven magnetron
- Dubbele wasbak
- Vaatwasser
- Koelkast
- Vriezer

Eerste verdieping
Wanneer je de trap opgaat naar de eerste verdieping, kom je uit op een ruime en lichte overloop. Vanaf hier heb je toegang tot de volledig betegelde badkamer, die van alle gemakken is voorzien. De badkamer beschikt over een dubbele wastafel, een moderne douche en een toilet.

Vanaf de overloop bereik je de eerste slaapkamer. Deze kamer is niet alleen sfeervol, maar ook functioneel ingericht met een handige inbouwkast, waardoor je voldoende opbergruimte hebt voor kleding. De tweede slaapkamer op deze verdieping is royaal van formaat. Ook deze kamer is uitgerust met een ruime inbouwkast, wat bijdraagt aan de opgeruimde sfeer van de ruimte. Deze slaapkamer biedt voldoende ruimte voor een groot bed en eventueel een werk- of zithoek, waardoor het een veelzijdige plek is in de woning.

Tweede verdieping
Op de zolder vind je de aansluitingen voor zowel de wasmachine als de droger, evenals de CV-installatie.

Tuin
Via de schuifdeuren in de woonkamer stap je direct de tuin in, die volledig is betegeld voor een onderhoudsvriendelijke buitenruimte. Deze tuin biedt een ideale plek om te ontspannen en te genieten van de buitenlucht. Achter de woning kun je heerlijk beschut zitten onder het recent geplaatste zonnescherm, waardoor je op zonnige dagen altijd een aangenaam plekje in de schaduw hebt. Het is een perfecte plek voor een gezellige zithoek waar je kunt ontspannen met een goed boek of kunt genieten van een maaltijd in de buitenlucht.

Daarnaast biedt de tuin directe toegang tot de garage, wat extra gemak en opslagmogelijkheden met zich meebrengt. De garage is ruim genoeg voor het stallen van een auto, fietsen of andere spullen, en is eenvoudig bereikbaar vanuit de tuin en voorzijde van de woning, wat het in- en uitladen bijzonder praktisch maakt.

Afmetingen
Perceeloppervlakte: 224 m²
Inhoud woning: 432 m³
Woonoppervlakte: 96 m²

Bijzonderheden
Verwarming: Cv-installatie, Vaillant eco Tec Plus 2020;
Warm water: Cv-installatie, Vaillant eco Tec Plus 2020;
Isolatie: Dakisolatie, vloerisolatie, HR-glas;
Bouwjaar: 1988;
Tuinligging: Zuiden;
Aanvaarding: In overleg.

Koopovereenkomst:
Bij de verkoop zal er een standaard NVM koopovereenkomst worden gehanteerd. Bij woningen welke ouder zijn dan 20 jaar, worden de volgende clausules opgenomen in de koopovereenkomst:
- Asbestclausule;
- Ouderdomsclausule.

Koop je de woning zonder voorbehoud van financiering? Dan zullen wij een termijn hanteren van 14 dagen na het opstellen van de koopovereenkomst voor het storten van de bankgarantie/waarborgsom.

Deze informatie is door ons met de nodige zorgvuldigheid samengesteld. Onzerzijds wordt echter geen enkele aansprakelijkheid aanvaard voor enige onvolledigheid, onjuistheid of anderszins, dan wel de gevolgen daarvan. Alle opgegeven maten en oppervlakten zijn indicatief.
+ toon meer
deze woning is Verkocht

Rubensstraat 125 Ede

Rubensstraat 125

6717 VE, Ede
Ditters open huis: 5 april 2025 10:00 - 12:00 uur
Landelijke Open Huizen Route NVM: 5 april 2025 11:00 uur - 15:00 uur
Vanaf€ 469.000 k.k.

Schakel een aankoopmakelaar in.

Snel handelen helpt je jouw droomhuis te bemachtigen. Zo vergroot je de kans dat je er op tijd bij bent.
Ede
verkocht

Of maak vrijblijvend een zoekprofiel aan.

Vergelijkbare woningen

Hypotheken

Onafhankelijk hypotheekadvies

  • Ligt jouw droomhuis binnen handbereik?
  • Wil je jouw huidige hypotheek verhogen?
  • Is er hypotheekruimte voor verduurzaming?

Blijf op de hoogte

Ontvang als eerste updates over nieuw aanbod en mis geen enkele kans om jouw droomwoning te vinden.

Gratis waardebepaling of verkoopgesprek

Met de vrijblijvende waardecheck weet je snel waar je aan toe bent. Onze makelaars kijken naar de lokale markt en vergelijkbare woningen in jouw buurt om een goede schatting te geven.

Realiseer al jouw woondromen met Ditters

Wij zijn een team van gedreven vastgoedexperts met een passie voor het maken van verbindingen – tussen kopers en verkopers, huurders en verhuurders. Met een frisse kijk op de makelaardij combineren we expertise met creativiteit. Onze makelaars luisteren écht en nemen de tijd om jouw wensen te begrijpen.


Bij Ditters sta je er niet alleen voor. We denken met je mee, begeleiden je in elke stap en zijn altijd bereikbaar voor vragen. Neem gerust contact met ons op – we helpen je graag verder!