Omschrijving

Gelegen in de wijk Veldhuizen bevindt zich deze royale eengezinswoning met een woonoppervlakte van 149m² (!) en met een heerlijke achtertuin gelegen op het zonnige zuidwesten. De woning is aan de achterzijde uitgebouwd en is voorzien van een dakopbouw waardoor je nog meer woongenot ervaart. De woning is geheel naar eigen smaak en wens te moderniseren. De dakbedekking van de uitbouw is in 2023 vervangen en de dakbedekking op de dakopbouw is in 2021 vervangen. Ook is recent (2024) de C.V.-ketel vernieuwd.

De woning is gelegen in een rustige en groene woonwijk in Ede. Op korte afstand vind je diverse voorzieningen zoals winkels, scholen, sportfaciliteiten en openbaar vervoer. De gunstige ligging zorgt ervoor dat je binnen enkele minuten de snelwegen A12 en A30 kunt bereiken. Ook het winkelcentrum 'Bellestein' is op loopafstand aanwezig. 'Bellestein' is het gelijknamige winkelcentrum. Het winkelcentrum biedt een divers aanbod aan winkels, waaronder supermarkten, een bakker, een slager, een drogisterij en verschillende eetgelegenheden. Dit maakt het winkelcentrum een handige plek voor de dagelijkse boodschappen en andere benodigdheden.

Indeling

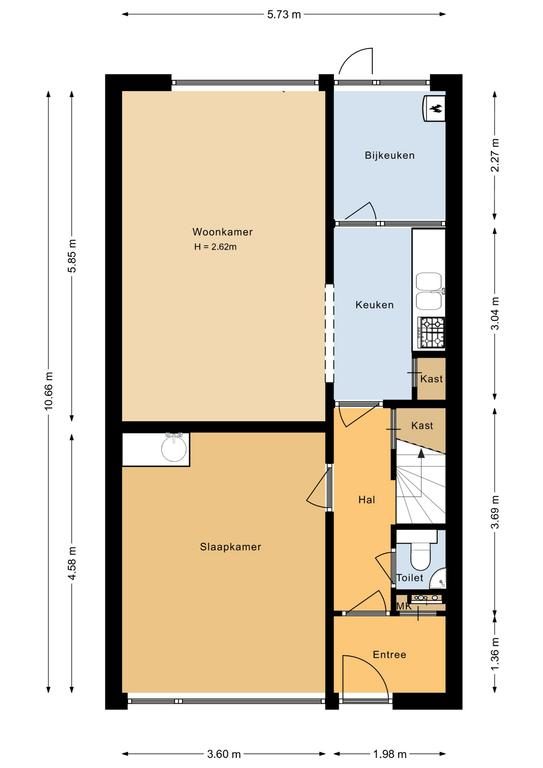
Begane grond

Via de entree met hal, meterkast en toilet bereik je de woning. De woonkamer is ingedeeld in 2 delen welke gemakkelijk tot één ruimte gecreëerd kan worden. Door de grote raampartijen is er veel lichtinval aanwezig. De keuken is opgesteld in een lichte kleurstelling en voorzien van diverse inbouwapparatuur, te weten: een afzuigkap, gasfornuis, oven, koelkast en een vaatwasser. Naast de keuken bevindt zich een ideale bijkeuken waar de C.V.-ketel (2024) staat opgesteld.

Eerste verdieping
De ruime overloop geeft toegang tot 4 slaapkamers en de badkamer. De slaapkamers zijn goed bemeten met een afmeting van ca. 11m², 9m², 6,3m² en 4,7m² en zijn voorzien van voldoende lichtinval. De 2 grootste slaapkamers zijn voorzien van een keukenblokje met wastafel. De badkamer is volledig betegeld in een lichte kleurstelling en is voorzien van een ligbad, inloopdouche, wastafel en een toilet.

Tweede verdieping
Via een vaste trap bereik je de volwaardig 2e verdieping. Op deze verdieping zijn nog eens 2 (slaap)kamers, een extra kamer en de wasruimte. De slaapkamers hebben een afmeting van ca. 12,7m² en 11m², zijn beide voorzien van een ingebouwde kast en een keukenblokje met wastafel. De kamer heeft een afmeting van ca. 6m², ideaal voor het opbergen van je spullen! In de wasruimte is de witgoed-aansluiting aanwezig.

Tuin/ berging
De heerlijke tuin is gelegen op het zonnige zuidwesten waardoor je hier fijn kunt genieten van het buitenleven en het zonnetje. Achterin de tuin is een grote berging aanwezig (7m²) en tevens een achterom.

Extra's:
+ Royale eengezinswoning met een woonoppervlakte van 149m²;
+ Gelegen in de rustige en groene wijk 'Veldhuizen';
+ Veel ruimte en lichtinval in de gehele woning;
+ Uitgebouwde woonkamer;
+ Dakopbouw op de 2e verdieping;
+ Voorzien van isolerende beglazing;
+ Voorzien van energielabel B;
+ Gelegen aan een autoluwe straat;
+ Gelegen nabij diverse voorzieningen en uitvalswegen;
+ Extra artikelen in de koopovereenkomst.

Kenmerken:
Verwarming: C.V. combiketel (bouwjaar 2024)
Warm water: C.V. combiketel (bouwjaar 2024)
Bouwjaar: 1970
Isolatie: Dubbel glas (m.u.v. de voordeur)
Tuinligging: zuidwest
Aanvaarding: in overleg (kan snel)

Koopovereenkomst:
Bij de verkoop zal er een standaard NVM koopovereenkomst worden gehanteerd. Bij woningen welke ouder zijn dan 20 jaar, worden de volgende clausules opgenomen in de koopovereenkomst:
- Asbestclausule;
- Ouderdomsclausule.

Koop je de woning zonder voorbehoud van financiering? Dan zullen wij een termijn hanteren van 14 dagen na het opstellen van de koopovereenkomst voor het storten van de bankgarantie/waarborgsom.

Deze informatie is door ons met de nodige zorgvuldigheid samengesteld. Onzerzijds wordt echter geen enkele aansprakelijkheid aanvaard voor enige onvolledigheid, onjuistheid of anderszins, dan wel de gevolgen daarvan. Alle opgegeven maten en oppervlakten zijn indicatief.
+ toon meer
deze woning is Verkocht

Sijpestein 3 Ede

Sijpestein 3

6714 DM, Ede
Ditters open huis: 5 april 2025 10:00 - 12:00 uur
Landelijke Open Huizen Route NVM: 5 april 2025 11:00 uur - 15:00 uur
Vanaf€ 369.000 k.k.

Schakel een aankoopmakelaar in.

Snel handelen helpt je jouw droomhuis te bemachtigen. Zo vergroot je de kans dat je er op tijd bij bent.
Ede
verkocht

Of maak vrijblijvend een zoekprofiel aan.

Vergelijkbare woningen

Hypotheken

Onafhankelijk hypotheekadvies

  • Ligt jouw droomhuis binnen handbereik?
  • Wil je jouw huidige hypotheek verhogen?
  • Is er hypotheekruimte voor verduurzaming?

Blijf op de hoogte

Ontvang als eerste updates over nieuw aanbod en mis geen enkele kans om jouw droomwoning te vinden.

Gratis waardebepaling of verkoopgesprek

Met de vrijblijvende waardecheck weet je snel waar je aan toe bent. Onze makelaars kijken naar de lokale markt en vergelijkbare woningen in jouw buurt om een goede schatting te geven.

Realiseer al jouw woondromen met Ditters

Wij zijn een team van gedreven vastgoedexperts met een passie voor het maken van verbindingen – tussen kopers en verkopers, huurders en verhuurders. Met een frisse kijk op de makelaardij combineren we expertise met creativiteit. Onze makelaars luisteren écht en nemen de tijd om jouw wensen te begrijpen.


Bij Ditters sta je er niet alleen voor. We denken met je mee, begeleiden je in elke stap en zijn altijd bereikbaar voor vragen. Neem gerust contact met ons op – we helpen je graag verder!