Omschrijving

Royaal 3-kamer appartement met een woonoppervlakte van 165m², voorzien van twee slaapkamers, elk met een eigen badkamer, en twee balkons gelegen op het zonnige zuidwesten!

Op slechts een korte wandeling van het Intercity station Ede-Wageningen bevindt zich dit appartement aan de statige Stationsweg, dicht bij zowel de bossen als het centrum van Ede. Het appartement is gesitueerd op de eerste verdieping en beschikt over twee balkons. Vanuit de woonkamer is er een prachtig uitzicht over de Stationsweg. De Stationsweg zal worden gerenoveerd in een fietsstraat, waarbij de auto's te gast zullen zijn. In het souterrain bevindt zich de parkeerplaats, terwijl de ruime inpandige berging op de begane grond is gesitueerd.

Dit appartement maakt deel uit van het complex 'Rozenburg', waar je kunt genieten van een rustige, voorname en veilige woonomgeving. Een kleinschalig complex met 9 appartementen, waarvan dit een van de grootste appartementen in het complex is. Het complex beschikt over een gezonde en actieve vereniging van eigenaren.

Alle feiten op een rij:
- Royaal 3-kamer appartement met 165m² woonoppervlakte
- Fijn natuurlijk daglicht in het appartement door de vele raampartijen
- Slaapkamers met elk een eigen badkamer, en airconditioning in de grootste slaapkamer
- Twee zonnige balkons op het zuidwesten met een fraai uitzicht
- Vanuit het appartement is er een mooi uitzicht over de Stationsweg
- Eigen overdekte parkeerplaats in het souterrain en inpandige berging op de begane grond
- Prachtig gelegen nabij bos, Intercity-station Ede-Wageningen en het centrum
- Kleinschalig appartementencomplex met gesloten entree en lift
- De vereniging van eigenaren is actief en gezond, de maandelijkse bijdrage bedraagt € 370,42

Indeling:
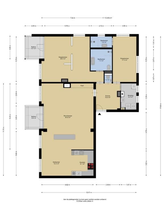
Bij binnenkomst in het appartement kom je in de hal, die is uitgerust met een handige garderobekast en toegang biedt tot alle ruimtes van het appartement. De ruime woonkamer is praktisch ingedeeld en beschikt over een sfeervolle haard. Vanuit de woonkamer heb je toegang tot een heerlijk balkon, waar je kunt ontspannen met een kopje koffie of thee, terwijl je geniet van de omgeving.

De woonkamer wordt gekenmerkt door grote raampartijen die zorgen voor een overvloed aan natuurlijk daglicht. Zelfs op zonnige dagen blijft de temperatuur aangenaam dankzij de aanwezige zonnewering. In de woonkamer kun je volop genieten van de aanwezige luxe en comfort. De open keuken is ingericht in een praktische U-vorm en uitgerust met alle gewenste inbouwapparatuur, waaronder een koel-vriescombinatie, kookplaat, afzuigkap, combi-oven en vaatwasser. Dankzij de vele bovenkasten heb je bovendien volop opbergruimte voor al je keukengerei. Direct naast de keuken is er genoeg ruimte voor een grote eettafel, waardoor je met vrienden of familie kunt genieten van gezellige diners.

De master bedroom, met een royale oppervlakte van 36 m², straalt een hotelachtige sfeer uit. Een scheidingswand creëert de indruk van een inloopkast, waar je al je kleding georganiseerd kunt opbergen. De slaapkamer is uitgerust met airconditioning, waardoor je zelfs tijdens warme zomernachten van een goede nachtrust kunt genieten. Via de deur heb je directe toegang tot het balkon, wat een extra vleugje luxe toevoegt aan deze ruimte. Daarnaast is er een praktische, aangrenzende badkamer die van alle gemakken is voorzien. Hier vind je een moderne inloopdouche, handdoekradiator, toilet en een wastafelmeubel met aan beide zijden badkamerkasten. De tweede slaap-/werkkamer, met een oppervlakte van ongeveer 17 m², beschikt eveneens over een aangrenzende badkamer. Dankzij de hoekligging heeft deze kamer ramen aan beide zijden, wat zorgt voor een aangename hoeveelheid natuurlijk licht. De badkamer is uitgerust met een inloopdouche, een wastafel en een spiegelkast. Het raam in de badkamer laat niet alleen extra daglicht binnen, maar biedt ook de mogelijkheid om de ruimte, naast de aanwezige badkamer ventilatie, op een natuurlijke manier te ventileren.

Het appartement beschikt over een royale ontvangstruimte in de hal. Het aparte toiletruimte is voorzien van een hangend closet en fonteintje. In de aparte berg-/ wasruimte van circa 6m² bevindt zich de C.V. opstelling en beschikt je over een opstelplaats voor de wasmachine en droger. Daarnaast is er nog voldoende ruimte voor het opbergen van schoonmaakspullen en extra voorraad.

Tot slot beschik je als eigenaar van dit appartement over een eigen parkeerplaats in de souterrain en een ruime inpandige berging van circa 14m². Deze ruimte is ideaal voor het stallen van fietsen en het opbergen van diverse (seizoensgebonden) spullen.

Afmetingen
Inhoud woning: 545m³
Woonoppervlakte: 165 m²

Bijzonderheden
Verwarming: C.V.-ketel (Remeha uit 2006)
Warm water: C.V.-ketel (Remeha uit 2006)
Bouwjaar: 1985
Balkonligging: Zuidwesten
Aanvaarding: In overleg

Koopovereenkomst:
Bij de verkoop zal er een standaard NVM koopovereenkomst worden gehanteerd. Bij woningen welke ouder zijn dan 20 jaar, worden de volgende clausules opgenomen in de koopovereenkomst:
- Asbestclausule
- Ouderdomsclausule

Koop je de woning zonder voorbehoud van financiering? Dan zullen wij een termijn hanteren van 14 dagen na het opstellen van de koopovereenkomst voor het storten van de bankgarantie/waarborgsom.

Deze informatie is door ons met de nodige zorgvuldigheid samengesteld. Onzerzijds wordt echter geen enkele aansprakelijkheid aanvaard voor enige onvolledigheid, onjuistheid of anderszins, dan wel de gevolgen daarvan. Alle opgegeven maten en oppervlakten zijn indicatief.
+ toon meer
deze woning is Verkocht

Stationsweg 97 D Ede

Stationsweg 97 D

6711 PM, Ede
Ditters open huis: 5 april 2025 10:00 - 12:00 uur
Landelijke Open Huizen Route NVM: 5 april 2025 11:00 uur - 15:00 uur
Vanaf€ 625.000 k.k.

Schakel een aankoopmakelaar in.

Snel handelen helpt je jouw droomhuis te bemachtigen. Zo vergroot je de kans dat je er op tijd bij bent.
Ede
verkocht

Of maak vrijblijvend een zoekprofiel aan.

Vergelijkbare woningen

Hypotheken

Onafhankelijk hypotheekadvies

  • Ligt jouw droomhuis binnen handbereik?
  • Wil je jouw huidige hypotheek verhogen?
  • Is er hypotheekruimte voor verduurzaming?

Blijf op de hoogte

Ontvang als eerste updates over nieuw aanbod en mis geen enkele kans om jouw droomwoning te vinden.

Gratis waardebepaling of verkoopgesprek

Met de vrijblijvende waardecheck weet je snel waar je aan toe bent. Onze makelaars kijken naar de lokale markt en vergelijkbare woningen in jouw buurt om een goede schatting te geven.

Realiseer al jouw woondromen met Ditters

Wij zijn een team van gedreven vastgoedexperts met een passie voor het maken van verbindingen – tussen kopers en verkopers, huurders en verhuurders. Met een frisse kijk op de makelaardij combineren we expertise met creativiteit. Onze makelaars luisteren écht en nemen de tijd om jouw wensen te begrijpen.


Bij Ditters sta je er niet alleen voor. We denken met je mee, begeleiden je in elke stap en zijn altijd bereikbaar voor vragen. Neem gerust contact met ons op – we helpen je graag verder!