Omschrijving

Gelegen op een rustige locatie, vind je deze goed onderhouden tussenwoning met een praktische stenen berging. Deze tussenwoning is energiezuinig door zijn zeven zonnepanelen. Door de jaren heen is de woning gemoderniseerd en voorzien van een stijlvolle inbouwkeuken, een eigentijdse badkamer en kunststof kozijnen met HR++-glas voor optimale isolatie. De woning beschikt over vier slaapkamers en een ruime achtertuin op het noordwesten, waar je heerlijk kunt genieten van de middag- en avondzon. Aan de voorzijde van de woning kun je heerlijk vrij wegkijken.

De locatie van deze woning is werkelijk ideaal. In de directe omgeving vind je diverse voorzieningen, waaronder de winkelcentra 'Bellestein' en 'Rozenplein', verschillende basisscholen en belangrijke uitvalswegen. Daarnaast liggen de publieke kinderboerderij 'De Proosdij' en een grote speeltuin op korte afstand van het complex, wat het een perfecte plek maakt voor gezinnen. De Proosdijerveldweg aan de oostzijde van het appartementengebouw biedt bovendien een uitstekende aansluiting op de N224, de A12 en de A30, waardoor je eenvoudig toegang hebt tot de belangrijkste verkeersroutes.

Enkele pluspunten van de woning:
+ Royale woonkamer;
+ Zeven zonnepanelen aanwezig;
+ Moderne keuken;
+ Vier slaapkamers;
+ Eigentijdse badkamer;
+ Bitumen dak is in 2024 vernieuwd;
+ Ruime achtertuin gelegen op het noordwesten.

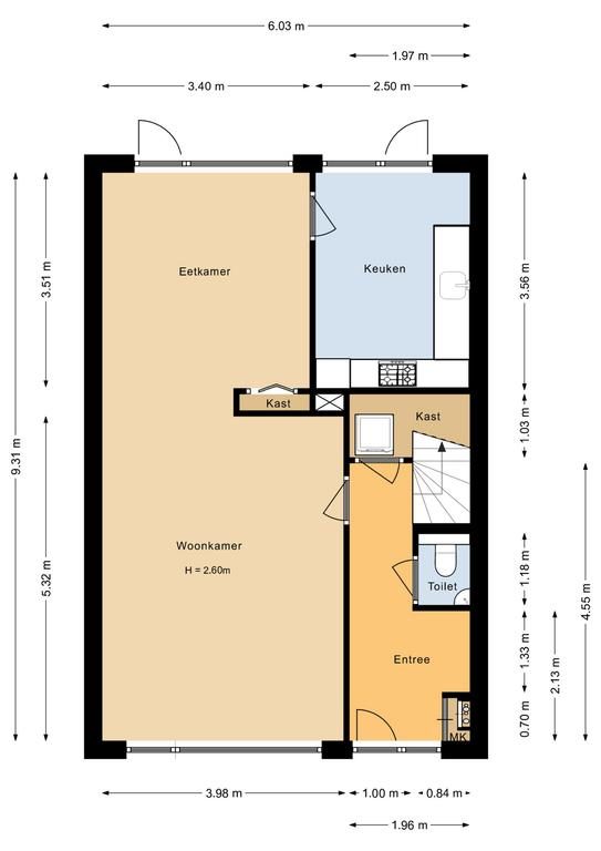
Indeling
Begane Grond
Hal/entree met meterkast, toiletruimte met fonteintje en toilet, trapkast met wasmachine opstelplaats, trapopgang naar de eerste verdieping en toegang tot de woonkamer. De ruime woonkamer van circa 32 m² is voorzien van een massief eiken houtenvloer. De woonkamer beschikt over een tuindeur en beschikt aan de achtergevel over een zonnescherm.

De luxe L-vormige keuken is uitgerust met een vaatwasser, gaskookplaat, afzuigkap, koel/vriescombinatie en een oven. Daarnaast heeft de keuken een plavuizen vloer en is er een deur naar de achtertuin.

Eerste verdieping
De overloop geeft toegang tot 4 slaapkamers en de badkamer. De ouderslaapkamer bevindt zich aan de achterzijde van de woning en is voorzien van een laminaatvloer en elektrisch rolluik. De grote slaapkamer aan de voorzijde is voorzien van een vaste kast, laminaat vloer en een elektrisch rolluik. De badkamer is in 2022 gerenoveerd en heeft een verlaagd plafond met inbouwspotjes en is volledig betegeld. De badkamer is verder uitgerust met een wastafelmeubel, glazen douchewand, ligbad, toilet en designradiator.

Tuin
De tuin is toegankelijk zowel vanuit de keuken als de woonkamer. Deze onderhoudsvrije tuin, die op het noordwesten is gelegen, biedt een ideale plek om te ontspannen na een lange dag. Achterin de tuin bevindt zich een praktische stenen berging. Deze ruimte is ideaal voor het stallen van fietsen, maar kan ook dienen als opslag voor tuingereedschap of andere benodigdheden.

Daarnaast is de woning voorzien van een handige achterom. Dit betekent dat je de woning ook via de achterkant kunt betreden.

Afmetingen
Perceeloppervlakte: 155 m²
Inhoud woning: 370 m³
Woonoppervlakte: 112 m²

Bijzonderheden
Verwarming: Cv-installatie, Remeha Tzerra HR;
Warm water: Cv-installatie, Remeha Tzerra HR;
Isolatie: HR++ glas;
Bouwjaar: 1970;
Tuinligging: Noordwesten;
Aanvaarding: In overleg.

Koopovereenkomst:
Bij de verkoop zal er een standaard NVM koopovereenkomst worden gehanteerd. Bij woningen welke ouder zijn dan 20 jaar, worden de volgende clausules opgenomen in de koopovereenkomst:
- Asbestclausule;
- Ouderdomsclausule.

Koop je de woning zonder voorbehoud van financiering? Dan zullen wij een termijn hanteren van 14 dagen na het opstellen van de koopovereenkomst voor het storten van de bankgarantie/waarborgsom.

Deze informatie is door ons met de nodige zorgvuldigheid samengesteld. Onzerzijds wordt echter geen enkele aansprakelijkheid aanvaard voor enige onvolledigheid, onjuistheid of anderszins, dan wel de gevolgen daarvan. Alle opgegeven maten en oppervlakten zijn indicatief.
+ toon meer
deze woning is Verkocht

Valkestein 18 Ede

Valkestein 18

6714 BL, Ede
Ditters open huis: 5 april 2025 10:00 - 12:00 uur
Landelijke Open Huizen Route NVM: 5 april 2025 11:00 uur - 15:00 uur
Vanaf€ 375.000 k.k.

Schakel een aankoopmakelaar in.

Snel handelen helpt je jouw droomhuis te bemachtigen. Zo vergroot je de kans dat je er op tijd bij bent.
Ede
verkocht

Of maak vrijblijvend een zoekprofiel aan.

Vergelijkbare woningen

Hypotheken

Onafhankelijk hypotheekadvies

  • Ligt jouw droomhuis binnen handbereik?
  • Wil je jouw huidige hypotheek verhogen?
  • Is er hypotheekruimte voor verduurzaming?

Blijf op de hoogte

Ontvang als eerste updates over nieuw aanbod en mis geen enkele kans om jouw droomwoning te vinden.

Gratis waardebepaling of verkoopgesprek

Met de vrijblijvende waardecheck weet je snel waar je aan toe bent. Onze makelaars kijken naar de lokale markt en vergelijkbare woningen in jouw buurt om een goede schatting te geven.

Realiseer al jouw woondromen met Ditters

Wij zijn een team van gedreven vastgoedexperts met een passie voor het maken van verbindingen – tussen kopers en verkopers, huurders en verhuurders. Met een frisse kijk op de makelaardij combineren we expertise met creativiteit. Onze makelaars luisteren écht en nemen de tijd om jouw wensen te begrijpen.


Bij Ditters sta je er niet alleen voor. We denken met je mee, begeleiden je in elke stap en zijn altijd bereikbaar voor vragen. Neem gerust contact met ons op – we helpen je graag verder!