Omschrijving

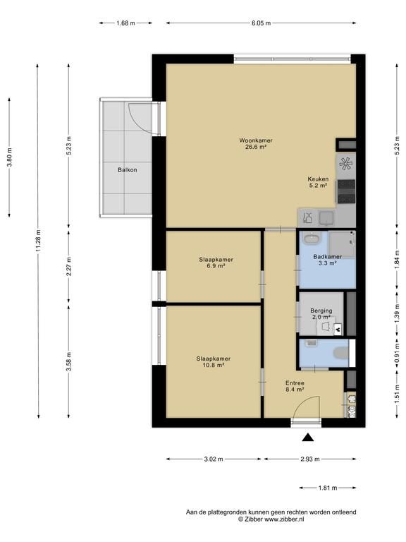
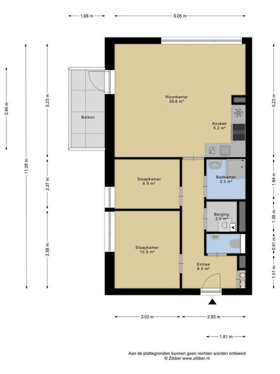
In de wijk 'Klaphek' tref je een 3-kamer-appartement met een balkon, eigen parkeerplaats in de parkeergarage en een inpandige berging in de onderbouw. Het appartement beschikt over 68m² woonoppervlakte en is voorzien van energielabel A. Het appartement is gelegen op de vierde woonlaag, tevens bovenste woonlaag en beschikt over vrij uitzicht.

Het appartementencomplex met de naam Victoriapark is voorzien van een gesloten entree, video-intercom, trappenhuis en lift welke toegang geven tot de woonverdiepingen en de parkeergarage.

Voor de dagelijkse boodschappen kun je uitstekende terecht in het winkelcentrum Bellestein, het Rozenplein of bij de Albert Heijn XL. Op korte afstand vind je verder (basis)scholen, apotheek, huisarts, openbaar vervoer en sportgelegenheden. De bereikbaarheid van het complex is eveneens goed. De uitvalswegen A12 en A30 zijn gemakkelijk te bereiken, waardoor je snel en efficiënt naar andere steden en regio's kunt reizen. En heb je behoefte aan een moment in de natuur? Dan kun je een wandeling maken in het Proosdijpark of iets verderop genieten van de bossen en de Ginkelse Heide.

Indeling
Bij binnenkomst in het appartement betreed je de entree/hal, waar je direct de meterkast en ruimte voor de kapstok treft. Vanuit deze hal heb je toegang tot alle vertrekken in het appartement. Zowel de hal als de woonkamer zijn voorzien van een eikenhouten vloer. De ruime woonkamer is praktisch ingedeeld en heeft een hoekligging waardoor er een fijn uitzicht op de omgeving is. Dankzij de grote raampartij is er ook een fijn natuurlijk daglicht in de woonkamer tevens beschikt de raampartij over screens. Via de deur is er toegang naar het balkon, waar je heerlijk kunt genieten van de buitenlucht. De open keuken is uitgerust met een eenvoudig keukenblok voorzien van divers inbouwapparatuur zoals:
- koelkast
- 5-pits fornuis
- afzuigkap
- ook is er ruimte voor een inbouw vaatwasser

De twee slaapkamers zijn circa 11m² en 7m² groot. De slaapkamers zijn beiden voorzien van een laminaatvloer. De badkamer is volledig betegeld en voorzien van een douchecabine, wastafelmeubel en een handdoekradiator. De badkamer is afgewerkt met neutrale tegels die een rustige uitstraling geven. Daarnaast is er vanuit de hal toegang naar een separate toiletruimte en een aparte berg-/wasruimte. De toiletruimte is voorzien van een modern toilet en een fonteintje. In de berg-/wasruimte vind je de aansluiting voor de wasmachine en beschik je over extra ruimte voor schoonmaakspullen en andere huishoudelijke items.

Het balkon, gelegen op het noordoosten, biedt de perfecte plek om lekker van het buitenleven te genieten met een kopje koffie of thee. Een groot voordeel van dit appartement is de eigen parkeerplaats in de parkeergarage. Hierdoor hoef je nooit meer te zoeken naar een parkeerplek en behoort het krabben van je auto in de winter tot het verleden. Bovendien staat je auto hier veilig en beschut. Daarnaast beschikt het appartement over een handige inpandige berging. Deze ruimte is ideaal voor het stallen van fietsen en het opbergen van diverse spullen.

Alle feiten op een rij:
- 3-kamer appartement met balkon op het noordoosten
- Het appartement beschikt over een lift en gesloten entree
- Eigen parkeerplaats in de parkeergarage
- Op korte afstand van alle dagelijkse voorzieningen
- Maandelijkse VvE bijdrage bedraagt € 189,- per maand
- De VvE is actief en gezond, wat bijdraagt aan een zorgeloze woonervaring

Woonoppervlakte: 68 m²
Inhoud woning: 223 m³

Bijzonderheden
Verwarming: C.V. ketel (bouwjaar 2001)
Warm water: C.V. ketel (bouwjaar 2001)
Isolatie: Volledig geïsoleerd
Bouwjaar: 2001
Balkonligging: Noordoosten
Aanvaarding: In overleg

Koopovereenkomst:
Bij de verkoop zal er een standaard NVM koopovereenkomst worden gehanteerd. Bij woningen welke ouder zijn dan 20 jaar, worden de volgende clausules opgenomen in de koopovereenkomst:
- Asbestclausule
- Ouderdomsclausule
- Niet zelfbewonersclausule

Koop je de woning zonder voorbehoud van financiering? Dan zullen wij een termijn hanteren van 14 dagen na het opstellen van de koopovereenkomst voor het storten van de bankgarantie/waarborgsom.

Deze informatie is door ons met de nodige zorgvuldigheid samengesteld. Onzerzijds wordt echter geen enkele aansprakelijkheid aanvaard voor enige onvolledigheid, onjuistheid of anderszins, dan wel de gevolgen daarvan. Alle opgegeven maten en oppervlakten zijn indicatief.
+ toon meer
deze woning is Verkocht

Weidmanlaan 81 Ede

Weidmanlaan 81

6713 HZ, Ede
Ditters open huis: 5 april 2025 10:00 - 12:00 uur
Landelijke Open Huizen Route NVM: 5 april 2025 11:00 uur - 15:00 uur
Vanaf€ 298.000 k.k.

Schakel een aankoopmakelaar in.

Snel handelen helpt je jouw droomhuis te bemachtigen. Zo vergroot je de kans dat je er op tijd bij bent.
Ede
verkocht

Of maak vrijblijvend een zoekprofiel aan.

Vergelijkbare woningen

Hypotheken

Onafhankelijk hypotheekadvies

  • Ligt jouw droomhuis binnen handbereik?
  • Wil je jouw huidige hypotheek verhogen?
  • Is er hypotheekruimte voor verduurzaming?

Blijf op de hoogte

Ontvang als eerste updates over nieuw aanbod en mis geen enkele kans om jouw droomwoning te vinden.

Gratis waardebepaling of verkoopgesprek

Met de vrijblijvende waardecheck weet je snel waar je aan toe bent. Onze makelaars kijken naar de lokale markt en vergelijkbare woningen in jouw buurt om een goede schatting te geven.

Realiseer al jouw woondromen met Ditters

Wij zijn een team van gedreven vastgoedexperts met een passie voor het maken van verbindingen – tussen kopers en verkopers, huurders en verhuurders. Met een frisse kijk op de makelaardij combineren we expertise met creativiteit. Onze makelaars luisteren écht en nemen de tijd om jouw wensen te begrijpen.


Bij Ditters sta je er niet alleen voor. We denken met je mee, begeleiden je in elke stap en zijn altijd bereikbaar voor vragen. Neem gerust contact met ons op – we helpen je graag verder!